Арендный бизнес Жилое здание "Варшавское шоссе, 18к2"

Арендный бизнес Жилое здание Арендный бизнес Жилое здание Арендный бизнес Жилое здание Арендный бизнес Жилое здание
Арендный бизнес Жилое здание Арендный бизнес Жилое здание Арендный бизнес Жилое здание Арендный бизнес Жилое здание
Округ: ЮАО
Тип: Арендный бизнес, Торговое помещение
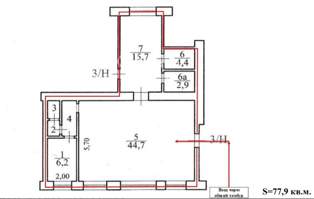
Площадь: 77.30 м2 Метро: Верхние Котлы (2 мин. 🚶)
Москва, Варшавское шоссе, 18к2
Позвоните по телефону +7 495 230-28-26, либо оставьте заявку на просмотр прямо сейчас и узнайте условия специального предложения по объекту.
загрузка карты...
Общие
ID 19999
Тип сделки Продажа
Площадь 77.30
Площадь всего 8177.00
Тип объекта Жилое здание
Этаж 1
Всего этажей в здании 8
Информация об объекте
Состояние объекта рабочее
Состояние блока отделка арендатора
Планировка Открытая
Нюансы Отдельный вход,ПСН
Торговая недвижимость
Линия домов 1 линия
Возможности Зона разгрузки,Витрины,Место для рекламы,Проходное место,Проездное место
Коммерческие условия
За все 28 000 000 ₽
За м 2 362 225 ₽
Тип собственника Юридическое лицо
Арендный бизнес
Окупаемость 7 Лет 11 мес.
По первому месяцу 9 Лет 4 мес.
Доходность 12.63 %
По первому месяцу 10.71 %
Ставка аренды 250 000 ₽ в мес
Арендная ставка за кв\м в год 38 810 ₽
Арендатор Красное и белое
Срок договора 5 Лет
Индексация 5 %

Описание объекта
Торговая площадь с сетевыми арендатором “Красное&Белое” на 1 этаже 8-ми этажного жилого дома. Весь первый этаж - коммерческие помещения: супермаркет Пятерочка, ПВЗ Озон и WB, Почта России, школа танцев и т.д. В соседнем доме несколько отелей- хостелов, футбольный стадион. Плотный жилой массив. Более 15 000 жителей в радиусе 500м. Сложившееся торговое окружение. В этом районе наблюдается дефицит коммерческих помещений. В 200 м находится метро Верхние Котлы. Парковка перед фасадом.

Нужна консультация по подбору арендного бизнеса?

Наши специалисты подберут для вас самые выгодные варианты для долгосрочного инвестирования,
помогут в сопровождении и сделки, проверят все юридические вопросы касаемо приобретения недвижимости.

* Нажимая на кнопку «Отправить», Вы даете согласие на обработку персональных данных в соответствии с Политикой конфиденциальности

Похожие объекты

Доходность 9.02 %

Рассказовка (10 мин. 🚶)
Москва, поселение Внуковское, улица Корнея Чуковского, 3
ЖК "Переделкино Ближнее"
Тип: Арендный бизнес, Торговое помещение
Площадь: 76.50 м2
Мощность:17 кВт
Арендатор: салон "777"
Месячный платеж: 280 000
37 000 000 за все
483 660 за м2
Позвонить Подробнее

Доходность 10.08 %

Новокузнецкая (5 мин. 🚶)
Москва, Новокузнецкая улица, 30с1
Жилой Дом на Новокузнецкой улице
Тип: Арендный бизнес, Торговое помещение
Площадь: 75.00 м2
Мощность:25 кВт
Арендатор: ПВЗ Озон, Вайлдберриз
Месячный платеж: 263 000
39 000 000 за все
520 000 за м2
Позвонить Подробнее

Доходность 12.50 %

Таганская (3 мин. 🚶)
Москва, Гончарная набережная, 3с5
Жилой дом Гончарная набережная д. 3 стр. 5
Тип: Арендный бизнес, Торговое помещение
Площадь: 76.70 м2
Арендатор: Офис
Месячный платеж: 300 000
41 000 000 за все
534 550 за м2
Позвонить Подробнее

Доходность 10.91 %

Тульская (2 мин. 🚶)
Москва, Гамсоновский переулок, 2с11
Бизнес-центр "Рябовская мануфактура" Ryabov LOFT
Тип: Арендный бизнес, Офисы
Площадь: 84.70 м2
Отделка:выполнена стандартная офисная отделка
Арендатор: офис строительной компании
Месячный платеж: 316 200
34 727 000 за все
410 000 за м2
Позвонить Подробнее

Доходность 9.30 %

Чертановская (11 мин. 🚶)
Москва, Балаклавский проспект, 2к6
ОСЗ "Балаклавский проспект, 2к6"
Тип: Арендный бизнес, Торговое помещение
Площадь: 83.10 м2
Мощность:50 кВт
Арендатор: District Bar
Месячный платеж: 275 000
35 400 000 за все
425 993 за м2
Позвонить Подробнее

Доходность 5.77 %

Тверская (3 мин. 🚶)
Москва, Малый Гнездниковский переулок, 10
Административное здание "Малый Гнездниковский переулок, 10"
Тип: Арендный бизнес, Торговое помещение
Площадь: 84.00 м2
Мощность:13 кВт
Арендатор: Центр медицинского массажа
Месячный платеж: 250 000
52 000 000 за все
619 048 за м2
Позвонить Подробнее

Доходность 11.88 %

(7 мин. 🚗)
Москва, Салтыковская улица, 6/1к6
ЖК «Мой адрес на Салтыковской» 6/1к6
Тип: Арендный бизнес, Торговое помещение
Площадь: 75.00 м2
Арендатор: Аптека ЗдравСити, Табак
Месячный платеж: 260 000
34 000 000 за все
453 333 за м2
Позвонить Подробнее

Доходность 9.02 %

Октябрьское Поле (1 мин. 🚶)
Москва, улица Маршала Бирюзова, 19
Жилое здание "Маршала бирюзова 19"
Тип: Арендный бизнес, Торговое помещение
Площадь: 75.00 м2
Мощность:15 кВт
Арендатор: Магазин цветов
Месячный платеж: 400 000
53 000 000 за все
706 667 за м2
Позвонить Подробнее

Доходность 11.76 %

Пражская (6 мин. 🚗)
Москва, улица Красного Маяка, 26А
ЖК "Парксайд"
Тип: Арендный бизнес, Торговое помещение
Площадь: 77.20 м2
Мощность:15 кВт
Арендатор: ПВЗ Озон, Вайлдберриз
Месячный платеж: 325 000
41 500 000 за все
537 565 за м2
Позвонить Подробнее

Доходность 11.32 %

Улица 1905 года (15 мин. 🚶)
Москва, Шмитовский проезд, 13
Жилой жом "Шмитовский пр-д 13"
Тип: Арендный бизнес, Торговое помещение
Площадь: 81.10 м2
Мощность:15 кВт
Арендатор: Бристоль
Месячный платеж: 249 500
32 000 000 за все
394 575 за м2
Позвонить Подробнее

Доходность 8.11 %

Жулебино (3 мин. 🚶)
Москва, улица Авиаконструктора Миля, 8к1
Жилой дом "Авиаконструктора Миля 8к1"
Тип: Арендный бизнес, Торговое помещение
Площадь: 70.00 м2
Мощность:30 кВт
Арендатор: Кофейня
Месячный платеж: 250 000
36 990 000 за все
528 429 за м2
Позвонить Подробнее

Доходность 12.63 %

Марьина Роща (3 мин. 🚶)
Москва, улица Сущёвский Вал, 53
Административный Центр на 1й линии ТТК
Тип: Арендный бизнес, Торговое помещение
Площадь: 70.50 м2
Мощность:80 кВт
Арендатор: Ресторан Бобби-Кю
Месячный платеж: 720 000
86 400 000 за все
1 225 532 за м2
Позвонить Подробнее

Доходность 11.54 %

Ховрино (26 мин. 🚗)
Московская область, Химки, микрорайон Клязьма-Старбеево, квартал Международный, жилой комплекс 1-й Химкинский, к1.4
ЖК "1-й Химкинский"
Тип: Арендный бизнес, Торговое помещение
Площадь: 50.30 м2
Мощность:10 кВт
Арендатор: ЗдесьАптека
Месячный платеж: 230 000
29 000 000 за все
576 541 за м2
Позвонить Подробнее

Доходность 8.57 %

Сходненская (8 мин. 🚶)
Москва, Сходненская улица, 31
Жилое здание "Сходненская улица 31"
Тип: Арендный бизнес, Торговое помещение
Площадь: 44.50 м2
Мощность:15 кВт
Арендатор: Цветы
Месячный платеж: 215 000
29 900 000 за все
671 910 за м2
Позвонить Подробнее

Доходность 9.09 %

Озёрная (16 мин. 🚶)
Закрытая продажа #62969
Тип: Арендный бизнес, Торговое помещение
Площадь: 37.32 м2
Мощность:25 кВт
Арендатор: Optica Mag
Месячный платеж: 223 800
29 541 600 за все
791 576 за м2
Позвонить Подробнее

Доходность 10.17 %

Деловой центр Деловой центр (МЦК) (7 мин. 🚶)
Москва, Пресненская набережная, 12
Москва-Сити «Башня Федерация»
Тип: Арендный бизнес, Торговое помещение
Площадь: 21.50 м2
Мощность:30 кВт
Арендатор: MYST (ателье / ремонт)
Месячный платеж: 175 560
25 900 000 за все
1 204 651 за м2
Позвонить Подробнее

Спец. предложение

Доходность 8.00 %

Кутузовская (5 мин. 🚶)
Москва, Кутузовский проспект, 30
Жилое здание "Кутузовский проспект д. 30"
Тип: Арендный бизнес, Торговое помещение
Площадь: 96.80 м2
Мощность:15 кВт
Арендатор: Обменный пункт
Месячный платеж: 200 000
30 000 000 за все
309 917 за м2
Позвонить Подробнее

Доходность 15.58 %

Бульвар Рокоссовского (16 мин. 🚗)
Москва, Открытое шоссе, 19к1
Жилое здание "Открытое шоссе, 19к1"
Тип: Арендный бизнес, Торговое помещение
Площадь: 95.00 м2
Арендатор: Вайлдберриз
Месячный платеж: 275 000
27 500 000 за все
289 474 за м2
Позвонить Подробнее

Доходность 10.62 %

(20 мин. 🚗)
Москва, район Троицк, 3-я Нововатутинская улица, 15к1
ЖК "Новые Ватутинки" 15к1
Тип: Арендный бизнес, Торговое помещение
Площадь: 64.00 м2
Арендатор: Аптека ЗдравСити
Месячный платеж: 200 000
28 000 000 за все
437 500 за м2
Позвонить Подробнее

Доходность 10.00 %

Домодедовская (6 мин. 🚗)
Москва, улица Генерала Белова, 9
Здание "улица Генерала Белова, 9"
Тип: Арендный бизнес, Торговое помещение
Площадь: 42.90 м2
Мощность:10 кВт
Арендатор: Пекарня
Месячный платеж: 200 000
30 000 000 за все
699 301 за м2
Позвонить Подробнее

Доходность 12.63 %

Бауманская (10 мин. 🚶)
Москва, улица Фридриха Энгельса, 25с3
Фридриха Энгельса, 25с3
Тип: Арендный бизнес, Торговое помещение
Площадь: 42.00 м2
Мощность:15 кВт
Арендатор: Салон красоты
Месячный платеж: 250 000
30 000 000 за все
714 286 за м2
Позвонить Подробнее

Доходность 9.84 %

Сухаревская (5 мин. 🚶)
Москва, Мещанская улица, 2
Жилое здание "Мещанская ул., 2"
Тип: Арендный бизнес, Торговое помещение
Площадь: 23.00 м2
Арендатор: Аптека
Месячный платеж: 186 000
25 300 000 за все
1 100 000 за м2
Позвонить Подробнее

Доходность 10.71 %

Отрадное (1 мин. 🚶)
Москва, Северный бульвар, 2
Жилое здание «Северный бульвар 2»
Тип: Арендный бизнес, Торговое помещение
Площадь: 33.00 м2
Арендатор: Кофейня
Месячный платеж: 210 000
29 000 000 за все
878 788 за м2
Позвонить Подробнее

Доходность 19.05 %

(9 мин. 🚶)
Москва, Новомосковский административный округ, посёлок Внуково, Большая Внуковская улица, 15
Жилое здание "Большая Внуковская, 15"
Тип: Арендный бизнес, Торговое помещение
Площадь: 321.00 м2
Арендатор: Магазин эко-продукции ( топленого масла), Интернет-магазин, Вайлдберриз
Месячный платеж: 388 000
28 000 000 за все
87 227 за м2
Позвонить Подробнее