Аренда торгового помещения Особняк «Покровка 8»

Аренда торгового помещения Особняк «Покровка 8» Аренда торгового помещения Особняк «Покровка 8» Аренда торгового помещения Особняк «Покровка 8» Аренда торгового помещения Особняк «Покровка 8»
Аренда торгового помещения Особняк «Покровка 8» - превью Аренда торгового помещения Особняк «Покровка 8» - превью Аренда торгового помещения Особняк «Покровка 8» - превью Аренда торгового помещения Особняк «Покровка 8» - превью
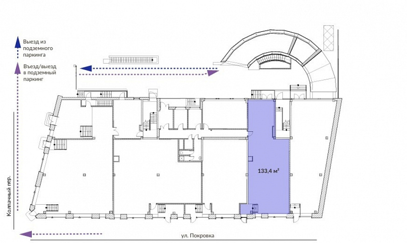
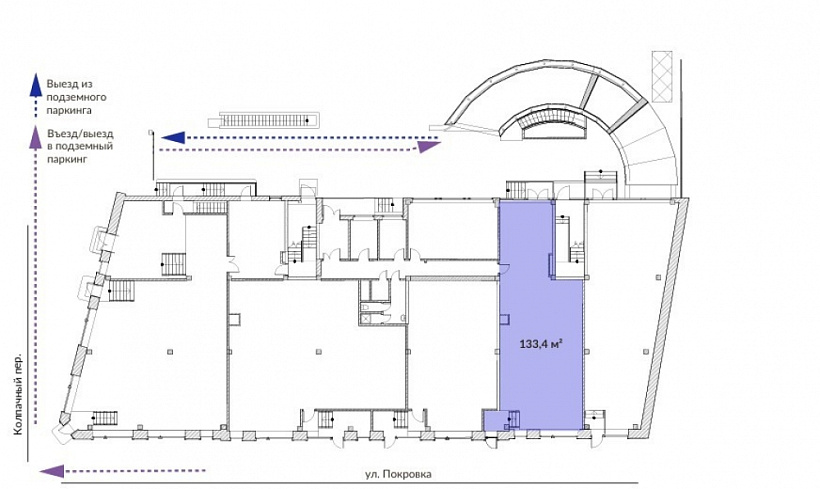
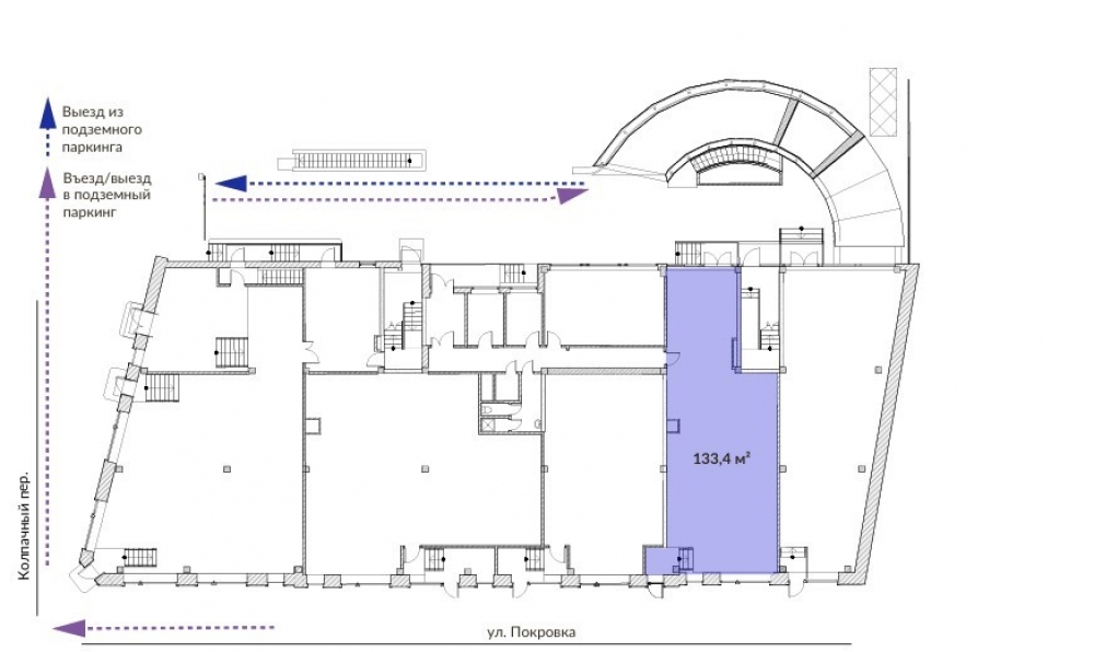
Москва, Улица Покровка, 8
Позвоните по телефону +7 495 230-28-26, либо оставьте заявку на просмотр прямо сейчас и узнайте условия специального предложения по объекту.
загрузка карты...
Аренда в год за м2 140 000 ₽
Аренда в месяц 1 556 333 ₽
Схема сделки прямая аренда
Общие
ID 43280
Тип сделки Аренда
Площадь 133.40
Площадь всего 3055.00
Тип объекта Особняк
Класс здания B
Этаж 1
Всего этажей в здании 2
Метраж по этажам
Информация об объекте
Состояние объекта рабочее
Состояние блока Shell and Core
Планировка Смешанная
Коммуникации Система видеонаблюдения,Интернет,Телефония
КПП Гостевой пропуск
Нюансы Отдельный вход
Торговая недвижимость
Линия домов 1 линия
Возможности Витрины,Место для рекламы,Проходное место,Проездное место
Электр. мощность (кВт) 47
Коммерческие условия
Аренда в год за м2 140 000 ₽
Аренда в месяц 1 556 333 ₽
Схема сделки прямая аренда

Описание объекта
Предлагается в аренду торговое помещение по адресу: Покровка 8. Помещение на 1 этаже, общей площадью 133,40м2. Предоставляется техническая возможность оборудовать помещения для работы ресторана (вентиляция, технологическая вентиляция, система
кондиционирования и т.п.). Предполагается размещение летней террасы. Высота от бетонного пола до бетонного потолка – 4,0 м. Выделенная электрическая мощность 47 кВт. Помещения передаются в текущем состоянии "под отделку".

Нужна консультация по подбору торговых площадей для аренды?

Наши специалисты подберут для вас самые выгодные варианты для долгосрочного инвестирования,
помогут в сопровождении и сделки, проверят все юридические вопросы касаемо приобретения недвижимости.

* Нажимая на кнопку «Отправить», Вы даете согласие на обработку персональных данных в соответствии с Политикой конфиденциальности

Похожие объекты

Ховрино (25 мин. 🚗)
Москва, Ленинградское шоссе, 228к6
ЖК «1-й Ленинградский», к. 1
Тип: Торговое помещение
Площадь: 138.10 м2
Мощность:25 кВт
345 250 в месяц
30 000 в год за м2
Позвонить Подробнее
Братиславская (9 мин. 🚶)
Москва, Люблинская улица, 153
ТЦ "Люблю Молл"
Тип: Торговое помещение
Площадь: 132.00 м2
660 000 в месяц
60 000 в год за м2
Позвонить Подробнее
Ломоносовский проспект (7 мин. 🚶)
Москва, Мичуринский проспект, 7к1
ЖК Шуваловский
Тип: Торговое помещение
Площадь: 128.00 м2
Мощность:78 кВт
620 000 в месяц
58 125 в год за м2
Позвонить Подробнее
Курская (2 мин. 🚶)
Москва, улица Земляной Вал, 23с1
Жилое здание " Земляной Вал, 23с1"
Тип: Торговое помещение
Площадь: 138.90 м2
892 500 в месяц
77 106 в год за м2
Позвонить Подробнее
Павелецкая (2 мин. 🚶)
Москва, Новокузнецкая улица, 39
Административное здание «Новокузнецкая 39»
Тип: Торговое помещение
Площадь: 144.20 м2
Мощность:80 кВт
1 500 000 в месяц
124 827 в год за м2
Позвонить Подробнее
Полянка (7 мин. 🚶)
Москва, Улица Большая Полянка, 44
ЖК «Большая Полянка 44»
Тип: Торговое помещение
Площадь: 136.40 м2
Мощность:67 кВт
950 000 в месяц
83 578 в год за м2
Позвонить Подробнее
Динамо (7 мин. 🚶)
Москва, Ленинградский проспект, 29
Жилой комплекс: Царская площадь
Тип: Торговое помещение
Площадь: 140.90 м2
1 000 000 в месяц
85 167 в год за м2
Позвонить Подробнее
Профсоюзная (17 мин. 🚶)
Москва, Новочерёмушкинская улица, 27
Жилой дом "Новочерёмушкинская 27"
Тип: Торговое помещение
Площадь: 145.80 м2
Мощность:29 кВт
510 000 в месяц
41 975 в год за м2
Позвонить Подробнее
Спартак (9 мин. 🚶)
Москва, Лётная улица, 95Бк2
ЖК "Алия"
Тип: Торговое помещение
Площадь: 119.80 м2
Мощность:12 кВт
564 548 в месяц
56 549 в год за м2
Позвонить Подробнее
Коломенская (1 мин. 🚶)
Москва, проспект Андропова, 21
ОСЗ "проспект Андропова, 21"
Тип: Торговое помещение
Площадь: 125.00 м2
Мощность:15 кВт
500 000 в месяц
48 000 в год за м2
Позвонить Подробнее
Новохохловская (10 мин. 🚶)
Москва, 1-й Грайвороновский проезд, 3
ЖК "Волжский парк"
Тип: Торговое помещение
Площадь: 130.00 м2
Мощность:22 кВт
390 000 в месяц
36 000 в год за м2
Позвонить Подробнее
Шелепиха (15 мин. 🚶)
Москва, Шелепихинская набережная, 38к8
ЖК Сидней Прайм
Тип: Торговое помещение
Площадь: 120.00 м2
Мощность:15 кВт
600 000 в месяц
60 000 в год за м2
Позвонить Подробнее
Лубянка (2 мин. 🚶)
Москва, Лубянский проезд, 7с1
Особняк «Лубянский 7 с1»
Тип: Торговое помещение
Площадь: 55.00 м2
Мощность:20 кВт
600 000 в месяц
130 909 в год за м2
Позвонить Подробнее
Сретенский бульвар (5 мин. 🚶)
Москва, Рождественский бульвар, 22/23с1
Жилое здание "Рождественский бульвар, 22/23с1"
Тип: Торговое помещение
Площадь: 78.00 м2
Мощность:30 кВт
849 000 в месяц
130 615 в год за м2
Позвонить Подробнее
Сретенский бульвар (5 мин. 🚶)
Москва, Рождественский бульвар, 22/23с1
Жилое здание "Рождественский бульвар, 22/23с1"
Тип: Торговое помещение
Площадь: 75.30 м2
Мощность:30 кВт
820 000 в месяц
130 677 в год за м2
Позвонить Подробнее
Шаболовская (1 мин. 🚶)
Москва, улица Шаболовка, 30/12
Жилое здание "Шаболовка, 30/12"
Тип: Торговое помещение
Площадь: 35.00 м2
Мощность:20 кВт
445 000 в месяц
152 571 в год за м2
Позвонить Подробнее
Чистые пруды (10 мин. 🚶)
Москва, Улица Покровка, 21-23/25с1
Административное здание «Покровка 21-23/25 с1»
Тип: Торговое помещение
Площадь: 155.60 м2
Мощность:75 кВт
1 670 000 в месяц
128 792 в год за м2
Позвонить Подробнее
Павелецкая (3 мин. 🚶)
Москва, улица Бахрушина, 36/14с3
Административное здание Бахрушина. 36/14с3
Тип: Торговое помещение
Площадь: 256.30 м2
2 950 000 в месяц
138 119 в год за м2
Позвонить Подробнее
Павелецкая (3 мин. 🚶)
Москва, улица Бахрушина, 36/14с3
Административное здание Бахрушина. 36/14с3
Тип: Торговое помещение
Площадь: 94.50 м2
1 180 000 в месяц
149 841 в год за м2
Позвонить Подробнее
Павелецкая (2 мин. 🚶)
Москва, Новокузнецкая улица, 39
Административное здание «Новокузнецкая 39»
Тип: Торговое помещение
Площадь: 93.50 м2
Мощность:70 кВт
1 000 000 в месяц
128 342 в год за м2
Позвонить Подробнее
Павелецкая (1 мин. 🚶)
Москва, Новокузнецкая улица, 43/16с2
Жилое здание "Новокузнецкая улица д. 43/16с2"
Тип: Торговое помещение
Площадь: 70.50 м2
Мощность:17 кВт
800 000 в месяц
136 170 в год за м2
Позвонить Подробнее
Проспект Мира (1 мин. 🚶)
Москва, проспект Мира, 44
Жилое здание " проспект Мира, 44"
Тип: Торговое помещение
Площадь: 32.20 м2
Мощность:20 кВт
350 000 в месяц
130 435 в год за м2
Позвонить Подробнее
Фрунзенская (10 мин. 🚶)
Москва, Усачёва улица, 15А
ЖК "САДОВЫЕ КВАРТАЛЫ"
Тип: Торговое помещение
Площадь: 105.60 м2
Мощность:22 кВт
1 200 000 в месяц
136 364 в год за м2
Позвонить Подробнее
Планерная (5 мин. 🚶)
Москва, Планерная улица, 12к1
Жилое здание "Планерная 12к1"
Тип: Торговое помещение
Площадь: 63.80 м2
680 000 в месяц
127 900 в год за м2
Позвонить Подробнее
Китай-город (3 мин. 🚶)
Москва, улица Маросейка, 6-8с1
Административное здание «Маросейка 6/8с1»
Тип: Торговое помещение
Площадь: 436.40 м2
Мощность:90 кВт
2 415 000 в месяц
66 407 в год за м2
Позвонить Подробнее
Китай-город (1 мин. 🚶)
Москва, улица Солянка, 2/6с1
Административное здание "Солянка, 2/6с1"
Тип: Торговое помещение
Площадь: 15.50 м2
350 000 в месяц
270 968 в год за м2
Позвонить Подробнее
Китай-город (1 мин. 🚶)
Москва, улица Солянка, 2/6с1
Административное здание "Солянка, 2/6с1"
Тип: Торговое помещение
Площадь: 24.30 м2
700 000 в месяц
345 679 в год за м2
Позвонить Подробнее
Китай-город (1 мин. 🚶)
Москва, улица Солянка, 2/6с1
Административное здание "Солянка, 2/6с1"
Тип: Торговое помещение
Площадь: 209.00 м2
1 450 000 в месяц
83 254 в год за м2
Позвонить Подробнее
Китай-город (3 мин. 🚶)
Москва, улица Маросейка, 6-8с1
Административное здание «Маросейка 6/8с1»
Тип: Торговое помещение
Площадь: 253.60 м2
Мощность:90 кВт
2 099 000 в месяц
99 322 в год за м2
Позвонить Подробнее
Китай-город (3 мин. 🚶)
Москва, улица Маросейка, 6-8с1
Административное здание «Маросейка 6/8с1»
Тип: Торговое помещение
Площадь: 690.00 м2
Мощность:180 кВт
3 950 000 в месяц
68 696 в год за м2
Позвонить Подробнее

Спец. предложение

Китай-город (10 мин. 🚶)
Москва, Улица Покровка, 8
Особняк «Покровка 8»
Тип: Торговое помещение
Площадь: 20.00 м2
Мощность:15 кВт
311 850 в месяц
187 110 в год за м2
Позвонить Подробнее
Китай-город (3 мин. 🚶)
Москва, Улица Солянка, 2/6
Особняк «Солянка 2/6»
Тип: Торговое помещение
Площадь: 209.10 м2
1 450 000 в месяц
83 214 в год за м2
Позвонить Подробнее
Китай-город (3 мин. 🚶)
Москва, Улица Солянка, 2/6
Особняк «Солянка 2/6»
Тип: Торговое помещение
Площадь: 15.50 м2
350 000 в месяц
270 968 в год за м2
Позвонить Подробнее
Китай-город (3 мин. 🚶)
Москва, Улица Солянка, 2/6
Особняк «Солянка 2/6»
Тип: Торговое помещение
Площадь: 24.30 м2
700 000 в месяц
345 679 в год за м2
Позвонить Подробнее