Аренда офиса Бизнес-центр «Двинцев»

Аренда офиса Бизнес-центр «Двинцев» Аренда офиса Бизнес-центр «Двинцев» Аренда офиса Бизнес-центр «Двинцев»
Аренда офиса Бизнес-центр «Двинцев» - превью Аренда офиса Бизнес-центр «Двинцев» - превью Аренда офиса Бизнес-центр «Двинцев» - превью
Москва, Улица Двинцев, 12к1
Позвоните по телефону +7 495 230-28-26, либо оставьте заявку на просмотр прямо сейчас и узнайте условия специального предложения по объекту.
загрузка карты...
Аренда в год за м2 62 503 ₽
Аренда в месяц 6 609 692 ₽
Схема сделки прямая аренда
Первушина Марина Алексеевна

Объект ведет консультант:

Первушина Марина Алексеевна

Общие
ID 57189
Тип сделки Аренда
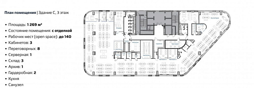
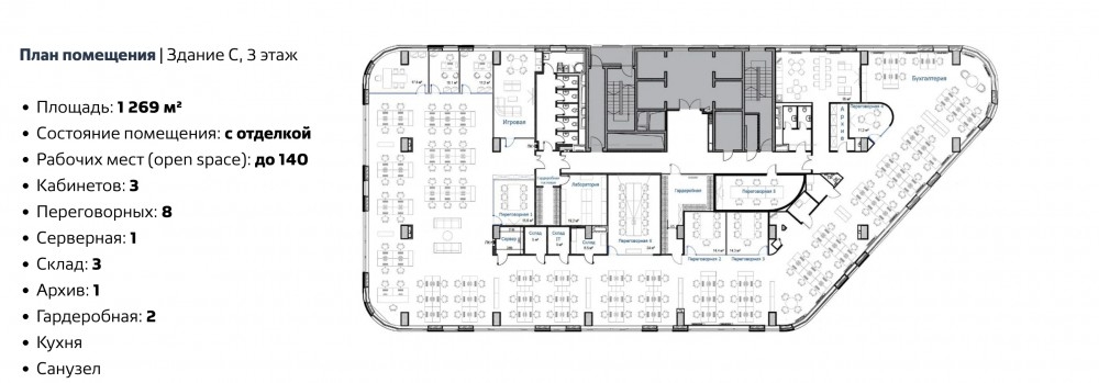
Площадь 1269.00
Площадь всего 49000.00
Тип объекта Бизнес-центр
Класс здания A
Этаж 3
Всего этажей в здании 15
Метраж по этажам
Информация об объекте
Состояние объекта рабочее
Состояние блока качественная отделка
Планировка Смешанная
Коммуникации Система пожаротушения,Система видеонаблюдения,Интернет,Телефония
Отопление Центральное
Вентиляция и кондиционирование Современная система вентиляции и кондиционирования
КПП Гостевой пропуск
Коммерческие условия
Аренда в год за м2 62 503 ₽
Аренда в месяц 6 609 692 ₽
Схема сделки прямая аренда
Тип собственника Юридическое лицо

Описание объекта
Предлагаем в аренду этаж под офис в бизнес-центре класса А в Марьиной роще. До метро Савеловская и Марьина Роща 10 минут пешком.
Общая площадь 1269м2, смешанная планировка (1450рабочих мест), ремонт за выездом арендатора. В здании приточно-вытяжная вентиляция, центральное кондиционирование.
За дополнительную плату предоставляются места на подземной парковке.
Офис будет свободен к заезду

Нужна консультация по подбору помещения под офис?

Наши специалисты подберут для вас самые выгодные варианты для долгосрочного инвестирования,
помогут в сопровождении и сделки, проверят все юридические вопросы касаемо приобретения недвижимости.

* Нажимая на кнопку «Отправить», Вы даете согласие на обработку персональных данных в соответствии с Политикой конфиденциальности

Похожие объекты

Комсомольская (11 мин. 🚶)
Москва, Докучаев переулок, 8
Особняк «Докучаев 8»
Тип: Офисы
Площадь: 1222.80 м2
5 387 147 в месяц
52 867 в год за м2
Позвонить Подробнее
Калужская (15 мин. 🚶)
Москва, улица Намёткина, 12А
Бизнес-центр «Газойл Плаза»
Тип: Офисы
Площадь: 1337.70 м2
Отделка:отделка арендатора
3 901 625 в месяц
35 000 в год за м2
Позвонить Подробнее
Цветной бульвар (5 мин. 🚶)
Москва, Цветной бульвар, 30с1
Офисное здание «Цветной 30»
Тип: Офисы
Площадь: 1305.00 м2
Отделка:выполнена высококачественная отделка
7 177 500 в месяц
66 000 в год за м2
Позвонить Подробнее
Марьина Роща (14 мин. 🚶)
Москва, Улица Сущёвский Вал, 18
Бизнес-центр «NOVO» (ново)
Тип: Офисы
Площадь: 1312.00 м2
Отделка:выполнена высококачественная отделка
6 997 334 в месяц
64 000 в год за м2
Позвонить Подробнее
Дмитровская (12 мин. 🚶)
Москва, 2-я Хуторская улица, 38А
Бизнес-центр "Мирлэнд"
Тип: Офисы
Площадь: 1269.00 м2
Отделка:выполнена стандартная офисная отделка
2 538 000 в месяц
24 000 в год за м2
Позвонить Подробнее
ЦСКА (15 мин. 🚶)
Москва, Ленинградский проспект, 37Ак4
БЦ "Аркус 3"
Тип: Офисы
Площадь: 1282.00 м2
Отделка:выполнена стандартная офисная отделка
8 990 880 в месяц
84 158 в год за м2
Позвонить Подробнее
Третьяковская (13 мин. 🚶)
Москва, Болотная улица, 14с1
Административное здание " Болотная улица, 14с1"
Тип: Офисы
Площадь: 1263.00 м2
Отделка:требуется косметический ремонт
500 000 в месяц
4 751 в год за м2
Позвонить Подробнее
Войковская (7 мин. 🚶)
Москва, Ленинградское шоссе, 16Ас1
Бизнес-центр «Метрополис»
Тип: Офисы
Площадь: 1330.00 м2
Отделка:качественная отделка
6 095 833 в месяц
55 000 в год за м2
Позвонить Подробнее
Ул. Академика Янгеля (7 мин. 🚶)
Москва, Варшавское шоссе, 148
Бизнес-центр «РТС Варшавский»
Тип: Офисы
Площадь: 1392.00 м2
Отделка:выполнена стандартная офисная отделка
2 436 696 в месяц
21 006 в год за м2
Позвонить Подробнее
(4 мин. 🚶)
Москва, Газетный переулок, 17
Бизнес-центр «Газетный 17"
Тип: Офисы
Площадь: 1246.00 м2
Отделка:качественная отделка
12 041 400 в месяц
115 969 в год за м2
Позвонить Подробнее
Савёловская (12 мин. 🚶)
Москва, Вятская улица, 35с4
Бизнес-центр «Вятка»
Тип: Офисы
Площадь: 1185.00 м2
Отделка:выполнена стандартная офисная отделка
3 915 438 в месяц
39 650 в год за м2
Позвонить Подробнее
Красносельская (9 мин. 🚶)
Москва, Верхняя Красносельская улица, 2/1с1
Офисное здание «Верхняя Красносельская 2/1 с1»
Тип: Офисы
Площадь: 1345.00 м2
Отделка:выполнена стандартная офисная отделка
3 362 500 в месяц
30 000 в год за м2
Позвонить Подробнее
(6 мин. 🚶)
Москва, Никитский переулок, 4с1
Офисное здание «Никитский 4 с1»
Тип: Офисы
Площадь: 140.00 м2
Отделка:выполнена стандартная офисная отделка
788 667 в месяц
67 600 в год за м2
Позвонить Подробнее
Пл. Революции (3 мин. 🚶)
Москва, Никольская улица, 10
Бизнес-центр «Никольская плаза»
Тип: Офисы
Площадь: 217.40 м2
Отделка:выполнена стандартная офисная отделка
1 032 650 в месяц
57 000 в год за м2
Позвонить Подробнее
Пл. Революции (3 мин. 🚶)
Москва, Никольская улица, 10
Бизнес-центр «Никольская плаза»
Тип: Офисы
Площадь: 636.80 м2
Отделка:выполнена стандартная офисная отделка
3 024 800 в месяц
57 000 в год за м2
Позвонить Подробнее
Цветной бульвар (5 мин. 🚶)
Москва, Цветной бульвар, 30с1
Офисное здание «Цветной 30»
Тип: Офисы
Площадь: 1305.00 м2
Отделка:выполнена высококачественная отделка
7 177 500 в месяц
66 000 в год за м2
Позвонить Подробнее
Марьина Роща (14 мин. 🚶)
Москва, Улица Сущёвский Вал, 18
Бизнес-центр «NOVO» (ново)
Тип: Офисы
Площадь: 365.00 м2
Отделка:выполнена высококачественная отделка
1 977 084 в месяц
65 000 в год за м2
Позвонить Подробнее
Белорусская (11 мин. 🚶)
Москва, Лесная улица, 43
Бизнес-центр «Лесная 43»
Тип: Офисы
Площадь: 550.00 м2
Отделка:качественная отделка
3 070 900 в месяц
67 001 в год за м2
Позвонить Подробнее
Белорусская (11 мин. 🚶)
Москва, Лесная улица, 43
Бизнес-центр «Лесная 43»
Тип: Офисы
Площадь: 800.00 м2
Отделка:выполнена стандартная офисная отделка
4 066 667 в месяц
61 000 в год за м2
Позвонить Подробнее
Марьина Роща (14 мин. 🚶)
Москва, Улица Сущёвский Вал, 18
Бизнес-центр «NOVO» (ново)
Тип: Офисы
Площадь: 1312.00 м2
Отделка:выполнена высококачественная отделка
6 997 334 в месяц
64 000 в год за м2
Позвонить Подробнее
Павелецкая (9 мин. 🚶)
Москва, Космодамианская набережная, 52с3
Бизнес-центр «Риверсайд Тауэрс» к 3
Тип: Офисы
Площадь: 1005.00 м2
Отделка:выполнена стандартная офисная отделка
5 226 000 в месяц
62 400 в год за м2
Позвонить Подробнее
Павелецкая (9 мин. 🚶)
Москва, Космодамианская набережная, 52с1
Бизнес-центр «Риверсайд Тауэрс»
Тип: Офисы
Площадь: 1410.00 м2
Отделка:выполнена стандартная офисная отделка
6 768 000 в месяц
57 600 в год за м2
Позвонить Подробнее
Павелецкая (9 мин. 🚶)
Москва, Космодамианская набережная, 52с1
Бизнес-центр «Риверсайд Тауэрс»
Тип: Офисы
Площадь: 881.00 м2
Отделка:выполнена стандартная офисная отделка
4 140 700 в месяц
56 400 в год за м2
Позвонить Подробнее
Павелецкая (9 мин. 🚶)
Москва, Космодамианская набережная, 52с1
Бизнес-центр «Риверсайд Тауэрс»
Тип: Офисы
Площадь: 458.00 м2
Отделка:выполнена стандартная офисная отделка
2 152 600 в месяц
56 400 в год за м2
Позвонить Подробнее
Савёловская (7 мин. 🚶)
Москва, Вятская улица, 27
Бизнес-парк «Фактория»
Тип: Офисы
Площадь: 502.00 м2
Отделка:отделка в стиле Loft
2 158 600 в месяц
51 600 в год за м2
Позвонить Подробнее
Савёловская (5 мин. 🚶)
Москва, Улица Правды, 26
Бизнес-центр «Северное сияние»
Тип: Офисы
Площадь: 2279.00 м2
Отделка:выполнена стандартная офисная отделка
10 255 500 в месяц
54 000 в год за м2
Позвонить Подробнее
Савёловская (5 мин. 🚶)
Москва, Бумажный проезд, 19с4
БЦ STONE TOWERS
Тип: Офисы
Площадь: 143.00 м2
Отделка:Shell and Core
540 000 в месяц
45 315 в год за м2
Позвонить Подробнее
Савёловская (12 мин. 🚶)
Москва, Вятская улица, 35с4
Бизнес-центр «Вятка»
Тип: Офисы
Площадь: 2136.00 м2
Отделка:выполнена стандартная офисная отделка
7 057 700 в месяц
39 650 в год за м2
Позвонить Подробнее
Савёловская (12 мин. 🚶)
Москва, Вятская улица, 35с4
Бизнес-центр «Вятка»
Тип: Офисы
Площадь: 3513.00 м2
Отделка:выполнена стандартная офисная отделка
11 607 538 в месяц
39 650 в год за м2
Позвонить Подробнее
Савёловская (12 мин. 🚶)
Москва, Вятская улица, 35с4
Бизнес-центр «Вятка»
Тип: Офисы
Площадь: 990.00 м2
Отделка:выполнена стандартная офисная отделка
3 271 125 в месяц
39 650 в год за м2
Позвонить Подробнее
Савёловская (12 мин. 🚶)
Москва, Вятская улица, 35с4
Бизнес-центр «Вятка»
Тип: Офисы
Площадь: 1185.00 м2
Отделка:выполнена стандартная офисная отделка
3 915 438 в месяц
39 650 в год за м2
Позвонить Подробнее
Савёловская (10 мин. 🚶)
Москва, Улица Двинцев, 12к1
Бизнес-центр «Двинцев»
Тип: Офисы
Площадь: 1384.00 м2
Отделка:качественная отделка
6 927 266 в месяц
60 063 в год за м2
Позвонить Подробнее
Савёловская (8 мин. 🚗)
Москва, Улица Расковой, 11А
Офисное здание «Расковой 11А»
Тип: Офисы
Площадь: 1335.60 м2
Отделка:выполнена стандартная офисная отделка
1 836 450 в месяц
16 500 в год за м2
Позвонить Подробнее
Савёловская (5 мин. 🚶)
Москва, Бумажный проезд, 19с4
БЦ STONE TOWERS
Тип: Офисы
Площадь: 1109.00 м2
Отделка:Shell and Core
4 158 750 в месяц
45 000 в год за м2
Позвонить Подробнее
Савёловская (5 мин. 🚶)
Москва, Бумажный проезд, 19с4
БЦ STONE TOWERS
Тип: Офисы
Площадь: 902.30 м2
Отделка:выполнена высококачественная отделка
4 511 500 в месяц
60 000 в год за м2
Позвонить Подробнее
Савёловская (5 мин. 🚶)
Москва, Бумажный проезд, 19с4
БЦ STONE TOWERS
Тип: Офисы
Площадь: 535.10 м2
Отделка:Shell and Core
2 229 583 в месяц
50 000 в год за м2
Позвонить Подробнее