Аренда офиса Бизнес-центр «GreenPoint»

Аренда офиса Бизнес-центр «GreenPoint»
Москва, Химки, улица Панфилова, 19/1
Позвоните по телефону +7 495 230-28-26, либо оставьте заявку на просмотр прямо сейчас и узнайте условия специального предложения по объекту.
загрузка карты...
Аренда в год за м2 18 500 ₽
Аренда в месяц 612 042 ₽
Схема сделки прямая аренда
Первушина Марина Алексеевна

Объект ведет консультант:

Первушина Марина Алексеевна

Общие
ID 57451
Тип сделки Аренда
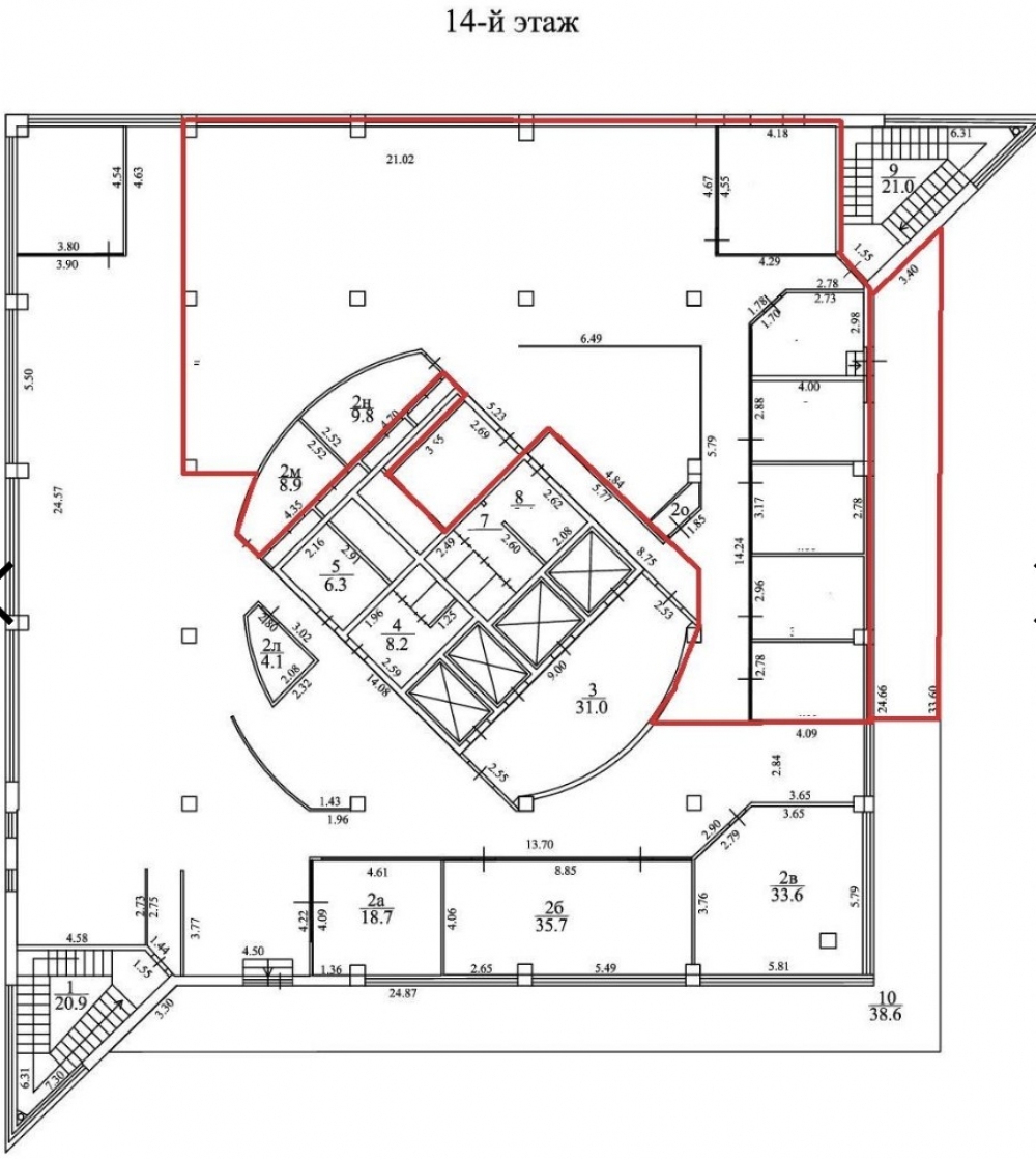
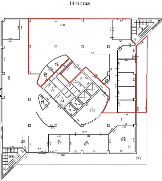
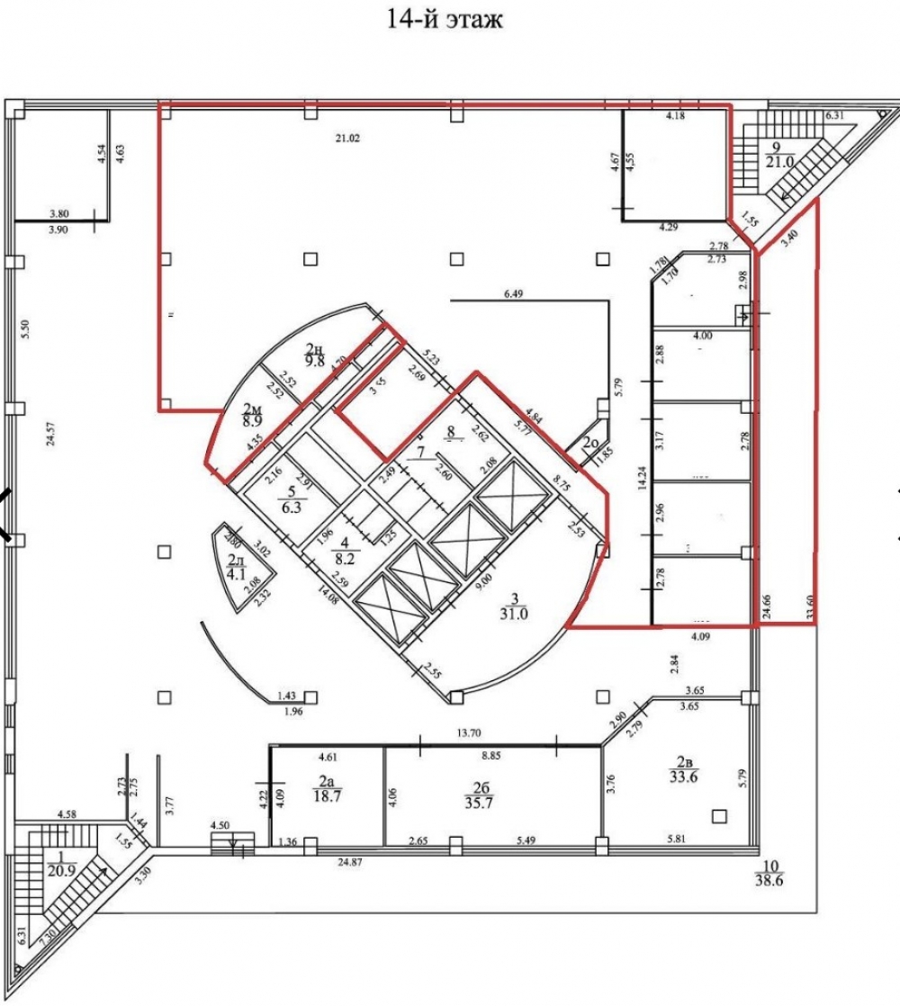
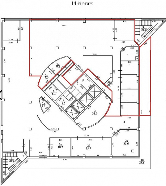
Площадь 397.00
Площадь всего 15296.00
Тип объекта Бизнес-центр
Класс здания B
Этаж 14
Всего этажей в здании 17
Метраж по этажам
Информация об объекте
Состояние блока выполнена стандартная офисная отделка
Планировка Смешанная
Коммуникации Система видеонаблюдения,Интернет,Телефония
Парковка многоуровневая 3600р/мес
КПП Гостевой пропуск
Коммерческие условия
Аренда в год за м2 18 500 ₽
Аренда в месяц 612 042 ₽
Схема сделки прямая аренда
Тип собственника Юридическое лицо

Описание объекта
Предлагаем в аренду офис в бизнес-центре класса В+ в Химках. До метро Планерная предусмотрен бесплатный шаттл.
омещение смешанной планировки, стандартный ремонт (за выездом арендатора), с/у на этаже. В здании установлена приторно-вытяжная вентиляция и центральное кондиционирование.
За дополнительную плату предоставляются места на парковке.
Офис свободен к заезду.

Нужна консультация по подбору помещения под офис?

Наши специалисты подберут для вас самые выгодные варианты для долгосрочного инвестирования,
помогут в сопровождении и сделки, проверят все юридические вопросы касаемо приобретения недвижимости.

* Нажимая на кнопку «Отправить», Вы даете согласие на обработку персональных данных в соответствии с Политикой конфиденциальности

Похожие объекты

Спартак (16 мин. 🚶)
Москва, улица Водников, 2с2
Бизнес-парк "Водники"
Тип: Офисы
Площадь: 422.20 м2
Отделка:выполнена стандартная офисная отделка
554 150 в месяц
15 750 в год за м2
Позвонить Подробнее
Ленинский проспект (10 мин. 🚶)
Москва, улица Орджоникидзе, 11с1А
Бизнес-парк "Оржоникидзе 11" с1А
Тип: Офисы
Площадь: 371.90 м2
Отделка:выполнена стандартная офисная отделка
1 084 708 в месяц
35 000 в год за м2
Позвонить Подробнее
Динамо (5 мин. 🚶)
Москва, Ленинградский проспект, 31Ас1
МФК "МонАрх"
Тип: Офисы
Площадь: 429.50 м2
Отделка:выполнена стандартная офисная отделка
2 270 623 в месяц
63 440 в год за м2
Позвонить Подробнее
Молодёжная (11 мин. 🚗)
Закрытая продажа #59063
Тип: Офисы
Площадь: 412.00 м2
Отделка:качественная отделка
1 100 000 в месяц
32 039 в год за м2
Позвонить Подробнее
Белорусская (4 мин. 🚶)
Москва, 1-я Тверская-Ямская улица, 23с1
Деловой центр "Тверская-Ямская23"
Тип: Офисы
Площадь: 379.10 м2
Отделка:выполнена стандартная офисная отделка
1 010 933 в месяц
32 000 в год за м2
Позвонить Подробнее
Нагатинская (14 мин. 🚶)
Москва, 1-й Нагатинский проезд, 10с1
Бизнес-центр «Ньютон Плаза»
Тип: Офисы
Площадь: 373.00 м2
Отделка:выполнена стандартная офисная отделка
1 150 083 в месяц
37 000 в год за м2
Позвонить Подробнее
Алексеевская (15 мин. 🚶)
Москва, Звёздный бульвар, 23с10
Офисное здание "Звёздный бульвар, 23с10"
Тип: Офисы
Площадь: 361.00 м2
Отделка:выполнена стандартная офисная отделка
613 700 в месяц
20 400 в год за м2
Позвонить Подробнее
Баррикадная (10 мин. 🚶)
Москва, Новинский бульвар, 20Ас3-6
Офисное здание «Новинский 20Ас3-6»
Тип: Офисы
Площадь: 430.00 м2
Отделка:выполнена стандартная офисная отделка
850 000 в месяц
23 721 в год за м2
Позвонить Подробнее
Кантемировская (10 мин. 🚶)
Москва, Кантемировская улица, 58
Бизнес-центр «Коплект»
Тип: Офисы
Площадь: 421.00 м2
Отделка:выполнена стандартная офисная отделка
561 333 в месяц
16 000 в год за м2
Позвонить Подробнее
Павелецкая (2 мин. 🚶)
Москва, Улица Бахрушина, 32с1
Бизнес-центр «Бахрушин Хаус»
Тип: Офисы
Площадь: 424.83 м2
Отделка:выполнена стандартная офисная отделка
2 165 500 в месяц
61 168 в год за м2
Позвонить Подробнее
Цветной бульвар (5 мин. 🚶)
Москва, Цветной бульвар, 30с1
Офисное здание «Цветной 30»
Тип: Офисы
Площадь: 376.00 м2
Отделка:выполнена стандартная офисная отделка
1 222 000 в месяц
39 000 в год за м2
Позвонить Подробнее
Павелецкая (2 мин. 🚶)
Москва, Павелецкая площадь, 2с3
БЦ "Павелецкая Плаза"
Тип: Офисы
Площадь: 362.00 м2
Отделка:выполнена стандартная офисная отделка
2 063 400 в месяц
68 400 в год за м2
Позвонить Подробнее
Бауманская (5 мин. 🚶)
Москва, Посланников переулок, 5с11
БЦ "Посланников переулок 5с11"
Тип: Офисы
Площадь: 289.00 м2
Отделка:выполнена стандартная офисная отделка
481 667 в месяц
20 000 в год за м2
Позвонить Подробнее
Планерная (24 мин. 🚗)
Москва, Химки, улица Панфилова, 19/1
Бизнес-центр «GreenPoint»
Тип: Офисы
Площадь: 480.56 м2
Отделка:выполнена стандартная офисная отделка
740 863 в месяц
18 500 в год за м2
Позвонить Подробнее
Кожуховская (6 мин. 🚶)
Москва, 2-й Южнопортовый проезд, 14/22
Офисно-складской комплекс «Южнопортовый»
Тип: Офисы
Площадь: 2390.00 м2
Отделка:требуется косметический ремонт
3 983 333 в месяц
20 000 в год за м2
Позвонить Подробнее
Кожуховская (6 мин. 🚶)
Москва, 2-й Южнопортовый проезд, 14/22
Офисно-складской комплекс «Южнопортовый»
Тип: Офисы
Площадь: 1410.00 м2
Отделка:требуется косметический ремонт
2 350 000 в месяц
20 000 в год за м2
Позвонить Подробнее
Кожуховская (6 мин. 🚶)
Москва, 2-й Южнопортовый проезд, 14/22
Офисно-складской комплекс «Южнопортовый»
Тип: Офисы
Площадь: 980.00 м2
Отделка:выполнена стандартная офисная отделка
1 633 333 в месяц
20 000 в год за м2
Позвонить Подробнее
Кожуховская (6 мин. 🚶)
Москва, 2-й Южнопортовый проезд, 14/22
Офисно-складской комплекс «Южнопортовый»
Тип: Офисы
Площадь: 560.00 м2
Отделка:требуется косметический ремонт
933 333 в месяц
20 000 в год за м2
Позвонить Подробнее
Кожуховская (6 мин. 🚶)
Москва, 2-й Южнопортовый проезд, 14/22
Офисно-складской комплекс «Южнопортовый»
Тип: Офисы
Площадь: 850.00 м2
Отделка:выполнена стандартная офисная отделка
1 416 667 в месяц
20 000 в год за м2
Позвонить Подробнее
Беговая (10 мин. 🚶)
Москва, 2-й Хорошёвский проезд, 7с1
Офисно-складской комплекс "Красная Пресня" с1
Тип: Офисы
Площадь: 768.50 м2
Отделка:выполнена стандартная офисная отделка
1 152 750 в месяц
18 000 в год за м2
Позвонить Подробнее
Беговая (10 мин. 🚶)
Москва, 2-й Хорошёвский проезд, 7с1
Офисно-складской комплекс "Красная Пресня" с1
Тип: Офисы
Площадь: 532.00 м2
Отделка:выполнена стандартная офисная отделка
798 000 в месяц
18 000 в год за м2
Позвонить Подробнее
Беговая (10 мин. 🚶)
Москва, 2-й Хорошёвский проезд, 7с1
Офисно-складской комплекс "Красная Пресня" с1
Тип: Офисы
Площадь: 716.00 м2
Отделка:выполнена стандартная офисная отделка
1 074 000 в месяц
18 000 в год за м2
Позвонить Подробнее
Речной вокзал (32 мин. 🚗)
Москва, Химки, Ленинградская улица, 25
Бизнес-центр «KHIMKI ONE»
Тип: Офисы
Площадь: 689.93 м2
Отделка:выполнена стандартная офисная отделка
1 121 136 в месяц
19 500 в год за м2
Позвонить Подробнее
Кунцевская (10 мин. 🚗)
Москва, Можайское шоссе, 165
Бизнес-центр «Premium West»
Тип: Офисы
Площадь: 700.00 м2
Отделка:качественная отделка
1 050 000 в месяц
18 000 в год за м2
Позвонить Подробнее
Планерная (24 мин. 🚗)
Москва, Химки, улица Панфилова, 19/1
Бизнес-центр «GreenPoint»
Тип: Офисы
Площадь: 480.56 м2
Отделка:выполнена стандартная офисная отделка
740 863 в месяц
18 500 в год за м2
Позвонить Подробнее
Планерная (24 мин. 🚗)
Москва, Химки, улица Панфилова, 19/1
Бизнес-центр «GreenPoint»
Тип: Офисы
Площадь: 238.50 м2
Отделка:выполнена стандартная офисная отделка
496 875 в месяц
25 000 в год за м2
Позвонить Подробнее
Планерная (25 мин. 🚗)
Москва, Международное шоссе, 28Бс3
Бизнес-центр «Скайпойнт»
Тип: Офисы
Площадь: 1099.60 м2
Отделка:выполнена стандартная офисная отделка
1 392 827 в месяц
15 200 в год за м2
Позвонить Подробнее
Планерная (25 мин. 🚗)
Москва, Международное шоссе, 28Бс3
Бизнес-центр «Скайпойнт»
Тип: Офисы
Площадь: 548.30 м2
Отделка:выполнена стандартная офисная отделка
694 513 в месяц
15 200 в год за м2
Позвонить Подробнее
Планерная (12 мин. 🚗)
Москва, Химки, Ленинградская улица, 39с5
Бизнес-парк «Химки A»
Тип: Офисы
Площадь: 337.50 м2
Отделка:выполнена стандартная офисная отделка
506 250 в месяц
18 000 в год за м2
Позвонить Подробнее
Планерная (12 мин. 🚗)
Москва, Химки, Ленинградская улица, 39с5
Бизнес-парк «Химки A»
Тип: Офисы
Площадь: 1420.30 м2
Отделка:выполнена стандартная офисная отделка
2 130 450 в месяц
18 000 в год за м2
Позвонить Подробнее
Планерная (12 мин. 🚗)
Москва, Химки, Ленинградская улица, 39с5
Бизнес-парк «Химки A»
Тип: Офисы
Площадь: 1300.00 м2
Отделка:выполнена стандартная офисная отделка
1 950 000 в месяц
18 000 в год за м2
Позвонить Подробнее
Планерная (12 мин. 🚗)
Москва, Химки, Ленинградская улица, 39с5
Бизнес-парк «Химки A»
Тип: Офисы
Площадь: 1071.00 м2
Отделка:выполнена стандартная офисная отделка
1 606 500 в месяц
18 000 в год за м2
Позвонить Подробнее
Планерная (12 мин. 🚗)
Москва, Химки, Ленинградская улица, 39с5
Бизнес-парк «Химки A»
Тип: Офисы
Площадь: 734.00 м2
Отделка:выполнена стандартная офисная отделка
1 101 000 в месяц
18 000 в год за м2
Позвонить Подробнее
Планерная (28 мин. 🚗)
Москва, Куркинское шоссе, 2
Бизнес-центр «Aero City»
Тип: Офисы
Площадь: 628.10 м2
Отделка:Shell & Core
688 869 в месяц
13 161 в год за м2
Позвонить Подробнее
Планерная (28 мин. 🚗)
Москва, Куркинское шоссе, 2
Бизнес-центр «Aero City»
Тип: Офисы
Площадь: 431.60 м2
Отделка:Shell & Core
431 025 в месяц
11 984 в год за м2
Позвонить Подробнее
Планерная (28 мин. 🚗)
Москва, Куркинское шоссе, 2
Бизнес-центр «Aero City»
Тип: Офисы
Площадь: 187.30 м2
Отделка:Shell & Core
308 967 в месяц
19 795 в год за м2
Позвонить Подробнее