Аренда индустриальной недвижимости Производственно-складской комплекс ММВЗ

Объект успешно реализован!
Аренда индустриальной недвижимости Производственно-складской комплекс ММВЗ
Москва, Рябиновая улица, 53
Объект успешно реализован, но у нас есть много других интересных предложений. Позвоните по телефону +7 495 230-28-26, либо оставьте заявку на подбор прямо сейчас и получите список подходящих для вас объектов.
загрузка карты...
Аренда в год за м2 23 000 ₽
Аренда в месяц 16 866 667 ₽
Схема сделки прямая аренда
Общие
ID 59846
Тип сделки Аренда
Площадь 8800.00
Площадь всего 56000.00
Тип объекта Складской комплекс
Всего этажей в здании 6
Информация об объекте
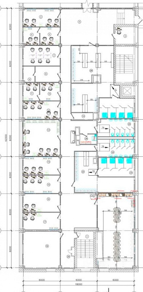
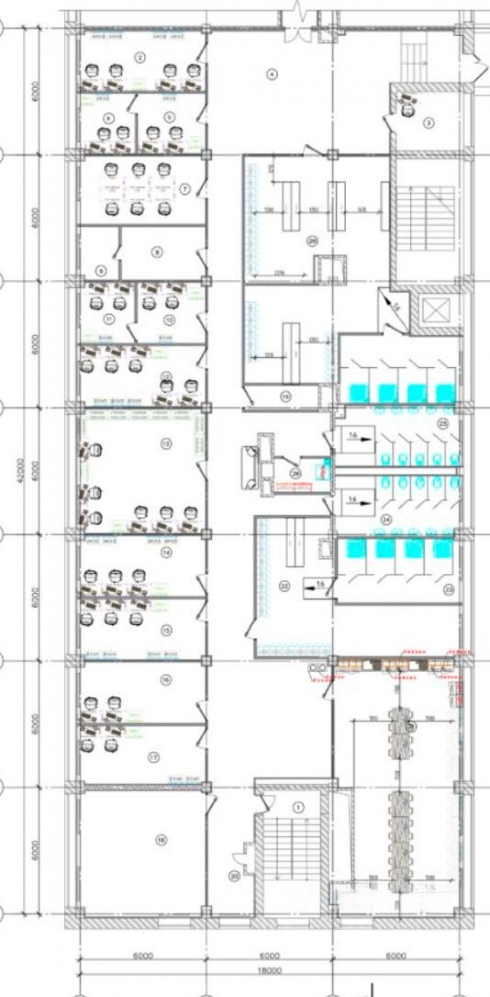
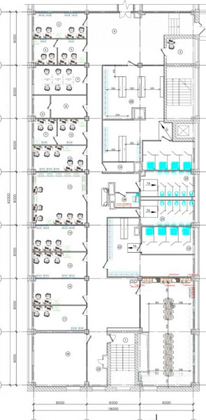
Состояние блока выполнена стандартная офисная отделка
Коммерческие условия
Аренда в год за м2 23 000 ₽
Аренда в месяц 16 866 667 ₽
Схема сделки прямая аренда
Тип собственника Юридическое лицо

Описание объекта
Предлагаем в аренду помещение под производство в Очаково-Матвеевском. Производственно-складской комплекс находится на рябиновой улице, в 5 минутах на машине от станции метро Озерная.
Комплекс занимает территорию 10га, имеет 4 въезда и паковку для грузовых и легковых авто. Есть газовая котельная.
Общая площадь производственного блока 8 000м2. Потолки 5-5,70 м, вытяжная вентиляция, отопление/водоснабжение. Также имеется офисный блок класса В 800 м2 с кабинетами (245 м2), кухней, раздевалками и душевыми. На блок выделяется 6,50 мВт э/э. Для разгрузки есть 8 ворот на нулевой отметке с тепловыми завесами.
Рассматривается любое производство кроме фармацевтики/химической промышленности и тяжелого машиностроения.
В ставку не включена вода и э/э.

Нужна консультация ?

Наши специалисты подберут для вас самые выгодные варианты для долгосрочного инвестирования,
помогут в сопровождении и сделки, проверят все юридические вопросы касаемо приобретения недвижимости.

* Нажимая на кнопку «Отправить», Вы даете согласие на обработку персональных данных в соответствии с Политикой конфиденциальности

Похожие объекты

Пражская (15 мин. 🚗)
Москва, Дорожная улица, 3к19с1
Индустриально-складское здание "Дорожная улица, 3к19с1"
Тип: Индустриальная недвижимость
Площадь: 9139.00 м2
15 231 667 в месяц
20 000 в год за м2
Позвонить Подробнее
Ростокино (6 мин. 🚗)
Москва, улица Красная Сосна, 30с1
Производственно-складкое здание "Красная Сосна 30с1"
Тип: Индустриальная недвижимость
Площадь: 7963.00 м2
7 963 000 в месяц
12 000 в год за м2
Позвонить Подробнее
Мичуринский проспект (6 мин. 🚶)
Москва, улица Лобачевского, 114
Административное здание «Лобачевского 114»
Тип: Индустриальная недвижимость
Площадь: 1064.40 м2
2 022 360 в месяц
22 800 в год за м2
Позвонить Подробнее
Озёрная (15 мин. 🚗)
Москва, Рябиновая улица, 53с2
Производственно-складской комплекс ММВЗ
Тип: Индустриальная недвижимость
Площадь: 3395.00 м2
6 507 083 в месяц
23 000 в год за м2
Позвонить Подробнее
Киевская (15 мин. 🚶)
Москва, Большой Саввинский переулок, 9с2
Бизнес-центр «Машиноаппарат»
Тип: Индустриальная недвижимость
Площадь: 571.50 м2
1 190 625 в месяц
25 000 в год за м2
Позвонить Подробнее
Рассказовка (30 мин. 🚗)
Московская область, Одинцово, Внуковская улица, 15с4
Складской комплекс "Одинцово, Внуковская улица, 15с4"
Тип: Индустриальная недвижимость
Площадь: 1490.00 м2
2 980 000 в месяц
24 000 в год за м2
Позвонить Подробнее
Выхино (19 мин. 🚶)
Москва, Косинская улица, 7
Офисно-производственный комплекс "Косинская улица, 7"
Тип: Индустриальная недвижимость
Площадь: 1036.50 м2
2 100 000 в месяц
24 313 в год за м2
Позвонить Подробнее
Отрадное (8 мин. 🚗)
Москва, Алтуфьевское шоссе, 27Ас1
AFI Пром Алтуфьево
Тип: Индустриальная недвижимость
Площадь: 840.80 м2
1 471 400 в месяц
21 000 в год за м2
Позвонить Подробнее
Отрадное (8 мин. 🚗)
Москва, Алтуфьевское шоссе, 27Ас1
AFI Пром Алтуфьево
Тип: Индустриальная недвижимость
Площадь: 1053.40 м2
1 843 450 в месяц
21 000 в год за м2
Позвонить Подробнее
Отрадное (8 мин. 🚗)
Москва, Алтуфьевское шоссе, 27Ас1
AFI Пром Алтуфьево
Тип: Индустриальная недвижимость
Площадь: 1196.60 м2
2 094 050 в месяц
21 000 в год за м2
Позвонить Подробнее
Отрадное (8 мин. 🚗)
Москва, Алтуфьевское шоссе, 27Ас1
AFI Пром Алтуфьево
Тип: Индустриальная недвижимость
Площадь: 2076.80 м2
3 634 400 в месяц
21 000 в год за м2
Позвонить Подробнее
Отрадное (8 мин. 🚗)
Москва, Алтуфьевское шоссе, 27Ас1
AFI Пром Алтуфьево
Тип: Индустриальная недвижимость
Площадь: 907.90 м2
1 740 142 в месяц
23 000 в год за м2
Позвонить Подробнее
Отрадное (8 мин. 🚗)
Москва, Алтуфьевское шоссе, 27Ас1
AFI Пром Алтуфьево
Тип: Индустриальная недвижимость
Площадь: 840.00 м2
1 610 000 в месяц
23 000 в год за м2
Позвонить Подробнее
Отрадное (8 мин. 🚗)
Москва, Алтуфьевское шоссе, 27Ас1
AFI Пром Алтуфьево
Тип: Индустриальная недвижимость
Площадь: 1190.70 м2
2 282 175 в месяц
23 000 в год за м2
Позвонить Подробнее
Озёрная (15 мин. 🚗)
Москва, Рябиновая улица, 53с2
Производственно-складской комплекс ММВЗ
Тип: Индустриальная недвижимость
Площадь: 3395.00 м2
6 507 083 в месяц
23 000 в год за м2
Позвонить Подробнее
Озёрная (7 мин. 🚗)
Москва, Рябиновая улица, 44
Парк Рябиновая
Тип: Индустриальная недвижимость
Площадь: 3040.00 м2
5 066 667 в месяц
20 000 в год за м2
Позвонить Подробнее
Озёрная (7 мин. 🚗)
Москва, Рябиновая улица, 44
Парк Рябиновая
Тип: Индустриальная недвижимость
Площадь: 2000.00 м2
3 333 333 в месяц
20 000 в год за м2
Позвонить Подробнее