Аренда торгового помещения ЖК Дом Газпрома

Объект успешно реализован!
Аренда торгового помещения ЖК Дом Газпрома Аренда торгового помещения ЖК Дом Газпрома Аренда торгового помещения ЖК Дом Газпрома
Аренда торгового помещения ЖК Дом Газпрома - превью Аренда торгового помещения ЖК Дом Газпрома - превью Аренда торгового помещения ЖК Дом Газпрома - превью
Москва, Новочерёмушкинская улица, 71/32
Объект успешно реализован, но у нас есть много других интересных предложений. Позвоните по телефону +7 495 230-28-26, либо оставьте заявку на подбор прямо сейчас и получите список подходящих для вас объектов.
загрузка карты...
Аренда в год за м2 24 000 ₽
Аренда в месяц 1 598 200 ₽
Схема сделки прямая аренда
Первушина Марина Алексеевна

Объект ведет консультант:

Первушина Марина Алексеевна

Общие
ID 59857
Тип сделки Аренда
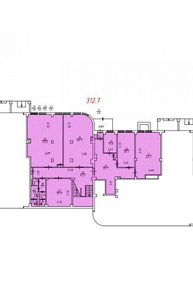
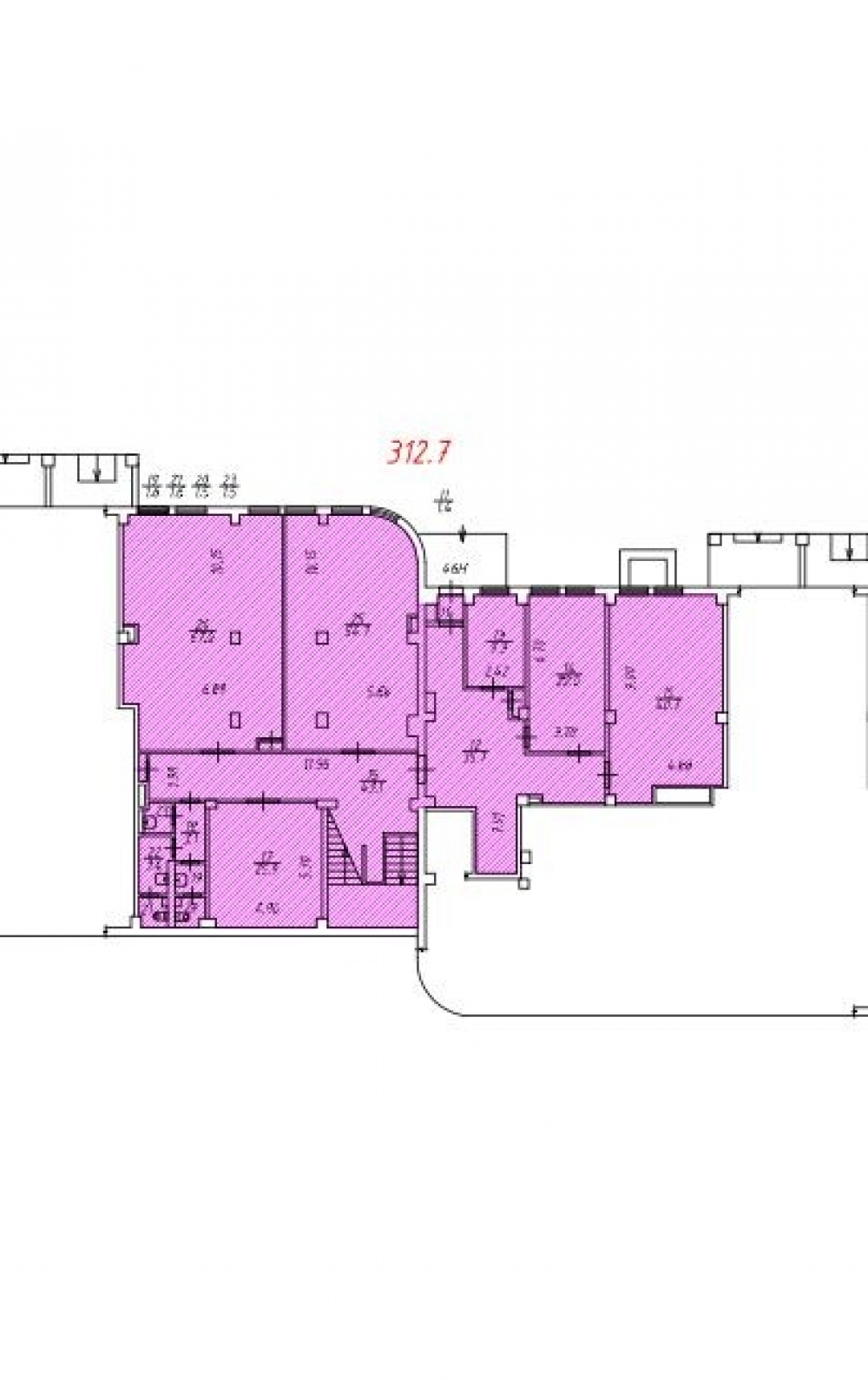
Площадь 799.10
Площадь всего 45992.00
Тип объекта Жилой комплекс
Этаж 1 - 2
Всего этажей в здании 21
Метраж по этажам
Этаж: 1 - 312.7 м2
Этаж: 2 - 486.4 м2
Информация об объекте
Состояние объекта рабочее
Состояние блока выполнена стандартная офисная отделка
Планировка Залы и кабинеты
Перекрытия Железобетонные
Нюансы Отдельный вход,ПСН
Торговая недвижимость
Линия домов 1 линия
Возможности Витрины,Место для рекламы,Проходное место,Проездное место
Электр. мощность (кВт) 60
Коммерческие условия
Аренда в год за м2 24 000 ₽
Аренда в месяц 1 598 200 ₽
Схема сделки прямая аренда
Тип собственника Юридическое лицо

Описание объекта
Предлагаем в аренду помещение под офис/медицину в ЮЗАО. Стилобат ЖК Дом Газпрома. До м. Калужская 15 минут пешком. Двухуровневый блок с отдельным входом со двора, кабинетная планировка, много окон, ремонт необходимо освежить, выделенная мощность 60квт. Помещение свободно к заезду.

Нужна консультация по подбору торговых площадей для аренды?

Наши специалисты подберут для вас самые выгодные варианты для долгосрочного инвестирования,
помогут в сопровождении и сделки, проверят все юридические вопросы касаемо приобретения недвижимости.

* Нажимая на кнопку «Отправить», Вы даете согласие на обработку персональных данных в соответствии с Политикой конфиденциальности

Похожие объекты

Ховрино (29 мин. 🚶)
Московская область, Химки, микрорайон Подрезково, квартал Филино, 143
ПСК "Молжаниново"
Тип: Торговое помещение
Площадь: 728.50 м2
Мощность:150 кВт
1 165 600 в месяц
19 200 в год за м2
Позвонить Подробнее
Тверская (5 мин. 🚶)
Москва, Тверская улица, 22
Бизнес-центр «Саммит»
Тип: Торговое помещение
Площадь: 831.50 м2
Мощность:82 кВт
8 453 583 в месяц
122 000 в год за м2
Позвонить Подробнее
Марьино (15 мин. 🚶)
Москва, улица Перерва, 11с1
Технопарк "Перерва"
Тип: Торговое помещение
Площадь: 796.20 м2
1 459 700 в месяц
22 000 в год за м2
Позвонить Подробнее
Кунцевская (10 мин. 🚶)
Москва, Молдавская улица, 1с8
Бизнес-центр "Upside Кунцево"
Тип: Торговое помещение
Площадь: 735.00 м2
Мощность:150 кВт
1 102 650 в месяц
18 002 в год за м2
Позвонить Подробнее
Технопарк (5 мин. 🚶)
Москва, проспект Лихачёва, 8
Бизнес-Центр "Тесла"
Тип: Торговое помещение
Площадь: 720.00 м2
Мощность:100 кВт
3 888 000 в месяц
64 800 в год за м2
Позвонить Подробнее
Ул. Горчакова (13 мин. 🚶)
Москва, Чечёрский проезд, вл22
ОСЗ "Чечёрский пр-д вл. 22"
Тип: Торговое помещение
Площадь: 850.00 м2
Мощность:200 кВт
2 550 000 в месяц
36 000 в год за м2
Позвонить Подробнее
Краснопресненская (5 мин. 🚶)
Москва, улица Красная Пресня, 12
Жилой дом " Красная Пресня 12"
Тип: Торговое помещение
Площадь: 754.50 м2
2 950 000 в месяц
46 918 в год за м2
Позвонить Подробнее
Баррикадная (1 мин. 🚶)
Москва, Кудринская площадь, 1
Жилое здание "Кудринская площадь, 1"
Тип: Торговое помещение
Площадь: 830.70 м2
2 416 000 в месяц
34 901 в год за м2
Позвонить Подробнее
Бауманская (2 мин. 🚶)
Москва, Бауманская улица, 32с2
Бизнес-центр «Елоховский пассаж»
Тип: Торговое помещение
Площадь: 752.70 м2
1 500 000 в месяц
23 914 в год за м2
Позвонить Подробнее
Баррикадная (1 мин. 🚶)
Москва, Кудринская площадь, 1
Жилое здание "Кудринская площадь, 1"
Тип: Торговое помещение
Площадь: 831.00 м2
Мощность:200 кВт
2 450 000 в месяц
35 379 в год за м2
Позвонить Подробнее
Пролетарская (13 мин. 🚶)
Москва, Волгоградский проспект, 15
Жилое здание "Волгоградский пр-т 15"
Тип: Торговое помещение
Площадь: 753.60 м2
Мощность:162 кВт
1 884 000 в месяц
30 000 в год за м2
Позвонить Подробнее
Марьина Роща (11 мин. 🚶)
Москва, улица Сущёвский Вал, 18А
ОСЗ "Сущёвский Вал, 18А"
Тип: Торговое помещение
Площадь: 794.00 м2
Мощность:150 кВт
2 400 000 в месяц
36 272 в год за м2
Позвонить Подробнее
(9 мин. 🚶)
Москва, улица Хромова, 40
Особняк "улица Хромова, 40"
Тип: Торговое помещение
Площадь: 290.00 м2
Мощность:30 кВт
580 000 в месяц
24 000 в год за м2
Позвонить Подробнее
Комсомольская (2 мин. 🚶)
Москва, Комсомольская площадь, 6
Универмаг Московсий
Тип: Торговое помещение
Площадь: 250.00 м2
Мощность:50 кВт
500 000 в месяц
24 000 в год за м2
Позвонить Подробнее
Профсоюзная (5 мин. 🚶)
Москва, Профсоюзная улица, 25А
Профсоюзная улица, 25А
Тип: Торговое помещение
Площадь: 308.90 м2
Мощность:170 кВт
643 542 в месяц
25 000 в год за м2
Позвонить Подробнее
Жулебино (3 мин. 🚶)
Москва, улица Авиаконструктора Миля, 7
Жилой Дом
Тип: Торговое помещение
Площадь: 683.00 м2
Мощность:50 кВт
1 400 000 в месяц
24 597 в год за м2
Позвонить Подробнее
Марьино (15 мин. 🚶)
Москва, улица Перерва, 11с1
Технопарк "Перерва"
Тип: Торговое помещение
Площадь: 796.20 м2
1 459 700 в месяц
22 000 в год за м2
Позвонить Подробнее
Свиблово (40 мин. 🚗)
Московская область, городской округ Мытищи, деревня Пирогово, улица Ильинского, 8
ЖК "Пироговская Ривьера»
Тип: Торговое помещение
Площадь: 152.20 м2
Мощность:10 кВт
300 060 в месяц
23 658 в год за м2
Позвонить Подробнее
Технопарк (10 мин. 🚶)
Москва, проспект Андропова, 11к2
Деловой квартал "ЮПорт"
Тип: Торговое помещение
Площадь: 2906.00 м2
6 054 167 в месяц
25 000 в год за м2
Позвонить Подробнее
Коммунарка (13 мин. 🚗)
Москва, Новомосковский административный округ, район Коммунарка, проспект Куприна, 3к2
ЖК "Скандинавия"
Тип: Торговое помещение
Площадь: 99.30 м2
Мощность:36 кВт
198 600 в месяц
24 000 в год за м2
Позвонить Подробнее
Семёновская (4 мин. 🚶)
Москва, Малая Семёновская улица, 30
Бизнес - центр «Малая Семеновская 30с1»
Тип: Торговое помещение
Площадь: 542.40 м2
Мощность:100 кВт
993 667 в месяц
21 984 в год за м2
Позвонить Подробнее
Бибирево (9 мин. 🚶)
Москва, Бибиревская улица, 4А
ЖК "БАРБАРИС"
Тип: Торговое помещение
Площадь: 104.00 м2
Мощность:22 кВт
220 000 в месяц
25 385 в год за м2
Позвонить Подробнее
Марьина Роща (13 мин. 🚶)
Москва, Улица Сущёвский Вал, 16с1
Бизнес-парк «Минаевский»
Тип: Торговое помещение
Площадь: 284.00 м2
Мощность:50 кВт
600 000 в месяц
25 352 в год за м2
Позвонить Подробнее
Бибирево (13 мин. 🚶)
Москва, Улица Пришвина, 8
Бизнес-центр "РТС Алтуфьевский"
Тип: Торговое помещение
Площадь: 212.20 м2
Мощность:80 кВт
450 000 в месяц
25 448 в год за м2
Позвонить Подробнее
Калужская (15 мин. 🚶)
Москва, Новочерёмушкинская улица, 71/32
ЖК Дом Газпрома
Тип: Торговое помещение
Площадь: 410.20 м2
Мощность:60 кВт
820 400 в месяц
24 000 в год за м2
Позвонить Подробнее