Аренда офиса Офисно-складской комплекс "Южнопортовый"

Объект успешно реализован!
Аренда офиса Офисно-складской комплекс
Москва, 2-й Южнопортовый проезд, 20Ас4
Объект успешно реализован, но у нас есть много других интересных предложений. Позвоните по телефону +7 495 230-28-26, либо оставьте заявку на подбор прямо сейчас и получите список подходящих для вас объектов.
загрузка карты...
Аренда в год за м2 32 000 ₽
Аренда в месяц 6 133 333 ₽
Схема сделки прямая аренда
Первушина Марина Алексеевна

Объект ведет консультант:

Первушина Марина Алексеевна

Общие
ID 59859
Тип сделки Аренда
Площадь 2300.00
Тип объекта Бизнес-центр
Класс здания B
Этаж 2
Всего этажей в здании 6
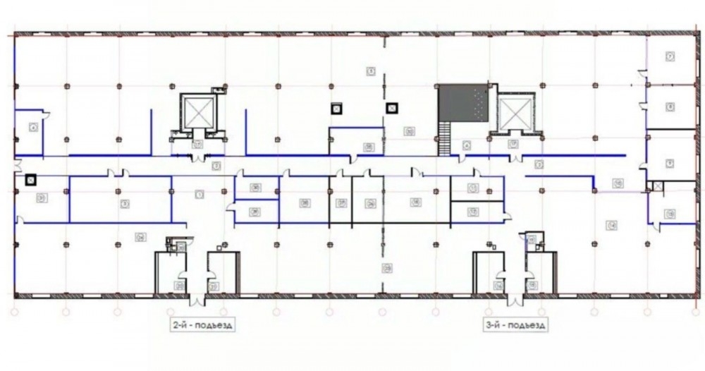
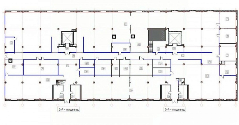
Метраж по этажам
Информация об объекте
Состояние объекта рабочее
Состояние блока отделка в стиле Loft
Планировка Смешанная
Коммуникации Система видеонаблюдения,Интернет,Телефония
Перекрытия Железобетонные
КПП Гостевой пропуск
Коммерческие условия
Аренда в год за м2 32 000 ₽
Аренда в месяц 6 133 333 ₽
Схема сделки прямая аренда
Тип собственника Юридическое лицо

Описание объекта
Предлагаем в аренду офис в бизнес-центре класса В в пешей доступности от м. Кожуховская.
Смешанная планировка, ремонт в стиле лофт, свои с/у. В БЦ пропускной режим, приточная вентиляция, центрально кондиционирование, наземная парковка. В ставку включена эксплуатация.
За дополнительную плату предоставляются места на наземной парковке.
Офис доступен к заезду с 1 января 2026 года.

Нужна консультация по подбору помещения под офис?

Наши специалисты подберут для вас самые выгодные варианты для долгосрочного инвестирования,
помогут в сопровождении и сделки, проверят все юридические вопросы касаемо приобретения недвижимости.

* Нажимая на кнопку «Отправить», Вы даете согласие на обработку персональных данных в соответствии с Политикой конфиденциальности

Похожие объекты

Отрадное (10 мин. 🚶)
Москва, Отрадная улица, 2Бс6
Технопарк «Отрадное»
Тип: Офисы
Площадь: 2378.31 м2
Отделка:выполнена стандартная офисная отделка
6 659 268 в месяц
33 600 в год за м2
Позвонить Подробнее
Савёловская (5 мин. 🚶)
Москва, Улица Правды, 26
Бизнес-центр «Северное сияние»
Тип: Офисы
Площадь: 2279.00 м2
Отделка:выполнена стандартная офисная отделка
10 255 500 в месяц
54 000 в год за м2
Позвонить Подробнее
Савёловская (12 мин. 🚶)
Москва, Вятская улица, 35с4
Бизнес-центр «Вятка»
Тип: Офисы
Площадь: 2136.00 м2
Отделка:выполнена стандартная офисная отделка
7 057 700 в месяц
39 650 в год за м2
Позвонить Подробнее
Кожуховская (6 мин. 🚶)
Москва, 2-й Южнопортовый проезд, 14/22
Офисно-складской комплекс «Южнопортовый»
Тип: Офисы
Площадь: 2500.00 м2
Отделка:требуется косметический ремонт
4 166 667 в месяц
20 000 в год за м2
Позвонить Подробнее
Аэропорт (8 мин. 🚶)
Москва, Улица 8 Марта, 14
Бизнес-центр «Кулон»
Тип: Офисы
Площадь: 2343.00 м2
Отделка:качественная отделка
6 431 535 в месяц
32 940 в год за м2
Позвонить Подробнее
Добрынинская (2 мин. 🚶)
Москва, Валовая улица, 35
Бизнес-центр «Wall Street»
Тип: Офисы
Площадь: 2245.00 м2
Отделка:выполнена высококачественная отделка
10 850 833 в месяц
58 000 в год за м2
Позвонить Подробнее
Профсоюзная (10 мин. 🚶)
Москва, Нахимовский проспект, 58
Бизнес-центр «iCube»
Тип: Офисы
Площадь: 2084.00 м2
Отделка:качественная отделка
9 169 600 в месяц
52 800 в год за м2
Позвонить Подробнее
Саларьево (18 мин. 🚗)
Москва, Новомосковский и Троицкий округа города Москвы
Бизнес-парк «Neopolis»
Тип: Офисы
Площадь: 2120.00 м2
Отделка:Shell and Core
2 826 667 в месяц
16 000 в год за м2
Позвонить Подробнее
(1 мин. 🚶)
Москва, Преображенская площадь, 8
Бизнес-центр «Прео 8»
Тип: Офисы
Площадь: 2265.00 м2
Отделка:Shell and Core
5 096 250 в месяц
27 000 в год за м2
Позвонить Подробнее
Сухаревская (3 мин. 🚶)
Москва, Сретенский тупик, 4
Бизнес-центр «Сретенский 4»
Тип: Офисы
Площадь: 2117.70 м2
5 647 200 в месяц
32 000 в год за м2
Позвонить Подробнее
Панфиловская (15 мин. 🚶)
Москва, 1-й Волоколамский проезд, 10
Бизнес-центр «Диапазон»
Тип: Офисы
Площадь: 2478.00 м2
Отделка:выполнена стандартная офисная отделка
6 442 800 в месяц
31 200 в год за м2
Позвонить Подробнее
Тульская (7 мин. 🚶)
Москва, Городская улица, 8
Офисное здание "Городская ул., 8"
Тип: Офисы
Площадь: 2250.00 м2
Отделка:выполнена стандартная офисная отделка
4 725 000 в месяц
25 200 в год за м2
Позвонить Подробнее
Отрадное (10 мин. 🚶)
Москва, Отрадная улица, 2Бс6
Технопарк «Отрадное»
Тип: Офисы
Площадь: 2378.31 м2
Отделка:выполнена стандартная офисная отделка
6 659 268 в месяц
33 600 в год за м2
Позвонить Подробнее
Нагатинская (10 мин. 🚗)
Москва, Каширское шоссе, 3к2с1
Бизнес-парк «Сириус Парк»
Тип: Офисы
Площадь: 2825.00 м2
Отделка:выполнена стандартная офисная отделка
7 356 771 в месяц
31 250 в год за м2
Позвонить Подробнее
Павелецкая (16 мин. 🚗)
Москва, 1-й Дербеневский переулок, 5
Бизнес-центр «Дербеневская Плаза»
Тип: Офисы
Площадь: 1432.00 м2
Отделка:выполнена стандартная офисная отделка
4 176 667 в месяц
35 000 в год за м2
Позвонить Подробнее
(10 мин. 🚶)
Москва, Электрозаводская улица, 27с1
Деловой-центр «ЛеФорт»
Тип: Офисы
Площадь: 8300.00 м2
Отделка:выполнена стандартная офисная отделка
20 673 917 в месяц
29 890 в год за м2
Позвонить Подробнее
Павелецкая (16 мин. 🚗)
Москва, 1-й Дербеневский переулок, 5
Бизнес-центр «Дербеневская Плаза»
Тип: Офисы
Площадь: 415.20 м2
Отделка:выполнена стандартная офисная отделка
1 159 100 в месяц
33 500 в год за м2
Позвонить Подробнее
Павелецкая (16 мин. 🚗)
Москва, 1-й Дербеневский переулок, 5
Бизнес-центр «Дербеневская Плаза»
Тип: Офисы
Площадь: 442.50 м2
Отделка:выполнена стандартная офисная отделка
1 235 313 в месяц
33 500 в год за м2
Позвонить Подробнее
Достоевская (10 мин. 🚶)
Москва, улица Образцова, 4с1
Бизнес-центр "улица Образцова, 4с1"
Тип: Офисы
Площадь: 1046.00 м2
Отделка:выполнена стандартная офисная отделка
2 800 000 в месяц
32 122 в год за м2
Позвонить Подробнее
Достоевская (7 мин. 🚶)
Москва, улица Образцова, 4А
Улица Образцова, 4А
Тип: Офисы
Площадь: 298.70 м2
Отделка:выполнена стандартная офисная отделка
871 208 в месяц
35 000 в год за м2
Позвонить Подробнее
Бауманская (8 мин. 🚶)
Москва, Бауманская улица, 58/25к12с2
Особняк «Бауманская 58/25к12 с2»
Тип: Офисы
Площадь: 866.10 м2
Отделка:выполнена стандартная офисная отделка
2 237 425 в месяц
31 000 в год за м2
Позвонить Подробнее
Нагатинская (7 мин. 🚶)
Москва, Варшавское шоссе, 26
БЦ "Варшавская плаза"
Тип: Офисы
Площадь: 1500.00 м2
Отделка:выполнена стандартная офисная отделка
3 750 000 в месяц
30 000 в год за м2
Позвонить Подробнее
Молодёжная (11 мин. 🚗)
Закрытая продажа #59063
Тип: Офисы
Площадь: 412.00 м2
Отделка:качественная отделка
1 050 000 в месяц
30 583 в год за м2
Позвонить Подробнее
Отрадное (10 мин. 🚶)
Москва, Отрадная улица, 2Бс6
Технопарк «Отрадное»
Тип: Офисы
Площадь: 393.30 м2
Отделка:выполнена стандартная офисная отделка
1 068 465 в месяц
32 600 в год за м2
Позвонить Подробнее
Кожуховская (6 мин. 🚶)
Москва, 2-й Южнопортовый проезд, 14/22
Офисно-складской комплекс «Южнопортовый»
Тип: Офисы
Площадь: 2500.00 м2
Отделка:требуется косметический ремонт
4 166 667 в месяц
20 000 в год за м2
Позвонить Подробнее
Кожуховская (6 мин. 🚶)
Москва, 2-й Южнопортовый проезд, 14/22
Офисно-складской комплекс «Южнопортовый»
Тип: Офисы
Площадь: 1520.00 м2
Отделка:требуется косметический ремонт
2 533 333 в месяц
20 000 в год за м2
Позвонить Подробнее
Кожуховская (6 мин. 🚶)
Москва, 2-й Южнопортовый проезд, 14/22
Офисно-складской комплекс «Южнопортовый»
Тип: Офисы
Площадь: 980.00 м2
Отделка:выполнена стандартная офисная отделка
1 633 333 в месяц
20 000 в год за м2
Позвонить Подробнее
Кожуховская (6 мин. 🚶)
Москва, 2-й Южнопортовый проезд, 14/22
Офисно-складской комплекс «Южнопортовый»
Тип: Офисы
Площадь: 670.00 м2
Отделка:требуется косметический ремонт
1 116 667 в месяц
20 000 в год за м2
Позвонить Подробнее
Кожуховская (6 мин. 🚶)
Москва, 2-й Южнопортовый проезд, 14/22
Офисно-складской комплекс «Южнопортовый»
Тип: Офисы
Площадь: 850.00 м2
Отделка:выполнена стандартная офисная отделка
1 416 667 в месяц
20 000 в год за м2
Позвонить Подробнее