Продажа торгового помещения STONE SOKOLNIKI

Продажа торгового помещения STONE SOKOLNIKI Продажа торгового помещения STONE SOKOLNIKI Продажа торгового помещения STONE SOKOLNIKI Продажа торгового помещения STONE SOKOLNIKI
Продажа торгового помещения STONE SOKOLNIKI - превью Продажа торгового помещения STONE SOKOLNIKI - превью Продажа торгового помещения STONE SOKOLNIKI - превью Продажа торгового помещения STONE SOKOLNIKI - превью
Москва, улица Гастелло, 30
Позвоните по телефону +7 495 230-28-26, либо оставьте заявку на просмотр прямо сейчас и узнайте условия специального предложения по объекту.
загрузка карты...
Общие
ID 60246
Тип сделки Продажа
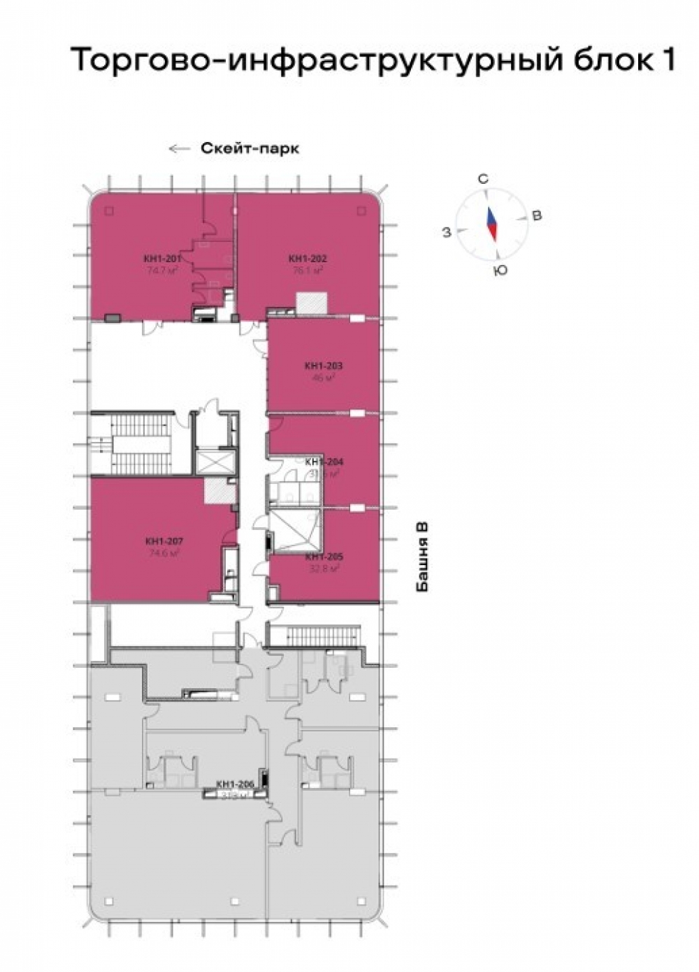
Площадь 46.00
Площадь всего 65000.00
Тип объекта Жилой комплекс
Класс здания A
Этаж 2
Всего этажей в здании 33
Метраж по этажам
Информация об объекте
Состояние объекта новое строительство
Состояние блока Shell and Core
Планировка Открытая
Перекрытия Железобетонные
Нюансы Отдельный вход
Новостройка Новостройка
Торговая недвижимость
Линия домов 1 линия
Возможности Витрины,Место для рекламы,Проходное место,Проездное место
Электр. мощность (кВт) 12
Коммерческие условия
За все 27 094 000 ₽
За м 2 589 000 ₽
Тип собственника Юридическое лицо

Описание объекта
Продажа помещения свободного назначения в новом ЖК бизнес-класса SOKOLNIKI, Торгово-инфраструктурный блок 1, по адресу: ВАО, Москва, ул. Гастелло, 30, площадью 46 кв.м. В пешей доступности находятся две станции метро — «Сокольники» и «Электрозаводская». Удобный выезд на ТТК, шоссе Энтузиастов и Садовое кольцо.

ЖК состоит из 3 башен высотой 24, 28 и 33 этажа. Включает в себя 763 квартиры (2 289 жителей) с чистовой и дизайнерской отделкой (быстрое заселение). В радиусе 10-15 минутной пешей доступности проживает 12 600 человек (по данным ЦПИ).

Ввод в эксплуатацию 1-й квартал 2027 года.

Технические характеристики :
2 этаж 2-х этажного торгово-инфраструктурного комплекса номер 2, площадью 46 кв.м.
Свободная планировка, высота потолков 5 м, витринное остекление, место для размещения вывески, индивидуальный вход, мокрая точка в помещении, безбарьерный доступ, мультизональные системы VRF кондиционирования (с большей точностью поддерживает заданную температуру в помещении, чем обычный кондиционер), приточно-вытяжная система вентиляции, внутрипольные конвекторы.

Коммерческие условия:
Беспроцентная рассрочка:
Первоначальный взнос от 20%,
Отсутствие переплат (нет % на остаток),
Срок действия рассрочки – до окончания строительства.

Наша оценка
Локация
Цена
Техническое оснащение
Состояние
Метраж
Общая оценка 5

Нужна консультация покупке или продаже торговых помещений?

Наши специалисты подберут для вас самые выгодные варианты для долгосрочного инвестирования,
помогут в сопровождении и сделки, проверят все юридические вопросы касаемо приобретения недвижимости.

* Нажимая на кнопку «Отправить», Вы даете согласие на обработку персональных данных в соответствии с Политикой конфиденциальности

Похожие объекты

Академическая (7 мин. 🚶)
Москва, улица Дмитрия Ульянова, 10/1к1
Жилое здание "улица Дмитрия Ульянова, 10/1к1"
Тип: Торговое помещение
Площадь: 44.10 м2
36 540 000 за все
828 571 за м2
Позвонить Подробнее
Сокол Сокольники Соколиная Гора (3 мин. 🚶)
Москва, Ленинградский проспект, 69с1
Жилое здание "Ленинградский пр-т 69"
Тип: Торговое помещение
Площадь: 50.00 м2
Мощность:100 кВт
15 000 000 за все
300 000 за м2
Позвонить Подробнее
Комсомольская (5 мин. 🚶)
Москва, Новорязанская улица, 22/14
Жилое здание "Новорязанская улица, 22/14"
Тип: Торговое помещение
Площадь: 43.00 м2
28 000 000 за все
651 163 за м2
Позвонить Подробнее
Октябрьское Поле (1 мин. 🚶)
Москва, улица Маршала Бирюзова, 16
Жилое здание
Тип: Торговое помещение
Площадь: 43.60 м2
98 000 000 за все
2 247 706 за м2
Позвонить Подробнее
Сокольники (10 мин. 🚶)
Москва, улица Гастелло, 30
STONE SOKOLNIKI
Тип: Торговое помещение
Площадь: 43.10 м2
Мощность:10 кВт
28 144 300 за все
653 000 за м2
Позвонить Подробнее
Электрозаводская (1 мин. 🚶)
Москва, Большая Семёновская улица, 23А
Административное Здание
Тип: Торговое помещение
Площадь: 50.00 м2
Мощность:15 кВт
33 000 000 за все
660 000 за м2
Позвонить Подробнее
Перово (6 мин. 🚶)
Москва, 3-я Владимирская улица, 23
ЖК "3-я Владимирская улица, 23"
Тип: Торговое помещение
Площадь: 46.60 м2
35 000 000 за все
751 073 за м2
Позвонить Подробнее
Новослободская (3 мин. 🚶)
Москва, Долгоруковская улица, 27с1
Долгоруковская улица, 27с1
Тип: Торговое помещение
Площадь: 47.20 м2
Мощность:15 кВт
35 400 000 за все
750 000 за м2
Позвонить Подробнее
Щёлковская (14 мин. 🚗)
Москва, Монтажная улица, вл8/24
ЖК "1-й Измайловский"
Тип: Торговое помещение
Площадь: 49.10 м2
Мощность:10 кВт
23 236 820 за все
473 255 за м2
Позвонить Подробнее
Борисово (7 мин. 🚗)
Москва, улица Борисовские Пруды, 1
ЖК "Вейв"
Тип: Торговое помещение
Площадь: 42.80 м2
34 160 434 за все
798 141 за м2
Позвонить Подробнее
Озёрная (3 мин. 🚶)
Москва, Озёрная улица, 42с2
ЖК "Страна Озёрная"
Тип: Торговое помещение
Площадь: 48.30 м2
25 010 000 за все
517 805 за м2
Позвонить Подробнее
(6 мин. 🚶)
Москва, улица Народного Ополчения, 15к3
ЖК "Wellton Towers"
Тип: Торговое помещение
Площадь: 44.20 м2
Мощность:10 кВт
13 923 000 за все
315 000 за м2
Позвонить Подробнее
Бауманская (9 мин. 🚶)
Москва, Доброслободская улица, 7/1
Особняк «Доброслободская 7/1»
Тип: Торговое помещение
Площадь: 81.80 м2
Мощность:50 кВт
26 000 000 за все
317 848 за м2
Позвонить Подробнее
Шаболовская
Москва, улица Лестева, 21/61к1
Жилое здание "Лестева ул., д. 21/61 корпус 1"
Тип: Торговое помещение
Площадь: 558.50 м2
29 500 000 за все
52 820 за м2
Позвонить Подробнее
Медведково (30 мин. 🚗)
Московская область, Мытищи, 1-й Стрелковый переулок, 5
ЖК "Мытищи Парк"5
Тип: Торговое помещение
Площадь: 135.40 м2
29 517 000 за все
217 999 за м2
Позвонить Подробнее
Стрешнево (12 мин. 🚶)
Москва, Большой Волоколамский проезд, 23
ЖК «Комплекс апартаментов Baires (Байрес)»
Тип: Торговое помещение
Площадь: 67.40 м2
Мощность:15 кВт
25 000 000 за все
370 920 за м2
Позвонить Подробнее
Комсомольская (5 мин. 🚶)
Москва, Новорязанская улица, 22/14
Жилое здание "Новорязанская улица, 22/14"
Тип: Торговое помещение
Площадь: 43.00 м2
28 000 000 за все
651 163 за м2
Позвонить Подробнее
Тёплый стан (15 мин. 🚗)
Москва, Новомосковский административный округ, посёлок Коммунарка, улица Александры Монаховой, 80к3
Александры Монаховой 80к3
Тип: Торговое помещение
Площадь: 123.00 м2
Мощность:15 кВт
25 500 000 за все
207 317 за м2
Позвонить Подробнее
Сокольники (10 мин. 🚶)
Москва, улица Гастелло, 30
STONE SOKOLNIKI
Тип: Торговое помещение
Площадь: 43.10 м2
Мощность:10 кВт
28 144 300 за все
653 000 за м2
Позвонить Подробнее
Коммунарка (12 мин. 🚗)
Москва, Новомосковский административный округ, район Коммунарка, квартал № 160, 1Вк1
ЖК "Дзен кварталы"
Тип: Торговое помещение
Площадь: 66.50 м2
Мощность:40 кВт
28 000 000 за все
421 053 за м2
Позвонить Подробнее
Медведково (30 мин. 🚗)
Московская область, Мытищи, улица Стрельбище Динамо, 10
ЖК "Мытищи Парк"
Тип: Торговое помещение
Площадь: 94.40 м2
Мощность:31 кВт
28 500 000 за все
301 907 за м2
Позвонить Подробнее
Окружная (10 мин. 🚗)
Москва, Алтуфьевское шоссе, 35к1
МФК "HALO (ГАЛО)"
Тип: Торговое помещение
Площадь: 154.10 м2
26 197 000 за все
170 000 за м2
Позвонить Подробнее
Бутырская (10 мин. 🚶)
Москва, 17-й проезд Марьиной Рощи, 9
БЦ EDEL
Тип: Торговое помещение
Площадь: 62.40 м2
Мощность:160 кВт
24 960 000 за все
400 000 за м2
Позвонить Подробнее
Университет (15 мин. 🚶)
Москва, Ленинский проспект, 81/2
Жилое здание "Ленинский проспект, 81/2"
Тип: Торговое помещение
Площадь: 18.60 м2
28 000 000 за все
1 505 376 за м2
Позвонить Подробнее
Сокол Сокольники Соколиная Гора (3 мин. 🚶)
Москва, Ленинградский проспект, 69с1
Жилое здание "Ленинградский пр-т 69"
Тип: Торговое помещение
Площадь: 50.00 м2
Мощность:100 кВт
15 000 000 за все
300 000 за м2
Позвонить Подробнее
Сокол Сокольники Соколиная Гора (3 мин. 🚶)
Москва, Ленинградский проспект, 69с1
Жилое здание "Ленинградский пр-т 69"
Тип: Торговое помещение
Площадь: 250.00 м2
Мощность:100 кВт
59 000 000 за все
236 000 за м2
Позвонить Подробнее
Сокол Сокольники Соколиная Гора (3 мин. 🚶)
Москва, Ленинградский проспект, 69с1
Жилое здание "Ленинградский пр-т 69"
Тип: Торговое помещение
Площадь: 300.00 м2
Мощность:100 кВт
73 000 000 за все
243 333 за м2
Позвонить Подробнее
Сокол Сокольники Соколиная Гора (19 мин. 🚗)
Москва, Волоколамское шоссе, 1с1
Офисное здание «Проектный институт»
Тип: Торговое помещение
Площадь: 33.70 м2
Мощность:25 кВт
33 363 001 за все
990 000 за м2
Позвонить Подробнее
Сокольники (10 мин. 🚶)
Москва, улица Гастелло, 30
STONE SOKOLNIKI
Тип: Торговое помещение
Площадь: 52.00 м2
Мощность:12 кВт
39 599 700 за все
761 533 за м2
Позвонить Подробнее
Сокольники (10 мин. 🚶)
Москва, улица Гастелло, 30
STONE SOKOLNIKI
Тип: Торговое помещение
Площадь: 80.60 м2
Мощность:20 кВт
63 915 800 за все
793 000 за м2
Позвонить Подробнее
Сокольники (10 мин. 🚶)
Москва, улица Гастелло, 30
STONE SOKOLNIKI
Тип: Торговое помещение
Площадь: 43.10 м2
Мощность:10 кВт
28 144 300 за все
653 000 за м2
Позвонить Подробнее
Сокольники (10 мин. 🚶)
Москва, улица Гастелло, 30
STONE SOKOLNIKI
Тип: Торговое помещение
Площадь: 72.80 м2
Мощность:17 кВт
52 634 400 за все
723 000 за м2
Позвонить Подробнее
Сокольники (10 мин. 🚶)
Москва, улица Гастелло, 30
STONE SOKOLNIKI
Тип: Торговое помещение
Площадь: 132.20 м2
Мощность:27 кВт
101 529 600 за все
768 000 за м2
Позвонить Подробнее
Сокол Сокольники Соколиная Гора (17 мин. 🚶)
Москва, Волоколамское шоссе, 13
Жилое здание "Волоколамское шоссе, 13"
Тип: Торговое помещение
Площадь: 72.40 м2
Мощность:20 кВт
37 500 000 за все
517 956 за м2
Позвонить Подробнее
Сокол Сокольники Соколиная Гора (17 мин. 🚶)
Москва, Волоколамское шоссе, 13
Жилое здание "Волоколамское шоссе, 13"
Тип: Торговое помещение
Площадь: 17.80 м2
7 565 000 за все
425 000 за м2
Позвонить Подробнее
Сокол Сокольники Соколиная Гора (17 мин. 🚶)
Москва, Волоколамское шоссе, 13
Жилое здание "Волоколамское шоссе, 13"
Тип: Торговое помещение
Площадь: 14.80 м2
6 290 000 за все
425 000 за м2
Позвонить Подробнее