Аренда офиса Бизнес-парк "Трехгорная Мануфактура"

Объект успешно реализован!
Аренда офиса Бизнес-парк Аренда офиса Бизнес-парк Аренда офиса Бизнес-парк
Аренда офиса Бизнес-парк Аренда офиса Бизнес-парк Аренда офиса Бизнес-парк
Москва, Рочдельская улица, 15
Объект успешно реализован, но у нас есть много других интересных предложений. Позвоните по телефону +7 495 230-28-26, либо оставьте заявку на подбор прямо сейчас и получите список подходящих для вас объектов.
загрузка карты...
Аренда в год за м2 60 000 ₽
Аренда в месяц 1 055 000 ₽
Схема сделки прямая аренда
Общие
ID 60625
Тип сделки Аренда
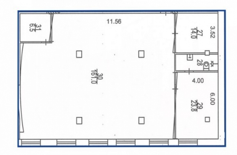
Площадь 211.00
Площадь всего 135000.00
Тип объекта Бизнес-парк
Класс здания B
Этаж 3
Всего этажей в здании 7
Метраж по этажам
Информация об объекте
Состояние объекта после реконструкции
Состояние блока выполнена стандартная офисная отделка
Планировка Смешанная
Коммуникации Система пожаротушения,Система видеонаблюдения,Интернет,Телефония
Перекрытия Железобетонные
Отопление Центральное
Вентиляция и кондиционирование Система приточно-вытяжной вентиляции
КПП Гостевой пропуск
Торговая недвижимость
Линия домов 1 линия
Возможности Витрины,Место для рекламы,Проходное место,Проездное место
Коммерческие условия
Аренда в год за м2 60 000 ₽
Аренда в месяц 1 055 000 ₽
Схема сделки прямая аренда

Описание объекта
В аренду предлагается офис на улице Рочдельская ЦАО г. Москвы. Объект расположен на 3-м этаже здания в составе бизнес-парка "Трёхгорная Мануфактура"(стр. 21).  Общая площадь  помещения  - 211 кв.м,  высота потолка 4,50 метра. Коридорный коэф. 12%.  Интернет. Охрана. Парковка на территории.

Нужна консультация по подбору помещения под офис?

Наши специалисты подберут для вас самые выгодные варианты для долгосрочного инвестирования,
помогут в сопровождении и сделки, проверят все юридические вопросы касаемо приобретения недвижимости.

* Нажимая на кнопку «Отправить», Вы даете согласие на обработку персональных данных в соответствии с Политикой конфиденциальности

Похожие объекты

Пл. Революции (3 мин. 🚶)
Москва, Никольская улица, 10
Бизнес-центр «Никольская плаза»
Тип: Офисы
Площадь: 217.40 м2
Отделка:выполнена стандартная офисная отделка
1 032 650 в месяц
57 000 в год за м2
Позвонить Подробнее
Красные Ворота (13 мин. 🚶)
Москва, Улица Александра Лукьянова, 3
Бизнес-центр «Зенит-Интер I»
Тип: Офисы
Площадь: 190.00 м2
Отделка:выполнена стандартная офисная отделка
522 500 в месяц
33 000 в год за м2
Позвонить Подробнее
Краснопресненская (5 мин. 🚶)
Москва, переулок Капранова, 3с2
Бизнес-центр «Премьер Плаза» с2
Тип: Офисы
Площадь: 202.60 м2
Отделка:выполнена стандартная офисная отделка
928 583 в месяц
55 000 в год за м2
Позвонить Подробнее
Белорусская (4 мин. 🚶)
Москва, 4-й Лесной переулок, 4
Бизнес-центр «White Stone»
Тип: Офисы
Площадь: 222.00 м2
Отделка:выполнена стандартная офисная отделка
1 512 900 в месяц
81 778 в год за м2
Позвонить Подробнее
Полянка (3 мин. 🚶)
Москва, Улица Малая Полянка, 2
МФК Онегин (Onegin)
Тип: Офисы
Площадь: 194.50 м2
Отделка:выполнена стандартная офисная отделка
700 000 в месяц
43 188 в год за м2
Позвонить Подробнее
Полянка (5 мин. 🚶)
Москва, улица Большая Якиманка, 17/2с1
Бизнес центр "улица Большая Якиманка, 17/2с1"
Тип: Офисы
Площадь: 214.80 м2
Отделка:качественная отделка
966 600 в месяц
54 000 в год за м2
Позвонить Подробнее
Проспект Мира (9 мин. 🚶)
Москва, улица Щепкина, 29
Бизнес-центр "улица Щепкина, 29"
Тип: Офисы
Площадь: 223.00 м2
Отделка:выполнена стандартная офисная отделка
960 015 в месяц
51 660 в год за м2
Позвонить Подробнее
Семёновская (7 мин. 🚗)
Москва, улица Ибрагимова, 31к47
БЦ РТС Семёновский
Тип: Офисы
Площадь: 215.90 м2
Отделка:отделка арендатора
378 000 в месяц
21 010 в год за м2
Позвонить Подробнее
Автозаводская (10 мин. 🚶)
Москва, Улица Ленинская Слобода, 26с5
Бизнес-центр «Симонов Плаза»
Тип: Офисы
Площадь: 231.20 м2
Отделка:выполнена стандартная офисная отделка
726 353 в месяц
37 700 в год за м2
Позвонить Подробнее
Чеховская
Москва, Столешников переулок, 9с3
Жилое здание "Столешников переулок, 9с3"
Тип: Офисы
Площадь: 217.00 м2
Отделка:качественная отделка
1 450 000 в месяц
80 184 в год за м2
Позвонить Подробнее
Речной вокзал (14 мин. 🚗)
Москва, Смольная улица, 14
Бизнес-центр «Смольный»
Тип: Офисы
Площадь: 221.47 м2
Отделка:выполнена стандартная офисная отделка
461 396 в месяц
25 000 в год за м2
Позвонить Подробнее
Нахимовский проспект (5 мин. 🚶)
Москва, Одесская улица, 2кА
Бизнес-центр «Лотос»
Тип: Офисы
Площадь: 200.00 м2
Отделка:качественная отделка
790 000 в месяц
47 400 в год за м2
Позвонить Подробнее
Пл. Революции (3 мин. 🚶)
Москва, Никольская улица, 10
Бизнес-центр «Никольская плаза»
Тип: Офисы
Площадь: 217.40 м2
Отделка:выполнена стандартная офисная отделка
1 032 650 в месяц
57 000 в год за м2
Позвонить Подробнее
Пл. Революции (3 мин. 🚶)
Москва, Никольская улица, 10
Бизнес-центр «Никольская плаза»
Тип: Офисы
Площадь: 636.80 м2
Отделка:выполнена стандартная офисная отделка
3 024 800 в месяц
57 000 в год за м2
Позвонить Подробнее
Цветной бульвар (5 мин. 🚶)
Москва, Цветной бульвар, 30с1
Офисное здание «Цветной 30»
Тип: Офисы
Площадь: 1305.00 м2
Отделка:выполнена высококачественная отделка
7 177 500 в месяц
66 000 в год за м2
Позвонить Подробнее
Марьина Роща (14 мин. 🚶)
Москва, Улица Сущёвский Вал, 18
Бизнес-центр «NOVO» (ново)
Тип: Офисы
Площадь: 365.00 м2
Отделка:выполнена высококачественная отделка
1 977 084 в месяц
65 000 в год за м2
Позвонить Подробнее
Белорусская (11 мин. 🚶)
Москва, Лесная улица, 43
Бизнес-центр «Лесная 43»
Тип: Офисы
Площадь: 800.00 м2
Отделка:выполнена стандартная офисная отделка
4 066 667 в месяц
61 000 в год за м2
Позвонить Подробнее
Марьина Роща (14 мин. 🚶)
Москва, Улица Сущёвский Вал, 18
Бизнес-центр «NOVO» (ново)
Тип: Офисы
Площадь: 1312.00 м2
Отделка:выполнена высококачественная отделка
6 997 334 в месяц
64 000 в год за м2
Позвонить Подробнее
Краснопресненская (5 мин. 🚶)
Москва, переулок Капранова, 3с2
Бизнес-центр «Премьер Плаза» с2
Тип: Офисы
Площадь: 202.60 м2
Отделка:выполнена стандартная офисная отделка
928 583 в месяц
55 000 в год за м2
Позвонить Подробнее
Павелецкая (9 мин. 🚶)
Москва, Космодамианская набережная, 52с3
Бизнес-центр «Риверсайд Тауэрс» к 3
Тип: Офисы
Площадь: 1005.00 м2
Отделка:выполнена стандартная офисная отделка
5 226 000 в месяц
62 400 в год за м2
Позвонить Подробнее
Павелецкая (9 мин. 🚶)
Москва, Космодамианская набережная, 52с1
Бизнес-центр «Риверсайд Тауэрс»
Тип: Офисы
Площадь: 1410.00 м2
Отделка:выполнена стандартная офисная отделка
6 768 000 в месяц
57 600 в год за м2
Позвонить Подробнее
Павелецкая (9 мин. 🚶)
Москва, Космодамианская набережная, 52с1
Бизнес-центр «Риверсайд Тауэрс»
Тип: Офисы
Площадь: 881.00 м2
Отделка:выполнена стандартная офисная отделка
4 140 700 в месяц
56 400 в год за м2
Позвонить Подробнее
Павелецкая (9 мин. 🚶)
Москва, Космодамианская набережная, 52с1
Бизнес-центр «Риверсайд Тауэрс»
Тип: Офисы
Площадь: 458.00 м2
Отделка:выполнена стандартная офисная отделка
2 152 600 в месяц
56 400 в год за м2
Позвонить Подробнее
Цветной бульвар (4 мин. 🚶)
Москва, Садовая-Самотёчная улица, 24/27
Бизнес-центр «Мосэнка Плаза 3»
Тип: Офисы
Площадь: 662.00 м2
Отделка:выполнена стандартная офисная отделка
3 508 600 в месяц
63 600 в год за м2
Позвонить Подробнее
Улица 1905 года (8 мин. 🚶)
Москва, Улица Трёхгорный Вал, 6А
Административное здание «Трехгорный 6а»
Тип: Офисы
Площадь: 527.30 м2
1 757 667 в месяц
40 000 в год за м2
Позвонить Подробнее
Улица 1905 года (15 мин. 🚶)
Москва, Рочдельская улица, 15
Бизнес-парк "Трехгорная Мануфактура"
Тип: Офисы
Площадь: 2551.30 м2
Отделка:отделка в стиле Loft
15 945 625 в месяц
75 000 в год за м2
Позвонить Подробнее
Улица 1905 года (5 мин. 🚶)
Москва, Звенигородское шоссе, 18/20к2
Бизнес Центр Звенигородский
Тип: Офисы
Площадь: 94.20 м2
Отделка:выполнена стандартная офисная отделка
17 875 000 в месяц
2 277 070 в год за м2
Позвонить Подробнее
Улица 1905 года (3 мин. 🚶)
Москва, Звенигородское шоссе, 18/20к1
Звенигородское шоссе, 18/20к1
Тип: Офисы
Площадь: 1292.00 м2
Отделка:качественная отделка
5 598 667 в месяц
52 000 в год за м2
Позвонить Подробнее
Улица 1905 года (11 мин. 🚶)
Москва, Ходынская улица, 2с9
Административно-деловой комплекс "Ходынская 2/9"
Тип: Офисы
Площадь: 16277.00 м2
89 523 500 в месяц
66 000 в год за м2
Позвонить Подробнее
Улица 1905 года (8 мин. 🚶)
Москва, Улица Красная Пресня, 28
Офисное здание «Красная Пресня 28»
Тип: Офисы
Площадь: 571.00 м2
Отделка:выполнена стандартная офисная отделка
1 998 500 в месяц
42 000 в год за м2
Позвонить Подробнее