Аренда офиса Бизнес-центр "Авион"

Объект успешно реализован!
Аренда офиса Бизнес-центр Аренда офиса Бизнес-центр Аренда офиса Бизнес-центр Аренда офиса Бизнес-центр Аренда офиса Бизнес-центр Аренда офиса Бизнес-центр
Аренда офиса Бизнес-центр Аренда офиса Бизнес-центр Аренда офиса Бизнес-центр Аренда офиса Бизнес-центр Аренда офиса Бизнес-центр Аренда офиса Бизнес-центр
Москва, Ленинградский проспект, 47с2
Объект успешно реализован, но у нас есть много других интересных предложений. Позвоните по телефону +7 495 230-28-26, либо оставьте заявку на подбор прямо сейчас и получите список подходящих для вас объектов.
загрузка карты...
Аренда в год за м2 50 000 ₽
Аренда в месяц 6 041 667 ₽
Схема сделки прямая аренда
Первушина Марина Алексеевна

Объект ведет консультант:

Первушина Марина Алексеевна

Общие
ID 60711
Тип сделки Аренда
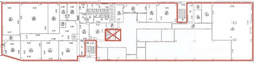
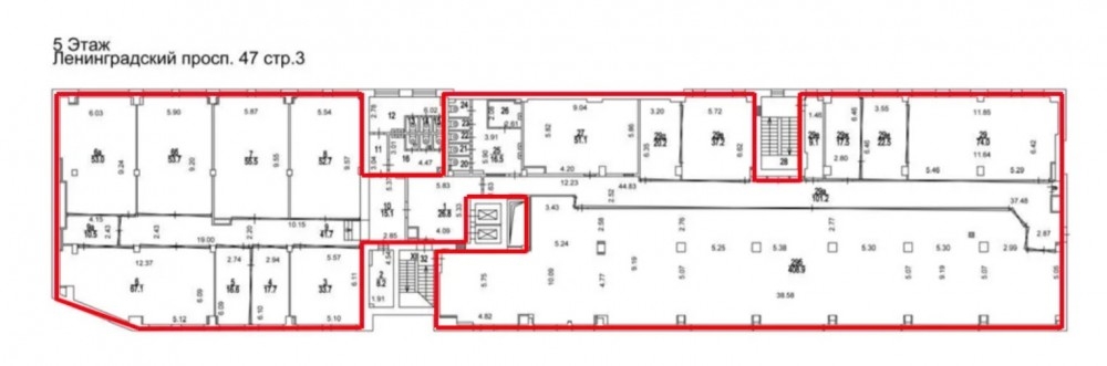
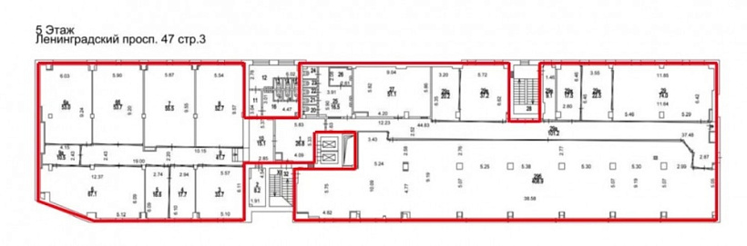
Площадь 1450.00
Площадь всего 19147.00
Тип объекта Бизнес-центр
Этаж 6
Всего этажей в здании 6
Метраж по этажам
Информация об объекте
Состояние объекта рабочее
Состояние блока выполнена стандартная офисная отделка
Планировка Смешанная
Коммерческие условия
Аренда в год за м2 50 000 ₽
Аренда в месяц 6 041 667 ₽
Схема сделки прямая аренда
Тип собственника Юридическое лицо

Описание объекта
Предлагается в аренду офисное помещение на 6 этаже в БЦ «Авион» (стр. 3). Общая площадь 1 450  кв.м., смешанная планировка.  На объекте работает приточно-вытяжная вентиляция, кондиционирование воздуха, а также центральное отопление. В пешей доступности от бизнес-центра находится станция метро "Аэропорт" - 2 минуты ходьбы.

Нужна консультация по подбору помещения под офис?

Наши специалисты подберут для вас самые выгодные варианты для долгосрочного инвестирования,
помогут в сопровождении и сделки, проверят все юридические вопросы касаемо приобретения недвижимости.

* Нажимая на кнопку «Отправить», Вы даете согласие на обработку персональных данных в соответствии с Политикой конфиденциальности

Похожие объекты

Люблино (15 мин. 🚗)
Москва, Егорьевская улица, 14с1
ОСЗ "Егорьевская ул., 14с1"
Тип: Офисы
Площадь: 1400.00 м2
3 200 000 в месяц
27 429 в год за м2
Позвонить Подробнее
Маяковская (3 мин. 🚶)
Москва, 1-я Тверская-Ямская улица, 6
Офисное здание «1-я Тверская-Ямская 6»
Тип: Офисы
Площадь: 1566.40 м2
Отделка:выполнена стандартная офисная отделка
5 612 933 в месяц
43 000 в год за м2
Позвонить Подробнее
Калужская (15 мин. 🚶)
Москва, улица Намёткина, 12А
Бизнес-центр «Газойл Плаза»
Тип: Офисы
Площадь: 1337.70 м2
Отделка:отделка арендатора
3 901 625 в месяц
35 000 в год за м2
Позвонить Подробнее
Цветной бульвар (5 мин. 🚶)
Москва, Цветной бульвар, 30с1
Офисное здание «Цветной 30»
Тип: Офисы
Площадь: 1305.00 м2
Отделка:выполнена высококачественная отделка
7 177 500 в месяц
66 000 в год за м2
Позвонить Подробнее
Марьина Роща (14 мин. 🚶)
Москва, Улица Сущёвский Вал, 18
Бизнес-центр «NOVO» (ново)
Тип: Офисы
Площадь: 1312.00 м2
Отделка:выполнена высококачественная отделка
6 997 334 в месяц
64 000 в год за м2
Позвонить Подробнее
Павелецкая (9 мин. 🚶)
Москва, Космодамианская набережная, 52с1
Бизнес-центр «Риверсайд Тауэрс»
Тип: Офисы
Площадь: 1410.00 м2
Отделка:выполнена стандартная офисная отделка
6 768 000 в месяц
57 600 в год за м2
Позвонить Подробнее
Верхние Котлы (15 мин. 🚶)
Москва, Новоданиловская набережная, 12
Бизнес-центр «DM Tower»
Тип: Офисы
Площадь: 1465.90 м2
Отделка:качественная отделка
9 580 634 в месяц
78 428 в год за м2
Позвонить Подробнее
Павелецкая (16 мин. 🚗)
Москва, 1-й Дербеневский переулок, 5
Бизнес-центр «Дербеневская Плаза»
Тип: Офисы
Площадь: 1432.00 м2
Отделка:выполнена стандартная офисная отделка
4 176 667 в месяц
35 000 в год за м2
Позвонить Подробнее
Войковская (7 мин. 🚶)
Москва, Ленинградское шоссе, 16Ас1
Бизнес-центр «Метрополис»
Тип: Офисы
Площадь: 1330.00 м2
Отделка:качественная отделка
6 095 833 в месяц
55 000 в год за м2
Позвонить Подробнее
Нагатинская (7 мин. 🚶)
Москва, Варшавское шоссе, 26
БЦ "Варшавская плаза"
Тип: Офисы
Площадь: 1500.00 м2
Отделка:выполнена стандартная офисная отделка
3 750 000 в месяц
30 000 в год за м2
Позвонить Подробнее
Ул. Академика Янгеля (7 мин. 🚶)
Москва, Варшавское шоссе, 148
Бизнес-центр «РТС Варшавский»
Тип: Офисы
Площадь: 1392.00 м2
Отделка:выполнена стандартная офисная отделка
2 436 696 в месяц
21 006 в год за м2
Позвонить Подробнее
Красносельская (9 мин. 🚶)
Москва, Верхняя Красносельская улица, 2/1с1
Офисное здание «Верхняя Красносельская 2/1 с1»
Тип: Офисы
Площадь: 1345.00 м2
Отделка:выполнена стандартная офисная отделка
3 362 500 в месяц
30 000 в год за м2
Позвонить Подробнее
Комсомольская (11 мин. 🚶)
Москва, Докучаев переулок, 8
Особняк «Докучаев 8»
Тип: Офисы
Площадь: 1222.80 м2
5 387 147 в месяц
52 867 в год за м2
Позвонить Подробнее
Парк культуры (6 мин. 🚶)
Москва, Улица Остоженка, 28
Бизнес-центр «Алексеевский дом»
Тип: Офисы
Площадь: 248.20 м2
Отделка:выполнена стандартная офисная отделка
1 097 665 в месяц
53 070 в год за м2
Позвонить Подробнее
Савёловская (7 мин. 🚶)
Москва, Вятская улица, 27
Бизнес-парк «Фактория»
Тип: Офисы
Площадь: 502.00 м2
Отделка:отделка в стиле Loft
2 158 600 в месяц
51 600 в год за м2
Позвонить Подробнее
Белорусская (4 мин. 🚶)
Москва, 1-я Тверская-Ямская улица, 23с1
Деловой центр "Тверская-Ямская23"
Тип: Офисы
Площадь: 103.10 м2
Отделка:выполнена стандартная офисная отделка
429 600 в месяц
50 002 в год за м2
Позвонить Подробнее
Краснопресненская (5 мин. 🚶)
Москва, переулок Капранова, 3с2
Бизнес-центр «Премьер Плаза» с2
Тип: Офисы
Площадь: 202.60 м2
Отделка:выполнена стандартная офисная отделка
928 583 в месяц
55 000 в год за м2
Позвонить Подробнее
Серпуховская (7 мин. 🚶)
Москва, Люсиновская улица, 36с1
Бизнес-центр "Glass House"
Тип: Офисы
Площадь: 251.60 м2
Отделка:выполнена высококачественная отделка
985 500 в месяц
47 003 в год за м2
Позвонить Подробнее
Полянка (5 мин. 🚶)
Москва, улица Большая Якиманка, 17/2с1
Бизнес центр "улица Большая Якиманка, 17/2с1"
Тип: Офисы
Площадь: 272.10 м2
Отделка:выполнена стандартная офисная отделка
1 199 508 в месяц
52 900 в год за м2
Позвонить Подробнее
Павелецкая (15 мин. 🚶)
Москва, Жуков проезд, вл8
Бизнес-центр TALLER
Тип: Офисы
Площадь: 1731.72 м2
Отделка:помещение без отделки
6 514 153 в месяц
45 140 в год за м2
Позвонить Подробнее
Полянка (5 мин. 🚶)
Москва, улица Большая Якиманка, 17/2с1
Бизнес центр "улица Большая Якиманка, 17/2с1"
Тип: Офисы
Площадь: 214.80 м2
Отделка:качественная отделка
966 600 в месяц
54 000 в год за м2
Позвонить Подробнее
Проспект Мира (9 мин. 🚶)
Москва, улица Щепкина, 29
Бизнес-центр "улица Щепкина, 29"
Тип: Офисы
Площадь: 223.00 м2
Отделка:выполнена стандартная офисная отделка
960 015 в месяц
51 660 в год за м2
Позвонить Подробнее
Краснопресненская (7 мин. 🚶)
Москва, Малый Предтеченский переулок, 1/2
Административное здание "Малый Предтеченский пер. 1/2с1"
Тип: Офисы
Площадь: 188.10 м2
Отделка:выполнена стандартная офисная отделка
862 125 в месяц
55 000 в год за м2
Позвонить Подробнее
Войковская (7 мин. 🚶)
Москва, Ленинградское шоссе, 16Ас1
Бизнес-центр «Метрополис»
Тип: Офисы
Площадь: 1330.00 м2
Отделка:качественная отделка
6 095 833 в месяц
55 000 в год за м2
Позвонить Подробнее
Аэропорт (8 мин. 🚶)
Москва, Улица 8 Марта, 14
Бизнес-центр «Кулон»
Тип: Офисы
Площадь: 872.30 м2
Отделка:качественная отделка
2 394 464 в месяц
32 940 в год за м2
Позвонить Подробнее
Аэропорт (8 мин. 🚶)
Москва, Улица 8 Марта, 14
Бизнес-центр «Кулон»
Тип: Офисы
Площадь: 2343.00 м2
Отделка:качественная отделка
6 431 535 в месяц
32 940 в год за м2
Позвонить Подробнее
Аэропорт (15 мин. 🚶)
Москва, Кочновский проезд, 4к1
ЖК «Аэробус»
Тип: Офисы
Площадь: 240.00 м2
Отделка:качественная отделка
780 000 в месяц
39 000 в год за м2
Позвонить Подробнее
Аэропорт (21 мин. 🚗)
Москва, Ленинградский проспект, 37А
Бизнес-парк «Аркус 2»
Тип: Офисы
Площадь: 908.00 м2
Отделка:выполнена стандартная офисная отделка
3 405 000 в месяц
45 000 в год за м2
Позвонить Подробнее
Аэропорт (2 мин. 🚶)
Москва, Ленинградский проспект, 47с2
Бизнес-центр "Авион"
Тип: Офисы
Площадь: 520.00 м2
1 950 000 в месяц
45 000 в год за м2
Позвонить Подробнее
Аэропорт (9 мин. 🚶)
Москва, Ленинградский проспект, 39А
БЦ "Мерседес-бенц Плаза"
Тип: Офисы
Площадь: 7367.00 м2
Отделка:качественная отделка
41 770 890 в месяц
68 040 в год за м2
Позвонить Подробнее