Аренда торгового помещения Бизнес-центр "Моховая II"

Аренда торгового помещения Бизнес-центр Аренда торгового помещения Бизнес-центр Аренда торгового помещения Бизнес-центр
Аренда торгового помещения Бизнес-центр Аренда торгового помещения Бизнес-центр Аренда торгового помещения Бизнес-центр
Москва, улица Воздвиженка, 4/7с1
Позвоните по телефону +7 495 230-28-26, либо оставьте заявку на просмотр прямо сейчас и узнайте условия специального предложения по объекту.
загрузка карты...
Аренда в год за м2 71 429 ₽
Аренда в месяц 750 000 ₽
Схема сделки прямая аренда
Кириченко Константин Юрьевич

Объект ведет консультант:

Кириченко Константин Юрьевич

Общие
ID 61502
Тип сделки Аренда
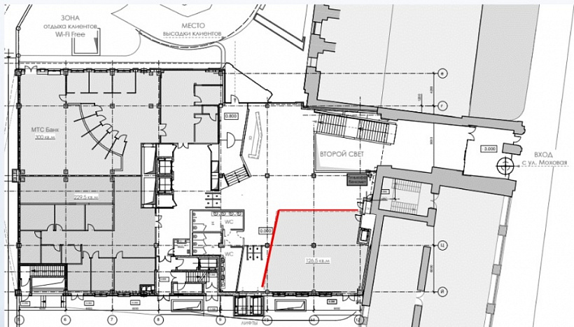
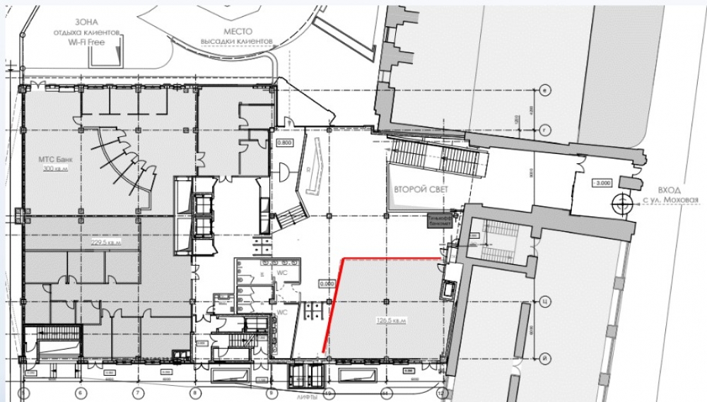
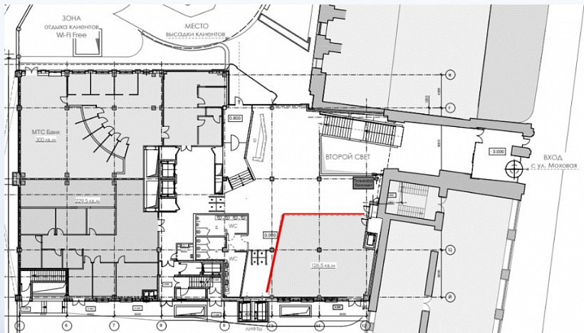
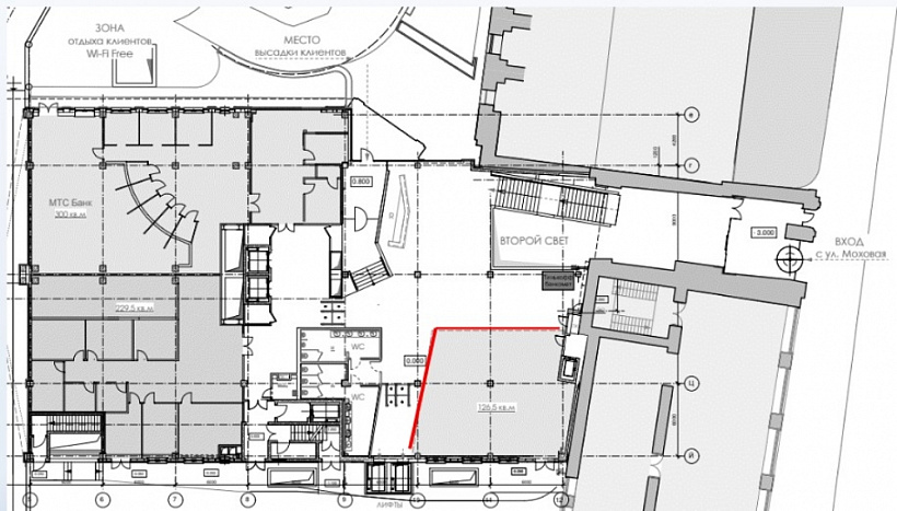
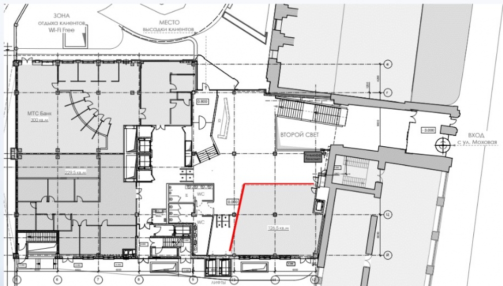
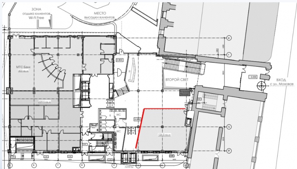
Площадь 126.00
Площадь всего 19000.00
Тип объекта Бизнес-центр
Класс здания B
Этаж 1
Всего этажей в здании 7
Метраж по этажам
Информация об объекте
Состояние объекта рабочее
Состояние блока качественная отделка
Планировка Открытая
Парковка под общепит Люкс
Коммерческие условия
Аренда в год за м2 71 429 ₽
Аренда в месяц 750 000 ₽
Схема сделки прямая аренда
Тип собственника Юридическое лицо

Описание объекта
Предлагается к аренде современное помещение под уютную, стильную и вкусную кофейню.
площадью 125 кв.м. на первом этаже в престижном бизнес-центре класса "А" в самом центре Москвы с отличной транспортной доступностью.
Бизнес центр "Деловой Дом Моховая" соответствует высшим стандартам класса "А": современные инженерные системы, консьерж-сервис, представительский холл, профессиональное управление, охрана, видеонаблюдение, собственный паркинг.
Бизнес центр работает 24/7.
В помещении выполнен ремонт, есть все необходимые коммуникации.

Наша оценка
Локация
Цена
Техническое оснащение
Состояние
Метраж
Общая оценка 5

Нужна консультация по подбору торговых площадей для аренды?

Наши специалисты подберут для вас самые выгодные варианты для долгосрочного инвестирования,
помогут в сопровождении и сделки, проверят все юридические вопросы касаемо приобретения недвижимости.

* Нажимая на кнопку «Отправить», Вы даете согласие на обработку персональных данных в соответствии с Политикой конфиденциальности

Похожие объекты

Ховрино (25 мин. 🚗)
Москва, Ленинградское шоссе, 228к6
ЖК «1-й Ленинградский», к. 1
Тип: Торговое помещение
Площадь: 138.10 м2
Мощность:25 кВт
345 250 в месяц
30 000 в год за м2
Позвонить Подробнее
Савёловская (7 мин. 🚶)
Москва, Вятская улица, 27
Бизнес-парк «Фактория»
Тип: Торговое помещение
Площадь: 126.60 м2
257 000 в месяц
24 360 в год за м2
Позвонить Подробнее
Саларьево (30 мин. 🚗)
Москва, поселение Филимонковское, деревня Староселье
ЖК "Цветочные поляны"
Тип: Торговое помещение
Площадь: 120.00 м2
Мощность:21 кВт
383 040 в месяц
38 304 в год за м2
Позвонить Подробнее
Борисово (6 мин. 🚗)
Москва, улица Борисовские Пруды, 7к2
Жилой дом "Борисовские пруды 7к2"
Тип: Торговое помещение
Площадь: 137.75 м2
Мощность:75 кВт
454 575 в месяц
39 600 в год за м2
Позвонить Подробнее
Белорусская (10 мин. 🚶)
Москва, Большая Грузинская улица, 57с1
Street Retail на Большой Грузинской
Тип: Торговое помещение
Площадь: 118.00 м2
Мощность:42 кВт
750 000 в месяц
76 271 в год за м2
Позвонить Подробнее
Полежаевская (5 мин. 🚶)
Закрытая продажа #62343
Тип: Торговое помещение
Площадь: 126.00 м2
Мощность:20 кВт
560 000 в месяц
53 333 в год за м2
Позвонить Подробнее
Полежаевская (5 мин. 🚶)
Закрытая продажа #62342
Тип: Торговое помещение
Площадь: 133.00 м2
Мощность:20 кВт
600 000 в месяц
54 135 в год за м2
Позвонить Подробнее
Строгино (18 мин. 🚗)
Москва, улица Маршала Катукова, 1
Здание "улица Маршала Катукова, 1"
Тип: Торговое помещение
Площадь: 132.20 м2
Мощность:30 кВт
462 700 в месяц
42 000 в год за м2
Позвонить Подробнее
Университет (15 мин. 🚶)
Москва, Ленинский проспект, 75/9
Жилое здание "Ленинский пр-т 75/9"
Тип: Торговое помещение
Площадь: 127.00 м2
Мощность:40 кВт
1 100 000 в месяц
103 937 в год за м2
Позвонить Подробнее
Пятницкое шоссе (15 мин. 🚶)
Москва, Муравская улица, 38к2
ЖК "Мир Митино"
Тип: Торговое помещение
Площадь: 126.20 м2
Мощность:35 кВт
350 000 в месяц
33 281 в год за м2
Позвонить Подробнее
Шелепиха (15 мин. 🚶)
Москва, Шелепихинская набережная, 38к8
ЖК Сидней Прайм
Тип: Торговое помещение
Площадь: 120.00 м2
Мощность:15 кВт
600 000 в месяц
60 000 в год за м2
Позвонить Подробнее
ЗИЛ (15 мин. 🚶)
Москва, ЖК Шагал
ЖК «Shagal»
Тип: Торговое помещение
Площадь: 126.30 м2
694 650 в месяц
66 000 в год за м2
Позвонить Подробнее
Тушинская (1 мин. 🚶)
Москва, Тушинская улица, 24с15
ОСЗ "Тушинская, 24с15"
Тип: Торговое помещение
Площадь: 178.00 м2
1 100 000 в месяц
74 157 в год за м2
Позвонить Подробнее

Спец. предложение

Авиамоторная (4 мин. 🚶)
Москва, Авиамоторная улица, 47
Жилое здание «Авиамоторная 47»
Тип: Торговое помещение
Площадь: 32.00 м2
Мощность:20 кВт
190 000 в месяц
71 250 в год за м2
Позвонить Подробнее
Новослободская (2 мин. 🚶)
Москва, Долгоруковская улица, 40
Жилое здание "Долгоруковская ул.,40"
Тип: Торговое помещение
Площадь: 622.00 м2
Мощность:150 кВт
3 732 000 в месяц
72 000 в год за м2
Позвонить Подробнее
Белорусская (10 мин. 🚶)
Москва, Большая Грузинская улица, 57с1
Street Retail на Большой Грузинской
Тип: Торговое помещение
Площадь: 118.00 м2
Мощность:42 кВт
750 000 в месяц
76 271 в год за м2
Позвонить Подробнее
Проспект Мира (13 мин. 🚶)
Москва, Олимпийский проспект, 16с5
Бизнес-центр «Олимпик Холл»
Тип: Торговое помещение
Площадь: 329.40 м2
Мощность:80 кВт
1 839 150 в месяц
67 000 в год за м2
Позвонить Подробнее
Савёловская (3 мин. 🚶)
Москва, улица Сущёвский Вал, 3/5А
Жилое здание «Сущевский 3/5А»
Тип: Торговое помещение
Площадь: 96.00 м2
Мощность:20 кВт
585 000 в месяц
73 125 в год за м2
Позвонить Подробнее
ЗИЛ (15 мин. 🚶)
Москва, ЖК Шагал
ЖК «Shagal»
Тип: Торговое помещение
Площадь: 180.60 м2
993 300 в месяц
66 000 в год за м2
Позвонить Подробнее
ЗИЛ (15 мин. 🚶)
Москва, ЖК Шагал
ЖК «Shagal»
Тип: Торговое помещение
Площадь: 126.30 м2
694 650 в месяц
66 000 в год за м2
Позвонить Подробнее
Октябрьская (9 мин. 🚶)
Москва, Калужская площадь, 1к1
Торговый-центр "Европа"
Тип: Торговое помещение
Площадь: 239.00 м2
1 550 000 в месяц
77 824 в год за м2
Позвонить Подробнее
Курская (2 мин. 🚶)
Москва, улица Земляной Вал, 23с1
Жилое здание " Земляной Вал, 23с1"
Тип: Торговое помещение
Площадь: 138.90 м2
892 500 в месяц
77 106 в год за м2
Позвонить Подробнее
Савёловская (3 мин. 🚶)
Москва, улица Сущёвский Вал, 3/5А
Жилое здание «Сущевский 3/5А»
Тип: Торговое помещение
Площадь: 107.00 м2
Мощность:35 кВт
650 000 в месяц
72 897 в год за м2
Позвонить Подробнее
Ленинский проспект (10 мин. 🚶)
Москва, Ленинский проспект, 38
Бизнес-центр «Lunar (Лунар)»
Тип: Торговое помещение
Площадь: 531.80 м2
Мощность:350 кВт
3 102 167 в месяц
70 000 в год за м2
Позвонить Подробнее
Библиотека им. Ленина (1 мин. 🚶)
Москва, улица Воздвиженка, 4/7с1
Бизнес-центр "Моховая II"
Тип: Торговое помещение
Площадь: 100.00 м2
1 000 000 в месяц
120 000 в год за м2
Позвонить Подробнее