Продажа торгового помещения ЖК "Саларьево Парк"

Продажа торгового помещения ЖК Продажа торгового помещения ЖК Продажа торгового помещения ЖК Продажа торгового помещения ЖК
Продажа торгового помещения ЖК Продажа торгового помещения ЖК Продажа торгового помещения ЖК Продажа торгового помещения ЖК
Москва, поселение Московский, Киевское шоссе, 23-й километр, 11к2
Позвоните по телефону +7 495 230-28-26, либо оставьте заявку на просмотр прямо сейчас и узнайте условия специального предложения по объекту.
загрузка карты...
Арсеньев Сергей Михайлович

Объект ведет консультант:

Арсеньев Сергей Михайлович

Общие
ID 61592
Тип сделки Продажа
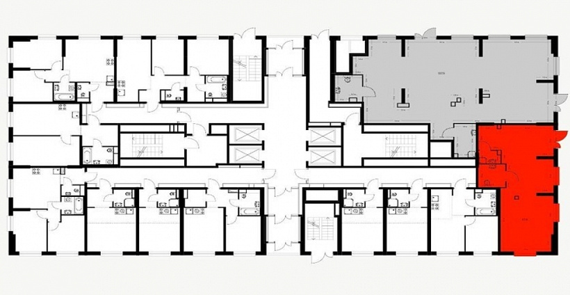
Площадь 61.80
Площадь всего 10000.00
Тип объекта Жилое здание
Этаж 1
Всего этажей в здании 25
Метраж по этажам
Информация об объекте
Состояние объекта новое строительство
Состояние блока помещение без отделки
Планировка Открытая
Нюансы Отдельный вход
Торговая недвижимость
Линия домов 1 линия
Возможности Витрины,Место для рекламы,Проходное место,Проездное место
Коммерческие условия
За все 33 000 000 ₽
За м 2 533 981 ₽
Тип собственника Юридическое лицо

Описание объекта
Продажа коммерческого помещения 61.8 м2, 1 этаж в ЖК Саларьево Парк , Корпус 68.4
Метро Саларьево 18 минут пешком.
Угловое помещение, рядом школа.
Цена: 33.000.000  рублей.
Цена за м2 533.980 рублей.
Потенциальная арендная плата: 250.000 рублей.  
Заселение в ноябре 2025 года.

Нужна консультация покупке или продаже торговых помещений?

Наши специалисты подберут для вас самые выгодные варианты для долгосрочного инвестирования,
помогут в сопровождении и сделки, проверят все юридические вопросы касаемо приобретения недвижимости.

* Нажимая на кнопку «Отправить», Вы даете согласие на обработку персональных данных в соответствии с Политикой конфиденциальности

Похожие объекты

Смоленская (Филевская) Смоленская (Арбатско-Покровская) (10 мин. 🚶)
Москва, Улица Новый Арбат, 30/9
Жилое здание «Новый Арбат 30/9»
Тип: Торговое помещение
Площадь: 61.10 м2
Мощность:15 кВт
42 500 000 за все
695 581 за м2
Позвонить Подробнее
Баррикадная (9 мин. 🚶)
Москва, Садовая-Кудринская улица, 14-16
Жилое здание "Садовая-Кудринская улица, 14-16"
Тип: Торговое помещение
Площадь: 64.50 м2
45 000 000 за все
697 674 за м2
Позвонить Подробнее
Закрытая продажа #62365
Тип: Торговое помещение
Площадь: 65.52 м2
15 769 354 за все
240 680 за м2
Позвонить Подробнее
Закрытая продажа #62364
Тип: Торговое помещение
Площадь: 64.74 м2
15 909 208 за все
245 740 за м2
Позвонить Подробнее
Закрытая продажа #62359
Тип: Торговое помещение
Площадь: 57.83 м2
12 417 258 за все
214 720 за м2
Позвонить Подробнее
Закрытая продажа #62354
Тип: Торговое помещение
Площадь: 66.04 м2
14 361 719 за все
217 470 за м2
Позвонить Подробнее
Пятницкое шоссе (19 мин. 🚗)
Московская область, городской округ Химки, деревня Юрлово, ЖК Пятницкие Луга, к2/2
ЖК "Пятницкие луга"
Тип: Торговое помещение
Площадь: 55.00 м2
Мощность:15 кВт
17 500 000 за все
318 182 за м2
Позвонить Подробнее
Курская (2 мин. 🚶)
Москва, улица Земляной Вал, 23с1
Жилое здание " Земляной Вал, 23с1"
Тип: Торговое помещение
Площадь: 55.50 м2
93 600 000 за все
1 686 486 за м2
Позвонить Подробнее
(32 мин. 🚗)
Закрытая продажа #59776
Тип: Торговое помещение
Площадь: 60.50 м2
18 419 225 за все
304 450 за м2
Позвонить Подробнее
(32 мин. 🚗)
Закрытая продажа #59773
Тип: Торговое помещение
Площадь: 65.60 м2
18 741 264 за все
285 690 за м2
Позвонить Подробнее
Октябрьское Поле (20 мин. 🚶)
Москва, улица Берзарина, 32к2.2
ЖК "Октябрьское поле"
Тип: Торговое помещение
Площадь: 61.00 м2
Мощность:12 кВт
37 000 000 за все
606 557 за м2
Позвонить Подробнее
Строгино (20 мин. 🚗)
Московская область, городской округ Красногорск, посёлок Ильинское-Усово, проезд Александра Невского, 1
ОЗС на проезде Александра Невского 1
Тип: Торговое помещение
Площадь: 67.00 м2
Мощность:20 кВт
27 000 000 за все
402 985 за м2
Позвонить Подробнее

Спец. предложение

Добрынинская (5 мин. 🚶)
Москва, Житная улица, 10
Жилое здание «Житная 10»
Тип: Торговое помещение
Площадь: 120.00 м2
Мощность:15 кВт
35 000 000 за все
291 667 за м2
Позвонить Подробнее
Шаболовская
Москва, улица Лестева, 21/61к1
Жилое здание "Лестева ул., д. 21/61 корпус 1"
Тип: Торговое помещение
Площадь: 558.50 м2
34 000 000 за все
60 877 за м2
Позвонить Подробнее
Электрозаводская (1 мин. 🚶)
Москва, Большая Семёновская улица, 23А
Административное Здание
Тип: Торговое помещение
Площадь: 50.00 м2
Мощность:15 кВт
33 000 000 за все
660 000 за м2
Позвонить Подробнее
Алексеевская
Москва, проспект Мира, 97
Жилое здание "проспект Мира, 97"
Тип: Торговое помещение
Площадь: 7.50 м2
34 500 000 за все
4 600 000 за м2
Позвонить Подробнее
(32 мин. 🚗)
Закрытая продажа #59784
Тип: Торговое помещение
Площадь: 134.40 м2
31 706 304 за все
235 910 за м2
Позвонить Подробнее
(32 мин. 🚗)
Закрытая продажа #44095
Тип: Торговое помещение
Площадь: 128.30 м2
30 268 244 за все
235 918 за м2
Позвонить Подробнее
Котельники (7 мин. 🚶)
Московская область, Люберцы, Шоссейная улица, 42
ЖК "Liberty"
Тип: Торговое помещение
Площадь: 53.00 м2
31 500 000 за все
594 340 за м2
Позвонить Подробнее
Бауманская (11 мин. 🚶)
Москва, Денисовский переулок, 9
Жилое здание "Денисовский переулок, 9"
Тип: Торговое помещение
Площадь: 231.80 м2
Мощность:15 кВт
30 500 000 за все
131 579 за м2
Позвонить Подробнее
Закрытая продажа #62076
Тип: Торговое помещение
Площадь: 61.80 м2
32 239 824 за все
521 680 за м2
Позвонить Подробнее
Закрытая продажа #62074
Тип: Торговое помещение
Площадь: 59.00 м2
29 985 570 за все
508 230 за м2
Позвонить Подробнее
Смоленская (Филевская) Смоленская (Арбатско-Покровская) (10 мин. 🚶)
Москва, Улица Новый Арбат, 30/9
Жилое здание «Новый Арбат 30/9»
Тип: Торговое помещение
Площадь: 61.70 м2
33 000 000 за все
534 846 за м2
Позвонить Подробнее
Закрытая продажа #60776
Тип: Торговое помещение
Площадь: 81.00 м2
31 316 220 за все
386 620 за м2
Позвонить Подробнее
Саларьево (30 мин. 🚗)
Москва, поселение Филимонковское, деревня Староселье
ЖК "Цветочные поляны"
Тип: Торговое помещение
Площадь: 120.00 м2
Мощность:21 кВт
38 480 000 за все
320 667 за м2
Позвонить Подробнее
Саларьево (9 мин. 🚶)
Москва, Новомосковский административный округ, район Коммунарка, квартал № 70
ЖК "1-й Саларьевский»
Тип: Торговое помещение
Площадь: 70.00 м2
31 578 700 за все
451 124 за м2
Позвонить Подробнее
Саларьево (9 мин. 🚶)
Москва, Новомосковский административный округ, район Коммунарка, квартал № 70
ЖК "1-й Саларьевский»
Тип: Торговое помещение
Площадь: 113.50 м2
48 883 955 за все
430 696 за м2
Позвонить Подробнее
Саларьево (9 мин. 🚶)
Москва, Новомосковский административный округ, район Коммунарка, квартал № 70
ЖК "1-й Саларьевский»
Тип: Торговое помещение
Площадь: 129.20 м2
50 579 176 за все
391 480 за м2
Позвонить Подробнее
Саларьево (9 мин. 🚶)
Москва, Новомосковский административный округ, район Коммунарка, квартал № 70
ЖК "1-й Саларьевский»
Тип: Торговое помещение
Площадь: 136.50 м2
49 118 915 за все
359 846 за м2
Позвонить Подробнее
Саларьево (9 мин. 🚶)
Москва, Новомосковский административный округ, район Коммунарка, квартал № 70
ЖК "1-й Саларьевский»
Тип: Торговое помещение
Площадь: 95.80 м2
37 427 906 за все
390 688 за м2
Позвонить Подробнее
Саларьево (9 мин. 🚶)
Москва, Новомосковский административный округ, район Коммунарка, квартал № 70
ЖК "1-й Саларьевский»
Тип: Торговое помещение
Площадь: 64.00 м2
29 476 600 за все
460 572 за м2
Позвонить Подробнее
Саларьево (9 мин. 🚶)
Москва, Новомосковский административный округ, район Коммунарка, квартал № 70
ЖК "1-й Саларьевский»
Тип: Торговое помещение
Площадь: 107.70 м2
41 678 736 за все
386 989 за м2
Позвонить Подробнее
Саларьево (9 мин. 🚶)
Москва, Новомосковский административный округ, район Коммунарка, квартал № 70
ЖК "1-й Саларьевский»
Тип: Торговое помещение
Площадь: 91.90 м2
38 458 001 за все
418 477 за м2
Позвонить Подробнее
Саларьево (9 мин. 🚶)
Москва, Новомосковский административный округ, район Коммунарка, квартал № 70
ЖК "1-й Саларьевский»
Тип: Торговое помещение
Площадь: 147.20 м2
54 722 040 за все
371 753 за м2
Позвонить Подробнее
Саларьево (9 мин. 🚶)
Москва, Новомосковский административный округ, район Коммунарка, квартал № 70
ЖК "1-й Саларьевский»
Тип: Торговое помещение
Площадь: 62.30 м2
28 135 799 за все
451 618 за м2
Позвонить Подробнее
Саларьево (9 мин. 🚶)
Москва, Новомосковский административный округ, район Коммунарка, квартал № 70
ЖК "1-й Саларьевский»
Тип: Торговое помещение
Площадь: 70.40 м2
30 883 192 за все
438 682 за м2
Позвонить Подробнее