Аренда торгового помещения ЖК Шагал

Аренда торгового помещения ЖК Шагал Аренда торгового помещения ЖК Шагал
Аренда торгового помещения ЖК Шагал - превью Аренда торгового помещения ЖК Шагал - превью
Москва, набережная Марка Шагала, 11к3
Позвоните по телефону +7 495 230-28-26, либо оставьте заявку на просмотр прямо сейчас и узнайте условия специального предложения по объекту.
загрузка карты...
Аренда в год за м2 67 961 ₽
Аренда в месяц 700 000 ₽
Схема сделки прямая аренда
Крупнова Любовь Сергеевна

Объект ведет консультант:

Крупнова Любовь Сергеевна

Общие
ID 61732
Тип сделки Аренда
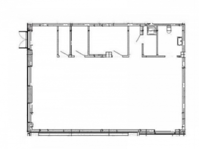
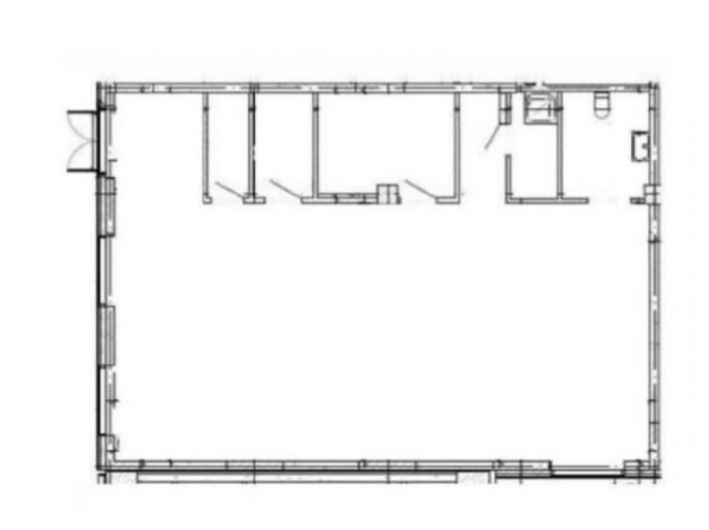
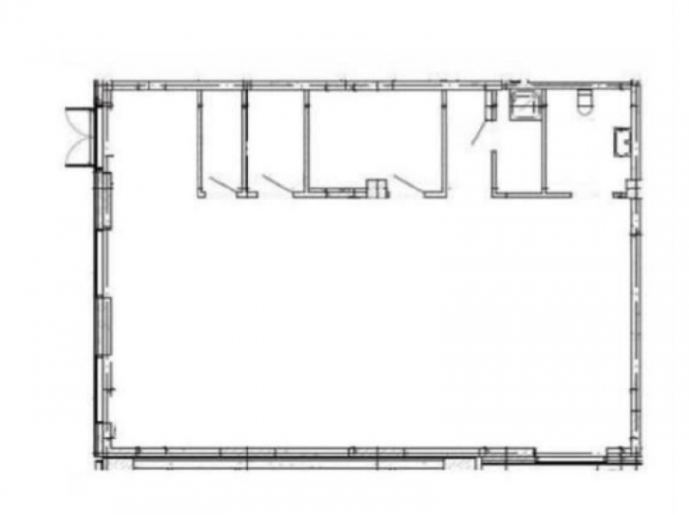
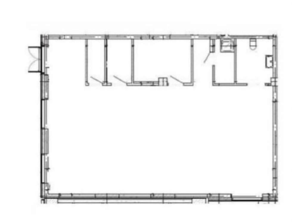
Площадь 123.60
Площадь всего 37500.00
Тип объекта Жилой комплекс
Класс здания A
Этаж 1
Всего этажей в здании 28
Метраж по этажам
Информация об объекте
Состояние объекта новое строительство
Состояние блока Shell & Core
Планировка Открытая
Перекрытия Железобетонные
Нюансы Отдельный вход,Новостройка
Торговая недвижимость
Линия домов 1 линия
Возможности Витрины,Место для рекламы,Проходное место,Проездное место
Электр. мощность (кВт) 30
Коммерческие условия
Аренда в год за м2 67 961 ₽
Аренда в месяц 700 000 ₽
Схема сделки прямая аренда
Тип собственника Юридическое лицо

Описание объекта
В аренду коммерческое помещение площадью 123.6 кв.м, расположенное в жилом доме по адресу: Г. Москва, набережная Марка Шагала, 11к3

Высота потолков составляет 4,4 м, имеется мокрая точка. Здание располагает большими витринными окнами на первом этаже, а мощность составляет 200 Вт/м².

Предусмотрены выводы для горячего и холодного водоснабжения, а также канализации.

Объект введен в эксплуатацию, ключи получены.

Это идеальное место для вашего бизнеса, будь то розничный магазин, кафе, салон услуг или офис, благодаря стратегическому расположению и продуманной инфраструктуре района.
Помещение отличается большими витринными окнами, выходящими на проезжую часть, что обеспечивает отличную видимость для потенциальных клиентов и освещение внутри.

Недавно открытый подземный переход к набережной, значительно увеличит пешеходный трафик, проходящий мимо вашего будущего бизнеса, гарантируя стабильный поток посетителей.

Новый район и растущий спрос, жилой комплекс Шагал является крупным проектом, который привлекает множество жителей и формирует новый деловой и жилой центр. В непосредственной близости от жилого комплекса расположены крупные бизнес центры, современные школы, детские сады, а также станции общественного транспорта, включая метро, и станции речных электротрамваев. В районе также находится один из крупневших развлекательных парков - Остров мечты и торговый центр Ривьера, что гарантирует высокий трафик и постоянный приток потенциальных клиентов.

Район обладает развитой транспортной системой, обеспечивающей удобную автомобильную доступность благодаря прямому выезду на третье транспортное кольцо. Кроме того, квартал обслуживается двумя станциями метро и станцией МЦК, что делает его исключительно привлекательным для жителей и предприятий

Нужна консультация по подбору торговых площадей для аренды?

Наши специалисты подберут для вас самые выгодные варианты для долгосрочного инвестирования,
помогут в сопровождении и сделки, проверят все юридические вопросы касаемо приобретения недвижимости.

* Нажимая на кнопку «Отправить», Вы даете согласие на обработку персональных данных в соответствии с Политикой конфиденциальности

Похожие объекты

Китай-город (1 мин. 🚶)
Москва, Улица Маросейка, 4/2с1
Административное здание « Маросейка, 4/2с1»
Тип: Торговое помещение
Площадь: 132.00 м2
Мощность:60 кВт
1 100 000 в месяц
100 000 в год за м2
Позвонить Подробнее
Цветной бульвар (4 мин. 🚶)
Москва, Садовая-Самотёчная улица, 24/27
Бизнес-центр «Мосэнка Плаза 3»
Тип: Торговое помещение
Площадь: 127.00 м2
1 860 000 в месяц
175 748 в год за м2
Позвонить Подробнее
Рижская (5 мин. 🚶)
Москва, проспект Мира, 70
Жилое здание "проспект Мира, 70"
Тип: Торговое помещение
Площадь: 112.60 м2
Мощность:25 кВт
490 000 в месяц
52 220 в год за м2
Позвонить Подробнее
Савёловская (7 мин. 🚶)
Москва, Вятская улица, 27
Бизнес-парк «Фактория»
Тип: Торговое помещение
Площадь: 126.60 м2
257 000 в месяц
24 360 в год за м2
Позвонить Подробнее
Библиотека им. Ленина (1 мин. 🚶)
Москва, улица Воздвиженка, 4/7с1
Бизнес-центр "Моховая II"
Тип: Торговое помещение
Площадь: 126.00 м2
750 000 в месяц
71 429 в год за м2
Позвонить Подробнее
Университет (17 мин. 🚗)
Москва, улица Крупской, 8к2
Жилое здание "Крупской, 8к2"
Тип: Торговое помещение
Площадь: 113.00 м2
Мощность:15 кВт
155 000 в месяц
16 460 в год за м2
Позвонить Подробнее
Саларьево (30 мин. 🚗)
Москва, поселение Филимонковское, деревня Староселье
ЖК "Цветочные поляны"
Тип: Торговое помещение
Площадь: 120.00 м2
Мощность:21 кВт
383 040 в месяц
38 304 в год за м2
Позвонить Подробнее
Белорусская (10 мин. 🚶)
Москва, Большая Грузинская улица, 57с1
Street Retail на Большой Грузинской
Тип: Торговое помещение
Площадь: 118.00 м2
Мощность:42 кВт
750 000 в месяц
76 271 в год за м2
Позвонить Подробнее
Полежаевская (5 мин. 🚶)
Закрытая продажа #62343
Тип: Торговое помещение
Площадь: 126.00 м2
Мощность:20 кВт
560 000 в месяц
53 333 в год за м2
Позвонить Подробнее
Полежаевская (5 мин. 🚶)
Закрытая продажа #62342
Тип: Торговое помещение
Площадь: 133.00 м2
Мощность:20 кВт
600 000 в месяц
54 135 в год за м2
Позвонить Подробнее
Строгино (18 мин. 🚗)
Москва, улица Маршала Катукова, 1
Здание "улица Маршала Катукова, 1"
Тип: Торговое помещение
Площадь: 132.20 м2
Мощность:30 кВт
462 700 в месяц
42 000 в год за м2
Позвонить Подробнее
Университет (15 мин. 🚶)
Москва, Ленинский проспект, 75/9
Жилое здание "Ленинский пр-т 75/9"
Тип: Торговое помещение
Площадь: 127.00 м2
Мощность:40 кВт
1 100 000 в месяц
103 937 в год за м2
Позвонить Подробнее
Тушинская (1 мин. 🚶)
Москва, Тушинская улица, 24с15
ОСЗ "Тушинская, 24с15"
Тип: Торговое помещение
Площадь: 178.00 м2
1 100 000 в месяц
74 157 в год за м2
Позвонить Подробнее
Библиотека им. Ленина (1 мин. 🚶)
Москва, улица Воздвиженка, 4/7с1
Бизнес-центр "Моховая II"
Тип: Торговое помещение
Площадь: 126.00 м2
750 000 в месяц
71 429 в год за м2
Позвонить Подробнее

Спец. предложение

Авиамоторная (4 мин. 🚶)
Москва, Авиамоторная улица, 47
Жилое здание «Авиамоторная 47»
Тип: Торговое помещение
Площадь: 32.00 м2
Мощность:20 кВт
190 000 в месяц
71 250 в год за м2
Позвонить Подробнее
Новослободская (2 мин. 🚶)
Москва, Долгоруковская улица, 40
Жилое здание "Долгоруковская ул.,40"
Тип: Торговое помещение
Площадь: 622.00 м2
Мощность:150 кВт
3 732 000 в месяц
72 000 в год за м2
Позвонить Подробнее
(8 мин. 🚶)
Москва, 1-я улица Бухвостова, 2к3
ЖК "Преображенская площадь"
Тип: Торговое помещение
Площадь: 43.83 м2
Мощность:12 кВт
223 500 в месяц
61 191 в год за м2
Позвонить Подробнее
Проспект Мира (13 мин. 🚶)
Москва, Олимпийский проспект, 16с5
Бизнес-центр «Олимпик Холл»
Тип: Торговое помещение
Площадь: 329.40 м2
Мощность:80 кВт
1 839 150 в месяц
67 000 в год за м2
Позвонить Подробнее
Электрозаводская (9 мин. 🚶)
Москва, Большая Почтовая улица, 30с1к10
ЖК "Резиденция Архитекторов"
Тип: Торговое помещение
Площадь: 150.00 м2
800 000 в месяц
64 000 в год за м2
Позвонить Подробнее
Савёловская (3 мин. 🚶)
Москва, улица Сущёвский Вал, 3/5А
Жилое здание «Сущевский 3/5А»
Тип: Торговое помещение
Площадь: 96.00 м2
Мощность:20 кВт
585 000 в месяц
73 125 в год за м2
Позвонить Подробнее
ЗИЛ (15 мин. 🚶)
Москва, ЖК Шагал
ЖК «Shagal»
Тип: Торговое помещение
Площадь: 180.60 м2
993 300 в месяц
66 000 в год за м2
Позвонить Подробнее
ЗИЛ (15 мин. 🚶)
Москва, ЖК Шагал
ЖК «Shagal»
Тип: Торговое помещение
Площадь: 126.30 м2
694 650 в месяц
66 000 в год за м2
Позвонить Подробнее
Каширская (7 мин. 🚗)
Москва, Каширский проезд, 25к2
ЖК: LIFE-Варшавская (Лайф-Варшавская)
Тип: Торговое помещение
Площадь: 93.50 м2
490 000 в месяц
62 888 в год за м2
Позвонить Подробнее
Савёловская (3 мин. 🚶)
Москва, улица Сущёвский Вал, 3/5А
Жилое здание «Сущевский 3/5А»
Тип: Торговое помещение
Площадь: 107.00 м2
Мощность:35 кВт
650 000 в месяц
72 897 в год за м2
Позвонить Подробнее
ЗИЛ (15 мин. 🚶)
Москва, ЖК Шагал
ЖК «Shagal»
Тип: Торговое помещение
Площадь: 180.60 м2
993 300 в месяц
66 000 в год за м2
Позвонить Подробнее
ЗИЛ (15 мин. 🚶)
Москва, ЖК Шагал
ЖК «Shagal»
Тип: Торговое помещение
Площадь: 126.30 м2
694 650 в месяц
66 000 в год за м2
Позвонить Подробнее
ЗИЛ (15 мин. 🚶)
Москва, улица Петра Кончаловского, 5
ЖК "Шагал"
Тип: Торговое помещение
Площадь: 81.00 м2
351 867 в месяц
52 128 в год за м2
Позвонить Подробнее
ЗИЛ (15 мин. 🚶)
Москва, набережная Марка Шагала, 11к3
ЖК Шагал
Тип: Торговое помещение
Площадь: 50.00 м2
Мощность:10 кВт
400 000 в месяц
96 000 в год за м2
Позвонить Подробнее