Аренда торгового помещения Жилой дом "Ломоносовский проспект, 23"

Аренда торгового помещения Жилой дом Аренда торгового помещения Жилой дом Аренда торгового помещения Жилой дом Аренда торгового помещения Жилой дом
Аренда торгового помещения Жилой дом Аренда торгового помещения Жилой дом Аренда торгового помещения Жилой дом Аренда торгового помещения Жилой дом
Москва, Ломоносовский проспект, 23
Позвоните по телефону +7 495 230-28-26, либо оставьте заявку на просмотр прямо сейчас и узнайте условия специального предложения по объекту.
загрузка карты...
Аренда в год за м2 81 600 ₽
Аренда в месяц 850 000 ₽
Схема сделки прямая аренда
Первушина Марина Алексеевна

Объект ведет консультант:

Первушина Марина Алексеевна

Общие
ID 62095
Тип сделки Аренда
Площадь 125.00
Площадь всего 49092.00
Тип объекта Жилое здание
Этаж 1
Всего этажей в здании 8
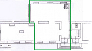
Метраж по этажам
Информация об объекте
Состояние объекта рабочее
Состояние блока выполнена стандартная офисная отделка
Планировка Открытая
Электрическая мощность,выделенная 15.00 кВт
Нюансы Отдельный вход
Торговая недвижимость
Линия домов 1 линия
Возможности Витрины,Место для рекламы,Проходное место,Проездное место
Электр. мощность (кВт) 40
Коммерческие условия
Аренда в год за м2 81 600 ₽
Аренда в месяц 850 000 ₽
Схема сделки прямая аренда
Тип собственника Юридическое лицо

Описание объекта
Предлагается в аренду торговое помещение  у м.Университет. Первый этаж жилого дома.
Общая площадь 125 м2, потолки 3 метра,  первая линия, витринные окна, вход с фасада, ремонт за выездом арендатора, выделенная мощность 40 квт.

Нужна консультация по подбору торговых площадей для аренды?

Наши специалисты подберут для вас самые выгодные варианты для долгосрочного инвестирования,
помогут в сопровождении и сделки, проверят все юридические вопросы касаемо приобретения недвижимости.

* Нажимая на кнопку «Отправить», Вы даете согласие на обработку персональных данных в соответствии с Политикой конфиденциальности

Похожие объекты

Бунинская аллея (36 мин. 🚗)
Москва, Новомосковский административный округ, район Щербинка, Любучанская улица, 1
ЖК «Остафьево»
Тип: Торговое помещение
Площадь: 133.90 м2
Мощность:27 кВт
390 000 в месяц
34 951 в год за м2
Позвонить Подробнее
Филёвский парк (4 мин. 🚶)
Москва, Кастанаевская улица, 32
Жилое здание "Кастанаевская улица, 32"
Тип: Торговое помещение
Площадь: 132.80 м2
Мощность:26 кВт
780 000 в месяц
70 482 в год за м2
Позвонить Подробнее
Бауманская (13 мин. 🚶)
Москва, Новая Басманная улица, 28с1
Жилое здание "Новая Басманная улица д. 28с1"
Тип: Торговое помещение
Площадь: 137.00 м2
Мощность:41 кВт
350 000 в месяц
30 657 в год за м2
Позвонить Подробнее
ЦСКА (5 мин. 🚶)
Москва, Ходынский бульвар, 2
Апарт-комплекс «Лайнер»
Тип: Торговое помещение
Площадь: 135.00 м2
Мощность:50 кВт
700 000 в месяц
62 222 в год за м2
Позвонить Подробнее
Университет (17 мин. 🚗)
Москва, улица Крупской, 8к2
Жилое здание "Крупской, 8к2"
Тип: Торговое помещение
Площадь: 113.00 м2
Мощность:15 кВт
145 000 в месяц
15 398 в год за м2
Позвонить Подробнее
Сретенский бульвар (2 мин. 🚶)
Москва, Сретенский бульвар, 6/1с1
Жилое здание «Сретенский 6/1 с1»
Тип: Торговое помещение
Площадь: 132.20 м2
Мощность:35 кВт
550 000 в месяц
49 924 в год за м2
Позвонить Подробнее
Парк культуры (7 мин. 🚶)
Москва, Комсомольский проспект, 9А
Жилое здание "Комсомольский проспект, 9А"
Тип: Торговое помещение
Площадь: 121.70 м2
Мощность:30 кВт
1 000 000 в месяц
98 603 в год за м2
Позвонить Подробнее
ЗИЛ (15 мин. 🚶)
Москва, ЖК Шагал
ЖК «Shagal»
Тип: Торговое помещение
Площадь: 126.30 м2
694 650 в месяц
66 000 в год за м2
Позвонить Подробнее
Дубровка (5 мин. 🚶)
Москва, Шарикоподшипниковская улица, 13с1
Бизнес-центр «Дубровка»
Тип: Торговое помещение
Площадь: 114.30 м2
550 069 в месяц
57 750 в год за м2
Позвонить Подробнее
Коломенская (1 мин. 🚶)
Москва, проспект Андропова, 21
ОСЗ "проспект Андропова, 21"
Тип: Торговое помещение
Площадь: 125.00 м2
Мощность:15 кВт
600 000 в месяц
57 600 в год за м2
Позвонить Подробнее
Кунцевская (8 мин. 🚗)
Москва, Верейская улица, 29с134
Бизнес-центр «Верейская плаза III»
Тип: Торговое помещение
Площадь: 134.40 м2
392 000 в месяц
35 000 в год за м2
Позвонить Подробнее
Медведково (9 мин. 🚗)
Москва, улица Малыгина, 20
ОСЗ "Малыгина, 20"
Тип: Торговое помещение
Площадь: 135.00 м2
Мощность:80 кВт
350 000 в месяц
31 111 в год за м2
Позвонить Подробнее
Коммунарка (12 мин. 🚗)
Москва, Новомосковский административный округ, посёлок Коммунарка, улица Александры Монаховой, 85к1
ЖК "Бунинские Луга"
Тип: Торговое помещение
Площадь: 84.40 м2
Мощность:33 кВт
560 000 в месяц
79 621 в год за м2
Позвонить Подробнее
Арбатская (Филевская) Арбатская (Арбатско-Покровская) (5 мин. 🚶)
Москва, улица Арбат, 22/2с4
Торговое Здание на Старом Арбате
Тип: Торговое помещение
Площадь: 309.00 м2
Мощность:100 кВт
2 100 000 в месяц
81 553 в год за м2
Позвонить Подробнее
Спортивная (6 мин. 🚶)
Москва, улица Ефремова, 19к1
ЖК Knightsbridge
Тип: Торговое помещение
Площадь: 251.70 м2
Мощность:60 кВт
1 600 000 в месяц
76 281 в год за м2
Позвонить Подробнее
Полежаевская (11 мин. 🚶)
Москва, Улица Зорге, 9
Бизнес-квартал «Зорге 9»
Тип: Торговое помещение
Площадь: 106.90 м2
Мощность:40 кВт
757 208 в месяц
85 000 в год за м2
Позвонить Подробнее
Белорусская (5 мин. 🚶)
Москва, 1-я Брестская улица, 62
Офисное здание «1-я Брестская 62»
Тип: Торговое помещение
Площадь: 300.00 м2
Мощность:200 кВт
2 000 000 в месяц
80 000 в год за м2
Позвонить Подробнее
Смоленская (Филевская) Смоленская (Арбатско-Покровская) (2 мин. 🚶)
Москва, Карманицкий переулок, 9
БЦ Арбат
Тип: Торговое помещение
Площадь: 218.30 м2
1 500 000 в месяц
82 455 в год за м2
Позвонить Подробнее
Кунцевская (10 мин. 🚶)
Москва, Молдавская улица, 1с8
Бизнес-центр "Upside"
Тип: Торговое помещение
Площадь: 71.80 м2
Мощность:5 кВт
491 212 в месяц
82 097 в год за м2
Позвонить Подробнее
Кунцевская (10 мин. 🚶)
Москва, Молдавская улица, 1с8
Бизнес-центр "Upside"
Тип: Торговое помещение
Площадь: 63.00 м2
Мощность:5 кВт
439 401 в месяц
83 695 в год за м2
Позвонить Подробнее
Кунцевская (10 мин. 🚶)
Москва, Молдавская улица, 1с8
Бизнес-центр "Upside"
Тип: Торговое помещение
Площадь: 50.40 м2
Мощность:5 кВт
315 000 в месяц
75 000 в год за м2
Позвонить Подробнее
Кунцевская (10 мин. 🚶)
Москва, Молдавская улица, 1с8
Бизнес-центр "Upside"
Тип: Торговое помещение
Площадь: 43.50 м2
Мощность:5 кВт
286 818 в месяц
79 122 в год за м2
Позвонить Подробнее
Кунцевская (10 мин. 🚶)
Москва, Молдавская улица, 1с8
Бизнес-центр "Upside"
Тип: Торговое помещение
Площадь: 28.00 м2
Мощность:5 кВт
197 980 в месяц
84 849 в год за м2
Позвонить Подробнее
Технопарк (5 мин. 🚶)
Москва, проспект Лихачёва, 8
Бизнес-Центр "Тесла"
Тип: Торговое помещение
Площадь: 2451.00 м2
Мощность:100 кВт
15 073 650 в месяц
73 800 в год за м2
Позвонить Подробнее
Университет (17 мин. 🚗)
Москва, улица Крупской, 8к2
Жилое здание "Крупской, 8к2"
Тип: Торговое помещение
Площадь: 113.00 м2
Мощность:15 кВт
145 000 в месяц
15 398 в год за м2
Позвонить Подробнее
Университет (5 мин. 🚶)
Москва, Ломоносовский проспект, 18
Жилое здание "Ломоносовский просп., 18"
Тип: Торговое помещение
Площадь: 480.00 м2
Мощность:75 кВт
1 250 000 в месяц
31 250 в год за м2
Позвонить Подробнее
Университет (19 мин. 🚶)
Москва, Ленинский проспект, 82/2
Жилое здание "Ленинский проспект, 82/2"
Тип: Торговое помещение
Площадь: 550.30 м2
Мощность:60 кВт
2 050 000 в месяц
44 703 в год за м2
Позвонить Подробнее

Спец. предложение

Университет (15 мин. 🚶)
Москва, Ленинский проспект, 75/9
Жилое здание "Ленинский пр-т 75/9"
Тип: Торговое помещение
Площадь: 127.00 м2
Мощность:40 кВт
1 100 000 в месяц
103 937 в год за м2
Позвонить Подробнее
Университет (19 мин. 🚶)
Москва, Ленинский проспект, 82/2
Жилое здание "Ленинский проспект, 82/2"
Тип: Торговое помещение
Площадь: 124.30 м2
Мощность:20 кВт
420 000 в месяц
40 547 в год за м2
Позвонить Подробнее
Университет (2 мин. 🚶)
Москва, проспект Вернадского, 9/10
Жилое здание "проспект Вернадского, 9/10"
Тип: Торговое помещение
Площадь: 260.00 м2
Мощность:70 кВт
870 000 в месяц
40 154 в год за м2
Позвонить Подробнее
Университет (4 мин. 🚶)
Москва, Ломоносовский проспект, 23
Жилой дом "Ломоносовский проспект, 23"
Тип: Торговое помещение
Площадь: 171.00 м2
Мощность:40 кВт
1 200 000 в месяц
84 211 в год за м2
Позвонить Подробнее
Университет (20 мин. 🚶)
Москва, Ленинский проспект, 85
Жилое здание "Ленинский проспект, 85"
Тип: Торговое помещение
Площадь: 246.50 м2
Мощность:140 кВт
850 000 в месяц
41 379 в год за м2
Позвонить Подробнее
Университет (20 мин. 🚶)
Москва, Ленинский проспект, 87
Жилое здание "Ленинский проспект, 87"
Тип: Торговое помещение
Площадь: 301.70 м2
Мощность:50 кВт
675 000 в месяц
26 848 в год за м2
Позвонить Подробнее