Продажа торгового помещения ЖК «Shagal»

Продажа торгового помещения ЖК «Shagal»
Москва, ЖК Шагал
Позвоните по телефону +7 495 230-28-26, либо оставьте заявку на просмотр прямо сейчас и узнайте условия специального предложения по объекту.
загрузка карты...
Федотов Владислав Александрович

Объект ведет консультант:

Федотов Владислав Александрович

Общие
ID 62161
Тип сделки Продажа
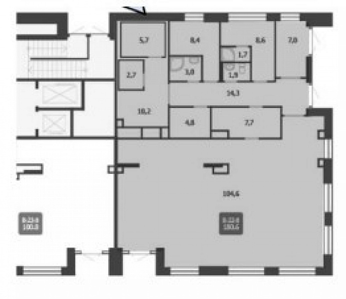
Площадь 180.60
Площадь всего 256935.00
Тип объекта Жилое здание
Этаж 1
Всего этажей в здании 28
Метраж по этажам
Информация об объекте
Состояние блока помещение без отделки
Планировка Открытая
Нюансы Отдельный вход
Торговая недвижимость
Линия домов 1 линия
Возможности Зона разгрузки,Витрины,Место для рекламы,Проходное место,Проездное место
Коммерческие условия
За все 120 099 000 ₽
За м 2 665 000 ₽
Тип собственника Юридическое лицо

Описание объекта
Продажа помещения свободного назначения 180.6 м2 на 1 этаже в ЖК "Шагал"
Нежилое помещение №В-22-8, Корпус №8

2 отдельных входа с фасада

Электрическая мощность 200 Вт/м2
Выводы ГВС/ХВС и канализации
Современные инженерные системы

Первая линия набережной Марка Шагала.
Комплекс представляет собой 21 здание переменной этажности, в которых расположено
6000 квартир.
Район спроектирован по принципу 15-минутной доступности. Развитая инфраструктура. Высокий автомобильный и пешеходный трафик.
Ближайшая станция МЦК ЗИЛ (19 минут пешком).
1 этаж жилого дома. Отдельный вход с фасада.
Зальная планировка. Витринное остекление.
Высота потолков: от 5,6 м до 6,12 м, что позволяет сделать полноценную антресоль, и
увеличить площадь помещений на 40%.
Ввод в эксплуатацию:
7 корпус 4 квартал 2025 год
8 корпус 4 квартал 2026 год

Срок ввода 4 квартал 2026г.

Нужна консультация покупке или продаже торговых помещений?

Наши специалисты подберут для вас самые выгодные варианты для долгосрочного инвестирования,
помогут в сопровождении и сделки, проверят все юридические вопросы касаемо приобретения недвижимости.

* Нажимая на кнопку «Отправить», Вы даете согласие на обработку персональных данных в соответствии с Политикой конфиденциальности

Похожие объекты

ВДНХ (14 мин. 🚗)
Москва, проспект Мира, 135А
Жилое здание "проспект Мира, 135А"
Тип: Торговое помещение
Площадь: 167.10 м2
Мощность:33 кВт
61 000 000 за все
365 051 за м2
Позвонить Подробнее
Перово (15 мин. 🚗)
Москва, улица Плеханова, 24к1
Жилое здание "Плеханова, 24к1"
Тип: Торговое помещение
Площадь: 181.30 м2
Мощность:65 кВт
58 500 000 за все
322 670 за м2
Позвонить Подробнее
Тропарёво (11 мин. 🚶)
Москва, проспект Вернадского, 94к5
Жилое здание "проспект Вернадского, 94к5"
Тип: Торговое помещение
Площадь: 188.60 м2
60 000 000 за все
318 134 за м2
Позвонить Подробнее
Багратионовская (4 мин. 🚶)
Москва, улица Барклая, 6
ЖК "Барклая 6"
Тип: Торговое помещение
Площадь: 180.00 м2
Мощность:32 кВт
105 000 000 за все
583 333 за м2
Позвонить Подробнее
Смоленская (Филевская) Смоленская (Арбатско-Покровская) (13 мин. 🚶)
Москва, улица Плющиха, 42
Жилое здание "Плющиха 42"
Тип: Торговое помещение
Площадь: 181.40 м2
Мощность:36 кВт
163 000 000 за все
898 567 за м2
Позвонить Подробнее
Менделеевская (5 мин. 🚶)
Москва, Новослободская улица, 24Ас2
ЖК "РЕНОМЭ"
Тип: Торговое помещение
Площадь: 182.50 м2
Мощность:86 кВт
205 000 000 за все
1 123 288 за м2
Позвонить Подробнее
Марьина Роща (15 мин. 🚶)
Москва, 12-й проезд Марьиной Рощи, 8
Лофт-квартал «Studio #12»
Тип: Торговое помещение
Площадь: 178.50 м2
Мощность:38 кВт
65 000 000 за все
364 146 за м2
Позвонить Подробнее
Закрытая продажа #62470
Тип: Торговое помещение
Площадь: 180.80 м2
52 200 000 за все
288 717 за м2
Позвонить Подробнее
Арбатская (Филевская) Арбатская (Арбатско-Покровская) (7 мин. 🚶)
Москва, Калашный переулок, 5
Офисное здание «Калашный 5»
Тип: Торговое помещение
Площадь: 169.10 м2
Мощность:50 кВт
209 684 000 за все
1 240 000 за м2
Позвонить Подробнее
Говорово (8 мин. 🚶)
Москва, Боровское шоссе, вл2
БЦ "MOUNT"
Тип: Торговое помещение
Площадь: 178.80 м2
69 374 400 за все
388 000 за м2
Позвонить Подробнее
Улица 1905 года (14 мин. 🚶)
Москва, улица Сергея Макеева, вл11/9с1-10
ЖК "LIFE TIME"
Тип: Торговое помещение
Площадь: 168.60 м2
244 460 000 за все
1 449 941 за м2
Позвонить Подробнее
Улица 1905 года (14 мин. 🚶)
Москва, улица Сергея Макеева, вл11/9с1-10
ЖК "LIFE TIME"
Тип: Торговое помещение
Площадь: 172.10 м2
210 970 000 за все
1 225 857 за м2
Позвонить Подробнее
Селигерская (1 мин. 🚶)
Москва, Коровинское шоссе, 1А
ОСЗ "Коровинское ш., д.1А стр.1"
Тип: Торговое помещение
Площадь: 208.40 м2
114 000 000 за все
547 025 за м2
Позвонить Подробнее
Шипиловская (23 мин. 🚗)
Закрытая продажа #59632
Тип: Торговое помещение
Площадь: 579.00 м2
Мощность:230 кВт
120 000 000 за все
207 254 за м2
Позвонить Подробнее
Бабушкинская (16 мин. 🚶)
Москва, улица Искры, 1
Жилой комплекс "Искры радости"
Тип: Торговое помещение
Площадь: 437.10 м2
113 646 000 за все
260 000 за м2
Позвонить Подробнее
Бауманская (7 мин. 🚶)
Москва, Бауманская улица, 11с8
Торгово-офисный комлекс"Бауманская улица, 11с8"
Тип: Торговое помещение
Площадь: 464.20 м2
129 976 000 за все
280 000 за м2
Позвонить Подробнее
Закрытая продажа #34299
Тип: Торговое помещение
Площадь: 818.60 м2
Мощность:134 кВт
117 606 625 за все
143 668 за м2
Позвонить Подробнее
Университет (14 мин. 🚗)
Москва, Ленинский проспект, 67к2
ЖК "Университетский"
Тип: Торговое помещение
Площадь: 282.60 м2
Мощность:40 кВт
129 000 000 за все
456 476 за м2
Позвонить Подробнее
Цветной бульвар (5 мин. 🚶)
Москва, Садовая-Каретная улица, 24/7
Жилое здание "Садовая-Каретная улица, 24/7"
Тип: Торговое помещение
Площадь: 377.00 м2
115 000 000 за все
305 040 за м2
Позвонить Подробнее
Дубровка (30 мин. 🚶)
Москва, улица Эдуарда Стрельцова, 2к1
ЖК «FORIVER (Форивер)»
Тип: Торговое помещение
Площадь: 177.70 м2
Мощность:53 кВт
111 270 000 за все
626 168 за м2
Позвонить Подробнее
Беговая (10 мин. 🚶)
Москва, Беговая улица, 18к2
Жилое здание "Беговая улица, 18к2"
Тип: Торговое помещение
Площадь: 409.00 м2
Мощность:42 кВт
120 000 000 за все
293 399 за м2
Позвонить Подробнее
Бунинская аллея (40 мин. 🚗)
Московская область, городской округ Чехов, деревня Ивино, Весенняя улица, 65
ОСЗ "Весенняя 65"
Тип: Торговое помещение
Площадь: 550.50 м2
Мощность:150 кВт
110 000 000 за все
199 818 за м2
Позвонить Подробнее
Беляево (10 мин. 🚶)
Москва, улица Миклухо-Маклая, вл23
ЖК "Very (ВЕРИ)"
Тип: Торговое помещение
Площадь: 262.10 м2
129 739 500 за все
495 000 за м2
Позвонить Подробнее
Новохохловская (10 мин. 🚶)
Москва, 1-й Грайвороновский проезд, 3
ЖК "Волжский парк"
Тип: Торговое помещение
Площадь: 248.00 м2
Мощность:22 кВт
111 600 000 за все
450 000 за м2
Позвонить Подробнее
ЗИЛ (15 мин. 🚶)
Москва, ЖК Шагал
ЖК «Shagal»
Тип: Торговое помещение
Площадь: 126.30 м2
82 095 000 за все
650 000 за м2
Позвонить Подробнее
ЗИЛ (15 мин. 🚶)
Москва, ЖК Шагал
ЖК «Shagal»
Тип: Торговое помещение
Площадь: 119.70 м2
Мощность:200 кВт
84 140 000 за все
702 924 за м2
Позвонить Подробнее
ЗИЛ (15 мин. 🚶)
Закрытая продажа #59250
Тип: Торговое помещение
Площадь: 113.90 м2
76 896 624 за все
675 124 за м2
Позвонить Подробнее
ЗИЛ (15 мин. 🚶)
Закрытая продажа #59249
Тип: Торговое помещение
Площадь: 127.50 м2
91 446 953 за все
717 231 за м2
Позвонить Подробнее
ЗИЛ (15 мин. 🚶)
Закрытая продажа #59248
Тип: Торговое помещение
Площадь: 99.70 м2
58 243 245 за все
584 185 за м2
Позвонить Подробнее
ЗИЛ (15 мин. 🚶)
Закрытая продажа #59247
Тип: Торговое помещение
Площадь: 70.60 м2
48 784 435 за все
690 998 за м2
Позвонить Подробнее