Аренда офиса ЖК Дом Газпрома

Объект успешно реализован!
Аренда офиса ЖК Дом Газпрома Аренда офиса ЖК Дом Газпрома Аренда офиса ЖК Дом Газпрома Аренда офиса ЖК Дом Газпрома Аренда офиса ЖК Дом Газпрома
Аренда офиса ЖК Дом Газпрома - превью Аренда офиса ЖК Дом Газпрома - превью Аренда офиса ЖК Дом Газпрома - превью Аренда офиса ЖК Дом Газпрома - превью Аренда офиса ЖК Дом Газпрома - превью
Москва, Новочерёмушкинская улица, 71/32
Объект успешно реализован, но у нас есть много других интересных предложений. Позвоните по телефону +7 495 230-28-26, либо оставьте заявку на подбор прямо сейчас и получите список подходящих для вас объектов.
загрузка карты...
Аренда в год за м2 24 000 ₽
Аренда в месяц 2 418 600 ₽
Схема сделки прямая аренда
Первушина Марина Алексеевна

Объект ведет консультант:

Первушина Марина Алексеевна

Общие
ID 62656
Тип сделки Аренда
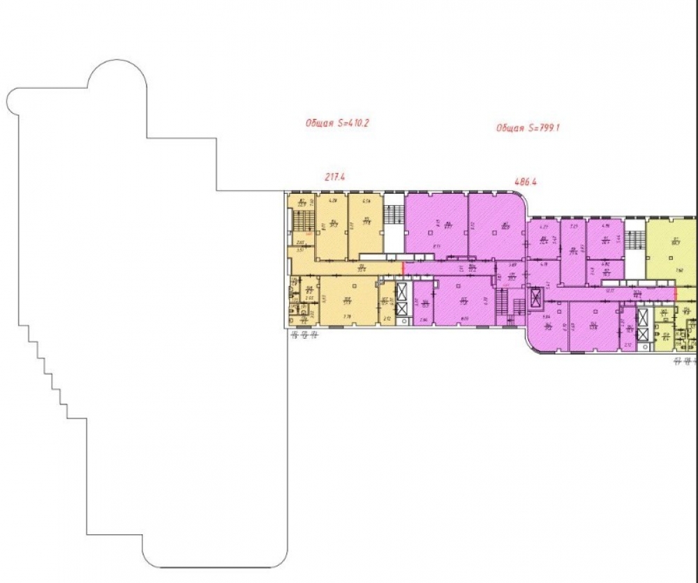
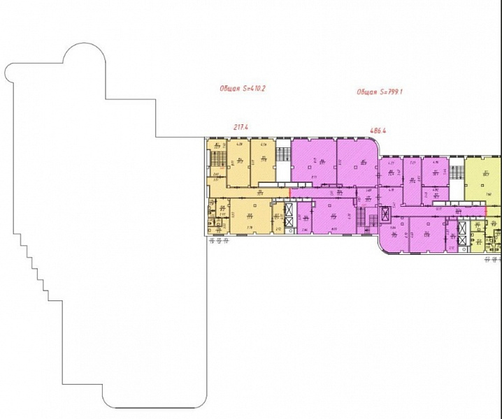
Площадь 1209.30
Площадь всего 45992.00
Тип объекта Жилой комплекс
Этаж 1 - 2
Всего этажей в здании 21
Метраж по этажам
Этаж: 1 - 505.5 м2
Этаж: 2 - 703.8 м2
Информация об объекте
Состояние объекта рабочее
Состояние блока выполнена стандартная офисная отделка
Планировка Залы и кабинеты
Перекрытия Железобетонные
Парковка подземная/наземная
Нюансы Отдельный вход
Коммерческие условия
Аренда в год за м2 24 000 ₽
Аренда в месяц 2 418 600 ₽
Схема сделки прямая аренда
Тип собственника Юридическое лицо

Описание объекта
Предлагаем к аренде помещение под офис/медицину в ЮЗАО. Стилобат ЖК Дом Газпрома.
До м.Новые Черемушки 15 минут пешком. Двухуровневый блок с 2 отдельными входами со двора, кабинетная планировка, много окон, ремонт необходимо освежить, выделенная мощность 120квт.
Помещение свободно к заезду.

Нужна консультация по подбору помещения под офис?

Наши специалисты подберут для вас самые выгодные варианты для долгосрочного инвестирования,
помогут в сопровождении и сделки, проверят все юридические вопросы касаемо приобретения недвижимости.

* Нажимая на кнопку «Отправить», Вы даете согласие на обработку персональных данных в соответствии с Политикой конфиденциальности

Похожие объекты

Ленинский проспект (11 мин. 🚶)
Москва, Улица Вавилова, 24к1
Бизнес-центр «Vaviloff Tower»
Тип: Офисы
Площадь: 1160.76 м2
Отделка:выполнена высококачественная отделка
4 449 580 в месяц
46 000 в год за м2
Позвонить Подробнее
Кропоткинская (14 мин. 🚶)
Москва, Якиманская набережная, 2
Бизнес-центр «Голутвинский двор»
Тип: Офисы
Площадь: 1235.80 м2
Отделка:выполнена стандартная офисная отделка
6 797 010 в месяц
66 001 в год за м2
Позвонить Подробнее
Тверская (2 мин. 🚶)
Москва, Тверская улица, 16с1
Бизнес-центр «Галерея Актер»
Тип: Офисы
Площадь: 1114.00 м2
Отделка:выполнена высококачественная отделка
13 806 000 в месяц
148 718 в год за м2
Позвонить Подробнее
(4 мин. 🚶)
Москва, Газетный переулок, 17
Бизнес-центр «Газетный 17"
Тип: Офисы
Площадь: 1246.00 м2
Отделка:качественная отделка
12 016 800 в месяц
115 732 в год за м2
Позвонить Подробнее
Дмитровская (12 мин. 🚶)
Москва, 2-я Хуторская улица, 38А
Бизнес-центр "Мирлэнд"
Тип: Офисы
Площадь: 1269.00 м2
Отделка:выполнена стандартная офисная отделка
2 855 250 в месяц
27 000 в год за м2
Позвонить Подробнее
Деловой центр Деловой центр (МЦК) (5 мин. 🚶)
Москва, Пресненская набережная, 2
Бизнес пространство Moscow City
Тип: Офисы
Площадь: 1120.00 м2
Отделка:качественная отделка
6 533 333 в месяц
70 000 в год за м2
Позвонить Подробнее
Савёловская (5 мин. 🚶)
Москва, Бумажный проезд, 19с4
БЦ STONE TOWERS
Тип: Офисы
Площадь: 1109.00 м2
Отделка:Shell and Core
4 158 750 в месяц
45 000 в год за м2
Позвонить Подробнее
Шелепиха (20 мин. 🚶)
Москва, 1-й Магистральный проезд, 11с1
Бизнес-центр «Интерьер»
Тип: Офисы
Площадь: 1100.00 м2
Отделка:требуется косметический ремонт
1 833 333 в месяц
20 000 в год за м2
Позвонить Подробнее
Крылатское (10 мин. 🚗)
Закрытая продажа #61167
Тип: Офисы
Площадь: 1200.00 м2
Отделка:качественная отделка
2 850 000 в месяц
28 500 в год за м2
Позвонить Подробнее
Савёловская (10 мин. 🚶)
Москва, Улица Двинцев, 12к1
Бизнес-центр «Двинцев»
Тип: Офисы
Площадь: 1312.00 м2
Отделка:качественная отделка
6 459 195 в месяц
59 078 в год за м2
Позвонить Подробнее
ЦСКА (15 мин. 🚶)
Москва, Ленинградский проспект, 37Ак4
БЦ "Аркус 3"
Тип: Офисы
Площадь: 1282.00 м2
Отделка:выполнена стандартная офисная отделка
8 820 160 в месяц
82 560 в год за м2
Позвонить Подробнее
Комсомольская (11 мин. 🚶)
Москва, Докучаев переулок, 8
Особняк «Докучаев 8»
Тип: Офисы
Площадь: 1240.00 м2
5 373 333 в месяц
52 000 в год за м2
Позвонить Подробнее
Речной вокзал (14 мин. 🚗)
Москва, Смольная улица, 14
Бизнес-центр «Смольный»
Тип: Офисы
Площадь: 221.47 м2
Отделка:выполнена стандартная офисная отделка
461 396 в месяц
25 000 в год за м2
Позвонить Подробнее
Ботанический сад (12 мин. 🚶)
Москва, улица Докукина, 16с1
Бизнес-центр «Леоново»
Тип: Офисы
Площадь: 894.30 м2
Отделка:выполнена стандартная офисная отделка
1 894 426 в месяц
25 420 в год за м2
Позвонить Подробнее
Алексеевская (10 мин. 🚶)
Москва, улица Годовикова, 9с31
Бизнес-центр «Калибр» с31
Тип: Офисы
Площадь: 955.50 м2
Отделка:выполнена стандартная офисная отделка
1 777 708 в месяц
22 326 в год за м2
Позвонить Подробнее
Ботанический сад (12 мин. 🚶)
Москва, улица Докукина, 16с1
Бизнес-центр «Леоново»
Тип: Офисы
Площадь: 540.00 м2
Отделка:выполнена стандартная офисная отделка
1 125 000 в месяц
25 000 в год за м2
Позвонить Подробнее
Авиамоторная (10 мин. 🚶)
Москва, шоссе Энтузиастов, 21с3
БЦ "Соколиная Гора"
Тип: Офисы
Площадь: 951.00 м2
Отделка:выполнена стандартная офисная отделка
1 711 800 в месяц
21 600 в год за м2
Позвонить Подробнее
Авиамоторная (10 мин. 🚶)
Москва, шоссе Энтузиастов, 21с1
Бизнес-центр «Соколиная гора»
Тип: Офисы
Площадь: 1500.00 м2
Отделка:выполнена стандартная офисная отделка
2 700 000 в месяц
21 600 в год за м2
Позвонить Подробнее
Авиамоторная (10 мин. 🚶)
Москва, шоссе Энтузиастов, 21
БЦ "Соколиная Гора"
Тип: Офисы
Площадь: 3763.00 м2
Отделка:выполнена стандартная офисная отделка
6 773 940 в месяц
21 602 в год за м2
Позвонить Подробнее
Шаболовская (10 мин. 🚗)
Москва, 2-й Верхний Михайловский проезд, 9с5
Офисное здание «2-й Верхний Михайловский 9 с5»
Тип: Офисы
Площадь: 523.60 м2
Отделка:выполнена стандартная офисная отделка
1 108 985 в месяц
25 416 в год за м2
Позвонить Подробнее
ВДНХ (15 мин. 🚶)
Москва, Ракетный бульвар, 16
Бизнес-центр «Алексеевская Башня»
Тип: Офисы
Площадь: 333.90 м2
Отделка:выполнена стандартная офисная отделка
712 877 в месяц
25 620 в год за м2
Позвонить Подробнее
Багратионовская (4 мин. 🚶)
Москва, Улица Барклая, 13с1
БЦ Барклая 13
Тип: Офисы
Площадь: 371.40 м2
Отделка:выполнена стандартная офисная отделка
780 000 в месяц
25 202 в год за м2
Позвонить Подробнее
Кожуховская (6 мин. 🚶)
Москва, 2-й Южнопортовый проезд, 14/22
Офисно-складской комплекс «Южнопортовый»
Тип: Офисы
Площадь: 2500.00 м2
Отделка:требуется косметический ремонт
5 000 000 в месяц
24 000 в год за м2
Позвонить Подробнее
Кожуховская (6 мин. 🚶)
Москва, 2-й Южнопортовый проезд, 14/22
Офисно-складской комплекс «Южнопортовый»
Тип: Офисы
Площадь: 1520.00 м2
Отделка:требуется косметический ремонт
3 040 000 в месяц
24 000 в год за м2
Позвонить Подробнее
Калужская (7 мин. 🚶)
Москва, улица Обручева, 23с1
Бизнес - центр "Geolog"
Тип: Офисы
Площадь: 595.00 м2
Отделка:Shell and Core
1 618 400 в месяц
32 640 в год за м2
Позвонить Подробнее
Калужская (7 мин. 🚶)
Москва, улица Обручева, 23с1
Бизнес - центр "Geolog"
Тип: Офисы
Площадь: 198.60 м2
Отделка:Shell and Core
540 192 в месяц
32 640 в год за м2
Позвонить Подробнее
Калужская (9 мин. 🚶)
Москва, Улица Обручева, 23к3
Бизнес-центр «Газфилд»
Тип: Офисы
Площадь: 289.27 м2
Отделка:выполнена стандартная офисная отделка
808 751 в месяц
33 550 в год за м2
Позвонить Подробнее
Калужская (14 мин. 🚗)
Москва, Улица Новаторов, 15
Офисное здание «Новаторов 15»
Тип: Офисы
Площадь: 916.30 м2
Отделка:требуется косметический ремонт
1 450 809 в месяц
19 000 в год за м2
Позвонить Подробнее
Калужская (15 мин. 🚶)
Москва, Новочерёмушкинская улица, 71/32
ЖК Дом Газпрома
Тип: Офисы
Площадь: 410.20 м2
Отделка:выполнена стандартная офисная отделка
820 400 в месяц
24 000 в год за м2
Позвонить Подробнее
Калужская (10 мин. 🚶)
Москва, Улица Бутлерова, 17
Бизнес-центр «NEO GEO»
Тип: Офисы
Площадь: 173.00 м2
Отделка:отделка арендатора
375 000 в месяц
26 012 в год за м2
Позвонить Подробнее
Калужская (12 мин. 🚶)
Москва, Научный проезд, 19
Бизнес-центр «9 Акров»
Тип: Офисы
Площадь: 114.00 м2
Отделка:качественная отделка
275 500 в месяц
29 000 в год за м2
Позвонить Подробнее
Калужская (12 мин. 🚶)
Москва, Научный проезд, 19
Бизнес-центр «9 Акров»
Тип: Офисы
Площадь: 520.00 м2
Отделка:выполнена стандартная офисная отделка
866 667 в месяц
20 000 в год за м2
Позвонить Подробнее
Калужская (3 мин. 🚶)
Москва, Профсоюзная улица, 65к1
Бизнес-центр «Лотте»
Тип: Офисы
Площадь: 628.60 м2
Отделка:выполнена стандартная офисная отделка
2 074 380 в месяц
39 600 в год за м2
Позвонить Подробнее
Калужская (3 мин. 🚶)
Москва, Профсоюзная улица, 65к1
Бизнес-центр «Лотте»
Тип: Офисы
Площадь: 3488.40 м2
Отделка:качественная отделка
12 209 400 в месяц
42 000 в год за м2
Позвонить Подробнее
Калужская (3 мин. 🚶)
Москва, Профсоюзная улица, 65к1
Бизнес-центр «Лотте»
Тип: Офисы
Площадь: 1733.00 м2
Отделка:качественная отделка
6 065 500 в месяц
42 000 в год за м2
Позвонить Подробнее
Калужская (3 мин. 🚶)
Москва, Профсоюзная улица, 65к1
Бизнес-центр «Лотте»
Тип: Офисы
Площадь: 346.90 м2
Отделка:качественная отделка
1 179 460 в месяц
40 800 в год за м2
Позвонить Подробнее