Аренда офиса БЦ "Павелецкая Плаза"

Аренда офиса БЦ Аренда офиса БЦ Аренда офиса БЦ
Аренда офиса БЦ Аренда офиса БЦ Аренда офиса БЦ
Москва, Павелецкая площадь, 2с3
Позвоните по телефону +7 495 230-28-26, либо оставьте заявку на просмотр прямо сейчас и узнайте условия специального предложения по объекту.
загрузка карты...
Аренда в год за м2 68 400 ₽
Аренда в месяц 2 063 400 ₽
Схема сделки прямая аренда
Первушина Марина Алексеевна

Объект ведет консультант:

Первушина Марина Алексеевна

Общие
ID 62664
Тип сделки Аренда
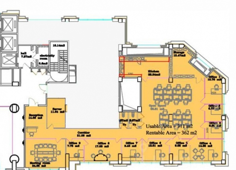
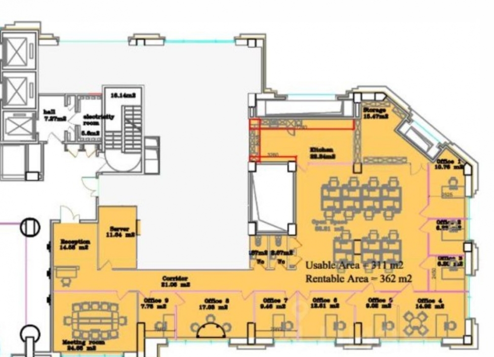
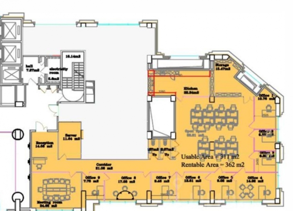
Площадь 362.00
Площадь всего 20403.00
Тип объекта Бизнес-центр
Этаж 2
Всего этажей в здании 14
Метраж по этажам
Информация об объекте
Состояние объекта рабочее
Состояние блока выполнена стандартная офисная отделка
Планировка Смешанная
Перекрытия Железобетонные
Парковка наземная 15000р/мес, подземная 25000р/мес
Коммерческие условия
Аренда в год за м2 68 400 ₽
Аренда в месяц 2 063 400 ₽
Схема сделки прямая аренда
Тип собственника Юридическое лицо

Описание объекта
Предлагаем в аренду офис в бизнес-центре класса А на Замоскворечье. До м.Павелецкая минута пешком.
Офис расположен на 2-м этаже, смешанная планировка, свои с/у, отделка за выездом арендатора. В здании приточная вентиляция, центральное кондиционирование.
Офис сдается без мебели.
В ставку включена эксплуатация, к/у оплачиваются отдельно.
За дополнительную плату предоставляются места на парковке.
Офис свободен к заезду с 1 января 2026

Нужна консультация по подбору помещения под офис?

Наши специалисты подберут для вас самые выгодные варианты для долгосрочного инвестирования,
помогут в сопровождении и сделки, проверят все юридические вопросы касаемо приобретения недвижимости.

* Нажимая на кнопку «Отправить», Вы даете согласие на обработку персональных данных в соответствии с Политикой конфиденциальности

Похожие объекты

Белорусская (13 мин. 🚶)
Москва, Улица Грузинский Вал, 10
БЦ «Грузинский вал 10 »
Тип: Офисы
Площадь: 353.30 м2
Отделка:отделка в стиле Loft
1 913 708 в месяц
65 000 в год за м2
Позвонить Подробнее
Белорусская (4 мин. 🚶)
Москва, 1-я Тверская-Ямская улица, 23с1
Деловой центр "Тверская-Ямская23"
Тип: Офисы
Площадь: 379.10 м2
Отделка:выполнена стандартная офисная отделка
1 326 850 в месяц
42 000 в год за м2
Позвонить Подробнее
Свиблово (1 мин. 🚶)
Москва, Снежная улица, 26
Торгово-офисный центр «Снежная 26»
Тип: Офисы
Площадь: 363.00 м2
Отделка:выполнена стандартная офисная отделка
1 089 000 в месяц
36 000 в год за м2
Позвонить Подробнее
Добрынинская (2 мин. 🚶)
Москва, Валовая улица, 35
Бизнес-центр «Wall Street»
Тип: Офисы
Площадь: 363.00 м2
Отделка:выполнена стандартная офисная отделка
1 815 000 в месяц
60 000 в год за м2
Позвонить Подробнее
ВДНХ (15 мин. 🚶)
Москва, Ракетный бульвар, 16
Бизнес-центр «Алексеевская Башня»
Тип: Офисы
Площадь: 333.90 м2
Отделка:выполнена стандартная офисная отделка
712 877 в месяц
25 620 в год за м2
Позвонить Подробнее
Электрозаводская (2 мин. 🚶)
Москва, Большая Семёновская улица, 11с1
Бизнес-парк «Соколиный Дворик»
Тип: Офисы
Площадь: 380.40 м2
Отделка:выполнена стандартная офисная отделка
602 300 в месяц
19 000 в год за м2
Позвонить Подробнее
Полежаевская (11 мин. 🚶)
Москва, Улица Зорге, 9
Бизнес-квартал «Зорге 9»
Тип: Офисы
Площадь: 355.00 м2
Отделка:выполнена высококачественная отделка
2 152 194 в месяц
72 750 в год за м2
Позвонить Подробнее
Багратионовская (4 мин. 🚶)
Москва, Улица Барклая, 13с1
БЦ Барклая 13
Тип: Офисы
Площадь: 371.40 м2
Отделка:выполнена стандартная офисная отделка
780 000 в месяц
25 202 в год за м2
Позвонить Подробнее
Проспект Мира (13 мин. 🚶)
Москва, Олимпийский проспект, 16с5
Бизнес-центр «Олимпик Холл»
Тип: Офисы
Площадь: 395.80 м2
Отделка:выполнена стандартная офисная отделка
1 500 016 в месяц
45 478 в год за м2
Позвонить Подробнее
Кунцевская (17 мин. 🚗)
Москва, Инновационный центр Сколково, улица Сикорского, 11
БЦ "Ренова Лаб Сколково"
Тип: Офисы
Площадь: 389.40 м2
Отделка:качественная отделка
1 168 200 в месяц
36 000 в год за м2
Позвонить Подробнее
Дмитровская (12 мин. 🚶)
Москва, 2-я Хуторская улица, 38А
Бизнес-центр "Мирлэнд"
Тип: Офисы
Площадь: 372.40 м2
Отделка:выполнена стандартная офисная отделка
868 933 в месяц
28 000 в год за м2
Позвонить Подробнее
Алексеевская (10 мин. 🚶)
Москва, улица Годовикова, 9с10
Бизнес-центр «Калибр» с10
Тип: Офисы
Площадь: 346.90 м2
Отделка:выполнена стандартная офисная отделка
1 146 244 в месяц
39 651 в год за м2
Позвонить Подробнее
Белорусская (13 мин. 🚶)
Москва, Улица Грузинский Вал, 10
БЦ «Грузинский вал 10 »
Тип: Офисы
Площадь: 353.30 м2
Отделка:отделка в стиле Loft
1 913 708 в месяц
65 000 в год за м2
Позвонить Подробнее
Войковская (7 мин. 🚶)
Москва, Ленинградское шоссе, 16Ас1
Бизнес-центр «Метрополис»
Тип: Офисы
Площадь: 835.00 м2
Отделка:качественная отделка
4 669 042 в месяц
67 100 в год за м2
Позвонить Подробнее
Динамо (5 мин. 🚶)
Москва, Ленинградский проспект, 31Ас1
МФК "МонАрх"
Тип: Офисы
Площадь: 1756.00 м2
Отделка:выполнена стандартная офисная отделка
9 087 154 в месяц
62 099 в год за м2
Позвонить Подробнее
Парк культуры (6 мин. 🚶)
Москва, Улица Остоженка, 25
Жилое здание «Остоженка 25»
Тип: Офисы
Площадь: 1843.00 м2
Отделка:качественная отделка
9 600 000 в месяц
62 507 в год за м2
Позвонить Подробнее
Кропоткинская (14 мин. 🚶)
Москва, Якиманская набережная, 2
Бизнес-центр «Голутвинский двор»
Тип: Офисы
Площадь: 1235.80 м2
Отделка:выполнена стандартная офисная отделка
6 797 010 в месяц
66 001 в год за м2
Позвонить Подробнее
Павелецкая (2 мин. 🚶)
Москва, Павелецкая площадь, 2с3
БЦ "Павелецкая Плаза"
Тип: Офисы
Площадь: 172.00 м2
Отделка:выполнена стандартная офисная отделка
980 400 в месяц
68 400 в год за м2
Позвонить Подробнее
Павелецкая (9 мин. 🚶)
Москва, Космодамианская набережная, 52с3
Бизнес-центр «Риверсайд Тауэрс» к 3
Тип: Офисы
Площадь: 1005.00 м2
Отделка:выполнена стандартная офисная отделка
5 226 000 в месяц
62 400 в год за м2
Позвонить Подробнее
Цветной бульвар (6 мин. 🚶)
Москва, 1-й Колобовский переулок, 17с1
Особняк «1-й Колобовский 17 с1»
Тип: Офисы
Площадь: 157.10 м2
Отделка:качественная отделка
942 600 в месяц
72 000 в год за м2
Позвонить Подробнее
Спортивная (6 мин. 🚶)
Москва, улица Ефремова, 19к1
ЖК Knightsbridge
Тип: Офисы
Площадь: 162.00 м2
Отделка:качественная отделка
1 000 000 в месяц
74 074 в год за м2
Позвонить Подробнее
Полежаевская (11 мин. 🚶)
Москва, Улица Зорге, 9
Бизнес-квартал «Зорге 9»
Тип: Офисы
Площадь: 355.00 м2
Отделка:выполнена высококачественная отделка
2 152 194 в месяц
72 750 в год за м2
Позвонить Подробнее
Хорошёво (10 мин. 🚶)
Москва, Проспект Маршала Жукова, 1с1
Бизнес-центр «1 Zhukov»
Тип: Офисы
Площадь: 150.50 м2
Отделка:качественная отделка
918 050 в месяц
73 200 в год за м2
Позвонить Подробнее
Курская (5 мин. 🚶)
Москва, 2-й Сыромятнический переулок, 1
Бизнес-центр "Дельта Плаза"
Тип: Офисы
Площадь: 205.00 м2
Отделка:выполнена стандартная офисная отделка
1 117 250 в месяц
65 400 в год за м2
Позвонить Подробнее
Павелецкая (5 мин. 🚶)
Москва, Валовая улица, 21к125
Административное здание "Валовая улица, 21к125"
Тип: Офисы
Площадь: 1615.20 м2
6 730 000 в месяц
50 000 в год за м2
Позвонить Подробнее
Павелецкая (2 мин. 🚶)
Москва, Павелецкая площадь, 2с3
БЦ "Павелецкая Плаза"
Тип: Офисы
Площадь: 172.00 м2
Отделка:выполнена стандартная офисная отделка
980 400 в месяц
68 400 в год за м2
Позвонить Подробнее
Павелецкая (2 мин. 🚶)
Москва, Павелецкая площадь, 2с2
Бизнес-центр «Павелецкая Тауэр»
Тип: Офисы
Площадь: 582.00 м2
Отделка:выполнена стандартная офисная отделка
3 899 400 в месяц
80 400 в год за м2
Позвонить Подробнее
Павелецкая (2 мин. 🚶)
Москва, Павелецкая площадь, 2с2
Бизнес-центр «Павелецкая Тауэр»
Тип: Офисы
Площадь: 461.00 м2
Отделка:выполнена стандартная офисная отделка
3 088 700 в месяц
80 400 в год за м2
Позвонить Подробнее
Павелецкая (9 мин. 🚶)
Москва, Космодамианская набережная, 52с3
Бизнес-центр «Риверсайд Тауэрс» к 3
Тип: Офисы
Площадь: 1005.00 м2
Отделка:выполнена стандартная офисная отделка
5 226 000 в месяц
62 400 в год за м2
Позвонить Подробнее
Павелецкая (16 мин. 🚗)
Москва, 1-й Дербеневский переулок, 5
Бизнес-центр «Дербеневская Плаза»
Тип: Офисы
Площадь: 415.20 м2
Отделка:выполнена стандартная офисная отделка
1 366 700 в месяц
39 500 в год за м2
Позвонить Подробнее
Павелецкая (16 мин. 🚗)
Москва, 1-й Дербеневский переулок, 5
Бизнес-центр «Дербеневская Плаза»
Тип: Офисы
Площадь: 442.50 м2
Отделка:выполнена стандартная офисная отделка
1 456 563 в месяц
39 500 в год за м2
Позвонить Подробнее
Павелецкая (10 мин. 🚶)
Москва, Летниковская улица, 10с4
Бизнес-центр «Святогор-4»
Тип: Офисы
Площадь: 569.30 м2
Отделка:качественная отделка
3 300 000 в месяц
69 559 в год за м2
Позвонить Подробнее
Павелецкая (15 мин. 🚶)
Москва, Жуков проезд, вл8
Бизнес-центр TALLER
Тип: Офисы
Площадь: 114.23 м2
Отделка:Shell and Core
550 000 в месяц
57 778 в год за м2
Позвонить Подробнее
Павелецкая (15 мин. 🚶)
Москва, Жуков проезд, вл8
Бизнес-центр TALLER
Тип: Офисы
Площадь: 263.08 м2
Отделка:помещение без отделки
900 000 в месяц
41 052 в год за м2
Позвонить Подробнее
Павелецкая (7 мин. 🚶)
Москва, Кожевническая улица, 13с1
Историческая усадьба Скворцовых
Тип: Офисы
Площадь: 120.00 м2
Отделка:требуется косметический ремонт
600 000 в месяц
60 000 в год за м2
Позвонить Подробнее
Павелецкая (7 мин. 🚶)
Москва, Кожевническая улица, 13с1
Историческая усадьба Скворцовых
Тип: Офисы
Площадь: 110.00 м2
Отделка:требуется косметический ремонт
320 833 в месяц
35 000 в год за м2
Позвонить Подробнее