Арендный бизнес Жилое здание «Стратонавтов 9»

Арендный бизнес Жилое здание «Стратонавтов 9»
Округ: СЗАО
Тип: Арендный бизнес, Торговое помещение
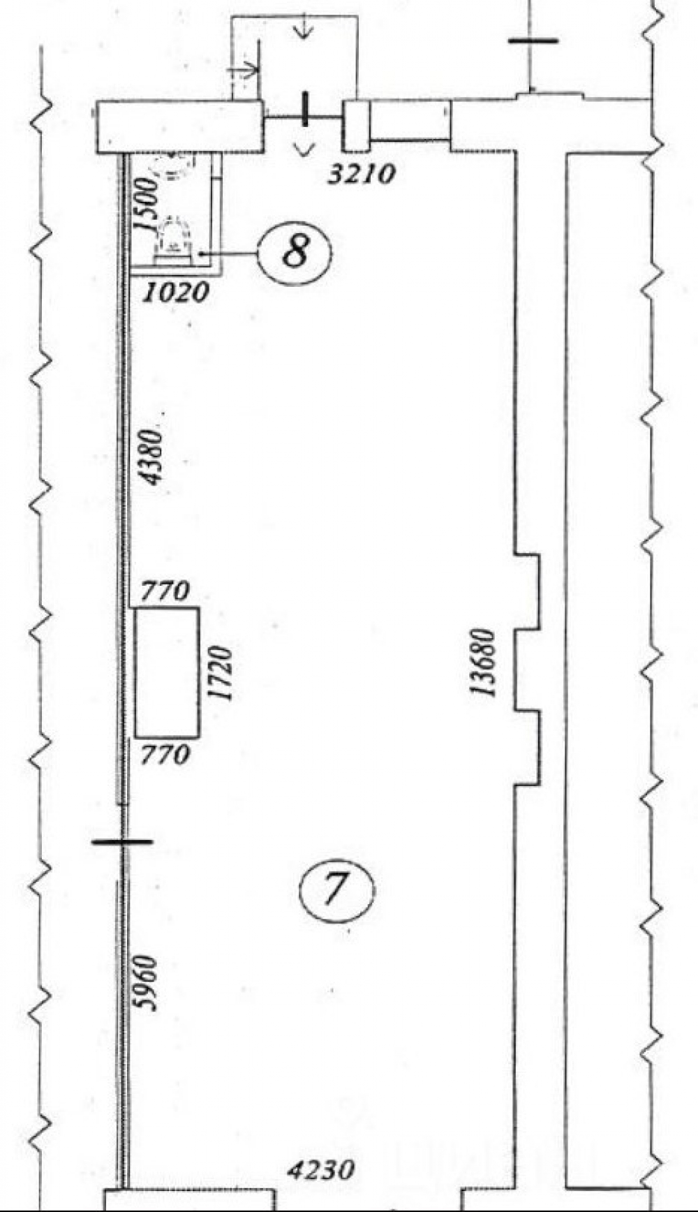
Площадь: 59.60 м2 Метро: Тушинская (1 мин. 🚶)
Москва, Проезд Стратонавтов, 9
Позвоните по телефону +7 495 230-28-26, либо оставьте заявку на просмотр прямо сейчас и узнайте условия специального предложения по объекту.
загрузка карты...
Кириченко Константин Юрьевич

Объект ведет консультант:

Кириченко Константин Юрьевич

Общие
ID 62849
Тип сделки Продажа
Площадь 59.60
Площадь всего 10796.00
Тип объекта Жилое здание
Этаж 1
Всего этажей в здании 5
Метраж по этажам
Информация об объекте
Состояние объекта рабочее
Состояние блока отделка арендатора
Планировка Открытая
Нюансы Отдельный вход
Торговая недвижимость
Линия домов 1 линия
Возможности Ресторанная вытяжка,Витрины,Место для рекламы,Проходное место,Проездное место
Электр. мощность (кВт) 15
Коммерческие условия
За все 39 600 000 ₽
За м 2 664 430 ₽
Тип собственника Юридическое лицо
Арендный бизнес
Окупаемость 8 Лет 3 мес.
По первому месяцу 11 Лет
Доходность 12.12 %
По первому месяцу 9.09 %
Ставка аренды 300 000 ₽ в мес
Арендная ставка за кв\м в год 60 403 ₽
Арендатор Аптека Ваша 1
Срок договора 3 Года
Индексация 8 %

Описание объекта
Готовое решение для прибыльного бизнеса: помещение под аптеку в локации с гарантированным трафиком!

Премиальное расположение:
Первая линия домов
Станция метро «Тушинская» — прямой поток клиентов
Удобная автобусная остановка — дополнительный пешеходный трафик
Высокая проходимость района

Преимущества помещения:
Два отдельных входа: парадный фасад и эвакуационный выход во двор
Идеально подходит под размещение любого ретейла
Действующий сетевой арендатор «Аптека Ваша 1»
Помещение полностью готово к эксплуатации

Выгодные условия:
Стабильная арендная плата — 300 000 рублей в месяц
Долгосрочный договор с индексацией  до 2028 года
Объект в собственности с 2018 года — прозрачная история

Не упустите возможность стать владельцем прибыльного актива в перспективном районе!

Наша оценка
Локация
Цена
Техническое оснащение
Состояние
Метраж
Общая оценка 5

Нужна консультация по подбору арендного бизнеса?

Наши специалисты подберут для вас самые выгодные варианты для долгосрочного инвестирования,
помогут в сопровождении и сделки, проверят все юридические вопросы касаемо приобретения недвижимости.

* Нажимая на кнопку «Отправить», Вы даете согласие на обработку персональных данных в соответствии с Политикой конфиденциальности

Похожие объекты

Доходность 10.62 %

(20 мин. 🚗)
Москва, район Троицк, 3-я Нововатутинская улица, 15к1
ЖК "Новые Ватутинки" 15к1
Тип: Арендный бизнес, Торговое помещение
Площадь: 64.00 м2
Арендатор: Аптека ЗдравСити
Месячный платеж: 200 000
28 000 000 за все
437 500 за м2
Позвонить Подробнее

Доходность 11.11 %


Московская область, Мытищи, Пионерская улица, 10
ЖК "Мытищи сити"
Тип: Арендный бизнес, Торговое помещение
Площадь: 60.00 м2
Арендатор: Планета Здоровья
Месячный платеж: 250 000
33 000 000 за все
550 000 за м2
Позвонить Подробнее

Спец. предложение

Доходность 13.04 %

Павелецкая (13 мин. 🚶)
Москва, Летниковская улица, 2с2
ЖК "Voxhall (ВоксХолл)"
Тип: Арендный бизнес, Торговое помещение
Площадь: 62.10 м2
Мощность:25 кВт
Арендатор: Кафе
Месячный платеж: 600 000
69 700 000 за все
1 122 383 за м2
Позвонить Подробнее

Доходность 9.16 %

Жулебино (3 мин. 🚶)
Москва, улица Авиаконструктора Миля, 8к1
Жилой дом "Авиаконструктора Миля 8к1"
Тип: Арендный бизнес, Торговое помещение
Площадь: 54.00 м2
Мощность:10 кВт
Арендатор: Газпромбанк
Месячный платеж: 391 667
50 990 000 за все
944 259 за м2
Позвонить Подробнее

Доходность 9.76 %

Домодедовская (20 мин. 🚗)
Московская область, городской округ Домодедово, село Домодедово, Высотная улица, 9
ЖК "Домодедово парк"
Тип: Арендный бизнес, Торговое помещение
Площадь: 62.00 м2
Мощность:15 кВт
Арендатор: Множество разных
Месячный платеж: 180 000
22 000 000 за все
354 839 за м2
Позвонить Подробнее

Доходность 8.00 %

Полянка (3 мин. 🚶)
Москва, 1-й Хвостов переулок, 3Ас2
1-й Хвостов переулок, 3Ас2
Тип: Арендный бизнес, Офисы
Площадь: 56.70 м2
Отделка:отделка арендатора
Арендатор: Языковая школа
Месячный платеж: 120 000
24 097 000 за все
424 991 за м2
Позвонить Подробнее

Доходность 10.91 %

Шоссе Энтузиастов (1 мин. 🚶)
Москва, Электродный проезд, 16
ОСЗ "Электродный проезд, 16с1"
Тип: Арендный бизнес, Торговое помещение
Площадь: 54.30 м2
Арендатор: Раковарня
Месячный платеж: 148 782
16 290 000 за все
300 000 за м2
Позвонить Подробнее

Доходность 12.37 %

Царицыно (22 мин. 🚗)
Московская область, Ленинский городской округ, деревня Сапроново, Донская улица, 7
ЖК "1-й Донской"
Тип: Арендный бизнес, Торговое помещение
Площадь: 55.30 м2
Мощность:11 кВт
Арендатор: ПВЗ Озон, Вайлдберриз
Месячный платеж: 200 000
24 000 000 за все
433 996 за м2
Позвонить Подробнее

Доходность 10.00 %

Электрозаводская (12 мин. 🚶)
Москва, Переведеновский переулок, 13с18
МФК Центр Союз
Тип: Арендный бизнес, Офисы
Площадь: 56.70 м2
Отделка:отделка арендатора
Арендатор: Фотостудия
Месячный платеж: 173 000
20 695 500 за все
365 000 за м2
Позвонить Подробнее

Доходность 9.84 %

Электрозаводская (12 мин. 🚶)
Москва, Переведеновский переулок, 13с18
МФК Центр Союз
Тип: Арендный бизнес, Офисы
Площадь: 64.80 м2
Отделка:отделка арендатора
Арендатор: Видеопродакшн
Месячный платеж: 200 230
24 300 000 за все
375 000 за м2
Позвонить Подробнее

Доходность 10.34 %

Новокосино (25 мин. 🚗)
Московская область, Балашиха, микрорайон Кучино, улица Соловьёва, 2
Встроено-пристроенное здание "Соловьёва 2"
Тип: Арендный бизнес, Торговое помещение
Площадь: 60.00 м2
Мощность:12 кВт
Арендатор: Аптека ЗдравСити
Месячный платеж: 170 000
24 500 000 за все
408 333 за м2
Позвонить Подробнее

Доходность 9.38 %

Кузнецкий Мост (6 мин. 🚶)
Закрытая продажа #61150
Тип: Арендный бизнес, Торговое помещение
Площадь: 54.80 м2
Мощность:100 кВт
Арендатор: ресторан «Bruno» (Lucky Group)
Месячный платеж: 892 500
145 000 000 за все
2 645 985 за м2
Позвонить Подробнее

Доходность 13.79 %

Смоленская (Филевская) Смоленская (Арбатско-Покровская) (3 мин. 🚶)
Москва, улица Арбат, 51с1
Жилое здание "Арбат, 51с1"
Тип: Арендный бизнес, Торговое помещение
Площадь: 139.10 м2
Арендатор: Отель
Месячный платеж: 500 000
43 190 000 за все
310 496 за м2
Позвонить Подробнее

Доходность 12.77 %

Саларьево (9 мин. 🚶)
Москва, Новомосковский административный округ, район Коммунарка, квартал № 70
ЖК "1-й Саларьевский»
Тип: Арендный бизнес, Торговое помещение
Площадь: 67.00 м2
Арендатор: здесь аптека
Месячный платеж: 350 000
39 000 000 за все
582 090 за м2
Позвонить Подробнее

Доходность 11.76 %

Пражская (6 мин. 🚗)
Москва, улица Красного Маяка, 26А
ЖК "Парксайд"
Тип: Арендный бизнес, Торговое помещение
Площадь: 77.20 м2
Мощность:15 кВт
Арендатор: ПВЗ Озон, Вайлдберриз
Месячный платеж: 325 000
41 500 000 за все
537 565 за м2
Позвонить Подробнее

Доходность 13.04 %

(60 мин. 🚗)
Закрытая продажа #61114
Тип: Арендный бизнес, Торговое помещение
Площадь: 168.00 м2
Мощность:50 кВт
Арендатор: Магнит
Месячный платеж: 430 000
42 000 000 за все
250 000 за м2
Позвонить Подробнее

Доходность 13.04 %

Стрешнево (1 мин. 🚶)
Москва, 1-й Красногорский проезд, 4к2
ЖК "Моментс"
Тип: Арендный бизнес, Торговое помещение
Площадь: 41.00 м2
Мощность:8 кВт
Арендатор: сеть аптек «36,6»
Месячный платеж: 400 000
43 500 000 за все
1 060 976 за м2
Позвонить Подробнее

Доходность 10.43 %

Мякинино (22 мин. 🚗)
Московская область, городской округ Красногорск, село Николо-Урюпино, улица Полковника Глазунова, 14
ЖК "Лесобережный"
Тип: Арендный бизнес, Торговое помещение
Площадь: 147.90 м2
Мощность:30 кВт
Арендатор: XFit Point
Месячный платеж: 281 010
40 000 000 за все
270 453 за м2
Позвонить Подробнее

Доходность 9.23 %

Жулебино (3 мин. 🚶)
Москва, улица Авиаконструктора Миля, 8к1
Жилой дом "Авиаконструктора Миля 8к1"
Тип: Арендный бизнес, Торговое помещение
Площадь: 48.00 м2
Мощность:10 кВт
Арендатор: Ломбард "Аврора"
Месячный платеж: 300 000
38 990 000 за все
812 292 за м2
Позвонить Подробнее

Доходность 8.11 %

Жулебино (3 мин. 🚶)
Москва, улица Авиаконструктора Миля, 8к1
Жилой дом "Авиаконструктора Миля 8к1"
Тип: Арендный бизнес, Торговое помещение
Площадь: 70.00 м2
Мощность:30 кВт
Арендатор: Кофейня
Месячный платеж: 250 000
36 990 000 за все
528 429 за м2
Позвонить Подробнее

Доходность 10.62 %

Бабушкинская (12 мин. 🚗)
Москва, Шушенская улица, 5
Жилое здание "Шушенская улица, 5"
Тип: Арендный бизнес, Торговое помещение
Площадь: 94.00 м2
Мощность:19 кВт
Арендатор: Аптека ЗдравСити, ПВЗ
Месячный платеж: 303 000
42 000 000 за все
446 809 за м2
Позвонить Подробнее

Доходность 11.54 %

Щёлковская (30 мин. 🚗)
Московская область, Щёлково, Чкаловская улица, 1
Жилой дом
Тип: Арендный бизнес, Торговое помещение
Площадь: 186.60 м2
Мощность:40 кВт
Арендатор: Улыбка радуги
Месячный платеж: 320 000
40 000 000 за все
214 362 за м2
Позвонить Подробнее

Доходность 10.71 %

Коммунарка (15 мин. 🚗)
Москва, Новомосковский административный округ, район Коммунарка, жилой комплекс Скандинавия, к15
ЖК "Скандинавия к28.4"
Тип: Арендный бизнес, Торговое помещение
Площадь: 103.60 м2
Мощность:18 кВт
Арендатор: ВинЛаб
Месячный платеж: 300 000
38 000 000 за все
366 795 за м2
Позвонить Подробнее

Доходность 8.96 %

Дмитровская (7 мин. 🚶)
Москва, Большая Новодмитровская улица, 36с3
БЦ Дизайн-завод "Flacon (Флакон)"
Тип: Арендный бизнес, Офисы
Площадь: 89.30 м2
Отделка:выполнена стандартная офисная отделка
Арендатор: Офис
Месячный платеж: 300 000
40 000 000 за все
447 928 за м2
Позвонить Подробнее

Доходность 10.00 %

Тушинская (1 мин. 🚶)
Москва, Тушинская улица, 24с15
ОСЗ "Тушинская, 24с15"
Тип: Арендный бизнес, Торговое помещение
Площадь: 109.30 м2
Арендатор: Федеральная сеть кафе-пекарен «Маковка»
Месячный платеж: 826 875
99 225 000 за все
907 823 за м2
Позвонить Подробнее

Доходность 14.46 %

Тушинская (5 мин. 🚶)
Москва, Тушинская улица, 18
ТЦ "Два Быка"
Тип: Арендный бизнес, Торговое помещение
Площадь: 1875.00 м2
Мощность:600 кВт
Арендатор: Множество разных
Месячный платеж: 4 000 000
330 000 000 за все
176 000 за м2
Позвонить Подробнее

Доходность 9.52 %

Тушинская (1 мин. 🚶)
Москва, Тушинская улица, 24с15
ОСЗ "Тушинская, 24с15"
Тип: Арендный бизнес, Торговое помещение
Площадь: 19.60 м2
Арендатор: Сеть магазинов «Напитки&Табак»
Месячный платеж: 451 164
56 800 000 за все
2 897 959 за м2
Позвонить Подробнее

Доходность 10.17 %

Тушинская (10 мин. 🚶)
Москва, Тушинская улица, 12
Жилое здание "Тушинская улица, 12"
Тип: Арендный бизнес, Торговое помещение
Площадь: 135.80 м2
Мощность:35 кВт
Арендатор: салон красоты "дорогой, я занята", Табак, Яндекс Маркет
Месячный платеж: 340 000
39 990 000 за все
294 477 за м2
Позвонить Подробнее