Аренда торгового помещения ОСЗ "Нагатинская ул, 16к1с5"

Аренда торгового помещения ОСЗ
Москва, Нагатинская улица, 16к1с5
Позвоните по телефону +7 495 230-28-26, либо оставьте заявку на просмотр прямо сейчас и узнайте условия специального предложения по объекту.
загрузка карты...
Аренда в год за м2 15 000 ₽
Аренда в месяц 653 625 ₽
Схема сделки прямая аренда
Первушина Марина Алексеевна

Объект ведет консультант:

Первушина Марина Алексеевна

Общие
ID 63432
Тип сделки Аренда
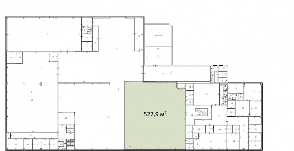
Площадь 522.90
Площадь всего 33976.00
Тип объекта Административное здание
Этаж 2
Всего этажей в здании 1
Метраж по этажам
Информация об объекте
Состояние объекта рабочее
Состояние блока отделка арендатора
Планировка Смешанная
Перекрытия Железобетонные
Нюансы Отдельный вход
Торговая недвижимость
Линия домов 1 линия
Возможности Витрины,Место для рекламы,Проходное место,Проездное место
Электр. мощность (кВт) 400
Коммерческие условия
Аренда в год за м2 15 000 ₽
Аренда в месяц 653 625 ₽
Схема сделки прямая аренда
Тип собственника Юридическое лицо

Описание объекта
Сдается в аренду просторный склад со свободной планировкой от собственника.

Характеристики помещения:
— Площадь: 522,9 м²
— Этаж: 2-й, возможен въезд транспорта через пандус
— Потолки 4 м - комфорт для размещения крупного оборудования или авто
— Качественный ремонт: пол - керамогранит, потолки - армстронг
— Парковка рядом, на огороженной территории, стоимость машиноместа - 10 000 ₽/мес. (количество обсуждается)
— Возможность размещения вывески
— Предоставляется юридический адрес
— Территория охраняемая, с удобным подъездом

Нужна консультация по подбору торговых площадей для аренды?

Наши специалисты подберут для вас самые выгодные варианты для долгосрочного инвестирования,
помогут в сопровождении и сделки, проверят все юридические вопросы касаемо приобретения недвижимости.

* Нажимая на кнопку «Отправить», Вы даете согласие на обработку персональных данных в соответствии с Политикой конфиденциальности

Похожие объекты

Калужская (12 мин. 🚗)
Москва, улица Обручева, 11
ТЦ "улица Обручева, 11"
Тип: Торговое помещение
Площадь: 510.10 м2
1 275 000 в месяц
29 994 в год за м2
Позвонить Подробнее
Полежаевская (5 мин. 🚶)
Закрытая продажа #62319
Тип: Торговое помещение
Площадь: 523.00 м2
Мощность:100 кВт
1 000 000 в месяц
22 945 в год за м2
Позвонить Подробнее
Новослободская (2 мин. 🚶)
Москва, Долгоруковская улица, 40
Жилое здание "Долгоруковская ул.,40"
Тип: Торговое помещение
Площадь: 489.80 м2
400 000 в месяц
9 800 в год за м2
Позвонить Подробнее
Строгино (10 мин. 🚶)
Москва, Улица Маршала Катукова, 23
ОСЗ «Маршала Катукова 23»
Тип: Торговое помещение
Площадь: 514.70 м2
Мощность:50 кВт
400 000 в месяц
9 326 в год за м2
Позвонить Подробнее
Университет (19 мин. 🚶)
Москва, Ленинский проспект, 82/2
Жилое здание "Ленинский проспект, 82/2"
Тип: Торговое помещение
Площадь: 550.30 м2
Мощность:60 кВт
2 950 000 в месяц
64 329 в год за м2
Позвонить Подробнее
Пражская (1 мин. 🚶)
Москва, Кировоградская улица, 24А
ТРК Пражский град
Тип: Торговое помещение
Площадь: 571.00 м2
1 384 675 в месяц
29 100 в год за м2
Позвонить Подробнее
Проспект Вернадского (9 мин. 🚶)
Москва, улица Удальцова, 79
Жилое здание "улица Удальцова, 79"
Тип: Торговое помещение
Площадь: 500.00 м2
Мощность:65 кВт
1 500 000 в месяц
36 000 в год за м2
Позвонить Подробнее
Университет (5 мин. 🚶)
Москва, Ломоносовский проспект, 18
Жилое здание "Ломоносовский просп., 18"
Тип: Торговое помещение
Площадь: 480.00 м2
Мощность:75 кВт
1 250 000 в месяц
31 250 в год за м2
Позвонить Подробнее
Щёлковская (7 мин. 🚗)
Москва, Хабаровская улица, 12/23
Жилое здание "Хабаровская улица, 12/23"
Тип: Торговое помещение
Площадь: 471.10 м2
450 000 в месяц
11 463 в год за м2
Позвонить Подробнее
Братиславская (9 мин. 🚶)
Москва, Люблинская улица, 153
ТЦ "Люблю Молл"
Тип: Торговое помещение
Площадь: 530.00 м2
2 051 000 в месяц
46 438 в год за м2
Позвонить Подробнее
Братиславская (9 мин. 🚶)
Москва, Люблинская улица, 153
ТЦ "Люблю Молл"
Тип: Торговое помещение
Площадь: 530.00 м2
1 855 000 в месяц
42 000 в год за м2
Позвонить Подробнее
Тульская (7 мин. 🚶)
Москва, улица Серпуховский Вал, 5
Жилое здание "Серпуховский Вал, 5"
Тип: Торговое помещение
Площадь: 483.30 м2
1 500 000 в месяц
37 244 в год за м2
Позвонить Подробнее
Университет (10 мин. 🚶)
Москва, улица Строителей, 13к1
Жилое здание "Строителей, 13к1"
Тип: Торговое помещение
Площадь: 167.50 м2
225 000 в месяц
16 119 в год за м2
Позвонить Подробнее
Каширская (14 мин. 🚗)
Москва, Каширское шоссе, 57к2
Жилое здание "Каширское шоссе, 57к2"
Тип: Торговое помещение
Площадь: 634.00 м2
Мощность:100 кВт
850 000 в месяц
16 088 в год за м2
Позвонить Подробнее
Ховрино (32 мин. 🚶)
Московская область, городской округ Солнечногорск, посёлок городского типа Менделеево, Институтская улица, 19
Жилой дом "Институтская 19"
Тип: Торговое помещение
Площадь: 440.00 м2
Мощность:60 кВт
550 000 в месяц
15 000 в год за м2
Позвонить Подробнее
Бутырская (10 мин. 🚶)
Москва, улица Руставели, 8Б
Жилое здание " Руставели, 8Б"
Тип: Торговое помещение
Площадь: 136.00 м2
Мощность:15 кВт
180 000 в месяц
15 882 в год за м2
Позвонить Подробнее
Мякинино (30 мин. 🚶)
Московская область, Красногорск, Красногорский бульвар, 4с1
ТЦ "Терабит"
Тип: Торговое помещение
Площадь: 1343.00 м2
Мощность:300 кВт
1 745 900 в месяц
15 600 в год за м2
Позвонить Подробнее
Рязанский проспект (5 мин. 🚶)
Москва, Зеленодольская улица, 10/14
Жилое здание "Зеленодольская улица, 10/14"
Тип: Торговое помещение
Площадь: 250.00 м2
Мощность:15 кВт
300 000 в месяц
14 400 в год за м2
Позвонить Подробнее
Тульская (7 мин. 🚶)
Москва, улица Серпуховский Вал, 5
Жилое здание "Серпуховский Вал, 5"
Тип: Торговое помещение
Площадь: 414.00 м2
Мощность:15 кВт
500 000 в месяц
14 493 в год за м2
Позвонить Подробнее
(18 мин. 🚶)
Москва, улица Обручева, 52с3
БЦ "РТС Обручева"
Тип: Торговое помещение
Площадь: 2659.40 м2
3 546 000 в месяц
16 001 в год за м2
Позвонить Подробнее
(15 мин. 🚶)
Москва, Очаковское шоссе, 28с2
Бизнес-парк "Дорохофф"
Тип: Торговое помещение
Площадь: 511.70 м2
639 625 в месяц
15 000 в год за м2
Позвонить Подробнее
Тёплый стан (14 мин. 🚗)
Москва, Новомосковский административный округ, район Коммунарка, Калужское шоссе, 21-й километр, с1
ТЦ "Мега Теплый Стан"
Тип: Торговое помещение
Площадь: 3000.00 м2
4 125 000 в месяц
16 500 в год за м2
Позвонить Подробнее
Тёплый стан (14 мин. 🚗)
Москва, Новомосковский административный округ, район Коммунарка, Калужское шоссе, 21-й километр, с1
ТЦ "Мега Теплый Стан"
Тип: Торговое помещение
Площадь: 6000.00 м2
8 250 000 в месяц
16 500 в год за м2
Позвонить Подробнее
Котельники (20 мин. 🚗)
Московская область, Котельники, 1-й Покровский проезд, 5
ТЦ "Мега Белая Дача"
Тип: Торговое помещение
Площадь: 3000.00 м2
Мощность:850 кВт
4 125 000 в месяц
16 500 в год за м2
Позвонить Подробнее
Коломенская (11 мин. 🚶)
Москва, Проспект Андропова, 48
Административное здание «проспект Андропова 48»
Тип: Торговое помещение
Площадь: 188.50 м2
Мощность:30 кВт
350 000 в месяц
22 281 в год за м2
Позвонить Подробнее
Коломенская (11 мин. 🚶)
Москва, Проспект Андропова, 48
Административное здание «проспект Андропова 48»
Тип: Торговое помещение
Площадь: 408.50 м2
Мощность:90 кВт
1 099 900 в месяц
32 310 в год за м2
Позвонить Подробнее
Коломенская (11 мин. 🚶)
Москва, Проспект Андропова, 48
Административное здание «проспект Андропова 48»
Тип: Торговое помещение
Площадь: 220.00 м2
Мощность:60 кВт
700 000 в месяц
38 182 в год за м2
Позвонить Подробнее
Коломенская (1 мин. 🚶)
Москва, проспект Андропова, 23
ТЦ "Коломенский"
Тип: Торговое помещение
Площадь: 223.10 м2
Мощность:60 кВт
1 003 950 в месяц
54 000 в год за м2
Позвонить Подробнее
Коломенская (1 мин. 🚶)
Москва, проспект Андропова, 23
ТЦ "Коломенский"
Тип: Торговое помещение
Площадь: 92.50 м2
Мощность:15 кВт
462 500 в месяц
60 000 в год за м2
Позвонить Подробнее
Коломенская (1 мин. 🚶)
Москва, проспект Андропова, 23
ТЦ "Коломенский"
Тип: Торговое помещение
Площадь: 140.10 м2
Мощность:15 кВт
700 500 в месяц
60 000 в год за м2
Позвонить Подробнее
Коломенская (1 мин. 🚶)
Москва, проспект Андропова, 23
ТЦ "Коломенский"
Тип: Торговое помещение
Площадь: 51.20 м2
Мощность:15 кВт
256 000 в месяц
60 000 в год за м2
Позвонить Подробнее
Коломенская (1 мин. 🚶)
Москва, проспект Андропова, 23
ТЦ "Коломенский"
Тип: Торговое помещение
Площадь: 97.80 м2
Мощность:15 кВт
489 000 в месяц
60 000 в год за м2
Позвонить Подробнее
Коломенская (1 мин. 🚶)
Москва, проспект Андропова, 23
ТЦ "Коломенский"
Тип: Торговое помещение
Площадь: 91.10 м2
Мощность:15 кВт
455 500 в месяц
60 000 в год за м2
Позвонить Подробнее
Коломенская (1 мин. 🚶)
Москва, проспект Андропова, 23
ТЦ "Коломенский"
Тип: Торговое помещение
Площадь: 36.30 м2
Мощность:5 кВт
181 500 в месяц
60 000 в год за м2
Позвонить Подробнее
Коломенская (1 мин. 🚶)
Москва, проспект Андропова, 30
Жилое здание "проспект Андропова, 30"
Тип: Торговое помещение
Площадь: 75.90 м2
500 000 в месяц
79 051 в год за м2
Позвонить Подробнее
Коломенская (1 мин. 🚶)
Москва, проспект Андропова, 23
ТЦ "Коломенский"
Тип: Торговое помещение
Площадь: 102.80 м2
Мощность:60 кВт
514 000 в месяц
60 000 в год за м2
Позвонить Подробнее