Аренда торгового помещения ЖК Knightsbridge

Объект успешно реализован!
Аренда торгового помещения ЖК Knightsbridge
Москва, улица Ефремова, 19к1
Объект успешно реализован, но у нас есть много других интересных предложений. Позвоните по телефону +7 495 230-28-26, либо оставьте заявку на подбор прямо сейчас и получите список подходящих для вас объектов.
загрузка карты...
Аренда в год за м2 76 281 ₽
Аренда в месяц 1 600 000 ₽
Схема сделки прямая аренда
Первушина Марина Алексеевна

Объект ведет консультант:

Первушина Марина Алексеевна

Общие
ID 18998
Тип сделки Аренда
Площадь 251.70
Площадь всего 10830.00
Тип объекта Жилое здание
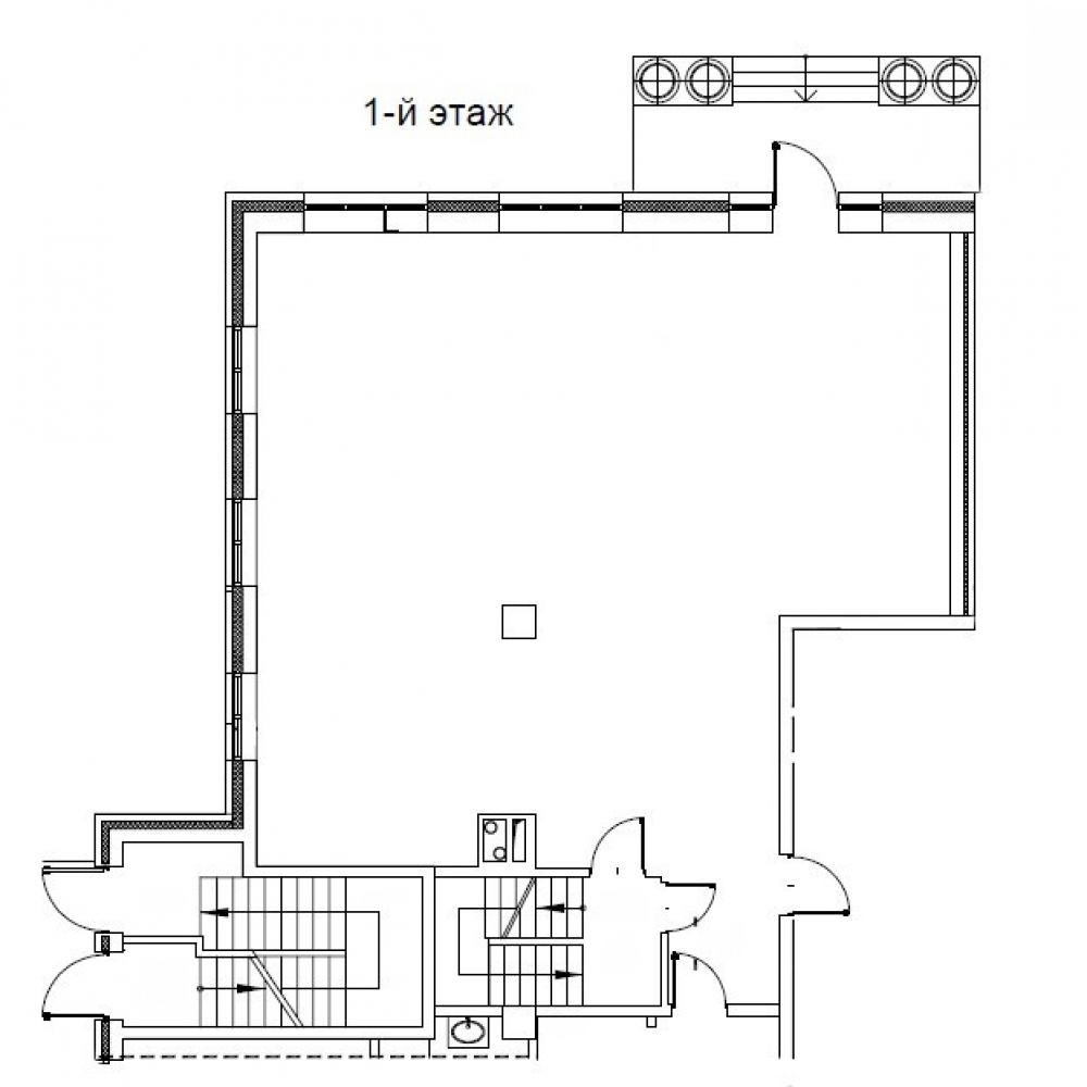
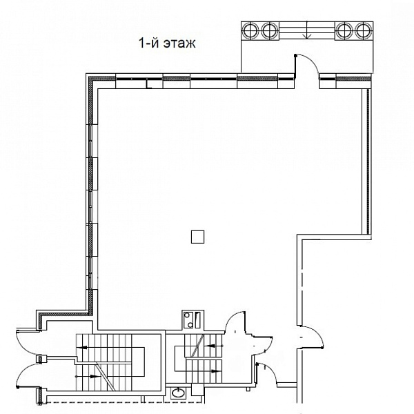
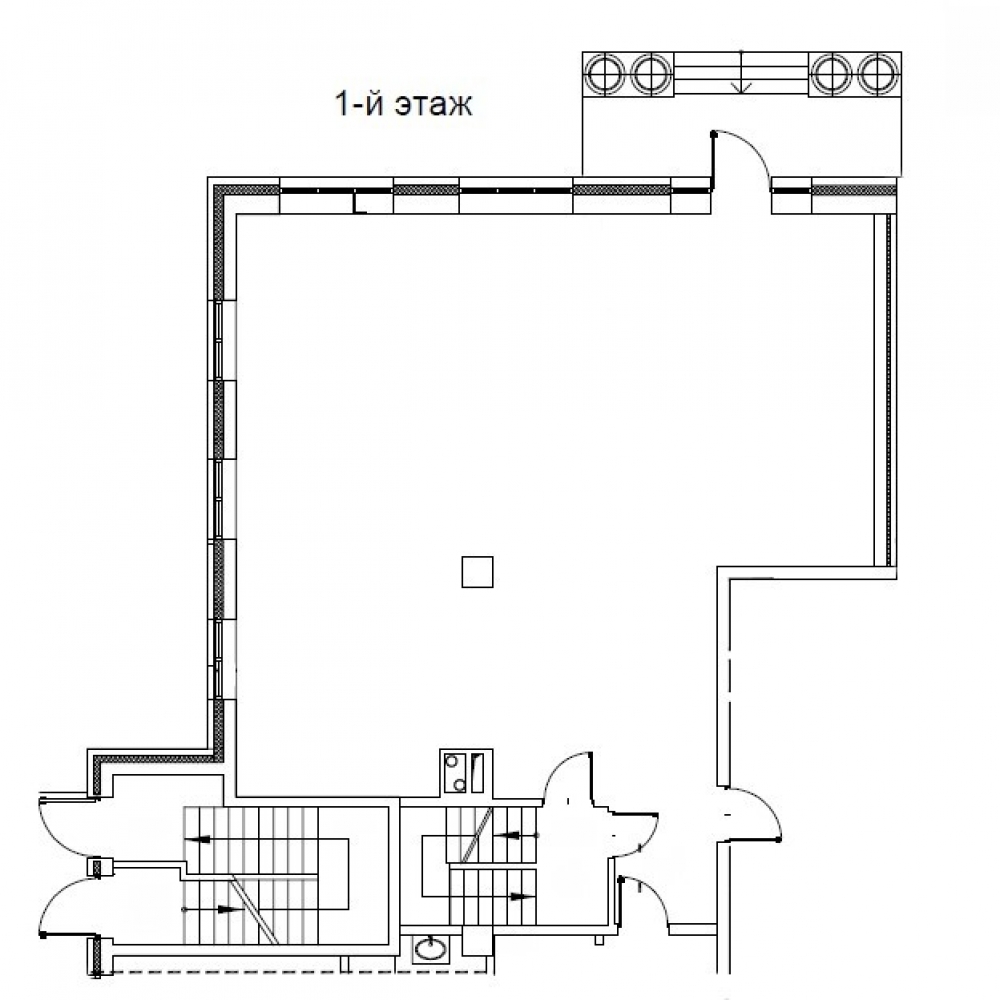
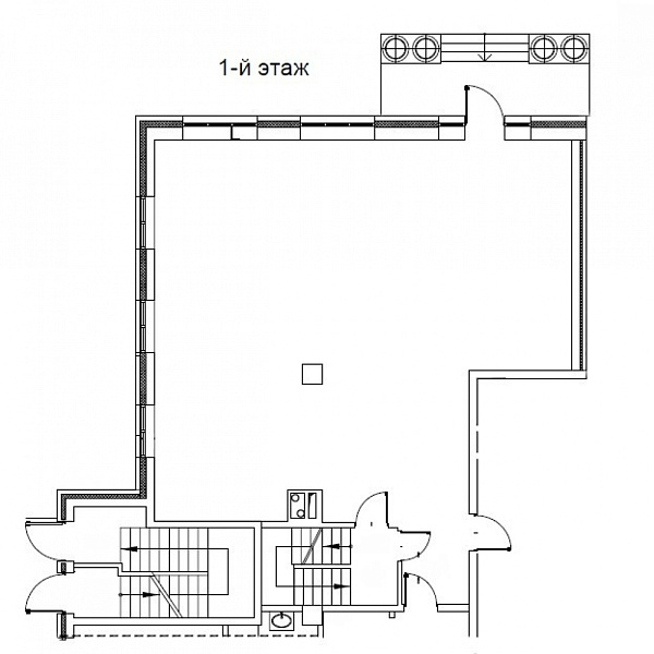
Этаж -1 - 1
Всего этажей в здании 7
Метраж по этажам
Этаж: -1 - 114м2 м2
Этаж: 1 - 137,7м2 м2
Информация об объекте
Состояние объекта рабочее
Состояние блока помещение без отделки
Планировка Открытая
Нюансы Отдельный вход,ПСН
Торговая недвижимость
Линия домов 1 линия
Возможности Витрины,Место для рекламы,Проходное место,Проездное место
Электр. мощность (кВт) 60
Коммерческие условия
Аренда в год за м2 76 281 ₽
Аренда в месяц 1 600 000 ₽
Схема сделки прямая аренда

Описание объекта
Предлагается в аренду помещение в Хамовниках. До станции метро "Спортивная" - 6 минут пешком. Первая линия домов. Интенсивный автомобильный и пешеходный поток.
Объект расположен на первом этаже и в подвале ЖК "Knightsbridge. Густонаселенный жилой массив со сложившимся деловым и торговым окружением. Высокий рекламный потенциал, витринное остекление.
Общая площадь - 251,7 кв.м., из них  1 этаж - 137,7 кв.м. и подвал - 114 кв.м. Высота потолков - 3,3 - 3.6 метра. Электрическая мощность - 60 кВт.

Нужна консультация по подбору торговых площадей для аренды?

Наши специалисты подберут для вас самые выгодные варианты для долгосрочного инвестирования,
помогут в сопровождении и сделки, проверят все юридические вопросы касаемо приобретения недвижимости.

* Нажимая на кнопку «Отправить», Вы даете согласие на обработку персональных данных в соответствии с Политикой конфиденциальности

Похожие объекты

Ясенево (15 мин. 🚶)
Москва, Вильнюсская улица, 15
Жилой дом "Вильнюсская 15"
Тип: Торговое помещение
Площадь: 258.60 м2
465 000 в месяц
21 578 в год за м2
Позвонить Подробнее
Красные Ворота (10 мин. 🚶)
Москва, проспект Академика Сахарова, 7
ЖК "RED7"
Тип: Торговое помещение
Площадь: 227.50 м2
Мощность:35 кВт
966 875 в месяц
51 000 в год за м2
Позвонить Подробнее
Верхние Лихоборы Лихоборы (20 мин. 🚗)
Москва, Дмитровское шоссе, 85
БЦ «РТС» Селигерская
Тип: Торговое помещение
Площадь: 274.00 м2
410 100 в месяц
17 961 в год за м2
Позвонить Подробнее
Ховрино (25 мин. 🚗)
Москва, Ленинградское шоссе, 228к6
ЖК «1-й Ленинградский», к. 1
Тип: Торговое помещение
Площадь: 228.00 м2
Мощность:45 кВт
570 000 в месяц
30 000 в год за м2
Позвонить Подробнее
Тургеневская (4 мин. 🚶)
Москва, Мясницкая улица, 13с24
Административное здание "Мясницкая улица, 13с24"
Тип: Торговое помещение
Площадь: 256.50 м2
1 000 000 в месяц
46 784 в год за м2
Позвонить Подробнее
Академическая (15 мин. 🚶)
Москва, Ленинский проспект, 61/1
Жилое здание "Ленинский проспект, 61/1"
Тип: Торговое помещение
Площадь: 243.00 м2
800 000 в месяц
39 506 в год за м2
Позвонить Подробнее
Савёловская (1 мин. 🚶)
Москва, Бутырская улица, 4
Жилое здание "Бутырская ул., д. 4"
Тип: Торговое помещение
Площадь: 264.50 м2
1 050 000 в месяц
47 637 в год за м2
Позвонить Подробнее
Полежаевская (5 мин. 🚶)
Закрытая продажа #62341
Тип: Торговое помещение
Площадь: 255.00 м2
Мощность:30 кВт
750 000 в месяц
35 294 в год за м2
Позвонить Подробнее
Царицыно (22 мин. 🚶)
Москва, 6-я Радиальная улица, 3к8
ЖК: Царицыно
Тип: Торговое помещение
Площадь: 250.00 м2
Мощность:120 кВт
375 000 в месяц
18 000 в год за м2
Позвонить Подробнее
Университет (12 мин. 🚶)
Москва, Ленинский проспект, 77к1
Жилое здание "Ленинский проспект, 77к1"
Тип: Торговое помещение
Площадь: 272.30 м2
Мощность:49 кВт
816 900 в месяц
36 000 в год за м2
Позвонить Подробнее
Рязанский проспект (5 мин. 🚶)
Москва, Зеленодольская улица, 10/14
Жилое здание "Зеленодольская улица, 10/14"
Тип: Торговое помещение
Площадь: 250.00 м2
Мощность:15 кВт
300 000 в месяц
14 400 в год за м2
Позвонить Подробнее
Павелецкая (7 мин. 🚶)
Москва, Кожевническая улица, 13с1
Историческая усадьба Скворцовых
Тип: Торговое помещение
Площадь: 240.00 м2
1 200 000 в месяц
60 000 в год за м2
Позвонить Подробнее
Спартак (11 мин. 🚶)
Москва, Чкаловский бульвар, 6
ЖК «Holland Park»
Тип: Торговое помещение
Площадь: 54.60 м2
Мощность:12 кВт
320 000 в месяц
70 330 в год за м2
Позвонить Подробнее
Павелецкая (10 мин. 🚶)
Москва, Летниковская улица, 11/10с22
ЖК "HIGH LIFE&OPUS"
Тип: Торговое помещение
Площадь: 138.50 м2
Мощность:50 кВт
900 000 в месяц
77 978 в год за м2
Позвонить Подробнее
Перово (1 мин. 🚶)
Москва, Зелёный проспект, 19
Административное здание Зеленый проспект, 19
Тип: Торговое помещение
Площадь: 108.00 м2
Мощность:40 кВт
750 000 в месяц
83 333 в год за м2
Позвонить Подробнее
Братиславская (9 мин. 🚶)
Москва, Люблинская улица, 153
ТЦ "Люблю Молл"
Тип: Торговое помещение
Площадь: 82.50 м2
544 500 в месяц
79 200 в год за м2
Позвонить Подробнее
Братиславская (9 мин. 🚶)
Москва, Люблинская улица, 153
ТЦ "Люблю Молл"
Тип: Торговое помещение
Площадь: 55.40 м2
365 640 в месяц
79 200 в год за м2
Позвонить Подробнее
Сухаревская (1 мин. 🚶)
Москва, Малая Сухаревская площадь, 12
ТОЦ «Садовая Галерея»
Тип: Торговое помещение
Площадь: 1150.00 м2
7 666 667 в месяц
80 000 в год за м2
Позвонить Подробнее
Белорусская (10 мин. 🚶)
Москва, Большая Грузинская улица, 57с1
Street Retail на Большой Грузинской
Тип: Торговое помещение
Площадь: 118.00 м2
Мощность:42 кВт
750 000 в месяц
76 271 в год за м2
Позвонить Подробнее
Библиотека им. Ленина (1 мин. 🚶)
Москва, улица Воздвиженка, 4/7с1
Бизнес-центр "Моховая II"
Тип: Торговое помещение
Площадь: 126.00 м2
Мощность:15 кВт
750 000 в месяц
71 429 в год за м2
Позвонить Подробнее

Спец. предложение

Авиамоторная (4 мин. 🚶)
Москва, Авиамоторная улица, 47
Жилое здание «Авиамоторная 47»
Тип: Торговое помещение
Площадь: 32.00 м2
Мощность:20 кВт
190 000 в месяц
71 250 в год за м2
Позвонить Подробнее
Университет (4 мин. 🚶)
Москва, Ломоносовский проспект, 23
Жилой дом "Ломоносовский проспект, 23"
Тип: Торговое помещение
Площадь: 125.00 м2
Мощность:40 кВт
850 000 в месяц
81 600 в год за м2
Позвонить Подробнее
(9 мин. 🚶)
Москва, улица Архитектора Власова, 71к2
ЖК «Ever (Эвер)»
Тип: Торговое помещение
Площадь: 60.90 м2
350 175 в месяц
69 000 в год за м2
Позвонить Подробнее
Кунцевская (10 мин. 🚶)
Москва, Молдавская улица, 1с8
Бизнес-центр "Upside Кунцево"
Тип: Торговое помещение
Площадь: 278.00 м2
Мощность:150 кВт
1 635 480 в месяц
70 596 в год за м2
Позвонить Подробнее
Спортивная (12 мин. 🚶)
Москва, Большой Саввинский переулок, 12с8
Деловой квартал «Московский шелк»
Тип: Торговое помещение
Площадь: 490.00 м2
Мощность:50 кВт
1 429 167 в месяц
35 000 в год за м2
Позвонить Подробнее
Спортивная (2 мин. 🚶)
Москва, улица Хамовнический Вал, 34
Гостиница Юность
Тип: Торговое помещение
Площадь: 600.00 м2
Мощность:100 кВт
3 000 000 в месяц
60 000 в год за м2
Позвонить Подробнее