Аренда торгового помещения ОСЗ "Новокузнецкая 42с2"

Аренда торгового помещения ОСЗ Аренда торгового помещения ОСЗ
Аренда торгового помещения ОСЗ Аренда торгового помещения ОСЗ
Москва, Новокузнецкая улица, 42с2
Позвоните по телефону +7 495 230-28-26, либо оставьте заявку на просмотр прямо сейчас и узнайте условия специального предложения по объекту.
загрузка карты...
Аренда в год за м2 52 174 ₽
Аренда в месяц 1 000 000 ₽
Схема сделки прямая аренда
Баринов Игорь Юрьевич

Объект ведет консультант:

Баринов Игорь Юрьевич

Общие
ID 43873
Тип сделки Аренда
Площадь 230.00
Площадь всего 628.00
Тип объекта Административное здание
Этаж 1
Всего этажей в здании 3
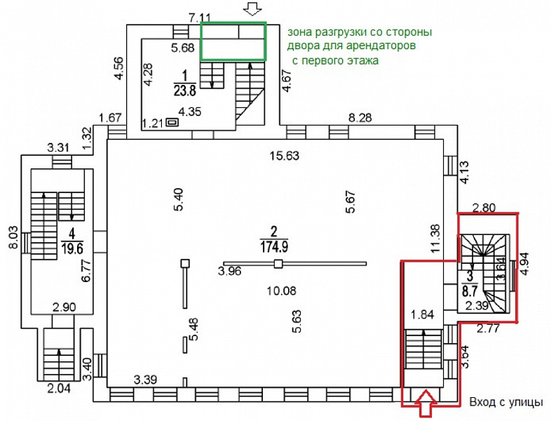
Метраж по этажам
Этаж: 1 - 23,62 м2
Этаж: цоколь - 208,2 м2
Информация об объекте
Состояние объекта рабочее
Состояние блока Shell and Core
Планировка Открытая
Перекрытия Железобетонные
Нюансы Отдельный вход,ПСН
Торговая недвижимость
Линия домов 1 линия
Возможности Зона разгрузки,Ресторанная вытяжка,Витрины,Место для рекламы,Проходное место,Проездное место
Электр. мощность (кВт) 50
Коммерческие условия
Аренда в год за м2 52 174 ₽
Аренда в месяц 1 000 000 ₽
Схема сделки прямая аренда
Тип собственника Юридическое лицо

Описание объекта
Здание у метро Павелецкая. Отличный пеший трафик.  Напротив выхода из метро. Первая линия домов. Помещение свободного назначения. Общая площадь 230 м2. Отдельный вход с улицы, со стороны метро Павелецкая, с ул. Новокузнецкая. Второй вход со стороны двора. Помещение имеет зальную планировку с высокими потолками и большим количеством окон по периметру помещения  выходящим на улицу. Эл-во 50 кВт, возможно увеличение. Все коммуникации централизованные, ГВС, ХВС, отопление, канализация, возможно подключение газа, ж/б перекрытия, потолок 3- 3,2 м. Возможна установка вытяжки для ресторана, кафе, пекарни, кондитерской. Реклама на фасаде для арендатора. Долгосрочный договор аренды. Каникулы на обустройство и ремонт. Допустим график работы 24/7/365. Площадь 1 этажа 23,6 м2, площадь - 1 этажа 208,2 м2. Парковка на 5-10 м/мест у здания. Отличное месторасположение для успешного развития бизнеса. Насыщенный пешеходный и автомобильный трафик, рядом метро, деловая часть ЦАО Москвы, крупные бизнес центры класса А и А+, офисы госкорпораций, банки, жилой массив, развитая инфраструктура.
На 1 этаже расположен "Бургер Кинг".

Наша оценка
Локация
Цена
Техническое оснащение
Состояние
Метраж
Общая оценка 5

Нужна консультация по подбору торговых площадей для аренды?

Наши специалисты подберут для вас самые выгодные варианты для долгосрочного инвестирования,
помогут в сопровождении и сделки, проверят все юридические вопросы касаемо приобретения недвижимости.

* Нажимая на кнопку «Отправить», Вы даете согласие на обработку персональных данных в соответствии с Политикой конфиденциальности

Похожие объекты

Ховрино (25 мин. 🚗)
Москва, Ленинградское шоссе, 228к6
ЖК «1-й Ленинградский», к. 1
Тип: Торговое помещение
Площадь: 228.00 м2
Мощность:45 кВт
570 000 в месяц
30 000 в год за м2
Позвонить Подробнее
Тульская (10 мин. 🚶)
Москва, Мытная улица, 27
Жилое здание "Мытная улица, 27"
Тип: Торговое помещение
Площадь: 252.00 м2
Мощность:30 кВт
460 000 в месяц
21 905 в год за м2
Позвонить Подробнее
Смоленская (Филевская) Смоленская (Арбатско-Покровская) (5 мин. 🚶)
Москва, улица Арбат, 30/3с2
Жилое здание "улица Арбат, 30/3с2"
Тип: Торговое помещение
Площадь: 212.90 м2
568 000 в месяц
32 015 в год за м2
Позвонить Подробнее
Белорусская (7 мин. 🚶)
Москва, 2-я Брестская улица, 39с2
2-я Брестская улица, 39с2
Тип: Торговое помещение
Площадь: 218.90 м2
Мощность:150 кВт
1 590 000 в месяц
87 163 в год за м2
Позвонить Подробнее
Смоленская (Филевская) Смоленская (Арбатско-Покровская) (2 мин. 🚶)
Москва, Карманицкий переулок, 9
БЦ Арбат
Тип: Торговое помещение
Площадь: 220.30 м2
1 500 000 в месяц
81 707 в год за м2
Позвонить Подробнее
Спортивная (6 мин. 🚶)
Москва, улица Ефремова, 19к1
ЖК Knightsbridge
Тип: Торговое помещение
Площадь: 235.70 м2
Мощность:60 кВт
1 500 000 в месяц
76 368 в год за м2
Позвонить Подробнее
Проспект Вернадского (10 мин. 🚶)
Москва, проспект Вернадского, 41
Бизнес-центр «Академик»
Тип: Торговое помещение
Площадь: 224.70 м2
2 000 000 в месяц
106 809 в год за м2
Позвонить Подробнее
Маяковская (3 мин. 🚶)
Москва, Большая Садовая улица, 6с2
Административное здание "Большая Садовая улица, 6с2"
Тип: Торговое помещение
Площадь: 243.00 м2
Мощность:100 кВт
1 700 000 в месяц
83 951 в год за м2
Позвонить Подробнее
Тверская (5 мин. 🚶)
Москва, Тверская улица, 15
Жилое здание "Тверская улица д. 15"
Тип: Торговое помещение
Площадь: 232.00 м2
Мощность:100 кВт
2 000 000 в месяц
103 448 в год за м2
Позвонить Подробнее
Сокол Сокольники Соколиная Гора (3 мин. 🚶)
Москва, Ленинградский проспект, 69с1
Жилое здание "Ленинградский пр-т 69"
Тип: Торговое помещение
Площадь: 250.00 м2
Мощность:100 кВт
500 000 в месяц
24 000 в год за м2
Позвонить Подробнее
Коломенская (11 мин. 🚶)
Москва, Проспект Андропова, 48
Административное здание «проспект Андропова 48»
Тип: Торговое помещение
Площадь: 220.00 м2
Мощность:60 кВт
700 000 в месяц
38 182 в год за м2
Позвонить Подробнее
Арбатская (Филевская) Арбатская (Арбатско-Покровская) (7 мин. 🚶)
Москва, Большая Никитская улица, 12с1
Офисное здание «Большая Никитская 12»
Тип: Торговое помещение
Площадь: 248.90 м2
3 500 000 в месяц
168 742 в год за м2
Позвонить Подробнее
Смоленская (Филевская) Смоленская (Арбатско-Покровская) (6 мин. 🚶)
Москва, Смоленская улица, 3
Жилой дом "Смоленская 3"
Тип: Торговое помещение
Площадь: 430.40 м2
1 700 000 в месяц
47 398 в год за м2
Позвонить Подробнее
Полежаевская (5 мин. 🚶)
Закрытая продажа #62339
Тип: Торговое помещение
Площадь: 200.00 м2
Мощность:40 кВт
800 000 в месяц
48 000 в год за м2
Позвонить Подробнее
Шаболовская (7 мин. 🚶)
Москва, улица Шаболовка, 14с2
ОСЗ "улица Шаболовка, 14с2"
Тип: Торговое помещение
Площадь: 442.10 м2
Мощность:150 кВт
1 900 000 в месяц
51 572 в год за м2
Позвонить Подробнее
Дубровка (30 мин. 🚶)
Москва, улица Эдуарда Стрельцова, 2к1
ЖК «FORIVER (Форивер)»
Тип: Торговое помещение
Площадь: 370.50 м2
Мощность:111 кВт
1 512 875 в месяц
49 000 в год за м2
Позвонить Подробнее
Кожуховская (2 мин. 🚶)
Москва, улица Трофимова, 35/20
Жилое здание "Трофимова 35/20"
Тип: Торговое помещение
Площадь: 176.90 м2
Мощность:80 кВт
800 000 в месяц
54 268 в год за м2
Позвонить Подробнее
Проспект Мира (3 мин. 🚶)
Москва, проспект Мира, 28
Особняк "проспект Мира, 28"
Тип: Торговое помещение
Площадь: 731.60 м2
Мощность:170 кВт
3 000 000 в месяц
49 207 в год за м2
Позвонить Подробнее
Цветной бульвар (5 мин. 🚶)
Москва, Садовая-Самотёчная улица, 15/1
ОСЗ "Садовая-Самотёчная, д 15/1"
Тип: Торговое помещение
Площадь: 110.00 м2
520 000 в месяц
56 727 в год за м2
Позвонить Подробнее
Парк культуры
Закрытая продажа #60101
Тип: Торговое помещение
Площадь: 259.40 м2
Мощность:65 кВт
1 200 000 в месяц
55 513 в год за м2
Позвонить Подробнее
Октябрьское Поле (10 мин. 🚶)
Москва, улица Расплетина, 3
ЖК "Театральный квартал"
Тип: Торговое помещение
Площадь: 56.70 м2
Мощность:23 кВт
236 250 в месяц
50 000 в год за м2
Позвонить Подробнее
Молодёжная (30 мин. 🚗)
Московская область, Одинцовский городской округ, рабочий посёлок Новоивановское, бульвар Эйнштейна, 3
ЖК "Инновация"
Тип: Торговое помещение
Площадь: 30.50 м2
Мощность:10 кВт
135 000 в месяц
53 115 в год за м2
Позвонить Подробнее
Чкаловская (12 мин. 🚗)
Москва, Нижняя Сыромятническая улица, 10с2
Бизнес-центр Центр дизайна Artplay (Артплэй)
Тип: Торговое помещение
Площадь: 770.00 м2
3 208 333 в месяц
50 000 в год за м2
Позвонить Подробнее
Коломенская (1 мин. 🚶)
Москва, проспект Андропова, 23
ТЦ "Коломенский"
Тип: Торговое помещение
Площадь: 223.10 м2
Мощность:60 кВт
1 003 950 в месяц
54 000 в год за м2
Позвонить Подробнее
Павелецкая (8 мин. 🚶)
Москва, Летниковская улица, 6к2
ЖК "Voxhall (ВоксХолл)"
Тип: Торговое помещение
Площадь: 350.00 м2
Мощность:100 кВт
3 500 000 в месяц
120 000 в год за м2
Позвонить Подробнее
Павелецкая (9 мин. 🚶)
Москва, Кожевнический проезд, 4/5с5
Кожевнический проезд, 4/5с5
Тип: Торговое помещение
Площадь: 290.00 м2
Мощность:31 кВт
1 100 000 в месяц
45 517 в год за м2
Позвонить Подробнее
Павелецкая (2 мин. 🚶)
Москва, Павелецкая площадь, 2с1
Бизнес-центр «Павелецкая Тауэр»
Тип: Торговое помещение
Площадь: 172.00 м2
Мощность:39 кВт
2 098 400 в месяц
146 400 в год за м2
Позвонить Подробнее
Павелецкая (3 мин. 🚶)
Москва, улица Бахрушина, 36/14с3
Административное здание Бахрушина. 36/14с3
Тип: Торговое помещение
Площадь: 11.80 м2
490 000 в месяц
498 305 в год за м2
Позвонить Подробнее
Павелецкая (3 мин. 🚶)
Москва, улица Бахрушина, 36/14с3
Административное здание Бахрушина. 36/14с3
Тип: Торговое помещение
Площадь: 28.90 м2
965 000 в месяц
400 692 в год за м2
Позвонить Подробнее
Павелецкая (3 мин. 🚶)
Москва, улица Бахрушина, 36/14с3
Административное здание Бахрушина. 36/14с3
Тип: Торговое помещение
Площадь: 51.10 м2
1 575 000 в месяц
369 863 в год за м2
Позвонить Подробнее
Павелецкая (3 мин. 🚶)
Москва, улица Бахрушина, 36/14с3
Административное здание Бахрушина. 36/14с3
Тип: Торговое помещение
Площадь: 256.30 м2
2 950 000 в месяц
138 119 в год за м2
Позвонить Подробнее
Павелецкая (10 мин. 🚶)
Москва, Летниковская улица, 11/10с22
ЖК "HIGH LIFE&OPUS"
Тип: Торговое помещение
Площадь: 138.50 м2
Мощность:50 кВт
850 000 в месяц
73 646 в год за м2
Позвонить Подробнее
Павелецкая (7 мин. 🚶)
Москва, Садовническая улица, 84с3
Особняк «Садовническая 84 с3, 7»
Тип: Торговое помещение
Площадь: 1184.30 м2
Мощность:220 кВт
7 000 000 в месяц
70 928 в год за м2
Позвонить Подробнее
Павелецкая (2 мин. 🚶)
Москва, Новокузнецкая улица, 39
Административное здание «Новокузнецкая 39»
Тип: Торговое помещение
Площадь: 144.20 м2
Мощность:95 кВт
1 500 000 в месяц
124 827 в год за м2
Позвонить Подробнее
Павелецкая (2 мин. 🚶)
Москва, Новокузнецкая улица, 39
Административное здание «Новокузнецкая 39»
Тип: Торговое помещение
Площадь: 45.30 м2
Мощность:35 кВт
400 000 в месяц
105 960 в год за м2
Позвонить Подробнее
Павелецкая (2 мин. 🚶)
Москва, Новокузнецкая улица, 39
Административное здание «Новокузнецкая 39»
Тип: Торговое помещение
Площадь: 93.50 м2
Мощность:70 кВт
1 000 000 в месяц
128 342 в год за м2
Позвонить Подробнее