Продажа офиса БЦ "STONE Дмитровская"

Продажа офиса БЦ Продажа офиса БЦ Продажа офиса БЦ
Продажа офиса БЦ Продажа офиса БЦ Продажа офиса БЦ
Москва, Дмитровский проезд, вл1Г
Позвоните по телефону +7 495 230-28-26, либо оставьте заявку на просмотр прямо сейчас и узнайте условия специального предложения по объекту.
загрузка карты...
Капина Владлена Викторовна

Объект ведет консультант:

Капина Владлена Викторовна

Общие
ID 44934
Тип сделки Продажа
Площадь 1600.60
Площадь всего 50000.00
Тип объекта Бизнес-центр
Класс здания A
Этаж 20
Всего этажей в здании 23
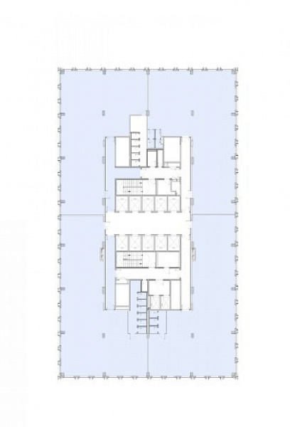
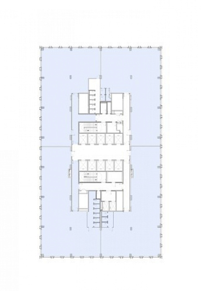
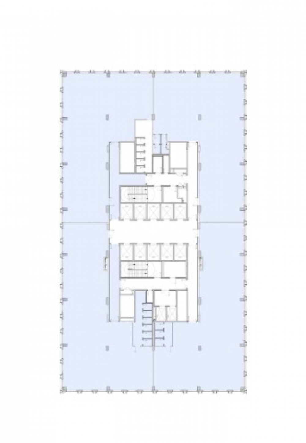
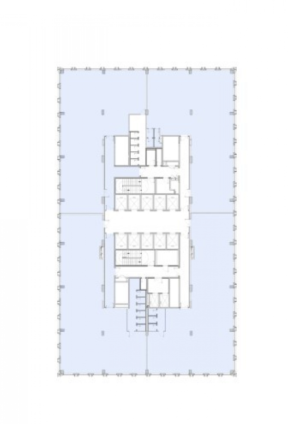
Метраж по этажам
Информация об объекте
Состояние объекта рабочее
Состояние блока Shell and Core
Планировка Смешанная
Перекрытия Железобетонные
Нюансы Новостройка
Коммерческие условия
За все 664 249 000 ₽
За м 2 415 000 ₽
Тип собственника Юридическое лицо

Описание объекта
Продается помещение в современном офисе площадью 1 600,60 м2. в новом бизнес-центре класса А STONE Дмитровская: 3 мин. пешком от метро "Дмитровская" .
Новый бизнес-центр класса А STONE Дмитровская реализуется совместно с Мэрией г. Москвы в рамках программы комплексного развития территорий и станет первым качественным офисным объектом в сложившемся районе у станции метро «Дмитровская». Объект представляет собой 23-этажную офисную башню, где в широкой линейке на продажу представлены уникальные для класса А небольшие офисные блоки от 42 кв. м и видовые этажи. Общая площадь бизнес-центра составит 49 тыс. кв. м.

В бизнес-центре предусмотрен расширенный инфраструктурный блок, в котором будут представлены: торговые помещения, кафе, рестораны, столовая для сотрудников, аптеки, банкоматы. Территория бизнес-центра будет благоустроена и открыта для жителей района. Для резидентов предусмотрен подземный паркинг.

Планировки офисных этажей соответствуют требованиям функционального офиса: глубина помещений — 8-10 м, высота потолков — 3,65 м. Окна в пол обеспечат оптимальный уровень инсоляции и предусматривают возможность естественного проветривания.

Готовность 2027 год

Нужна консультация по покупке или продаже офиса?

Наши специалисты подберут для вас самые выгодные варианты для долгосрочного инвестирования,
помогут в сопровождении и сделки, проверят все юридические вопросы касаемо приобретения недвижимости.

* Нажимая на кнопку «Отправить», Вы даете согласие на обработку персональных данных в соответствии с Политикой конфиденциальности

Похожие объекты

ЦСКА (6 мин. 🚶)
Москва, Ходынский бульвар, 4/1
БЦ "AIR"
Тип: Офисы
Площадь: 1570.70 м2
Отделка:Shell and Core
824 931 640 за все
525 200 за м2
Позвонить Подробнее
Окружная (10 мин. 🚗)
Москва, Алтуфьевское шоссе, 35к1
МФК "HALO (ГАЛО)"
Тип: Офисы
Площадь: 1537.30 м2
Отделка:Shell and Core
235 206 906 за все
153 000 за м2
Позвонить Подробнее
Строгино (14 мин. 🚗)
Москва, МКАД, 64-й километр, 1
Бизнес парк "«Rublevo Business Park (Рублево Бизнес Парк)»"
Тип: Офисы
Площадь: 1494.82 м2
Отделка:Shell and Core
450 177 002 за все
301 158 за м2
Позвонить Подробнее
Строгино (14 мин. 🚗)
Москва, МКАД, 64-й километр, 1
Бизнес парк "«Rublevo Business Park (Рублево Бизнес Парк)»"
Тип: Офисы
Площадь: 1494.82 м2
Отделка:Shell and Core
454 879 705 за все
304 304 за м2
Позвонить Подробнее
Строгино (14 мин. 🚗)
Москва, МКАД, 64-й километр, 1
Бизнес парк "«Rublevo Business Park (Рублево Бизнес Парк)»"
Тип: Офисы
Площадь: 1494.82 м2
Отделка:Shell and Core
445 046 779 за все
297 726 за м2
Позвонить Подробнее
Строгино (14 мин. 🚗)
Москва, МКАД, 64-й километр, 1
Бизнес парк "«Rublevo Business Park (Рублево Бизнес Парк)»"
Тип: Офисы
Площадь: 1494.82 м2
Отделка:Shell and Core
455 307 224 за все
304 590 за м2
Позвонить Подробнее
Строгино (14 мин. 🚗)
Москва, МКАД, 64-й километр, 1
Бизнес парк "«Rublevo Business Park (Рублево Бизнес Парк)»"
Тип: Офисы
Площадь: 1494.82 м2
Отделка:Shell and Core
460 437 446 за все
308 022 за м2
Позвонить Подробнее
Строгино (14 мин. 🚗)
Москва, МКАД, 64-й километр, 1
Бизнес парк "«Rublevo Business Park (Рублево Бизнес Парк)»"
Тип: Офисы
Площадь: 1494.82 м2
Отделка:Shell and Core
465 567 668 за все
311 454 за м2
Позвонить Подробнее
Авиамоторная (15 мин. 🚶)
Москва, улица Золоторожский Вал, 11
Бизнес-центр "STONE Римский"
Тип: Офисы
Площадь: 1631.00 м2
Отделка:Shell and Core
701 330 000 за все
430 000 за м2
Позвонить Подробнее
(7 мин. 🚶)
Москва, улица Нижние Мнёвники, 50с1
Бизнес-центр "Stone Мнёвники"
Тип: Офисы
Площадь: 1626.00 м2
Отделка:Shell and Core
782 106 000 за все
481 000 за м2
Позвонить Подробнее
Тульская (3 мин. 🚶)
Москва, Холодильный переулок, 3к1
БЦ "Башня Рябов"
Тип: Офисы
Площадь: 1481.60 м2
Отделка:Shell and Core
725 984 000 за все
490 000 за м2
Позвонить Подробнее
Новые Черёмушки (15 мин. 🚶)
Москва, Улица Намёткина, 18
Жилое здание «Розмарин»
Тип: Офисы
Площадь: 1630.30 м2
Отделка:Shell and Core
423 878 000 за все
260 000 за м2
Позвонить Подробнее
Маяковская (5 мин. 🚶)
Москва, 2-я Брестская улица, 6
Бизнес-центр «Резиденция Тверская»
Тип: Офисы
Площадь: 426.00 м2
Отделка:выполнена высококачественная отделка
637 500 000 за все
1 496 479 за м2
Позвонить Подробнее
Кунцевская (10 мин. 🚶)
Москва, Молдавская улица, 1с8
Бизнес-центр "Upside Кунцево"
Тип: Офисы
Площадь: 886.60 м2
Отделка:Shell and Core
656 070 480 за все
739 985 за м2
Позвонить Подробнее
Кунцевская (10 мин. 🚶)
Москва, Молдавская улица, 1с8
Бизнес-центр "Upside Кунцево"
Тип: Офисы
Площадь: 910.00 м2
Отделка:Shell and Core
607 528 630 за все
667 614 за м2
Позвонить Подробнее
Авиамоторная (15 мин. 🚶)
Москва, улица Золоторожский Вал, 11
Бизнес-центр "STONE Римский"
Тип: Офисы
Площадь: 1631.00 м2
Отделка:Shell and Core
701 330 000 за все
430 000 за м2
Позвонить Подробнее
Тульская (3 мин. 🚶)
Москва, Холодильный переулок, 3к1
БЦ "Башня Рябов"
Тип: Офисы
Площадь: 1481.60 м2
Отделка:Shell and Core
725 984 000 за все
490 000 за м2
Позвонить Подробнее
Хорошёво (7 мин. 🚶)
Москва, 3-й Силикатный проезд, вл10Ас1
БЦ "Jois"
Тип: Офисы
Площадь: 1735.30 м2
Отделка:Shell and Core
725 355 400 за все
418 000 за м2
Позвонить Подробнее
Октябрьская (1 мин. 🚶)
Москва, Ленинский проспект, 2
ЖК "CULT"
Тип: Офисы
Площадь: 307.00 м2
Отделка:Shell and Core
614 000 000 за все
2 000 000 за м2
Позвонить Подробнее
ЦСКА (5 мин. 🚶)
Москва, Ходынский бульвар, 20А
БЦ "STONE Ходынка 2"
Тип: Офисы
Площадь: 1505.40 м2
Отделка:Shell and Core
710 124 000 за все
471 718 за м2
Позвонить Подробнее
Дмитровская (3 мин. 🚶)
Москва, Дмитровский проезд, вл1Г
БЦ "STONE Дмитровская"
Тип: Офисы
Площадь: 1611.10 м2
Отделка:Shell and Core
676 662 000 за все
420 000 за м2
Позвонить Подробнее
Дмитровская (3 мин. 🚶)
Москва, Дмитровский проезд, вл1Г
БЦ "STONE Дмитровская"
Тип: Офисы
Площадь: 1596.50 м2
Отделка:Shell and Core
638 600 000 за все
400 000 за м2
Позвонить Подробнее
Павелецкая (12 мин. 🚶)
Москва, Летниковская улица, 10с2
Бизнес-центр «Святогор-2»
Тип: Офисы
Площадь: 2365.40 м2
Отделка:выполнена стандартная офисная отделка
599 983 710 за все
253 650 за м2
Позвонить Подробнее
(10 мин. 🚶)
Москва, Знаменская улица, 4
Офисное здание «Знаменская 4»
Тип: Офисы
Площадь: 6313.00 м2
Отделка:выполнена стандартная офисная отделка
630 000 000 за все
99 794 за м2
Позвонить Подробнее
Дмитровская (3 мин. 🚶)
Москва, Дмитровский проезд, вл1Г
БЦ "STONE Дмитровская"
Тип: Офисы
Площадь: 136.00 м2
Отделка:Shell and Core
59 160 000 за все
435 000 за м2
Позвонить Подробнее
Дмитровская (3 мин. 🚶)
Москва, Дмитровский проезд, вл1Г
БЦ "STONE Дмитровская"
Тип: Офисы
Площадь: 191.90 м2
Отделка:Shell and Core
83 476 500 за все
435 000 за м2
Позвонить Подробнее
Дмитровская (3 мин. 🚶)
Москва, Дмитровский проезд, вл1Г
БЦ "STONE Дмитровская"
Тип: Офисы
Площадь: 383.70 м2
Отделка:Shell and Core
171 130 200 за все
446 000 за м2
Позвонить Подробнее
Дмитровская (3 мин. 🚶)
Москва, Дмитровский проезд, вл1Г
БЦ "STONE Дмитровская"
Тип: Офисы
Площадь: 790.30 м2
Отделка:Shell and Core
350 102 900 за все
443 000 за м2
Позвонить Подробнее
Дмитровская (3 мин. 🚶)
Москва, Дмитровский проезд, вл1Г
БЦ "STONE Дмитровская"
Тип: Офисы
Площадь: 1611.10 м2
Отделка:Shell and Core
676 662 000 за все
420 000 за м2
Позвонить Подробнее
Дмитровская (3 мин. 🚶)
Москва, Дмитровский проезд, вл1Г
БЦ "STONE Дмитровская"
Тип: Офисы
Площадь: 336.10 м2
Отделка:Shell and Core
148 220 100 за все
441 000 за м2
Позвонить Подробнее
Дмитровская (3 мин. 🚶)
Москва, Дмитровский проезд, вл1Г
БЦ "STONE Дмитровская"
Тип: Офисы
Площадь: 1596.50 м2
Отделка:Shell and Core
638 600 000 за все
400 000 за м2
Позвонить Подробнее
Дмитровская (4 мин. 🚶)
Москва, Новодмитровская улица, 1с1
БЦ Хлебозавод №9
Тип: Офисы
Площадь: 235.30 м2
Отделка:выполнена стандартная офисная отделка
129 415 000 за все
550 000 за м2
Позвонить Подробнее
Дмитровская (4 мин. 🚶)
Москва, Новодмитровская улица, 1с1
БЦ Хлебозавод №9
Тип: Офисы
Площадь: 259.90 м2
Отделка:выполнена стандартная офисная отделка
142 945 000 за все
550 000 за м2
Позвонить Подробнее
Дмитровская (4 мин. 🚶)
Москва, Новодмитровская улица, 1с1
БЦ Хлебозавод №9
Тип: Офисы
Площадь: 322.40 м2
Отделка:выполнена стандартная офисная отделка
177 320 000 за все
550 000 за м2
Позвонить Подробнее
Дмитровская (4 мин. 🚶)
Москва, Новодмитровская улица, 1с1
БЦ Хлебозавод №9
Тип: Офисы
Площадь: 204.50 м2
Отделка:выполнена стандартная офисная отделка
112 475 000 за все
550 000 за м2
Позвонить Подробнее
Дмитровская (13 мин. 🚶)
Москва, Складочная улица, 1с5
БЦ "Гульден"
Тип: Офисы
Площадь: 34.70 м2
Отделка:требуется косметический ремонт
9 716 000 за все
280 000 за м2
Позвонить Подробнее