Аренда офиса Деловой квартал "Сколково Парк"

Аренда офиса Деловой квартал Аренда офиса Деловой квартал Аренда офиса Деловой квартал
Аренда офиса Деловой квартал Аренда офиса Деловой квартал Аренда офиса Деловой квартал
Москва, Сколковское шоссе, вл43
Позвоните по телефону +7 495 230-28-26, либо оставьте заявку на просмотр прямо сейчас и узнайте условия специального предложения по объекту.
загрузка карты...
Аренда в год за м2 78 000 ₽
Аренда в месяц 4 264 000 ₽
Схема сделки прямая аренда
Первушина Марина Алексеевна

Объект ведет консультант:

Первушина Марина Алексеевна

Общие
ID 45053
Тип сделки Аренда
Площадь 656.00
Тип объекта Бизнес-парк
Этаж 4
Всего этажей в здании 6
Метраж по этажам
Информация об объекте
Состояние объекта рабочее
Состояние блока выполнена высококачественная отделка
Планировка Смешанная
Перекрытия Железобетонные
Парковка подземная 20900р/мес
Коммерческие условия
Аренда в год за м2 78 000 ₽
Аренда в месяц 4 264 000 ₽
Схема сделки прямая аренда
Тип собственника Юридическое лицо

Описание объекта
Предлагается в аренду офисное пространство в первом корпусе нового делового квартала класса А «Сколково парк».
Деловой квартал находится между Кутузовским проспектом и МКАД, что обеспечивает удобную транспортную доступность как на личном, так и общественном транспорте. Бизнес парк занимает территорию 212000м2 и состоит из 6 офисных зданий с развитой инфраструктурой.
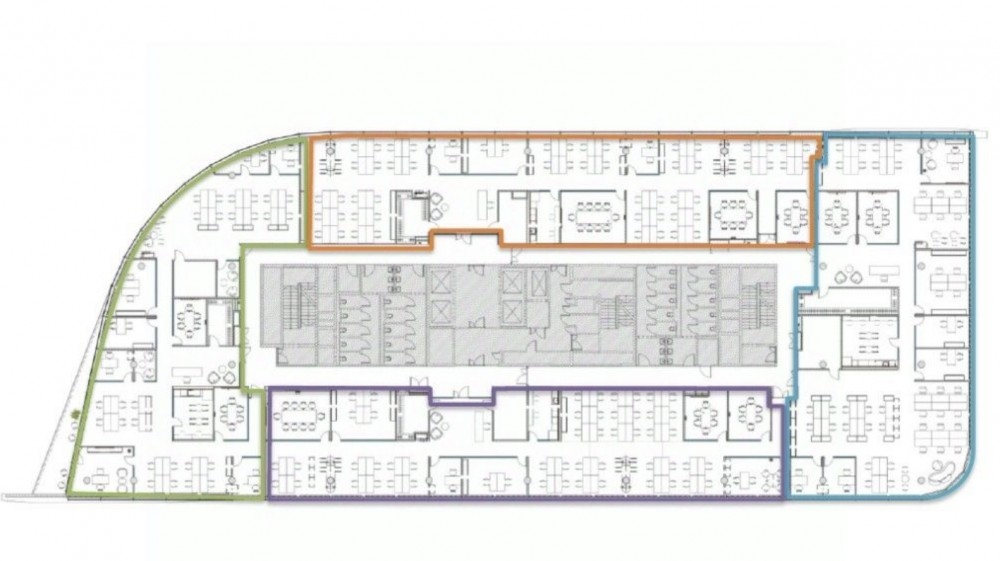
Офис 656м2 находится на 4 этаже (на плане выделен оранжевым). Остекление от пола до потолка. Помещение сдается с высококачественной отделкой.
В ставку включена эксплуатация, к/у оплачиваются отдельно.
За дополнительную плату предоставляются места на парковке.
Офис свободен к заезду с 1 февраля.

Нужна консультация по подбору помещения под офис?

Наши специалисты подберут для вас самые выгодные варианты для долгосрочного инвестирования,
помогут в сопровождении и сделки, проверят все юридические вопросы касаемо приобретения недвижимости.

* Нажимая на кнопку «Отправить», Вы даете согласие на обработку персональных данных в соответствии с Политикой конфиденциальности

Похожие объекты

Павелецкая (10 мин. 🚶)
Москва, Летниковская улица, 10с4
Бизнес-центр «Святогор-4»
Тип: Офисы
Площадь: 666.00 м2
Отделка:выполнена стандартная офисная отделка
1 998 000 в месяц
36 000 в год за м2
Позвонить Подробнее
Тверская (2 мин. 🚶)
Москва, Тверская улица, 16с1
Бизнес-центр «Галерея Актер»
Тип: Офисы
Площадь: 644.00 м2
Отделка:выполнена высококачественная отделка
9 594 000 в месяц
178 770 в год за м2
Позвонить Подробнее

Московская область, Одинцовский городской округ, Звенигород, улица Ленина, 15
Здание "Звенигород, улица Ленина, 15"
Тип: Офисы
Площадь: 675.00 м2
Отделка:отделка арендатора
450 000 в месяц
8 000 в год за м2
Позвонить Подробнее
Маяковская (4 мин. 🚶)
Москва, Оружейный переулок, 13с1
Административное здание "Оружейный переулок, 13с1"
Тип: Офисы
Площадь: 668.00 м2
Отделка:помещение без отделки
2 500 000 в месяц
44 910 в год за м2
Позвонить Подробнее
Молодёжная (8 мин. 🚗)
Москва, улица Горбунова, 2с3
Бизнес-центр Grand Setun Plaza (Гранд Сетунь Плаза)
Тип: Офисы
Площадь: 682.40 м2
Отделка:качественная отделка
2 028 548 в месяц
35 672 в год за м2
Позвонить Подробнее
Смоленская (Филевская) Смоленская (Арбатско-Покровская) (10 мин. 🚶)
Москва, Шубинский переулок, 6с4
Особняк «Шубинский 6 с4»
Тип: Офисы
Площадь: 618.00 м2
2 500 000 в месяц
48 544 в год за м2
Позвонить Подробнее
ЦСКА (5 мин. 🚶)
Москва, Улица Авиаконструктора Микояна, 12
Бизнес-центр «Линкор»
Тип: Офисы
Площадь: 595.00 м2
Отделка:качественная отделка
1 844 500 в месяц
37 200 в год за м2
Позвонить Подробнее
ЦСКА (5 мин. 🚶)
Москва, Улица Авиаконструктора Микояна, 12
Бизнес-центр «Линкор»
Тип: Офисы
Площадь: 671.32 м2
Отделка:выполнена стандартная офисная отделка
2 081 092 в месяц
37 200 в год за м2
Позвонить Подробнее
Новослободская (5 мин. 🚶)
Москва, Краснопролетарская улица, 16с1
БЦ "Красный пролетарий"
Тип: Офисы
Площадь: 600.00 м2
Отделка:качественная отделка
2 250 000 в месяц
45 000 в год за м2
Позвонить Подробнее
Минская (12 мин. 🚶)
Москва, Минская улица, 2Гк1
Бизнес-центр «Кутузов Холл»
Тип: Офисы
Площадь: 648.00 м2
Отделка:качественная отделка
2 100 000 в месяц
38 889 в год за м2
Позвонить Подробнее
Селигерская (5 мин. 🚶)
Москва, Дмитровское шоссе, 81
МФК «Apart Ville»
Тип: Офисы
Площадь: 625.00 м2
Отделка:выполнена высококачественная отделка
990 000 в месяц
19 008 в год за м2
Позвонить Подробнее
Комсомольская (5 мин. 🚶)
Москва, Каланчёвский тупик, 3-5с1
Особняк " Каланчёвский тупик, 3-5с1"
Тип: Офисы
Площадь: 654.00 м2
Отделка:отделка в стиле Loft
1 900 000 в месяц
34 862 в год за м2
Позвонить Подробнее
Павелецкая (10 мин. 🚶)
Москва, Летниковская улица, 10с4
Бизнес-центр «Святогор-4»
Тип: Офисы
Площадь: 569.30 м2
Отделка:качественная отделка
3 600 000 в месяц
75 883 в год за м2
Позвонить Подробнее
Китай-город (7 мин. 🚶)
Москва, Подкопаевский переулок, 4
Бизнес-центр «Ивановская горка»
Тип: Офисы
Площадь: 328.00 м2
Отделка:выполнена высококачественная отделка
2 323 333 в месяц
85 000 в год за м2
Позвонить Подробнее
Китай-город (7 мин. 🚶)
Москва, Подкопаевский переулок, 4
Бизнес-центр «Ивановская горка»
Тип: Офисы
Площадь: 543.00 м2
Отделка:выполнена высококачественная отделка
3 235 375 в месяц
71 500 в год за м2
Позвонить Подробнее
Смоленская (Филевская) Смоленская (Арбатско-Покровская) (3 мин. 🚶)
Москва, Смоленская площадь, 3
Бизнес-центр «Смоленский пассаж»
Тип: Офисы
Площадь: 1039.70 м2
Отделка:выполнена стандартная офисная отделка
6 082 362 в месяц
70 201 в год за м2
Позвонить Подробнее
Белорусская (9 мин. 🚶)
Москва, Лесная улица, 20с1
БЦ "Депо Лесная"
Тип: Офисы
Площадь: 160.00 м2
Отделка:качественная отделка
1 040 000 в месяц
78 000 в год за м2
Позвонить Подробнее
ЦСКА (15 мин. 🚶)
Москва, Ленинградский проспект, 37Ак4
БЦ "Аркус 3"
Тип: Офисы
Площадь: 2550.00 м2
Отделка:выполнена стандартная офисная отделка
17 059 500 в месяц
80 280 в год за м2
Позвонить Подробнее
ЦСКА (15 мин. 🚶)
Москва, Ленинградский проспект, 37Ак4
БЦ "Аркус 3"
Тип: Офисы
Площадь: 1282.00 м2
Отделка:выполнена стандартная офисная отделка
8 576 580 в месяц
80 280 в год за м2
Позвонить Подробнее
ЦСКА (15 мин. 🚶)
Москва, Ленинградский проспект, 37Ак4
БЦ "Аркус 3"
Тип: Офисы
Площадь: 837.00 м2
Отделка:выполнена стандартная офисная отделка
5 432 130 в месяц
77 880 в год за м2
Позвонить Подробнее
Кунцевская (10 мин. 🚶)
Москва, Молдавская улица, 1с8
Бизнес-центр "Upside"
Тип: Офисы
Площадь: 278.00 м2
Отделка:Shell & Core
1 635 480 в месяц
70 596 в год за м2
Позвонить Подробнее
Кунцевская (10 мин. 🚶)
Москва, Молдавская улица, 1с8
Бизнес-центр "Upside"
Тип: Офисы
Площадь: 155.30 м2
Отделка:Shell & Core
922 637 в месяц
71 292 в год за м2
Позвонить Подробнее
Кунцевская (10 мин. 🚶)
Москва, Молдавская улица, 1с8
Бизнес-центр "Upside"
Тип: Офисы
Площадь: 111.00 м2
Отделка:Shell & Core
664 798 в месяц
71 870 в год за м2
Позвонить Подробнее
Кунцевская (10 мин. 🚶)
Москва, Молдавская улица, 1с8
Бизнес-центр "Upside"
Тип: Офисы
Площадь: 71.80 м2
Отделка:Shell & Core
491 212 в месяц
82 097 в год за м2
Позвонить Подробнее
Кунцевская (10 мин. 🚶)
Москва, Молдавская улица, 1с8
Бизнес-центр "Upside"
Тип: Офисы
Площадь: 278.00 м2
Отделка:Shell & Core
1 635 480 в месяц
70 596 в год за м2
Позвонить Подробнее
Кунцевская (10 мин. 🚶)
Москва, Молдавская улица, 1с8
Бизнес-центр "Upside"
Тип: Офисы
Площадь: 735.00 м2
Отделка:Shell & Core
1 102 650 в месяц
18 002 в год за м2
Позвонить Подробнее
Кунцевская (10 мин. 🚶)
Москва, Молдавская улица, 1с8
Бизнес-центр "Upside"
Тип: Офисы
Площадь: 155.30 м2
Отделка:Shell & Core
922 637 в месяц
71 292 в год за м2
Позвонить Подробнее
Кунцевская (10 мин. 🚶)
Москва, Молдавская улица, 1с8
Бизнес-центр "Upside"
Тип: Офисы
Площадь: 111.00 м2
Отделка:Shell & Core
664 798 в месяц
71 870 в год за м2
Позвонить Подробнее
Кунцевская (10 мин. 🚶)
Москва, Молдавская улица, 1с8
Бизнес-центр "Upside"
Тип: Офисы
Площадь: 71.80 м2
Отделка:Shell & Core
491 212 в месяц
82 097 в год за м2
Позвонить Подробнее
Кунцевская (10 мин. 🚶)
Москва, Молдавская улица, 1с8
Бизнес-центр "Upside"
Тип: Офисы
Площадь: 63.00 м2
Отделка:Shell & Core
439 401 в месяц
83 695 в год за м2
Позвонить Подробнее
Кунцевская (10 мин. 🚶)
Москва, Молдавская улица, 1с8
Бизнес-центр "Upside"
Тип: Офисы
Площадь: 50.40 м2
Отделка:Shell & Core
315 000 в месяц
75 000 в год за м2
Позвонить Подробнее
Кунцевская (10 мин. 🚶)
Москва, Молдавская улица, 1с8
Бизнес-центр "Upside"
Тип: Офисы
Площадь: 43.50 м2
Отделка:Shell & Core
286 818 в месяц
79 122 в год за м2
Позвонить Подробнее
Кунцевская (10 мин. 🚶)
Москва, Молдавская улица, 1с8
Бизнес-центр "Upside"
Тип: Офисы
Площадь: 28.00 м2
Отделка:Shell & Core
197 980 в месяц
84 849 в год за м2
Позвонить Подробнее
Кунцевская (12 мин. 🚗)
Москва, Сколковское шоссе, вл43
Деловой квартал "Сколково Парк"
Тип: Офисы
Площадь: 2693.00 м2
Отделка:выполнена высококачественная отделка
18 851 000 в месяц
84 000 в год за м2
Позвонить Подробнее
Кунцевская (16 мин. 🚗)
Московская область, Одинцовский городской округ, рабочий посёлок Новоивановское, Западная улица, 181
МФК Орбион
Тип: Офисы
Площадь: 365.60 м2
Отделка:выполнена стандартная офисная отделка
891 500 в месяц
29 261 в год за м2
Позвонить Подробнее
Кунцевская (16 мин. 🚗)
Московская область, Одинцовский городской округ, рабочий посёлок Новоивановское, Западная улица, 181
МФК Орбион
Тип: Офисы
Площадь: 812.10 м2
Отделка:выполнена стандартная офисная отделка
2 030 250 в месяц
30 000 в год за м2
Позвонить Подробнее