Аренда торгового помещения Особняк «Солянка 2/6»
                                    
                                    Москва, Улица Солянка, 2/6                                
                                
                                                                            Позвоните по телефону +7 495 230-28-26, либо оставьте заявку
                                            на просмотр прямо сейчас и узнайте условия специального
                                        предложения по объекту.
                                                                    
                                загрузка карты...
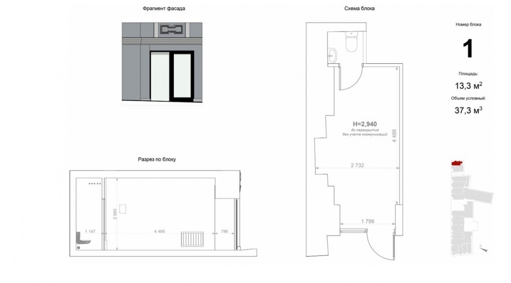
                                Информация об объекте
                                                                                                                                                                                                    
                                                Состояние блока
                                                помещение без отделки
                                            
                                                                                                                                                                
                                                Планировка
                                                Смешанная
                                            
                                                                                                                                                                
                                                Коммуникации
                                                Система видеонаблюдения,Интернет,Телефония
                                            
                                                                                                                                                                                                                                                                                                                                                                                                                                                                                                                                                                                                                                        
                                                КПП
                                                Гостевой пропуск
                                            
                                                                                                                                                                                                                                            
                                                Нюансы
                                                Отдельный вход,ПСН
                                            
                                                                                                                                                                                                                                                                    Торговая недвижимость
                                                                                                                        
                                                Линия домов
                                                1 линия
                                            
                                                                                                                                                                
                                                Возможности
                                                Витрины,Место для рекламы,Проходное место,Проездное место
                                            
                                                                                                                                                                                        
Описание объекта
                                
                                    Помещение с большими витринными окнами расположено на первой линии Солянского проезда, в Таганском районе (ЦАО). В шаговой доступности метро Китай-город, Славянская площадь, Лубянский проезд. Рядом с помещением расположены кафе, рестораны, салоны
красоты, магазины косметики и парфюмерии, аптеки, стоматологические центры, банки.
Гарантированный сверхинтенсивный пешеходный и автомобильный трафик. Высокий маркетинговый потенциал.
                                
                            красоты, магазины косметики и парфюмерии, аптеки, стоматологические центры, банки.
Гарантированный сверхинтенсивный пешеходный и автомобильный трафик. Высокий маркетинговый потенциал.
Нужна консультация по подбору торговых площадей для аренды?
                    Наши специалисты подберут для вас самые выгодные варианты для долгосрочного инвестирования,
                    помогут в сопровождении и сделки, проверят все юридические вопросы касаемо приобретения недвижимости.
                
 
                                                     
                                                     
                                                     
                                                     
                                             
                                                             
                                                             
                                                             
                                                             
                                                    