Аренда торгового помещения Офисное здание «Мясницкая 8/2»

Аренда торгового помещения Офисное здание «Мясницкая 8/2» Аренда торгового помещения Офисное здание «Мясницкая 8/2» Аренда торгового помещения Офисное здание «Мясницкая 8/2»
Аренда торгового помещения Офисное здание «Мясницкая 8/2» - превью Аренда торгового помещения Офисное здание «Мясницкая 8/2» - превью Аренда торгового помещения Офисное здание «Мясницкая 8/2» - превью
Москва, Мясницкая улица, 8/2
Позвоните по телефону +7 495 230-28-26, либо оставьте заявку на просмотр прямо сейчас и узнайте условия специального предложения по объекту.
загрузка карты...
Аренда в год за м2 450 281 ₽
Аренда в месяц 2 000 000 ₽
Схема сделки прямая аренда
Капина Владлена Викторовна

Объект ведет консультант:

Капина Владлена Викторовна

Общие
ID 62853
Тип сделки Аренда
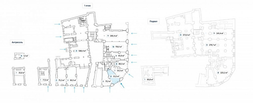
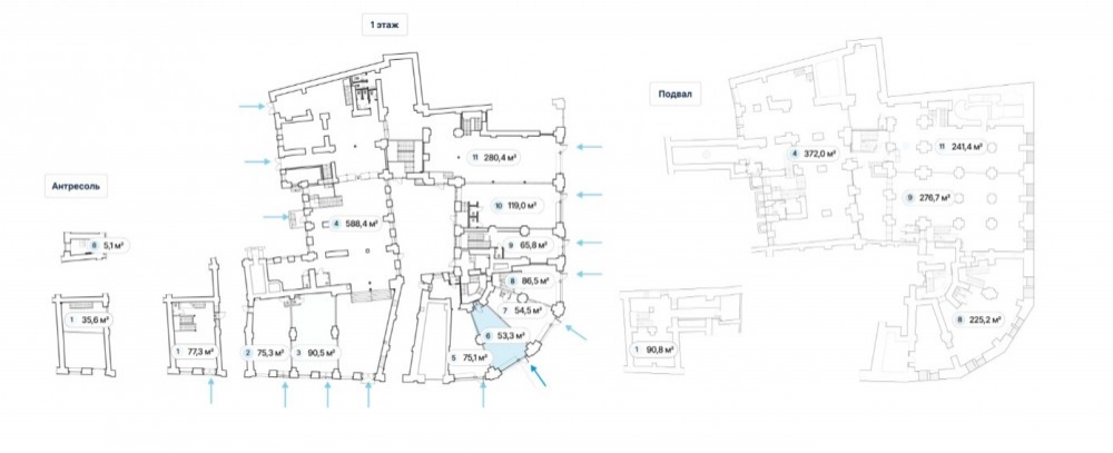
Площадь 53.30
Площадь всего 10000.00
Тип объекта Офисное здание
Класс здания B
Этаж 1
Всего этажей в здании 4
Метраж по этажам
Информация об объекте
Состояние блока помещение без отделки
Планировка Открытая
Коммуникации Система видеонаблюдения,Интернет,Телефония
КПП Гостевой пропуск
Нюансы Отдельный вход
Торговая недвижимость
Линия домов 1 линия
Возможности Витрины,Место для рекламы,Проходное место,Проездное место
Коммерческие условия
Аренда в год за м2 450 281 ₽
Аренда в месяц 2 000 000 ₽
Схема сделки прямая аренда
Тип собственника Юридическое лицо

Описание объекта
Аренда помещения торгового или свободного назначения (ПСН) на 1 этаже нежилого здания. Отлично подойдёт под любой вид деятельности — торговое помещение, магазин, ресторан, кафе, аптека, салон красоты, банк, офис продаж, кофейня и др. Планировка - открытая (свободная), высота потолков — до 5,5 м, перекрытия — ж/б.

Отдельные входные группы с фасада с 1-ой линии, есть входы со двора.
Все городские инженерные коммуникации. Возможны вытяжные воздуховоды до уровня кровли.
Энергообеспечение достаточное количество под любой вид деятельности.

Арендная плата в месяц: коммунальные платежи и электричество оплачиваются арендатором отдельно
Срок аренды: долгосрочный договор

Исторический и деловой центр. Помещения расположены в 5 минутах от Кремля — в самом центре столицы на улице Мясницкая. Узнаваемый объект XIX века — Торговый дом Кузнецова. В непосредственной близости расположены: большое количество исторических достопримечательностей, посольств и госучреждений, а также развитая ресторанная инфраструктура.

Нужна консультация по подбору торговых площадей для аренды?

Наши специалисты подберут для вас самые выгодные варианты для долгосрочного инвестирования,
помогут в сопровождении и сделки, проверят все юридические вопросы касаемо приобретения недвижимости.

* Нажимая на кнопку «Отправить», Вы даете согласие на обработку персональных данных в соответствии с Политикой конфиденциальности

Похожие объекты

Деловой центр Деловой центр (МЦК) (7 мин. 🚶)
Москва, Пресненская набережная, 12
Москва-Сити «Башня Федерация»
Тип: Торговое помещение
Площадь: 52.00 м2
Мощность:40 кВт
414 739 в месяц
95 709 в год за м2
Позвонить Подробнее
Спартак (11 мин. 🚶)
Москва, Чкаловский бульвар, 6
ЖК «Holland Park»
Тип: Торговое помещение
Площадь: 54.60 м2
Мощность:12 кВт
320 000 в месяц
70 330 в год за м2
Позвонить Подробнее
Новокузнецкая (4 мин. 🚶)
Москва, Большая Татарская улица, 20с1
Административное здание "Москва, улица Большая Татарская. 20 стр. 1"
Тип: Торговое помещение
Площадь: 51.40 м2
Мощность:60 кВт
450 000 в месяц
105 058 в год за м2
Позвонить Подробнее
Ховрино (25 мин. 🚗)
Москва, Ленинградское шоссе, 228к6
ЖК «1-й Ленинградский», к. 1
Тип: Торговое помещение
Площадь: 53.30 м2
Мощность:15 кВт
126 000 в месяц
28 368 в год за м2
Позвонить Подробнее
Братиславская (9 мин. 🚶)
Москва, Люблинская улица, 153
ТЦ "Люблю Молл"
Тип: Торговое помещение
Площадь: 55.40 м2
365 640 в месяц
79 200 в год за м2
Позвонить Подробнее
Братиславская (9 мин. 🚶)
Москва, Люблинская улица, 153
ТЦ "Люблю Молл"
Тип: Торговое помещение
Площадь: 54.00 м2
378 000 в месяц
84 000 в год за м2
Позвонить Подробнее
Авиамоторная (5 мин. 🚶)
Закрытая продажа #63031
Тип: Торговое помещение
Площадь: 53.10 м2
Мощность:20 кВт
130 000 в месяц
29 379 в год за м2
Позвонить Подробнее
Котельники (7 мин. 🚶)
Московская область, Люберцы, Шоссейная улица, 42
ЖК "Liberty"
Тип: Торговое помещение
Площадь: 53.00 м2
Мощность:45 кВт
250 000 в месяц
56 604 в год за м2
Позвонить Подробнее
Кунцевская (10 мин. 🚶)
Москва, Молдавская улица, 1с8
Бизнес-центр "Upside Кунцево"
Тип: Торговое помещение
Площадь: 55.00 м2
Мощность:5 кВт
358 800 в месяц
78 284 в год за м2
Позвонить Подробнее
ЗИЛ (15 мин. 🚶)
Москва, набережная Марка Шагала, 11к3
ЖК Шагал
Тип: Торговое помещение
Площадь: 50.00 м2
Мощность:10 кВт
400 000 в месяц
96 000 в год за м2
Позвонить Подробнее
Курская (2 мин. 🚶)
Москва, улица Земляной Вал, 23с1
Жилое здание " Земляной Вал, 23с1"
Тип: Торговое помещение
Площадь: 55.50 м2
650 000 в месяц
140 541 в год за м2
Позвонить Подробнее
Молодёжная (1 мин. 🚶)
Москва, Ярцевская улица, 27к1
Жилой дом "Ярцевская 27к1"
Тип: Торговое помещение
Площадь: 51.10 м2
550 000 в месяц
129 159 в год за м2
Позвонить Подробнее
Китай-город (1 мин. 🚶)
Москва, улица Солянка, 2/6с1
Административное здание "Солянка, 2/6с1"
Тип: Торговое помещение
Площадь: 13.30 м2
500 000 в месяц
451 128 в год за м2
Позвонить Подробнее
Китай-город (1 мин. 🚶)
Москва, улица Солянка, 2/6с1
Административное здание "Солянка, 2/6с1"
Тип: Торговое помещение
Площадь: 20.10 м2
685 000 в месяц
408 955 в год за м2
Позвонить Подробнее
Китай-город (3 мин. 🚶)
Москва, Улица Солянка, 2/6
Особняк «Солянка 2/6»
Тип: Торговое помещение
Площадь: 16.00 м2
560 000 в месяц
420 000 в год за м2
Позвонить Подробнее
Лубянка (5 мин. 🚶)
Москва, Мясницкая улица, 11
ЖК "Дом на Мясницкой (Meating House)"
Тип: Торговое помещение
Площадь: 301.00 м2
Мощность:125 кВт
1 700 000 в месяц
67 774 в год за м2
Позвонить Подробнее
Лубянка (4 мин. 🚶)
Москва, Мясницкая улица, 8/2
Офисное здание «Мясницкая 8/2»
Тип: Торговое помещение
Площадь: 203.70 м2
1 800 000 в месяц
106 038 в год за м2
Позвонить Подробнее
Лубянка (4 мин. 🚶)
Москва, Мясницкая улица, 8/2
Офисное здание «Мясницкая 8/2»
Тип: Торговое помещение
Площадь: 75.10 м2
2 400 000 в месяц
383 489 в год за м2
Позвонить Подробнее
Лубянка (4 мин. 🚶)
Москва, Мясницкая улица, 8/2
Офисное здание «Мясницкая 8/2»
Тип: Торговое помещение
Площадь: 960.40 м2
5 300 000 в месяц
66 222 в год за м2
Позвонить Подробнее
Лубянка (4 мин. 🚶)
Москва, Мясницкая улица, 8/2
Офисное здание «Мясницкая 8/2»
Тип: Торговое помещение
Площадь: 90.50 м2
1 500 000 в месяц
198 895 в год за м2
Позвонить Подробнее
Лубянка (4 мин. 🚶)
Москва, Мясницкая улица, 8/2
Офисное здание «Мясницкая 8/2»
Тип: Торговое помещение
Площадь: 75.30 м2
1 350 000 в месяц
215 139 в год за м2
Позвонить Подробнее
Лубянка (2 мин. 🚶)
Москва, Лубянский проезд, 7с1
Особняк «Лубянский 7 с1»
Тип: Торговое помещение
Площадь: 55.00 м2
Мощность:20 кВт
600 000 в месяц
130 909 в год за м2
Позвонить Подробнее