Аренда торгового помещения Офисное здание «Мясницкая 8/2»

Аренда торгового помещения Офисное здание «Мясницкая 8/2» Аренда торгового помещения Офисное здание «Мясницкая 8/2» Аренда торгового помещения Офисное здание «Мясницкая 8/2»
Аренда торгового помещения Офисное здание «Мясницкая 8/2» - превью Аренда торгового помещения Офисное здание «Мясницкая 8/2» - превью Аренда торгового помещения Офисное здание «Мясницкая 8/2» - превью
Москва, Мясницкая улица, 8/2
Позвоните по телефону +7 495 230-28-26, либо оставьте заявку на просмотр прямо сейчас и узнайте условия специального предложения по объекту.
загрузка карты...
Аренда в год за м2 66 222 ₽
Аренда в месяц 5 300 000 ₽
Схема сделки прямая аренда
Капина Владлена Викторовна

Объект ведет консультант:

Капина Владлена Викторовна

Общие
ID 62851
Тип сделки Аренда
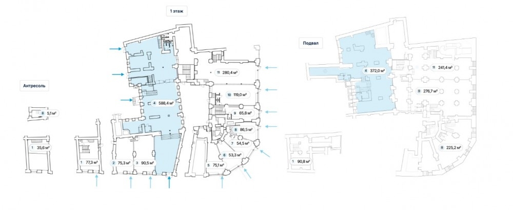
Площадь 960.40
Площадь всего 10000.00
Тип объекта Офисное здание
Класс здания B
Этаж -1 - 1
Всего этажей в здании 4
Метраж по этажам
Этаж: 1 - 588.4 м2
Этаж: -1 - 372 м2
Информация об объекте
Состояние блока помещение без отделки
Планировка Открытая
Коммуникации Система видеонаблюдения,Интернет,Телефония
КПП Гостевой пропуск
Нюансы Отдельный вход
Торговая недвижимость
Линия домов 1 линия
Возможности Витрины,Место для рекламы,Проходное место,Проездное место
Коммерческие условия
Аренда в год за м2 66 222 ₽
Аренда в месяц 5 300 000 ₽
Схема сделки прямая аренда
Тип собственника Юридическое лицо

Описание объекта
Аренда помещения торгового или свободного назначения (ПСН) на 1 этаже и подвале нежилого здания. Отлично подойдёт под любой вид деятельности — торговое помещение, магазин, ресторан, кафе, аптека, салон красоты, банк, офис продаж, кофейня и др. Планировка - открытая (свободная), высота потолков — до 5,5 м, перекрытия — ж/б.

Отдельные входные группы с фасада с 1-ой линии, есть входы со двора.
Все городские инженерные коммуникации. Возможны вытяжные воздуховоды до уровня кровли.
Энергообеспечение достаточное количество под любой вид деятельности.

Арендная плата в месяц: коммунальные платежи и электричество оплачиваются арендатором отдельно
Срок аренды: долгосрочный договор

Исторический и деловой центр. Помещения расположены в 5 минутах от Кремля — в самом центре столицы на улице Мясницкая. Узнаваемый объект XIX века — Торговый дом Кузнецова. В непосредственной близости расположены: большое количество исторических достопримечательностей, посольств и госучреждений, а также развитая ресторанная инфраструктура.

Нужна консультация по подбору торговых площадей для аренды?

Наши специалисты подберут для вас самые выгодные варианты для долгосрочного инвестирования,
помогут в сопровождении и сделки, проверят все юридические вопросы касаемо приобретения недвижимости.

* Нажимая на кнопку «Отправить», Вы даете согласие на обработку персональных данных в соответствии с Политикой конфиденциальности

Похожие объекты

Новопеределкино (12 мин. 🚶)
Москва, Чоботовская улица, 19соор1
Здание "Чоботовская улица, 19соор1"
Тип: Торговое помещение
Площадь: 1000.00 м2
1 000 000 в месяц
12 000 в год за м2
Позвонить Подробнее
Полянка (3 мин. 🚶)
Москва, улица Большая Якиманка, 15
Клубный дом «Mon Cher»
Тип: Торговое помещение
Площадь: 969.30 м2
Мощность:100 кВт
4 038 750 в месяц
50 000 в год за м2
Позвонить Подробнее
Ховрино (40 мин. 🚗)
Московская область, Химки, микрорайон Сходня, улица Некрасова, 2
ОСЗ "Некрасова вл1стр1"
Тип: Торговое помещение
Площадь: 900.00 м2
Мощность:60 кВт
900 000 в месяц
12 000 в год за м2
Позвонить Подробнее
Тимирязевская (2 мин. 🚶)
Москва, улица Яблочкова, 19Г
ТЦ "Депо Молл"
Тип: Торговое помещение
Площадь: 1008.50 м2
Мощность:200 кВт
2 017 000 в месяц
24 000 в год за м2
Позвонить Подробнее
Селигерская (14 мин. 🚶)
Москва, Пяловская улица, 1
БЦ "Дизайн гараж Дегунино"
Тип: Торговое помещение
Площадь: 915.00 м2
Мощность:750 кВт
1 240 000 в месяц
16 262 в год за м2
Позвонить Подробнее
Новокосино (15 мин. 🚗)
Московская область, Балашиха, Спортивная улица, 17
Жилой дом
Тип: Торговое помещение
Площадь: 900.00 м2
Мощность:70 кВт
720 000 в месяц
9 600 в год за м2
Позвонить Подробнее
Пражская (9 мин. 🚶)
Москва, Кировоградская улица, 11с1
ТЦ "Армада Хоум"
Тип: Торговое помещение
Площадь: 1000.00 м2
Мощность:50 кВт
2 200 000 в месяц
26 400 в год за м2
Позвонить Подробнее
Раменки (10 мин. 🚶)
Москва, Улица Раменки, 17к1
Офисное здание «Раменки 17 к1»
Тип: Торговое помещение
Площадь: 1052.00 м2
Мощность:40 кВт
2 779 033 в месяц
31 700 в год за м2
Позвонить Подробнее
Медведково ( мин. 🚶)
Московская область, Мытищи, Коммунистическая улица, 1
ТЦ "XL Оутлет"
Тип: Торговое помещение
Площадь: 1000.00 м2
1 000 000 в месяц
12 000 в год за м2
Позвонить Подробнее
Тульская (7 мин. 🚶)
Москва, улица Серпуховский Вал, 5
Жилое здание "Серпуховский Вал, 5"
Тип: Торговое помещение
Площадь: 897.40 м2
2 000 000 в месяц
26 744 в год за м2
Позвонить Подробнее
Китай-город (3 мин. 🚶)
Москва, улица Маросейка, 6-8с1
Административное здание «Маросейка 6/8с1»
Тип: Торговое помещение
Площадь: 690.00 м2
Мощность:180 кВт
3 950 000 в месяц
68 696 в год за м2
Позвонить Подробнее
Лубянка (5 мин. 🚶)
Москва, Мясницкая улица, 11
ЖК "Дом на Мясницкой (Meating House)"
Тип: Торговое помещение
Площадь: 301.00 м2
Мощность:125 кВт
1 700 000 в месяц
67 774 в год за м2
Позвонить Подробнее
Новослободская (2 мин. 🚶)
Москва, Долгоруковская улица, 40
Жилое здание "Долгоруковская ул.,40"
Тип: Торговое помещение
Площадь: 622.00 м2
Мощность:150 кВт
3 110 000 в месяц
60 000 в год за м2
Позвонить Подробнее
Спартак (11 мин. 🚶)
Москва, Чкаловский бульвар, 6
ЖК «Holland Park»
Тип: Торговое помещение
Площадь: 54.60 м2
Мощность:12 кВт
320 000 в месяц
70 330 в год за м2
Позвонить Подробнее
Крестьянская Застава (1 мин. 🚶)
Москва, Динамовская улица, 1А
Деловой центр у метро
Тип: Торговое помещение
Площадь: 136.00 м2
Мощность:15 кВт
720 000 в месяц
63 529 в год за м2
Позвонить Подробнее
Бульвар Рокоссовского (8 мин. 🚶)
Москва, Тагильская улица, вл4
ЖК "Сиреневый парк"
Тип: Торговое помещение
Площадь: 176.00 м2
Мощность:35 кВт
880 000 в месяц
60 000 в год за м2
Позвонить Подробнее
Владыкино (15 мин. 🚶)
Москва, Северо-Восточный административный округ, район Отрадное, жилой комплекс Сигнальный 16, 2.1
ЖК "Сигнальный"
Тип: Торговое помещение
Площадь: 82.00 м2
Мощность:16 кВт
450 000 в месяц
65 854 в год за м2
Позвонить Подробнее
Ботанический сад (3 мин. 🚶)
Москва, улица Вильгельма Пика, 1
ЖК Режиссер
Тип: Торговое помещение
Площадь: 110.00 м2
Мощность:52 кВт
570 000 в месяц
62 182 в год за м2
Позвонить Подробнее
Полежаевская (11 мин. 🚶)
Москва, Улица Зорге, 9
Бизнес-квартал «Зорге 9»
Тип: Торговое помещение
Площадь: 72.80 м2
Мощность:19 кВт
370 952 в месяц
61 146 в год за м2
Позвонить Подробнее
Улица 1905 года (12 мин. 🚶)
Москва, Рочдельская улица, 20
Бизнес-центр «РочДел центр»
Тип: Торговое помещение
Площадь: 400.70 м2
Мощность:90 кВт
2 170 458 в месяц
65 000 в год за м2
Позвонить Подробнее
Кузнецкий Мост (5 мин. 🚶)
Москва, Улица Петровка, 10
Торговый центр «Петровский Пассаж»
Тип: Торговое помещение
Площадь: 13703.10 м2
75 367 050 в месяц
66 000 в год за м2
Позвонить Подробнее
ЦСКА (5 мин. 🚶)
Москва, Ходынский бульвар, 2
Апарт-комплекс «Лайнер»
Тип: Торговое помещение
Площадь: 136.00 м2
Мощность:50 кВт
700 000 в месяц
61 765 в год за м2
Позвонить Подробнее
Лубянка (5 мин. 🚶)
Москва, Мясницкая улица, 11
ЖК "Дом на Мясницкой (Meating House)"
Тип: Торговое помещение
Площадь: 301.00 м2
Мощность:125 кВт
1 700 000 в месяц
67 774 в год за м2
Позвонить Подробнее
Лубянка (4 мин. 🚶)
Москва, Мясницкая улица, 8/2
Офисное здание «Мясницкая 8/2»
Тип: Торговое помещение
Площадь: 203.70 м2
1 800 000 в месяц
106 038 в год за м2
Позвонить Подробнее
Лубянка (4 мин. 🚶)
Москва, Мясницкая улица, 8/2
Офисное здание «Мясницкая 8/2»
Тип: Торговое помещение
Площадь: 53.30 м2
2 000 000 в месяц
450 281 в год за м2
Позвонить Подробнее
Лубянка (4 мин. 🚶)
Москва, Мясницкая улица, 8/2
Офисное здание «Мясницкая 8/2»
Тип: Торговое помещение
Площадь: 75.10 м2
2 400 000 в месяц
383 489 в год за м2
Позвонить Подробнее
Лубянка (4 мин. 🚶)
Москва, Мясницкая улица, 8/2
Офисное здание «Мясницкая 8/2»
Тип: Торговое помещение
Площадь: 90.50 м2
1 500 000 в месяц
198 895 в год за м2
Позвонить Подробнее
Лубянка (4 мин. 🚶)
Москва, Мясницкая улица, 8/2
Офисное здание «Мясницкая 8/2»
Тип: Торговое помещение
Площадь: 75.30 м2
1 350 000 в месяц
215 139 в год за м2
Позвонить Подробнее
Лубянка (2 мин. 🚶)
Москва, Лубянский проезд, 7с1
Особняк «Лубянский 7 с1»
Тип: Торговое помещение
Площадь: 55.00 м2
Мощность:20 кВт
600 000 в месяц
130 909 в год за м2
Позвонить Подробнее