Аренда торгового помещения Офисное здание «Мясницкая 8/2»

Аренда торгового помещения Офисное здание «Мясницкая 8/2» Аренда торгового помещения Офисное здание «Мясницкая 8/2» Аренда торгового помещения Офисное здание «Мясницкая 8/2»
Аренда торгового помещения Офисное здание «Мясницкая 8/2» - превью Аренда торгового помещения Офисное здание «Мясницкая 8/2» - превью Аренда торгового помещения Офисное здание «Мясницкая 8/2» - превью
Москва, Мясницкая улица, 8/2
Позвоните по телефону +7 495 230-28-26, либо оставьте заявку на просмотр прямо сейчас и узнайте условия специального предложения по объекту.
загрузка карты...
Аренда в год за м2 383 489 ₽
Аренда в месяц 2 400 000 ₽
Схема сделки прямая аренда
Капина Владлена Викторовна

Объект ведет консультант:

Капина Владлена Викторовна

Общие
ID 62852
Тип сделки Аренда
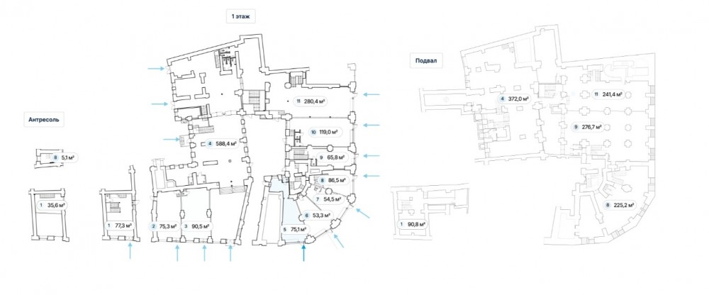
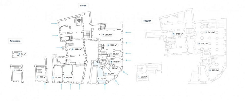
Площадь 75.10
Площадь всего 10000.00
Тип объекта Офисное здание
Класс здания B
Этаж 1
Всего этажей в здании 4
Метраж по этажам
Информация об объекте
Состояние блока помещение без отделки
Планировка Открытая
Коммуникации Система видеонаблюдения,Интернет,Телефония
КПП Гостевой пропуск
Нюансы Отдельный вход
Торговая недвижимость
Линия домов 1 линия
Возможности Витрины,Место для рекламы,Проходное место,Проездное место
Коммерческие условия
Аренда в год за м2 383 489 ₽
Аренда в месяц 2 400 000 ₽
Схема сделки прямая аренда
Тип собственника Юридическое лицо

Описание объекта
Аренда помещения торгового или свободного назначения (ПСН) на 1 этаже нежилого здания. Отлично подойдёт под любой вид деятельности — торговое помещение, магазин, ресторан, кафе, аптека, салон красоты, банк, офис продаж, кофейня и др. Планировка - открытая (свободная), высота потолков — до 5,5 м, перекрытия — ж/б.

Отдельные входные группы с фасада с 1-ой линии, есть входы со двора.
Все городские инженерные коммуникации. Возможны вытяжные воздуховоды до уровня кровли.
Энергообеспечение достаточное количество под любой вид деятельности.

Арендная плата в месяц: коммунальные платежи и электричество оплачиваются арендатором отдельно
Срок аренды: долгосрочный договор

Исторический и деловой центр. Помещения расположены в 5 минутах от Кремля — в самом центре столицы на улице Мясницкая. Узнаваемый объект XIX века — Торговый дом Кузнецова. В непосредственной близости расположены: большое количество исторических достопримечательностей, посольств и госучреждений, а также развитая ресторанная инфраструктура.

Нужна консультация по подбору торговых площадей для аренды?

Наши специалисты подберут для вас самые выгодные варианты для долгосрочного инвестирования,
помогут в сопровождении и сделки, проверят все юридические вопросы касаемо приобретения недвижимости.

* Нажимая на кнопку «Отправить», Вы даете согласие на обработку персональных данных в соответствии с Политикой конфиденциальности

Похожие объекты

Павелецкая (1 мин. 🚶)
Москва, Новокузнецкая улица, 43/16с2
Жилое здание "Новокузнецкая улица д. 43/16с2"
Тип: Торговое помещение
Площадь: 70.50 м2
Мощность:17 кВт
800 000 в месяц
136 170 в год за м2
Позвонить Подробнее
Сходненская (15 мин. 🚗)
Москва, Туристская улица, 27к1
Жилое здание "Туристская улица, 27к1"
Тип: Торговое помещение
Площадь: 78.10 м2
Мощность:50 кВт
350 000 в месяц
53 777 в год за м2
Позвонить Подробнее
Братиславская (11 мин. 🚶)
Москва, Краснодонская улица, 50
Жилое здание "Краснодонская улица, 50"
Тип: Торговое помещение
Площадь: 70.90 м2
Мощность:15 кВт
350 000 в месяц
59 238 в год за м2
Позвонить Подробнее
Владыкино (15 мин. 🚶)
Москва, Северо-Восточный административный округ, район Отрадное, жилой комплекс Сигнальный 16, 2.1
ЖК "Сигнальный"
Тип: Торговое помещение
Площадь: 82.00 м2
Мощность:16 кВт
450 000 в месяц
65 854 в год за м2
Позвонить Подробнее
Полежаевская (11 мин. 🚶)
Москва, Улица Зорге, 9
Бизнес-квартал «Зорге 9»
Тип: Торговое помещение
Площадь: 72.80 м2
Мощность:19 кВт
370 952 в месяц
61 146 в год за м2
Позвонить Подробнее
Братиславская (9 мин. 🚶)
Москва, Люблинская улица, 153
ТЦ "Люблю Молл"
Тип: Торговое помещение
Площадь: 82.50 м2
544 500 в месяц
79 200 в год за м2
Позвонить Подробнее
Сокол Сокольники Соколиная Гора (17 мин. 🚶)
Москва, Волоколамское шоссе, 13
Жилое здание "Волоколамское шоссе, 13"
Тип: Торговое помещение
Площадь: 72.40 м2
Мощность:30 кВт
300 000 в месяц
49 724 в год за м2
Позвонить Подробнее
Улица 1905 года (13 мин. 🚶)
Москва, Мантулинская улица, 2
Жилое здание "Мантулинская 2"
Тип: Торговое помещение
Площадь: 73.10 м2
390 000 в месяц
64 022 в год за м2
Позвонить Подробнее
(2 мин. 🚶)
Москва, Рязанский проспект, 10с2
Бизнес-центр «Джоуль»
Тип: Торговое помещение
Площадь: 74.00 м2
Мощность:15 кВт
250 000 в месяц
40 541 в год за м2
Позвонить Подробнее
Партизанская (10 мин. 🚗)
Москва, Измайловский проезд, 5/1к1
Жилое здание "Измайловский пр-д 5/1к1"
Тип: Торговое помещение
Площадь: 82.50 м2
Мощность:30 кВт
260 000 в месяц
37 818 в год за м2
Позвонить Подробнее
Технопарк (10 мин. 🚶)
Москва, проспект Андропова, 11к2
Деловой квартал "ЮПорт"
Тип: Торговое помещение
Площадь: 75.00 м2
218 750 в месяц
35 000 в год за м2
Позвонить Подробнее
Кунцевская (10 мин. 🚶)
Москва, Молдавская улица, 1с8
Бизнес-центр "Upside Кунцево"
Тип: Торговое помещение
Площадь: 71.80 м2
Мощность:5 кВт
491 212 в месяц
82 097 в год за м2
Позвонить Подробнее
Алексеевская
Москва, проспект Мира, 97
Жилое здание "проспект Мира, 97"
Тип: Торговое помещение
Площадь: 7.90 м2
250 000 в месяц
379 747 в год за м2
Позвонить Подробнее
Китай-город (1 мин. 🚶)
Москва, улица Солянка, 2/6с1
Административное здание "Солянка, 2/6с1"
Тип: Торговое помещение
Площадь: 20.10 м2
685 000 в месяц
408 955 в год за м2
Позвонить Подробнее
Смоленская (Филевская) Смоленская (Арбатско-Покровская) (2 мин. 🚶)
Москва, Карманицкий переулок, 9
БЦ Арбат
Тип: Торговое помещение
Площадь: 22.30 м2
680 000 в месяц
365 919 в год за м2
Позвонить Подробнее
Павелецкая (3 мин. 🚶)
Москва, улица Бахрушина, 36/14с3
Административное здание Бахрушина. 36/14с3
Тип: Торговое помещение
Площадь: 28.80 м2
850 000 в месяц
354 167 в год за м2
Позвонить Подробнее
Китай-город (3 мин. 🚶)
Москва, Улица Солянка, 2/6
Особняк «Солянка 2/6»
Тип: Торговое помещение
Площадь: 16.00 м2
560 000 в месяц
420 000 в год за м2
Позвонить Подробнее
Китай-город (3 мин. 🚶)
Москва, Улица Солянка, 2/6
Особняк «Солянка 2/6»
Тип: Торговое помещение
Площадь: 24.30 м2
700 000 в месяц
345 679 в год за м2
Позвонить Подробнее
Лубянка (5 мин. 🚶)
Москва, Мясницкая улица, 11
ЖК "Дом на Мясницкой (Meating House)"
Тип: Торговое помещение
Площадь: 301.00 м2
Мощность:125 кВт
1 700 000 в месяц
67 774 в год за м2
Позвонить Подробнее
Лубянка (4 мин. 🚶)
Москва, Мясницкая улица, 8/2
Офисное здание «Мясницкая 8/2»
Тип: Торговое помещение
Площадь: 203.70 м2
1 800 000 в месяц
106 038 в год за м2
Позвонить Подробнее
Лубянка (4 мин. 🚶)
Москва, Мясницкая улица, 8/2
Офисное здание «Мясницкая 8/2»
Тип: Торговое помещение
Площадь: 53.30 м2
2 000 000 в месяц
450 281 в год за м2
Позвонить Подробнее
Лубянка (4 мин. 🚶)
Москва, Мясницкая улица, 8/2
Офисное здание «Мясницкая 8/2»
Тип: Торговое помещение
Площадь: 960.40 м2
5 300 000 в месяц
66 222 в год за м2
Позвонить Подробнее
Лубянка (4 мин. 🚶)
Москва, Мясницкая улица, 8/2
Офисное здание «Мясницкая 8/2»
Тип: Торговое помещение
Площадь: 90.50 м2
1 500 000 в месяц
198 895 в год за м2
Позвонить Подробнее
Лубянка (4 мин. 🚶)
Москва, Мясницкая улица, 8/2
Офисное здание «Мясницкая 8/2»
Тип: Торговое помещение
Площадь: 75.30 м2
1 350 000 в месяц
215 139 в год за м2
Позвонить Подробнее
Лубянка (2 мин. 🚶)
Москва, Лубянский проезд, 7с1
Особняк «Лубянский 7 с1»
Тип: Торговое помещение
Площадь: 55.00 м2
Мощность:20 кВт
600 000 в месяц
130 909 в год за м2
Позвонить Подробнее