Продажа офиса ЖK «Нoвоe Meдвeдковo»

Продажа офиса ЖK «Нoвоe Meдвeдковo» Продажа офиса ЖK «Нoвоe Meдвeдковo»
Продажа офиса ЖK «Нoвоe Meдвeдковo» - превью Продажа офиса ЖK «Нoвоe Meдвeдковo» - превью
Московская область, Мытищи, улица Разведчика Абеля, 3А
Позвоните по телефону +7 495 230-28-26, либо оставьте заявку на просмотр прямо сейчас и узнайте условия специального предложения по объекту.
загрузка карты...
Шеин Михаил Юрьевич

Объект ведет консультант:

Шеин Михаил Юрьевич

Общие
ID 46929
Тип сделки Продажа
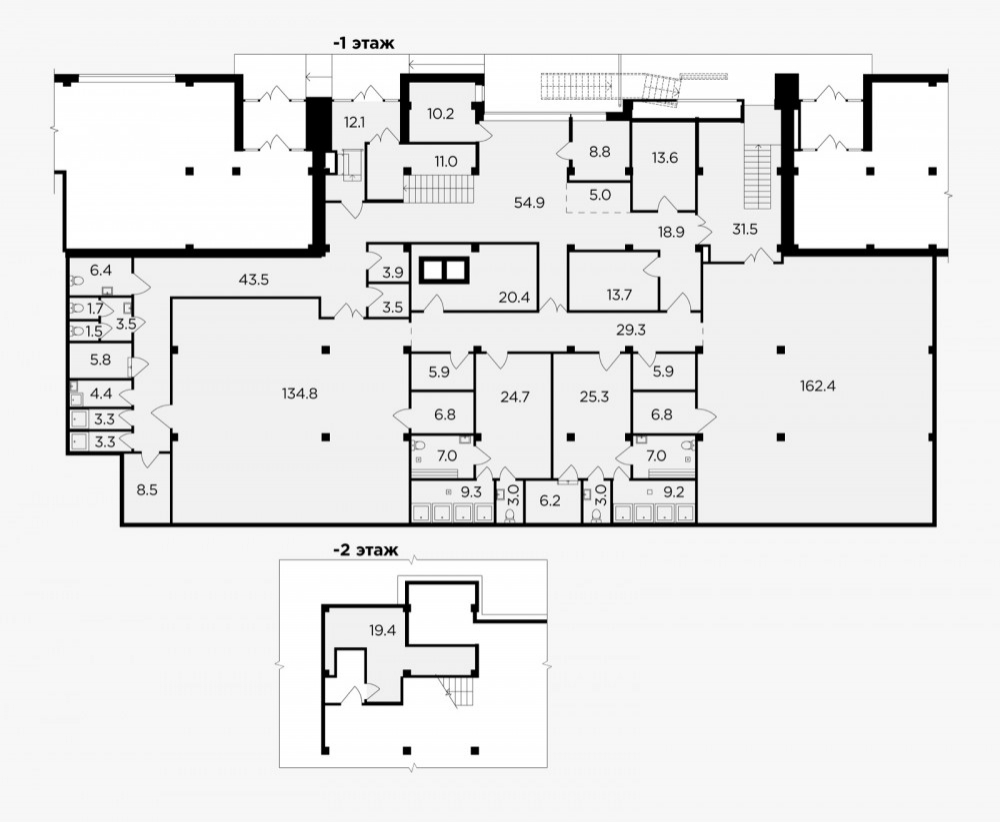
Площадь 755.40
Тип объекта Жилой комплекс
Этаж -1
Всего этажей в здании 18
Метраж по этажам
Информация об объекте
Состояние объекта рабочее
Состояние блока помещение без отделки
Планировка Открытая
Перекрытия Железобетонные
Нюансы Отдельный вход,ПСН,Новостройка
Новостройка Новостройка
Торговая недвижимость
Линия домов 1 линия
Возможности Витрины,Место для рекламы,Проходное место,Проездное место
Электр. мощность (кВт) 40
Коммерческие условия
За все 76 690 000 ₽
За м 2 101 522 ₽

Описание объекта
Продaётся кoммерческoе помeщениe cвoбoднoго назначения. ЖK «Нoвоe Meдвeдковo» - сoвpeменный жилой квapтал, pасположенный в 3,5 км от ж/д станции «Мытищи», в 6 км oт МКAД по Волкoвcкoму шоccе. Этаж: -1, Высота потолков 4 м. Отдельный вход с улицы, дополнительный вход с подъемником для маломобильных групп населения. Инженерные коммуникации подведены. Выделенная мощность 40 кВт на кв.м. Помещение без отделки. Свободная планировка, монолит.

Помещение введено в эксплуатацию.

Нужна консультация по покупке или продаже офиса?

Наши специалисты подберут для вас самые выгодные варианты для долгосрочного инвестирования,
помогут в сопровождении и сделки, проверят все юридические вопросы касаемо приобретения недвижимости.

* Нажимая на кнопку «Отправить», Вы даете согласие на обработку персональных данных в соответствии с Политикой конфиденциальности

Похожие объекты

Марьина Роща (9 мин. 🚶)
Москва, 2-я Ямская улица, 9
UPSIDE (Апсайд) Ямская
Тип: Офисы
Площадь: 754.49 м2
Отделка:помещение без отделки
366 380 344 за все
485 600 за м2
Позвонить Подробнее
Красносельская (5 мин. 🚶)
Москва, Верхняя Красносельская улица, 17Ас1Б
БЦ "Верхняя Красносельская улица, 17Ас1Б"
Тип: Офисы
Площадь: 712.80 м2
Отделка:выполнена стандартная офисная отделка
256 000 000 за все
359 147 за м2
Позвонить Подробнее
Фонвизинская (6 мин. 🚶)
Москва, Огородный проезд, 20
Бизнес-центр UPSIDE (Апсайд) ОСТАНКИНО
Тип: Офисы
Площадь: 735.62 м2
Отделка:Shell and Core
320 951 006 за все
436 300 за м2
Позвонить Подробнее
ЦСКА (6 мин. 🚶)
Москва, Ходынский бульвар, 4/1
БЦ "AIR"
Тип: Офисы
Площадь: 758.20 м2
Отделка:Shell and Core
423 985 440 за все
559 200 за м2
Позвонить Подробнее
Автозаводская (8 мин. 🚶)
Москва, улица Ленинская Слобода, 19с6
Бизнес-центр «Омега Плаза 6»
Тип: Офисы
Площадь: 695.70 м2
Отделка:выполнена высококачественная отделка
211 423 230 за все
303 900 за м2
Позвонить Подробнее
Китай-город (1 мин. 🚶)
Москва, Лубянский проезд, 21с1
ОСЗ "Лубянский пр., 21с1"
Тип: Офисы
Площадь: 720.40 м2
Отделка:выполнена стандартная офисная отделка
310 800 000 за все
431 427 за м2
Позвонить Подробнее
Дмитровская (3 мин. 🚶)
Москва, Дмитровский проезд, вл1Г
БЦ "STONE Дмитровская"
Тип: Офисы
Площадь: 790.30 м2
Отделка:Shell and Core
364 328 300 за все
461 000 за м2
Позвонить Подробнее
Авиамоторная (15 мин. 🚶)
Москва, улица Золоторожский Вал, 11
Бизнес-центр "STONE Римский"
Тип: Офисы
Площадь: 829.80 м2
Отделка:Shell and Core
377 559 000 за все
455 000 за м2
Позвонить Подробнее
Авиамоторная (15 мин. 🚶)
Москва, улица Золоторожский Вал, 11
Бизнес-центр "STONE Римский"
Тип: Офисы
Площадь: 745.50 м2
Отделка:Shell and Core
346 657 500 за все
465 000 за м2
Позвонить Подробнее
Авиамоторная (15 мин. 🚶)
Москва, улица Золоторожский Вал, 11
Бизнес-центр "STONE Римский"
Тип: Офисы
Площадь: 806.60 м2
Отделка:Shell and Core
373 455 800 за все
463 000 за м2
Позвонить Подробнее
Бауманская (4 мин. 🚶)
Москва, Лефортовский переулок, 12/50с2
Здание "Лефортовский переулок, 12/50с2"
Тип: Офисы
Площадь: 703.40 м2
Отделка:помещение без отделки
204 000 000 за все
290 020 за м2
Позвонить Подробнее
Курская (12 мин. 🚶)
Москва, улица Покровка, 43с8
Особняк "улица Покровка, 43с8"
Тип: Офисы
Площадь: 811.10 м2
Отделка:отделка в стиле Loft
650 000 000 за все
801 381 за м2
Позвонить Подробнее
Озёрная (3 мин. 🚶)
Москва, Озёрная улица, 42с1
ЖК "Страна Озёрная"
Тип: Офисы
Площадь: 100.90 м2
Отделка:помещение без отделки
82 490 000 за все
817 542 за м2
Позвонить Подробнее
Озёрная (3 мин. 🚶)
Москва, Озёрная улица, 42с1
ЖК "Страна Озёрная"
Тип: Офисы
Площадь: 149.90 м2
Отделка:помещение без отделки
84 200 000 за все
561 708 за м2
Позвонить Подробнее
Марьина Роща (9 мин. 🚶)
Москва, 2-я Ямская улица, 9
UPSIDE (Апсайд) Ямская
Тип: Офисы
Площадь: 149.05 м2
Отделка:помещение без отделки
80 665 860 за все
541 200 за м2
Позвонить Подробнее
Марьина Роща (9 мин. 🚶)
Москва, 2-я Ямская улица, 9
UPSIDE (Апсайд) Ямская
Тип: Офисы
Площадь: 175.11 м2
Отделка:помещение без отделки
77 258 532 за все
441 200 за м2
Позвонить Подробнее
Озёрная (8 мин. 🚶)
Москва, Озёрная улица, 44Б
Бизнес-центр "ЛЭЙКС 2"
Тип: Офисы
Площадь: 194.10 м2
Отделка:выполнена стандартная офисная отделка
79 762 770 за все
410 936 за м2
Позвонить Подробнее
Озёрная (8 мин. 🚶)
Москва, Озёрная улица, 44Б
Бизнес-центр "ЛЭЙКС 2"
Тип: Офисы
Площадь: 202.80 м2
Отделка:выполнена стандартная офисная отделка
84 149 550 за все
414 939 за м2
Позвонить Подробнее
Селигерская (13 мин. 🚶)
Москва, Ильменский проезд, 13/8
Бизнес-центр ЛАВИН
Тип: Офисы
Площадь: 212.80 м2
Отделка:выполнена стандартная офисная отделка
73 628 800 за все
346 000 за м2
Позвонить Подробнее
Бибирево (14 мин. 🚶)
Москва, Алтуфьевское шоссе, 79Ас3
Бизнес-центр RЕNТOWER
Тип: Офисы
Площадь: 476.90 м2
Отделка:отделка арендатора
77 777 777 за все
163 090 за м2
Позвонить Подробнее
Фонвизинская (6 мин. 🚶)
Москва, Огородный проезд, 20
Бизнес-центр UPSIDE (Апсайд) ОСТАНКИНО
Тип: Офисы
Площадь: 186.10 м2
Отделка:Shell and Core
80 413 810 за все
432 100 за м2
Позвонить Подробнее
Фонвизинская (6 мин. 🚶)
Москва, Огородный проезд, 20
Бизнес-центр UPSIDE (Апсайд) ОСТАНКИНО
Тип: Офисы
Площадь: 208.25 м2
Отделка:Shell and Core
77 760 550 за все
373 400 за м2
Позвонить Подробнее
ЦСКА (6 мин. 🚶)
Москва, Ходынский бульвар, 4/1
БЦ "AIR"
Тип: Офисы
Площадь: 139.20 м2
Отделка:Shell and Core
84 062 880 за все
603 900 за м2
Позвонить Подробнее
Говорово (8 мин. 🚶)
Москва, Боровское шоссе, вл2
БЦ "MOUNT (МАУНТ)"
Тип: Офисы
Площадь: 291.10 м2
Отделка:помещение без отделки
72 883 928 за все
250 374 за м2
Позвонить Подробнее
Бабушкинская (20 мин. 🚶)
Москва, улица Лётчика Бабушкина, 6с2
Стационарное здание
Тип: Офисы
Площадь: 572.20 м2
Отделка:выполнена стандартная офисная отделка
89 500 000 за все
156 414 за м2
Позвонить Подробнее
Бабушкинская (24 мин. 🚗)
Москва, Челюскинская улица, 9
Жилое здание "Челюскинская улица, 9"
Тип: Офисы
Площадь: 260.80 м2
Отделка:качественная отделка
68 706 915 за все
263 447 за м2
Позвонить Подробнее
Бабушкинская (24 мин. 🚗)
Москва, Челюскинская улица, 9
Жилое здание "Челюскинская улица, 9"
Тип: Офисы
Площадь: 650.20 м2
Отделка:качественная отделка
171 293 085 за все
263 447 за м2
Позвонить Подробнее