Арендный бизнес Жилой дом " Мурановская ул, 7"

Объект успешно реализован!
Арендный бизнес Жилой дом Арендный бизнес Жилой дом Арендный бизнес Жилой дом
Арендный бизнес Жилой дом Арендный бизнес Жилой дом Арендный бизнес Жилой дом
Округ: СВАО
Тип: Арендный бизнес, Торговое помещение
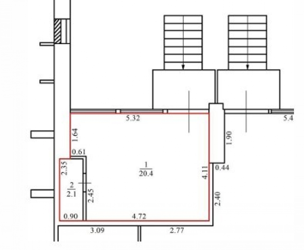
Площадь: 22.50 м2 Метро: Алтуфьево (17 мин. 🚶)
Москва, Мурановская улица, 7
Объект успешно реализован, но у нас есть много других интересных предложений. Позвоните по телефону +7 495 230-28-26, либо оставьте заявку на подбор прямо сейчас и получите список подходящих для вас объектов.
загрузка карты...
Капина Владлена Викторовна

Объект ведет консультант:

Капина Владлена Викторовна

Общие
ID 46953
Тип сделки Продажа
Площадь 22.50
Площадь всего 2577.00
Тип объекта Жилое здание
Этаж 1
Всего этажей в здании 12
Метраж по этажам
Информация об объекте
Состояние объекта рабочее
Состояние блока отделка арендатора
Планировка Открытая
Перекрытия Железобетонные
Нюансы Отдельный вход
Торговая недвижимость
Линия домов 1 линия
Возможности Зона разгрузки,Витрины,Место для рекламы,Проходное место,Проездное место
Электр. мощность (кВт) 10
Коммерческие условия
За все 13 200 000 ₽
За м 2 586 667 ₽
Тип собственника Юридическое лицо
Арендный бизнес
Окупаемость 9 Лет
По первому месяцу 11 Лет
Доходность 11.11 %
По первому месяцу 9.09 %
Ставка аренды 100 000 ₽ в мес
Арендная ставка за кв\м в год 53 333 ₽
Эксплуатация включена
Арендатор Пивной магазин "Свежо и точка"
Индексация 5 %

Описание объекта
Hа продажу предлагается ГАБ с арендатором– пивной магазин «СВЕЖОИ ТОЧКА».
Отдельный вход с первой линии ул. Мурановская, большое витринное окно, отдельные коммуникации.
Торговое окружение: КиБ, Аптека, Пятерочка, ВкусВилл.

Арендная ставка: 100 000 руб.
ГАП: 1 200 000 руб в год
ДА: на 11 мес. от 02.07.2025
Индексация:  до 5%, безусловная

Нужна консультация по подбору арендного бизнеса?

Наши специалисты подберут для вас самые выгодные варианты для долгосрочного инвестирования,
помогут в сопровождении и сделки, проверят все юридические вопросы касаемо приобретения недвижимости.

* Нажимая на кнопку «Отправить», Вы даете согласие на обработку персональных данных в соответствии с Политикой конфиденциальности

Похожие объекты

Доходность 12.77 %

Марьина Роща (3 мин. 🚶)
Москва, улица Сущёвский Вал, 53
Административный Центр на 1й линии ТТК
Тип: Арендный бизнес, Торговое помещение
Площадь: 23.00 м2
Мощность:12 кВт
Арендатор: Табак BlackTab
Месячный платеж: 418 000
55 176 000 за все
2 398 957 за м2
Позвонить Подробнее

Доходность 11.76 %

Тёплый стан (4 мин. 🚶)
Москва, Профсоюзная улица, 152к1
Административное «Профсоюзная 152 к2»
Тип: Арендный бизнес, Торговое помещение
Площадь: 23.30 м2
Мощность:10 кВт
Арендатор: ТабакВэйп
Месячный платеж: 230 000
30 360 000 за все
1 303 004 за м2
Позвонить Подробнее

Доходность 11.32 %

Электрозаводская (12 мин. 🚶)
Москва, Переведеновский переулок, 13с18
МФК Центр Союз
Тип: Арендный бизнес, Офисы
Площадь: 22.20 м2
Отделка:отделка арендатора
Арендатор: Шоу рум премиальных аксессуаров
Месячный платеж: 72 320
11 322 000 за все
510 000 за м2
Позвонить Подробнее

Доходность 6.98 %

Партизанская (8 мин. 🚶)
Москва, Окружной проезд, 16
Окружной проезд, 16
Тип: Арендный бизнес, Торговое помещение
Площадь: 21.50 м2
Арендатор: сеть кофеен ДАБЛБИ
Месячный платеж: 105 000
18 000 000 за все
837 209 за м2
Позвонить Подробнее

Доходность 9.09 %

Полянка (3 мин. 🚶)
Москва, 1-й Хвостов переулок, 3Ас2
1-й Хвостов переулок, 3Ас2
Тип: Арендный бизнес, Торговое помещение
Площадь: 20.00 м2
Мощность:5 кВт
Арендатор: Салон коррекции бровей
Месячный платеж: 100 000
17 000 000 за все
850 000 за м2
Позвонить Подробнее

Доходность 9.60 %

Полянка (3 мин. 🚶)
Москва, 1-й Хвостов переулок, 3Ас2
1-й Хвостов переулок, 3Ас2
Тип: Арендный бизнес, Торговое помещение
Площадь: 24.00 м2
Мощность:5 кВт
Арендатор: Студия
Месячный платеж: 120 000
18 960 000 за все
790 000 за м2
Позвонить Подробнее

Доходность 10.17 %

Деловой центр Деловой центр (МЦК) (7 мин. 🚶)
Москва, Пресненская набережная, 12
Москва-Сити «Башня Федерация»
Тип: Арендный бизнес, Торговое помещение
Площадь: 21.50 м2
Мощность:30 кВт
Арендатор: MYST (ателье / ремонт)
Месячный платеж: 175 560
25 900 000 за все
1 204 651 за м2
Позвонить Подробнее

Доходность 8.70 %

Планерная (5 мин. 🚶)
Москва, Планерная улица, 12к1
Жилое здание "Планерная 12к1"
Тип: Арендный бизнес, Торговое помещение
Площадь: 20.80 м2
Арендатор: Теле2
Месячный платеж: 350 000
48 300 000 за все
2 322 115 за м2
Позвонить Подробнее

Доходность 9.52 %

Академическая (7 мин. 🚶)
Москва, улица Дмитрия Ульянова, 10/1к1
Жилое здание "улица Дмитрия Ульянова, 10/1к1"
Тип: Арендный бизнес, Торговое помещение
Площадь: 20.50 м2
Арендатор: SEAFOOD
Месячный платеж: 190 000
23 940 000 за все
1 167 805 за м2
Позвонить Подробнее

Доходность 9.52 %

Рязанский проспект (1 мин. 🚶)
Москва, 1-я Новокузьминская улица, 21к2
Жилое здание "1-я Новокузьминская ул. д.21 корп.2"
Тип: Арендный бизнес, Торговое помещение
Площадь: 24.20 м2
Арендатор: магазин белорусских продуктов «ДАРЫ ВКУСА»
Месячный платеж: 300 000
37 800 000 за все
1 561 983 за м2
Позвонить Подробнее

Доходность 9.52 %

Академическая (7 мин. 🚶)
Москва, улица Дмитрия Ульянова, 10/1к1
Жилое здание "улица Дмитрия Ульянова, 10/1к1"
Тип: Арендный бизнес, Торговое помещение
Площадь: 19.90 м2
Арендатор: МИЛТИ сеть магазинов готовой еды
Месячный платеж: 180 000
22 680 000 за все
1 139 698 за м2
Позвонить Подробнее

Доходность 10.00 %

Рязанский проспект (1 мин. 🚶)
Москва, 1-я Новокузьминская улица, 21к2
Жилое здание "1-я Новокузьминская ул. д.21 корп.2"
Тип: Арендный бизнес, Торговое помещение
Площадь: 24.10 м2
Арендатор: Сеть ломбардов «Залог Успеха»
Месячный платеж: 250 000
30 000 000 за все
1 244 813 за м2
Позвонить Подробнее

Доходность 14.81 %

Электрозаводская (12 мин. 🚶)
Москва, Переведеновский переулок, 13с18
МФК Центр Союз
Тип: Арендный бизнес, Офисы
Площадь: 32.80 м2
Отделка:отделка арендатора
Арендатор: Фотостудия
Месячный платеж: 158 950
12 792 000 за все
390 000 за м2
Позвонить Подробнее

Доходность 12.63 %

Проспект Вернадского (14 мин. 🚶)
Москва, улица Марии Ульяновой, 17к3
Жилое здание "Марии Ульяновой, 17к3"
Тип: Арендный бизнес, Торговое помещение
Площадь: 67.40 м2
Мощность:15 кВт
Арендатор: Служба такси
Месячный платеж: 100 000
12 000 000 за все
178 042 за м2
Позвонить Подробнее

Доходность 11.76 %

Ростокино (15 мин. 🚶)
Москва, улица Бажова, 4
Жилой дом "Бажова 4"
Тип: Арендный бизнес, Торговое помещение
Площадь: 24.60 м2
Мощность:15 кВт
Арендатор: Кафе «МАДО»
Месячный платеж: 100 000
13 200 000 за все
536 585 за м2
Позвонить Подробнее

Доходность 9.92 %

Полянка (3 мин. 🚶)
Москва, 1-й Хвостов переулок, 3Ас2
1-й Хвостов переулок, 3Ас2
Тип: Арендный бизнес, Торговое помещение
Площадь: 16.90 м2
Мощность:5 кВт
Арендатор: Кабинет мануального терапевта
Месячный платеж: 95 000
14 365 000 за все
850 000 за м2
Позвонить Подробнее

Доходность 10.08 %

Бульвар Рокоссовского (13 мин. 🚶)
Москва, Ивантеевская улица, 4к1
Жилой дом "Ивантеевская 4к1"
Тип: Арендный бизнес, Торговое помещение
Площадь: 33.00 м2
Арендатор: ПВЗ Озон
Месячный платеж: 110 000
13 000 000 за все
393 939 за м2
Позвонить Подробнее

Доходность 10.91 %

Новокосино (25 мин. 🚗)
Московская область, Балашиха, микрорайон Кучино, улица Соловьёва, 2
Встроено-пристроенное здание "Соловьёва 2"
Тип: Арендный бизнес, Торговое помещение
Площадь: 25.00 м2
Мощность:7 кВт
Арендатор: Табак
Месячный платеж: 95 000
14 000 000 за все
560 000 за м2
Позвонить Подробнее

Спец. предложение

Доходность 18.46 %

Парк Победы (5 мин. 🚶)
Москва, площадь Победы, 1кД
Жилое здание "Площадь Победы 1кД"
Тип: Арендный бизнес, Торговое помещение
Площадь: 109.80 м2
Мощность:16 кВт
Арендатор: Салон красоты, Офис
Месячный платеж: 220 000
14 200 000 за все
129 326 за м2
Позвонить Подробнее

Доходность 13.95 %

Алтуфьево (10 мин. 🚗)
Закрытая продажа #61257
Тип: Арендный бизнес, Торговое помещение
Площадь: 455.00 м2
Мощность:32 кВт
Арендатор: Школа акробатики +4, СДЕК
Месячный платеж: 780 000
67 000 000 за все
147 253 за м2
Позвонить Подробнее

Доходность 10.17 %

Алтуфьево (15 мин. 🚶)
Москва, Абрамцевская улица, 9к1
Встроено-пристроенное здание "Абрамцевская 9к1"
Тип: Арендный бизнес, Торговое помещение
Площадь: 103.30 м2
Мощность:25 кВт
Арендатор: ПВЗ Озон, Вайлдберриз, Аптека Апрель
Месячный платеж: 270 000
38 000 000 за все
367 861 за м2
Позвонить Подробнее

Доходность 9.68 %

Алтуфьево (18 мин. 🚶)
Закрытая продажа #61255
Тип: Арендный бизнес, Офисы
Площадь: 2393.70 м2
Отделка:отделка арендатора
Арендатор: Светофор
Месячный платеж: 2 100 000
260 000 000 за все
108 618 за м2
Позвонить Подробнее