Продажа торгового помещения БЦ "STONE Ходынка 1"

Объект успешно реализован!
Продажа торгового помещения БЦ Продажа торгового помещения БЦ
Продажа торгового помещения БЦ Продажа торгового помещения БЦ
Москва, Ходынский бульвар, 6с2
Объект успешно реализован, но у нас есть много других интересных предложений. Позвоните по телефону +7 495 230-28-26, либо оставьте заявку на подбор прямо сейчас и получите список подходящих для вас объектов.
загрузка карты...
Общие
ID 57578
Тип сделки Продажа
Площадь 268.90
Площадь всего 89000.00
Тип объекта Бизнес-центр
Класс здания A
Этаж 1
Всего этажей в здании 23
Метраж по этажам
Информация об объекте
Состояние объекта новое строительство
Состояние блока Shell and Core
Планировка Открытая
Коммуникации Система пожаротушения,Система видеонаблюдения,Бесперебойное питание,Интернет,Телефония
Перекрытия Железобетонные
Отопление Центральное
Вентиляция и кондиционирование Система приточно-вытяжной вентиляции
КПП Гостевой пропуск
Нюансы Новостройка
Торговая недвижимость
Линия домов 1 линия
Возможности Витрины,Место для рекламы,Проходное место,Проездное место
Коммерческие условия
За все 524 355 000 ₽
За м 2 1 950 000 ₽
Тип собственника Юридическое лицо

Описание объекта
Предлагается в продажу помещение под ресторан в премиальном офисном квартале на Ходынке. В Башне h1 в составе квартала STONE Ходынка 1 с выходом в парк.  Квартал расположен в районе Ходынского поля, который граничит с Ленинградским деловым коридором. Статусное бизнес-соседство позволит резидентам комфортно выстраивать деловые связи. Главная отличительная особенность квартала - выход в парк общей площадью 29 га, который станет главным местом для отдыха и общения резидентов. Транспортная доступность: 1 мин. пешком от м. "ЦСКА",  950 м до Ленинградского проспекта. 20 мин без пересадок до "Москва-Сити". 20 мин. от м. "Динамо".

Планировки офисных этажей соответствуют требованиям функционального офиса, что позволит настраивать пространства под потребности своего бизнеса. Окна в пол обеспечат высокий уровень инсоляции и предусматривают возможность естественного проветривания

В премиальном офисном квартале будет создана собственная развитая инфраструктура для удовлетворения потребностей резидентов, основной объем которой будет сосредоточен на первых этажах башен Н1 и Н2. Здесь появятся кафе и рестораны с выходом парк, магазины и столовая, а также просторная бизнес-гостиная и фитнес-студия для поддержания здорового образа жизни резидентов. Сроки: Июль 2024 года — получение разрешения на строительство,  III кв. 2027 года строительная готовность.

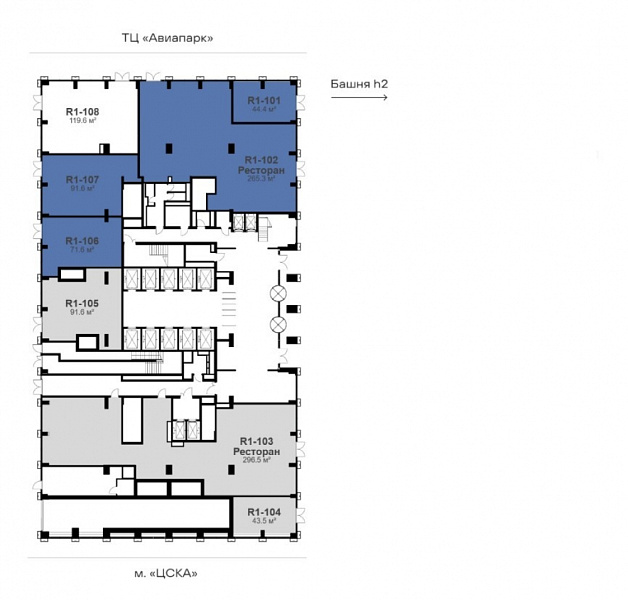
На плане под №R1-102

Нужна консультация покупке или продаже торговых помещений?

Наши специалисты подберут для вас самые выгодные варианты для долгосрочного инвестирования,
помогут в сопровождении и сделки, проверят все юридические вопросы касаемо приобретения недвижимости.

* Нажимая на кнопку «Отправить», Вы даете согласие на обработку персональных данных в соответствии с Политикой конфиденциальности

Похожие объекты

Бутырская (5 мин. 🚶)
Москва, Огородный проезд, 4с1
ЖК "Upside Towers (Апсайд Тауэрс)"
Тип: Торговое помещение
Площадь: 266.28 м2
Мощность:36 кВт
109 184 500 за все
410 036 за м2
Позвонить Подробнее
Бунинская аллея (15 мин. 🚗)
Закрытая продажа #63786
Тип: Торговое помещение
Площадь: 288.80 м2
52 417 200 за все
181 500 за м2
Позвонить Подробнее
Бунинская аллея (15 мин. 🚗)
Закрытая продажа #63785
Тип: Торговое помещение
Площадь: 289.90 м2
52 521 183 за все
181 170 за м2
Позвонить Подробнее
Бунинская аллея (15 мин. 🚗)
Закрытая продажа #63784
Тип: Торговое помещение
Площадь: 283.00 м2
51 613 540 за все
182 380 за м2
Позвонить Подробнее
Бунинская аллея (15 мин. 🚗)
Закрытая продажа #63783
Тип: Торговое помещение
Площадь: 276.50 м2
51 158 030 за все
185 020 за м2
Позвонить Подробнее
Бунинская аллея (15 мин. 🚗)
Закрытая продажа #63782
Тип: Торговое помещение
Площадь: 269.60 м2
51 067 632 за все
189 420 за м2
Позвонить Подробнее
Бунинская аллея (15 мин. 🚗)
Закрытая продажа #63781
Тип: Торговое помещение
Площадь: 275.50 м2
51 882 160 за все
188 320 за м2
Позвонить Подробнее
Бунинская аллея (15 мин. 🚗)
Закрытая продажа #63780
Тип: Торговое помещение
Площадь: 281.50 м2
52 826 290 за все
187 660 за м2
Позвонить Подробнее
Бунинская аллея (15 мин. 🚗)
Закрытая продажа #63777
Тип: Торговое помещение
Площадь: 283.90 м2
68 610 113 за все
241 670 за м2
Позвонить Подробнее
Бунинская аллея (15 мин. 🚗)
Закрытая продажа #63775
Тип: Торговое помещение
Площадь: 283.30 м2
66 408 353 за все
234 410 за м2
Позвонить Подробнее
Бунинская аллея (15 мин. 🚗)
Закрытая продажа #63760
Тип: Торговое помещение
Площадь: 273.80 м2
48 550 216 за все
177 320 за м2
Позвонить Подробнее
Сокол Сокольники Соколиная Гора (3 мин. 🚶)
Москва, Ленинградский проспект, 69с1
Жилое здание "Ленинградский пр-т 69"
Тип: Торговое помещение
Площадь: 250.00 м2
Мощность:100 кВт
57 000 000 за все
228 000 за м2
Позвонить Подробнее
Бутырская (5 мин. 🚶)
Москва, Огородный проезд, 4с1
ЖК "Upside Towers (Апсайд Тауэрс)"
Тип: Торговое помещение
Площадь: 1098.70 м2
Мощность:550 кВт
510 000 000 за все
464 185 за м2
Позвонить Подробнее
Парк Победы (9 мин. 🚶)
Закрытая продажа #63483
Тип: Торговое помещение
Площадь: 604.40 м2
Мощность:65 кВт
483 520 000 за все
800 000 за м2
Позвонить Подробнее
Арбатская (Филевская) Арбатская (Арбатско-Покровская) (7 мин. 🚶)
Москва, Большая Никитская улица, 12с1
Офисное здание «Большая Никитская 12»
Тип: Торговое помещение
Площадь: 248.90 м2
485 000 000 за все
1 948 574 за м2
Позвонить Подробнее
Кунцевская (10 мин. 🚶)
Москва, улица Вересаева, 6
Жилое здание "улица Вересаева, 6"
Тип: Торговое помещение
Площадь: 3180.00 м2
Мощность:150 кВт
508 800 000 за все
160 000 за м2
Позвонить Подробнее
Ленинский проспект (4 мин. 🚶)
Москва, улица Вавилова, вл11
БЦ STONE Ленинский
Тип: Торговое помещение
Площадь: 931.70 м2
Мощность:20 кВт
549 703 000 за все
590 000 за м2
Позвонить Подробнее
Лубянка (4 мин. 🚶)
Закрытая продажа #62870
Тип: Торговое помещение
Площадь: 534.40 м2
540 000 000 за все
1 010 479 за м2
Позвонить Подробнее
Цветной бульвар (3 мин. 🚶)
Закрытая продажа #62871
Тип: Торговое помещение
Площадь: 950.00 м2
550 000 000 за все
578 947 за м2
Позвонить Подробнее
Смоленская (Филевская) Смоленская (Арбатско-Покровская) (8 мин. 🚶)
Москва, Смоленская-Сенная площадь, 27с1
Жилое здание «Смоленская-Сенная 27 с1»
Тип: Торговое помещение
Площадь: 545.70 м2
Мощность:100 кВт
556 000 000 за все
1 018 875 за м2
Позвонить Подробнее
Лермонтовский проспект (12 мин. 🚶)
Москва, Привольная улица, 8
Торгово - офисный центр "Привольная улица, 8"
Тип: Торговое помещение
Площадь: 6124.50 м2
Мощность:690 кВт
550 000 000 за все
89 803 за м2
Позвонить Подробнее