Аренда торгового помещения Жилой дом "Новочерёмушкинская 27"

Объект успешно реализован!
Аренда торгового помещения Жилой дом Аренда торгового помещения Жилой дом Аренда торгового помещения Жилой дом
Аренда торгового помещения Жилой дом Аренда торгового помещения Жилой дом Аренда торгового помещения Жилой дом
Москва, Новочерёмушкинская улица, 27
Объект успешно реализован, но у нас есть много других интересных предложений. Позвоните по телефону +7 495 230-28-26, либо оставьте заявку на подбор прямо сейчас и получите список подходящих для вас объектов.
загрузка карты...
Аренда в год за м2 40 329 ₽
Аренда в месяц 490 000 ₽
Схема сделки прямая аренда
Общие
ID 57864
Тип сделки Аренда
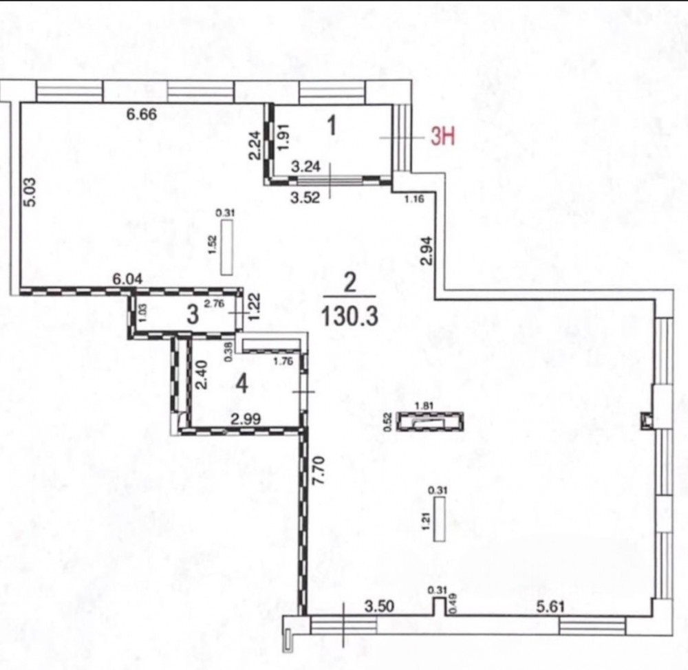
Площадь 145.80
Тип объекта Жилое здание
Этаж 1
Всего этажей в здании 13
Метраж по этажам
Информация об объекте
Состояние объекта рабочее
Состояние блока Shell and Core
Планировка Открытая
Перекрытия Железобетонные
Парковка только городская
Нюансы Отдельный вход,Новостройка
Торговая недвижимость
Линия домов 1 линия
Возможности Витрины,Место для рекламы,Проходное место,Проездное место
Электр. мощность (кВт) 29
Коммерческие условия
Аренда в год за м2 40 329 ₽
Аренда в месяц 490 000 ₽
Схема сделки прямая аренда
Тип собственника Юридическое лицо

Описание объекта
Предлагается в аренду торговое помещение на первом этаже жилого дома в Академическом районе. 15 минут пешком до м. Профсоюзная. Отдельный вход, общая площадь 145,8м2, в бетоне, потолки 4,5м, выделенная мощность 29квт.

Нужна консультация по подбору торговых площадей для аренды?

Наши специалисты подберут для вас самые выгодные варианты для долгосрочного инвестирования,
помогут в сопровождении и сделки, проверят все юридические вопросы касаемо приобретения недвижимости.

* Нажимая на кнопку «Отправить», Вы даете согласие на обработку персональных данных в соответствии с Политикой конфиденциальности

Похожие объекты

Проспект Вернадского (10 мин. 🚶)
Москва, проспект Вернадского, 41
Бизнес-центр «Академик»
Тип: Торговое помещение
Площадь: 158.80 м2
1 588 000 в месяц
120 000 в год за м2
Позвонить Подробнее
Ломоносовский проспект (5 мин. 🚶)
Москва, Мичуринский проспект, 7
ЖК "Шуваловский"
Тип: Торговое помещение
Площадь: 155.00 м2
Мощность:90 кВт
690 000 в месяц
53 419 в год за м2
Позвонить Подробнее
Савёловская (5 мин. 🚶)
Москва, Бумажный проезд, 19с4
БЦ STONE TOWERS
Тип: Торговое помещение
Площадь: 131.40 м2
Мощность:50 кВт
1 066 879 в месяц
97 432 в год за м2
Позвонить Подробнее
Коломенская (1 мин. 🚶)
Москва, проспект Андропова, 23
ТЦ "Коломенский"
Тип: Торговое помещение
Площадь: 140.10 м2
Мощность:15 кВт
700 500 в месяц
60 000 в год за м2
Позвонить Подробнее
Филёвский парк (4 мин. 🚶)
Москва, Кастанаевская улица, 32
Жилое здание "Кастанаевская улица, 32"
Тип: Торговое помещение
Площадь: 132.80 м2
Мощность:26 кВт
680 000 в месяц
61 446 в год за м2
Позвонить Подробнее
Полежаевская (5 мин. 🚶)
Закрытая продажа #62342
Тип: Торговое помещение
Площадь: 133.00 м2
Мощность:20 кВт
380 000 в месяц
34 286 в год за м2
Позвонить Подробнее
Кунцевская (10 мин. 🚶)
Москва, Рублёвское шоссе, 21
Бизнес-центр "Upside Кунцево"
Тип: Торговое помещение
Площадь: 144.90 м2
Мощность:35 кВт
750 659 в месяц
62 166 в год за м2
Позвонить Подробнее
Октябрьское Поле (14 мин. 🚶)
Москва, улица Расплетина, 2
Жилое здание "Расплетина, 2"
Тип: Торговое помещение
Площадь: 134.00 м2
Мощность:50 кВт
299 000 в месяц
26 776 в год за м2
Позвонить Подробнее
Аннино (5 мин. 🚶)
Москва, Варшавское шоссе, 170Г
ТОРГОВЫЙ ЦЕНТР "ЕВРО СИТИ"
Тип: Торговое помещение
Площадь: 150.00 м2
450 000 в месяц
36 000 в год за м2
Позвонить Подробнее
Борисово (6 мин. 🚗)
Москва, улица Борисовские Пруды, 7к2
Жилой дом "Борисовские пруды 7к2"
Тип: Торговое помещение
Площадь: 137.75 м2
Мощность:75 кВт
454 575 в месяц
39 600 в год за м2
Позвонить Подробнее
Киевская (6 мин. 🚶)
Москва, Улица Можайский Вал, 8
Бизнес-центр «Атлантик»
Тип: Торговое помещение
Площадь: 151.60 м2
Мощность:100 кВт
750 000 в месяц
59 367 в год за м2
Позвонить Подробнее
Павелецкая (10 мин. 🚶)
Москва, Летниковская улица, 11/10с22
ЖК "HIGH LIFE&OPUS"
Тип: Торговое помещение
Площадь: 138.50 м2
Мощность:50 кВт
850 000 в месяц
73 646 в год за м2
Позвонить Подробнее
Сокол Сокольники Соколиная Гора (7 мин. 🚶)
Москва, Ленинградский проспект, 72к1
Бизнес-центр «Алкон»
Тип: Торговое помещение
Площадь: 204.00 м2
Мощность:80 кВт
725 900 в месяц
42 700 в год за м2
Позвонить Подробнее
Коломенская (11 мин. 🚶)
Москва, Проспект Андропова, 48
Административное здание «проспект Андропова 48»
Тип: Торговое помещение
Площадь: 220.00 м2
Мощность:60 кВт
700 000 в месяц
38 182 в год за м2
Позвонить Подробнее
Царицыно (10 мин. 🚗)
Москва, 6-я Радиальная улица, 7/1к2
Жилое здание "6-я Радиальная 7/1к2"
Тип: Торговое помещение
Площадь: 72.00 м2
Мощность:30 кВт
220 000 в месяц
36 667 в год за м2
Позвонить Подробнее
Авиамоторная (13 мин. 🚶)
Москва, Проезд Завода Серп и Молот, 10
Бизнес-центр «Интеграл»
Тип: Торговое помещение
Площадь: 407.90 м2
1 244 095 в месяц
36 600 в год за м2
Позвонить Подробнее
Китай-город (7 мин. 🚶)
Москва, Подкопаевский переулок, 4с3
Бизнес-центр "Ивановская горка" с3
Тип: Торговое помещение
Площадь: 110.50 м2
Мощность:15 кВт
363 729 в месяц
39 500 в год за м2
Позвонить Подробнее
Тушинская (4 мин. 🚶)
Москва, Тушинская улица, 16с4
ОСЗ "Тушинская улица, 16с4"
Тип: Торговое помещение
Площадь: 232.00 м2
Мощность:100 кВт
750 000 в месяц
38 793 в год за м2
Позвонить Подробнее
Юго-Западная (3 мин. 🚶)
Москва, проспект Вернадского, 80
ЖК Full House
Тип: Торговое помещение
Площадь: 600.00 м2
Мощность:150 кВт
2 160 000 в месяц
43 200 в год за м2
Позвонить Подробнее
Алексеевская (12 мин. 🚶)
Москва, проспект Мира, 102с12
БЦ "Парк Мира"
Тип: Торговое помещение
Площадь: 170.00 м2
Мощность:150 кВт
550 000 в месяц
38 824 в год за м2
Позвонить Подробнее
ЦСКА (5 мин. 🚶)
Москва, Улица Авиаконструктора Микояна, 12
Бизнес-центр «Линкор»
Тип: Торговое помещение
Площадь: 601.08 м2
2 016 623 в месяц
40 260 в год за м2
Позвонить Подробнее
Авиамоторная (13 мин. 🚶)
Москва, Проезд Завода Серп и Молот, 10
Бизнес-центр «Интеграл»
Тип: Торговое помещение
Площадь: 770.70 м2
2 350 635 в месяц
36 600 в год за м2
Позвонить Подробнее
Ховрино (15 мин. 🚗)
Москва, Лобненская улица, 14
ТЦ "Зодиак"
Тип: Торговое помещение
Площадь: 98.40 м2
Мощность:50 кВт
344 400 в месяц
42 000 в год за м2
Позвонить Подробнее
Маяковская (4 мин. 🚶)
Москва, Оружейный переулок, 13с1
Административное здание "Оружейный переулок, 13с1"
Тип: Торговое помещение
Площадь: 629.00 м2
Мощность:30 кВт
2 097 000 в месяц
40 006 в год за м2
Позвонить Подробнее
Профсоюзная (4 мин. 🚶)
Москва, Нахимовский проспект, 51
Бизнес-центр TREND LINE
Тип: Торговое помещение
Площадь: 1478.00 м2
Мощность:40 кВт
5 912 000 в месяц
48 000 в год за м2
Позвонить Подробнее

Спец. предложение

Профсоюзная (2 мин. 🚶)
Москва, Нахимовский проспект, 46
Жилое здание "Нахимовский проспект, 46"
Тип: Торговое помещение
Площадь: 16.00 м2
Мощность:15 кВт
185 000 в месяц
138 750 в год за м2
Позвонить Подробнее