Аренда офиса Особняк «Спартаковская 21»

Аренда офиса Особняк «Спартаковская 21»
Москва, Спартаковская улица, 21
Позвоните по телефону +7 495 230-28-26, либо оставьте заявку на просмотр прямо сейчас и узнайте условия специального предложения по объекту.
загрузка карты...
Аренда в год за м2 25 899 ₽
Аренда в месяц 450 000 ₽
Схема сделки прямая аренда
Первушина Марина Алексеевна

Объект ведет консультант:

Первушина Марина Алексеевна

Общие
ID 58158
Тип сделки Аренда
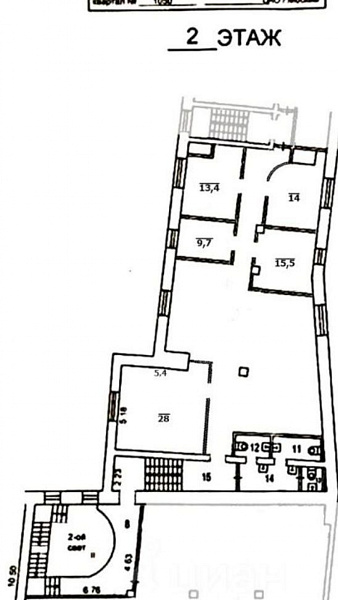
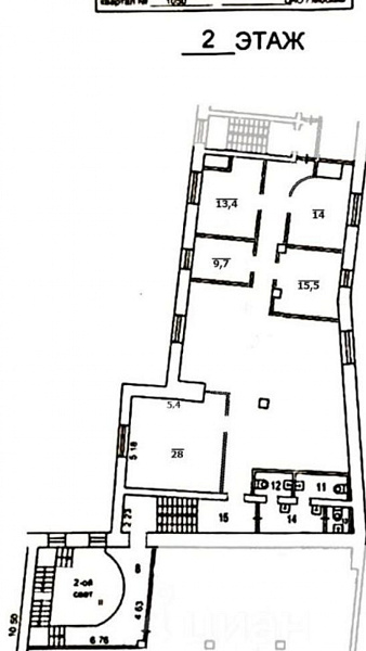
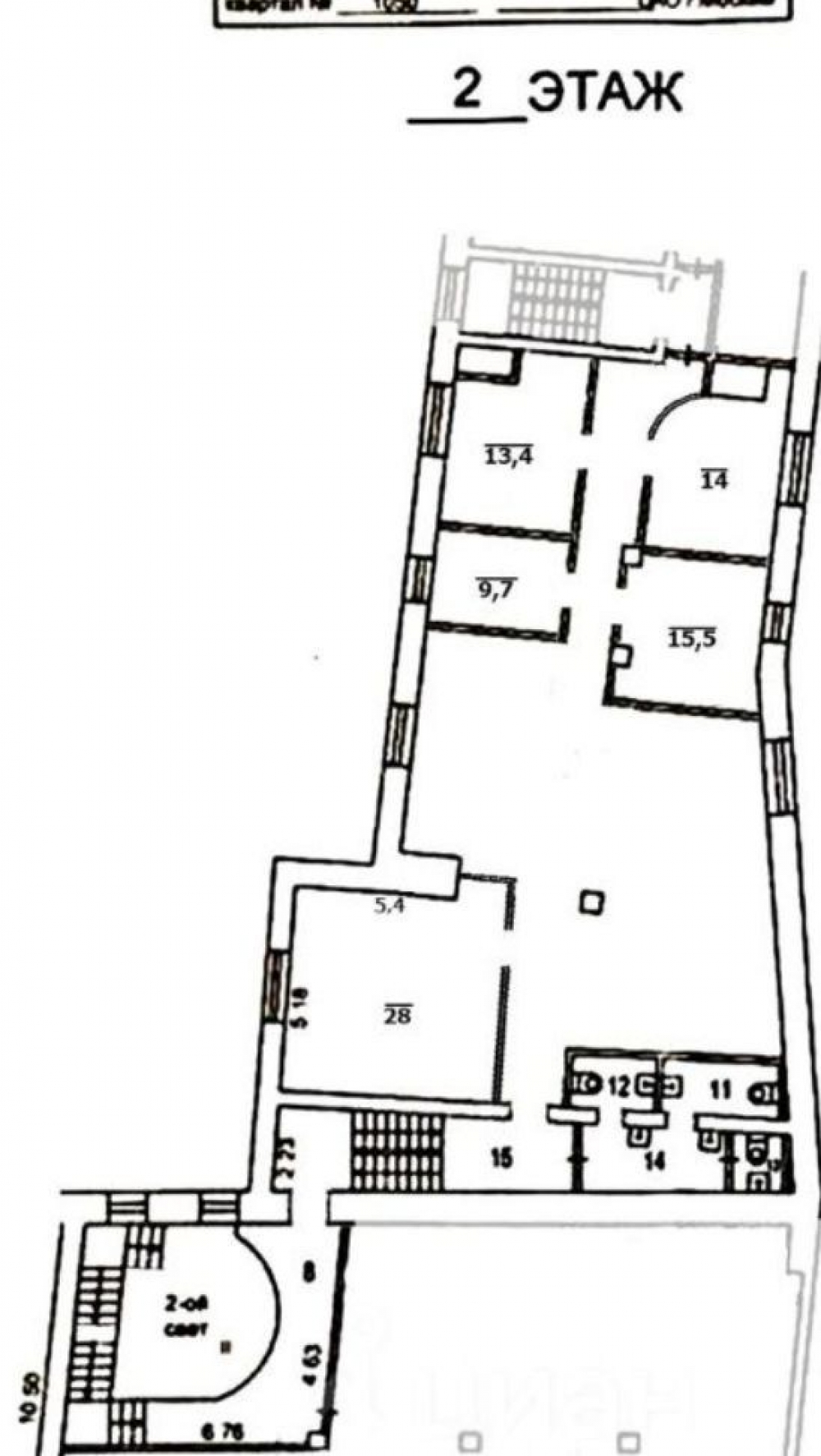
Площадь 208.50
Площадь всего 1394.00
Тип объекта Особняк
Класс здания B
Этаж 2
Всего этажей в здании 3
Метраж по этажам
Информация об объекте
Состояние блока выполнена стандартная офисная отделка
Планировка Смешанная
Коммуникации Система пожаротушения,Система видеонаблюдения,Интернет,Телефония
Парковка наземная 10000р/мес
КПП Гостевой пропуск
Торговая недвижимость
Линия домов 1 линия
Возможности Место для рекламы,Проходное место,Проездное место
Электр. мощность (кВт) 20
Коммерческие условия
Аренда в год за м2 25 899 ₽
Аренда в месяц 450 000 ₽
Схема сделки прямая аренда
Тип собственника Физическое лицо

Описание объекта
Предлагаем в аренду офис в бизнес-центре класса В в паре минут пешком от м.Бауманская.
Офис занимает второй этаж, без лифта, смешанная планировка, свои с/у, отделка за выездом арендатора. В здании приточная вентиляция и центральное кондиционирование.
Офис сдается с мебелью.
В ставку включена эксплуатация.
За дополнительную плату предоставляются места на наземной парковке.
Офис свободен к заезду.

Нужна консультация по подбору помещения под офис?

Наши специалисты подберут для вас самые выгодные варианты для долгосрочного инвестирования,
помогут в сопровождении и сделки, проверят все юридические вопросы касаемо приобретения недвижимости.

* Нажимая на кнопку «Отправить», Вы даете согласие на обработку персональных данных в соответствии с Политикой конфиденциальности

Похожие объекты

Китай-город (7 мин. 🚶)
Москва, Подкопаевский переулок, 4
Бизнес-центр «Ивановская горка»
Тип: Офисы
Площадь: 225.19 м2
Отделка:выполнена высококачественная отделка
1 510 650 в месяц
80 500 в год за м2
Позвонить Подробнее
Китай-город (7 мин. 🚶)
Москва, Подкопаевский переулок, 4
Бизнес-центр «Ивановская горка»
Тип: Офисы
Площадь: 212.00 м2
Отделка:качественная отделка
1 351 500 в месяц
76 500 в год за м2
Позвонить Подробнее
Ленинский проспект (5 мин. 🚶)
Москва, улица Орджоникидзе, 11с40
Бизнес-парк Орджоникидзе 11
Тип: Офисы
Площадь: 222.40 м2
Отделка:выполнена стандартная офисная отделка
648 667 в месяц
35 000 в год за м2
Позвонить Подробнее
Деловой центр Деловой центр (МЦК) (2 мин. 🚶)
Москва, Пресненская набережная, 6с2
Москва-Сити "Башня Империя"
Тип: Офисы
Площадь: 221.00 м2
Отделка:качественная отделка
1 200 000 в месяц
65 158 в год за м2
Позвонить Подробнее
Чеховская (10 мин. 🚶)
Москва, Столешников переулок, 14
Бизнес-центр «Столешников 14»
Тип: Офисы
Площадь: 191.00 м2
Отделка:качественная отделка
800 000 в месяц
50 262 в год за м2
Позвонить Подробнее
Деловой центр Деловой центр (МЦК) (2 мин. 🚶)
Москва, Пресненская набережная, 6с2
Москва-Сити "Башня Империя"
Тип: Офисы
Площадь: 196.00 м2
Отделка:Shell and Core
1 100 000 в месяц
67 347 в год за м2
Позвонить Подробнее
Чкаловская (12 мин. 🚶)
Москва, Нижняя Сыромятническая улица, 10с6
Бизнес-центр Центр дизайна Artplay (Артплэй) к6
Тип: Офисы
Площадь: 200.00 м2
Отделка:отделка в стиле Loft
733 333 в месяц
44 000 в год за м2
Позвонить Подробнее
Краснопресненская (7 мин. 🚶)
Москва, Малый Предтеченский переулок, 1/2
Административное здание "Малый Предтеченский пер. 1/2с1"
Тип: Офисы
Площадь: 188.10 м2
Отделка:выполнена стандартная офисная отделка
580 000 в месяц
37 002 в год за м2
Позвонить Подробнее
Профсоюзная (5 мин. 🚶)
Москва, Улица Кржижановского, 14к3
Бизнес-центр «Ферро-Плаза»
Тип: Офисы
Площадь: 228.00 м2
Отделка:выполнена стандартная офисная отделка
760 000 в месяц
40 000 в год за м2
Позвонить Подробнее
Павелецкая (9 мин. 🚶)
Москва, Космодамианская набережная, 52с11
Бизнес-центр «Риверсайд Тауэрс»
Тип: Офисы
Площадь: 211.00 м2
Отделка:выполнена стандартная офисная отделка
1 139 400 в месяц
64 800 в год за м2
Позвонить Подробнее
Рижская (6 мин. 🚶)
Москва, улица Гиляровского, 65с1
БЦ "улица Гиляровского, 65с1"
Тип: Офисы
Площадь: 213.00 м2
Отделка:выполнена стандартная офисная отделка
443 750 в месяц
25 000 в год за м2
Позвонить Подробнее
Белорусская (8 мин. 🚶)
Москва, 3-я улица Ямского Поля, 9
МФК «Art Residence»
Тип: Офисы
Площадь: 190.40 м2
Отделка:Shell and Core
847 600 в месяц
53 420 в год за м2
Позвонить Подробнее
Марьина Роща (12 мин. 🚶)
Москва, Полковая улица, 3
Бизнес-центр «Офис-парк Шереметьевский»
Тип: Офисы
Площадь: 830.00 м2
Отделка:выполнена стандартная офисная отделка
1 798 333 в месяц
26 000 в год за м2
Позвонить Подробнее
Боровское шоссе (17 мин. 🚗)
Москва, Инновационный центр Сколково, улица Нобеля, 5
Бизнес-Центр ТЕХНОПАРК. "Квартал Менделеева"
Тип: Офисы
Площадь: 682.55 м2
Отделка:выполнена стандартная офисная отделка
1 564 177 в месяц
27 500 в год за м2
Позвонить Подробнее
Боровское шоссе (17 мин. 🚗)
Москва, Инновационный центр Сколково, улица Нобеля, 5
Бизнес-Центр ТЕХНОПАРК. "Квартал Менделеева"
Тип: Офисы
Площадь: 404.59 м2
Отделка:выполнена стандартная офисная отделка
927 185 в месяц
27 500 в год за м2
Позвонить Подробнее
Боровское шоссе (17 мин. 🚗)
Москва, Инновационный центр Сколково, улица Нобеля, 1
Бизнес-Центр ТЕХНОПАРК. "Квартал Менделеева"
Тип: Офисы
Площадь: 873.77 м2
Отделка:выполнена стандартная офисная отделка
2 002 390 в месяц
27 500 в год за м2
Позвонить Подробнее
Боровское шоссе (17 мин. 🚗)
Москва, Инновационный центр Сколково, улица Нобеля, 1
Бизнес-Центр ТЕХНОПАРК. "Квартал Менделеева"
Тип: Офисы
Площадь: 1461.00 м2
Отделка:выполнена стандартная офисная отделка
3 348 125 в месяц
27 500 в год за м2
Позвонить Подробнее
Боровское шоссе (17 мин. 🚗)
Москва, Инновационный центр Сколково, улица Нобеля, 1
Бизнес-Центр ТЕХНОПАРК. "Квартал Менделеева"
Тип: Офисы
Площадь: 289.60 м2
Отделка:выполнена стандартная офисная отделка
663 667 в месяц
27 500 в год за м2
Позвонить Подробнее
Боровское шоссе (17 мин. 🚗)
Москва, Инновационный центр Сколково, улица Нобеля, 1
Бизнес-Центр ТЕХНОПАРК. "Квартал Менделеева"
Тип: Офисы
Площадь: 587.23 м2
Отделка:выполнена стандартная офисная отделка
1 345 735 в месяц
27 500 в год за м2
Позвонить Подробнее
Боровское шоссе (17 мин. 🚗)
Москва, Инновационный центр Сколково, улица Нобеля, 1
Бизнес-Центр ТЕХНОПАРК. "Квартал Менделеева"
Тип: Офисы
Площадь: 407.00 м2
Отделка:отделка арендатора
932 708 в месяц
27 500 в год за м2
Позвонить Подробнее
Молодёжная (16 мин. 🚗)
Москва, улица Толбухина, 5к4
Административное здание "улица Толбухина, 5к4"
Тип: Офисы
Площадь: 832.20 м2
Отделка:отделка арендатора
1 900 121 в месяц
27 399 в год за м2
Позвонить Подробнее
Авиамоторная (12 мин. 🚶)
Москва, Улица Золоторожский Вал, 11с22
Бизнес-центр «Золоторожский»
Тип: Офисы
Площадь: 1700.00 м2
Отделка:выполнена стандартная офисная отделка
3 740 000 в месяц
26 400 в год за м2
Позвонить Подробнее
Кожуховская (17 мин. 🚶)
Москва, 2-й Южнопортовый проезд, 20Ас4
Офисно-складской комплекс "Южнопортовый"
Тип: Офисы
Площадь: 440.00 м2
Отделка:выполнена стандартная офисная отделка
990 000 в месяц
27 000 в год за м2
Позвонить Подробнее
Шелепиха (20 мин. 🚶)
Москва, 1-й Магистральный проезд, 11с1
Бизнес-центр «Интерьер»
Тип: Офисы
Площадь: 447.20 м2
Отделка:выполнена стандартная офисная отделка
894 400 в месяц
24 000 в год за м2
Позвонить Подробнее
Бауманская (7 мин. 🚶)
Москва, Бауманская улица, 11с8
Торгово-офисный комлекс"Бауманская улица, 11с8"
Тип: Офисы
Площадь: 522.00 м2
Отделка:отделка в стиле Loft
1 696 500 в месяц
39 000 в год за м2
Позвонить Подробнее
Бауманская (14 мин. 🚶)
Москва, улица Фридриха Энгельса, 46с7
Лофт - квартал "LOFT46"
Тип: Офисы
Площадь: 525.00 м2
Отделка:отделка в стиле Loft
1 575 000 в месяц
36 000 в год за м2
Позвонить Подробнее
Бауманская (14 мин. 🚶)
Москва, улица Фридриха Энгельса, 46с7
Лофт - квартал "LOFT46"
Тип: Офисы
Площадь: 250.00 м2
Отделка:отделка в стиле Loft
700 000 в месяц
33 600 в год за м2
Позвонить Подробнее
Бауманская (5 мин. 🚶)
Москва, Старокирочный переулок, 2
Административное здание "Старокирочный переулок, 2"
Тип: Офисы
Площадь: 705.00 м2
Отделка:отделка в стиле Loft
2 100 000 в месяц
35 745 в год за м2
Позвонить Подробнее
Бауманская (4 мин. 🚶)
Москва, Лефортовский переулок, 12/50с2
Здание "Лефортовский переулок, 12/50с2"
Тип: Офисы
Площадь: 703.40 м2
Отделка:помещение без отделки
1 700 000 в месяц
29 002 в год за м2
Позвонить Подробнее
Бауманская (6 мин. 🚗)
Москва, Улица Радио, 24к1
Бизнес-центр «Яуза Тауэр»
Тип: Офисы
Площадь: 434.00 м2
Отделка:выполнена стандартная офисная отделка
1 085 000 в месяц
30 000 в год за м2
Позвонить Подробнее
Бауманская (15 мин. 🚶)
Москва, Большая Почтовая улица, 39с1
Офисное здание «Большая Почтовая 39 с1»
Тип: Офисы
Площадь: 952.20 м2
2 380 500 в месяц
30 000 в год за м2
Позвонить Подробнее
Бауманская (8 мин. 🚶)
Закрытая продажа #61410
Тип: Офисы
Площадь: 177.00 м2
Отделка:отделка арендатора
516 250 в месяц
35 000 в год за м2
Позвонить Подробнее
Бауманская (5 мин. 🚶)
Москва, Бауманская улица, 11с1
Бизнес-центр «Лофт на Бауманской»
Тип: Офисы
Площадь: 221.00 м2
Отделка:требуется косметический ремонт
1 500 000 в месяц
81 448 в год за м2
Позвонить Подробнее
Бауманская (5 мин. 🚶)
Москва, Бауманская улица, 11с1
Бизнес-центр «Лофт на Бауманской»
Тип: Офисы
Площадь: 381.40 м2
Отделка:выполнена стандартная офисная отделка
1 112 417 в месяц
35 000 в год за м2
Позвонить Подробнее