Продажа торгового помещения ЖК "Событие"

Продажа торгового помещения ЖК Продажа торгового помещения ЖК Продажа торгового помещения ЖК
Продажа торгового помещения ЖК Продажа торгового помещения ЖК Продажа торгового помещения ЖК
Москва, улица Янковского, 1к2
Позвоните по телефону +7 495 230-28-26, либо оставьте заявку на просмотр прямо сейчас и узнайте условия специального предложения по объекту.
загрузка карты...
Первушина Марина Алексеевна

Объект ведет консультант:

Первушина Марина Алексеевна

Общие
ID 58205
Тип сделки Продажа
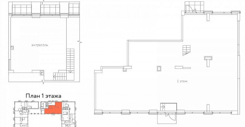
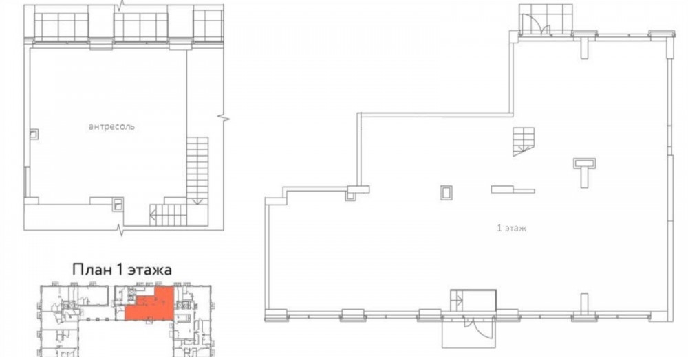
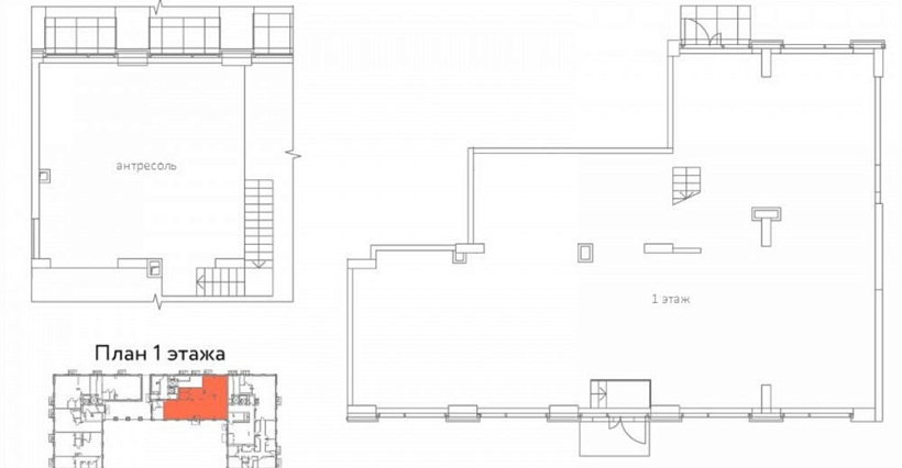
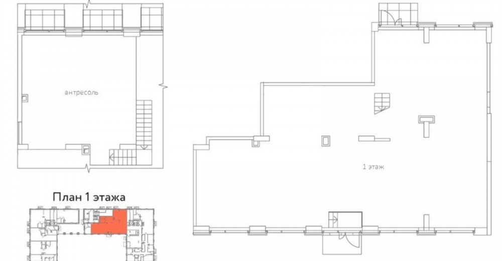
Площадь 266.30
Тип объекта Жилой комплекс
Этаж 1
Всего этажей в здании 25
Метраж по этажам
Информация об объекте
Состояние объекта рабочее
Состояние блока помещение без отделки
Планировка Открытая
Перекрытия Железобетонные
Нюансы Отдельный вход
Торговая недвижимость
Линия домов 1 линия
Возможности Витрины,Место для рекламы,Проходное место,Проездное место
Электр. мощность (кВт) 51
Коммерческие условия
За все 135 000 000 ₽
За м 2 506 947 ₽
Тип собственника Физическое лицо

Описание объекта
Предлагается в продажу помещение формата street-retail в ЖК бизнес-класса Событие. Дом располагается в пешей доступности от м.Аминьевская. 2 отдельных входа. Территория ЖК огорожена. Помещение открытой планировки 208,3м2 + антресоль 58м2. Высокие потолки, до 7 метров!!! Выделенная электрическая мощность 51 кВт. Витриное остекление. Автономная центральная приточно-вытяжная вентиляция на фасад и кондиционирование. ЖК Сдан и активно заселяется.

Нужна консультация покупке или продаже торговых помещений?

Наши специалисты подберут для вас самые выгодные варианты для долгосрочного инвестирования,
помогут в сопровождении и сделки, проверят все юридические вопросы касаемо приобретения недвижимости.

* Нажимая на кнопку «Отправить», Вы даете согласие на обработку персональных данных в соответствии с Политикой конфиденциальности

Похожие объекты

Динамо (15 мин. 🚶)
Москва, улица Правды, 1/2
Жилой дом "Правды, 1/2"
Тип: Торговое помещение
Площадь: 247.70 м2
Мощность:60 кВт
35 960 000 за все
145 176 за м2
Позвонить Подробнее
Дубровка (30 мин. 🚶)
Москва, улица Эдуарда Стрельцова, 2к1
ЖК «FORIVER (Форивер)»
Тип: Торговое помещение
Площадь: 269.90 м2
Мощность:81 кВт
168 400 000 за все
623 935 за м2
Позвонить Подробнее
Сокол Сокольники Соколиная Гора (3 мин. 🚶)
Москва, Ленинградский проспект, 69с1
Жилое здание "Ленинградский пр-т 69"
Тип: Торговое помещение
Площадь: 250.00 м2
Мощность:100 кВт
59 000 000 за все
236 000 за м2
Позвонить Подробнее
Ботанический сад (8 мин. 🚶)
Москва, Сельскохозяйственная улица, 32
ОСЗ "Сельскохозяйственная 32"
Тип: Торговое помещение
Площадь: 281.29 м2
Мощность:108 кВт
200 000 000 за все
711 010 за м2
Позвонить Подробнее
Авиамоторная (15 мин. 🚶)
Москва, улица Золоторожский Вал, 11
Бизнес-центр "STONE Римский"
Тип: Торговое помещение
Площадь: 275.80 м2
330 960 000 за все
1 200 000 за м2
Позвонить Подробнее
Улица 1905 года (14 мин. 🚶)
Москва, улица Сергея Макеева, вл11/9с1-10
ЖК "LIFE TIME"
Тип: Торговое помещение
Площадь: 244.40 м2
Мощность:46 кВт
287 400 000 за все
1 175 941 за м2
Позвонить Подробнее
Новохохловская (10 мин. 🚶)
Москва, 1-й Грайвороновский проезд, 3
ЖК "Волжский парк"
Тип: Торговое помещение
Площадь: 248.00 м2
Мощность:22 кВт
111 600 000 за все
450 000 за м2
Позвонить Подробнее
Новослободская (7 мин. 🚶)
Москва, Новослободская улица, 19с1
Жилое здание Новослободская 19с1
Тип: Торговое помещение
Площадь: 265.40 м2
229 000 000 за все
862 849 за м2
Позвонить Подробнее
Нагорная (5 мин. 🚶)
Москва, Электролитный проезд, 7
ЖК "Top Hills" (Топ хиллс)
Тип: Торговое помещение
Площадь: 242.00 м2
Мощность:72 кВт
106 900 000 за все
441 736 за м2
Позвонить Подробнее
(2 мин. 🚶)
Москва, Рязанский проспект, 10с2
Бизнес-центр «Джоуль»
Тип: Торговое помещение
Площадь: 253.00 м2
Мощность:45 кВт
85 000 000 за все
335 968 за м2
Позвонить Подробнее
Савёловская (1 мин. 🚶)
Москва, Бутырская улица, 4
Жилое здание "Бутырская ул., д. 4"
Тип: Торговое помещение
Площадь: 264.50 м2
132 300 000 за все
500 189 за м2
Позвонить Подробнее
Окружная (10 мин. 🚗)
Москва, Алтуфьевское шоссе, 35к1
МФК "HALO (ГАЛО)"
Тип: Торговое помещение
Площадь: 286.90 м2
48 773 000 за все
170 000 за м2
Позвонить Подробнее
Петровско-Разумовская (17 мин. 🚗)
Москва, Дмитровское шоссе, 89
Бизнес-парк «XL-1»
Тип: Торговое помещение
Площадь: 170.90 м2
128 175 000 за все
750 000 за м2
Позвонить Подробнее
Смоленская (Филевская) Смоленская (Арбатско-Покровская) (13 мин. 🚶)
Москва, улица Плющиха, 42
Жилое здание "Плющиха 42"
Тип: Торговое помещение
Площадь: 181.40 м2
Мощность:36 кВт
135 000 000 за все
744 212 за м2
Позвонить Подробнее
Багратионовская (4 мин. 🚶)
Москва, улица Барклая, 6
ЖК "Барклая 6"
Тип: Торговое помещение
Площадь: 180.00 м2
Мощность:36 кВт
125 000 000 за все
694 444 за м2
Позвонить Подробнее
(6 мин. 🚗)
Москва, Новомосковский административный округ, район Внуково, квартал № 19, 1с1
Бизнес-парк "Переделкино"
Тип: Торговое помещение
Площадь: 434.00 м2
Мощность:80 кВт
148 409 560 за все
341 958 за м2
Позвонить Подробнее
Профсоюзная (10 мин. 🚶)
Москва, улица Вавилова, 69А
ЖК: VAVILOVE (Вавилова, 69А)
Тип: Торговое помещение
Площадь: 1232.80 м2
Мощность:84 кВт
144 620 000 за все
117 310 за м2
Позвонить Подробнее
Красносельская (8 мин. 🚶)
Москва, Нижняя Красносельская улица, 35с49
Офисно - жилой комплекс Concept loft LOFTEC (Концепт-лофт Лофтек)
Тип: Торговое помещение
Площадь: 156.80 м2
Мощность:65 кВт
140 000 000 за все
892 857 за м2
Позвонить Подробнее
Савёловская (1 мин. 🚶)
Москва, Бутырская улица, 4
Жилое здание "Бутырская ул., д. 4"
Тип: Торговое помещение
Площадь: 264.50 м2
132 300 000 за все
500 189 за м2
Позвонить Подробнее
Кузнецкий Мост (1 мин. 🚶)
Москва, улица Рождественка, 6/9/20с1
Административное здание «Рождественка 6/9/20»
Тип: Торговое помещение
Площадь: 119.00 м2
138 000 000 за все
1 159 664 за м2
Позвонить Подробнее
Бабушкинская (16 мин. 🚶)
Москва, улица Искры, 1
Жилой комплекс "Искры радости"
Тип: Торговое помещение
Площадь: 216.90 м2
127 023 147 за все
585 630 за м2
Позвонить Подробнее
Октябрьская (6 мин. 🚶)
Москва, Казанский переулок, 2-4
Жилое здание "Казанский переулок 2-4"
Тип: Торговое помещение
Площадь: 594.60 м2
Мощность:60 кВт
125 000 000 за все
210 225 за м2
Позвонить Подробнее
Марьино (15 мин. 🚶)
Москва, улица Перерва, 11с1
Технопарк "Перерва"
Тип: Торговое помещение
Площадь: 796.20 м2
144 000 000 за все
180 859 за м2
Позвонить Подробнее
(3 мин. 🚶)
Москва, Очаковское шоссе, вл3с5
ЖК "Матвеевский парк"
Тип: Торговое помещение
Площадь: 97.50 м2
Мощность:19 кВт
82 875 000 за все
850 000 за м2
Позвонить Подробнее
(3 мин. 🚶)
Москва, Очаковское шоссе, вл3с5
ЖК "Матвеевский парк"
Тип: Торговое помещение
Площадь: 80.50 м2
Мощность:19 кВт
79 000 000 за все
981 366 за м2
Позвонить Подробнее