Аренда офиса Бизнес-центр "Чайка Плаза 10"

Объект успешно реализован!
Аренда офиса Бизнес-центр
Москва, Варшавское шоссе, 25Ас6
Объект успешно реализован, но у нас есть много других интересных предложений. Позвоните по телефону +7 495 230-28-26, либо оставьте заявку на подбор прямо сейчас и получите список подходящих для вас объектов.
загрузка карты...
Аренда в год за м2 21 000 ₽
Аренда в месяц 297 500 ₽
Схема сделки прямая аренда
Первушина Марина Алексеевна

Объект ведет консультант:

Первушина Марина Алексеевна

Общие
ID 59091
Тип сделки Аренда
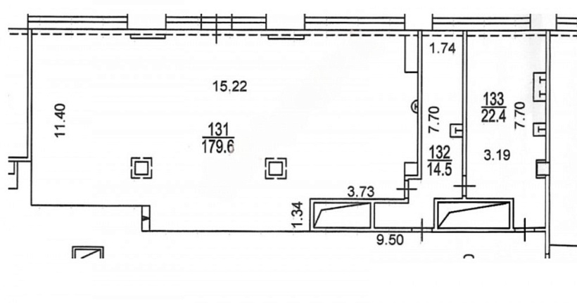
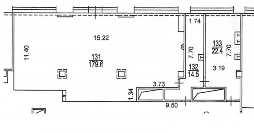
Площадь 170.00
Площадь всего 22824.00
Тип объекта Бизнес-центр
Класс здания B
Этаж 1
Всего этажей в здании 4
Метраж по этажам
Информация об объекте
Состояние объекта рабочее
Состояние блока выполнена стандартная офисная отделка
Планировка Залы и кабинеты
Коммуникации Система пожаротушения,Система видеонаблюдения,Интернет,Телефония
Перекрытия Железобетонные
Парковка наземная и подземная
Отопление Центральное
Вентиляция и кондиционирование Современная система вентиляции и кондиционирования
Коммерческие условия
Аренда в год за м2 21 000 ₽
Аренда в месяц 297 500 ₽
Схема сделки прямая аренда
Тип собственника Юридическое лицо

Описание объекта
Предлагаем в аренду офис в бизнес-центре центре класса В+ в Донском районе. До м.Верхние котлы 10 минут пешком. Первый этаж, отдельный вход вот двор, ремонт за выездом арендатора, сдается без мебели. Ранее располагалось кафе, собственник готов компенсировать ремонт. В здании приточно-вытяжная вентиляция, кондиционирование, высокие потолки. Парковка наземная и подземная. В ставку включена эксплуатация. Помещение свободно к заезду.

Нужна консультация по подбору помещения под офис?

Наши специалисты подберут для вас самые выгодные варианты для долгосрочного инвестирования,
помогут в сопровождении и сделки, проверят все юридические вопросы касаемо приобретения недвижимости.

* Нажимая на кнопку «Отправить», Вы даете согласие на обработку персональных данных в соответствии с Политикой конфиденциальности

Похожие объекты

Курская (9 мин. 🚶)
Москва, Улица Земляной Вал, 4с1
Бизнес-центр «Земляной 4 с1»
Тип: Офисы
Площадь: 180.00 м2
Отделка:выполнена стандартная офисная отделка
585 000 в месяц
39 000 в год за м2
Позвонить Подробнее
Университет (10 мин. 🚶)
Москва, Ленинский проспект, 70/11
Жилое здание «Ленинский 70/11»
Тип: Офисы
Площадь: 183.20 м2
Отделка:выполнена стандартная офисная отделка
499 000 в месяц
32 686 в год за м2
Позвонить Подробнее
Новокузнецкая (10 мин. 🚶)
Москва, Большая Татарская улица, 35с3
Офисный центр "Замоскворечье"
Тип: Офисы
Площадь: 180.00 м2
Отделка:выполнена стандартная офисная отделка
600 000 в месяц
40 000 в год за м2
Позвонить Подробнее
Павелецкая (2 мин. 🚶)
Москва, Павелецкая площадь, 2с3
БЦ "Павелецкая Плаза"
Тип: Офисы
Площадь: 172.00 м2
Отделка:выполнена стандартная офисная отделка
980 400 в месяц
68 400 в год за м2
Позвонить Подробнее
Кутузовская (10 мин. 🚶)
Москва, Поклонная улица, 3
Деловой комплекс «Poklonka Place»
Тип: Офисы
Площадь: 155.70 м2
Отделка:выполнена стандартная офисная отделка
712 052 в месяц
54 879 в год за м2
Позвонить Подробнее
Калужская (10 мин. 🚶)
Москва, Улица Бутлерова, 17
Бизнес-центр «NEO GEO»
Тип: Офисы
Площадь: 173.00 м2
Отделка:отделка арендатора
375 000 в месяц
26 012 в год за м2
Позвонить Подробнее
Бауманская (8 мин. 🚶)
Закрытая продажа #61410
Тип: Офисы
Площадь: 177.00 м2
Отделка:отделка арендатора
516 250 в месяц
35 000 в год за м2
Позвонить Подробнее
Фили (23 мин. 🚗)
Москва, улица Ермакова Роща, 1с1
Деловой центр ICITY
Тип: Офисы
Площадь: 178.00 м2
Отделка:Shell & Core
1 409 000 в месяц
94 989 в год за м2
Позвонить Подробнее
Рижская (6 мин. 🚶)
Москва, улица Гиляровского, 65с1
БЦ "улица Гиляровского, 65с1"
Тип: Офисы
Площадь: 184.03 м2
Отделка:помещение без отделки
276 045 в месяц
18 000 в год за м2
Позвонить Подробнее
Парк Победы (5 мин. 🚶)
Москва, улица Василисы Кожиной, 1
Бизнес-центр "Парк Победы"
Тип: Офисы
Площадь: 172.60 м2
Отделка:выполнена стандартная офисная отделка
776 700 в месяц
54 000 в год за м2
Позвонить Подробнее
Новослободская (5 мин. 🚶)
Москва, Краснопролетарская улица, 16с1
БЦ "Красный пролетарий"
Тип: Офисы
Площадь: 163.77 м2
Отделка:выполнена стандартная офисная отделка
592 302 в месяц
43 400 в год за м2
Позвонить Подробнее
Электрозаводская (15 мин. 🚶)
Москва, Большая Почтовая улица, 26Вс2
Бизнес-центр «Пост Плаза»
Тип: Офисы
Площадь: 155.60 м2
Отделка:качественная отделка
280 080 в месяц
21 600 в год за м2
Позвонить Подробнее
Бауманская (5 мин. 🚶)
Москва, Посланников переулок, 5с11
БЦ "Посланников переулок 5с11"
Тип: Офисы
Площадь: 289.00 м2
Отделка:выполнена стандартная офисная отделка
481 667 в месяц
20 000 в год за м2
Позвонить Подробнее
Кожуховская (6 мин. 🚶)
Москва, 2-й Южнопортовый проезд, 14/22
Офисно-складской комплекс «Южнопортовый»
Тип: Офисы
Площадь: 2390.00 м2
Отделка:требуется косметический ремонт
3 983 333 в месяц
20 000 в год за м2
Позвонить Подробнее
Кожуховская (6 мин. 🚶)
Москва, 2-й Южнопортовый проезд, 14/22
Офисно-складской комплекс «Южнопортовый»
Тип: Офисы
Площадь: 1410.00 м2
Отделка:требуется косметический ремонт
2 350 000 в месяц
20 000 в год за м2
Позвонить Подробнее
Кожуховская (6 мин. 🚶)
Москва, 2-й Южнопортовый проезд, 14/22
Офисно-складской комплекс «Южнопортовый»
Тип: Офисы
Площадь: 980.00 м2
Отделка:выполнена стандартная офисная отделка
1 633 333 в месяц
20 000 в год за м2
Позвонить Подробнее
Кожуховская (6 мин. 🚶)
Москва, 2-й Южнопортовый проезд, 14/22
Офисно-складской комплекс «Южнопортовый»
Тип: Офисы
Площадь: 560.00 м2
Отделка:требуется косметический ремонт
933 333 в месяц
20 000 в год за м2
Позвонить Подробнее
Кожуховская (6 мин. 🚶)
Москва, 2-й Южнопортовый проезд, 14/22
Офисно-складской комплекс «Южнопортовый»
Тип: Офисы
Площадь: 850.00 м2
Отделка:выполнена стандартная офисная отделка
1 416 667 в месяц
20 000 в год за м2
Позвонить Подробнее
Алексеевская (15 мин. 🚶)
Москва, Звёздный бульвар, 23с10
Офисное здание "Звёздный бульвар, 23с10"
Тип: Офисы
Площадь: 361.00 м2
Отделка:выполнена стандартная офисная отделка
613 700 в месяц
20 400 в год за м2
Позвонить Подробнее
Речной вокзал (32 мин. 🚗)
Москва, Химки, Ленинградская улица, 25
Бизнес-центр «KHIMKI ONE»
Тип: Офисы
Площадь: 1918.63 м2
Отделка:Shell & Core
3 277 660 в месяц
20 500 в год за м2
Позвонить Подробнее
Речной вокзал (32 мин. 🚗)
Москва, Химки, Ленинградская улица, 25
Бизнес-центр «KHIMKI ONE»
Тип: Офисы
Площадь: 689.93 м2
Отделка:выполнена стандартная офисная отделка
1 121 136 в месяц
19 500 в год за м2
Позвонить Подробнее
Речной вокзал (32 мин. 🚗)
Москва, Химки, Ленинградская улица, 25
Бизнес-центр «KHIMKI ONE»
Тип: Офисы
Площадь: 602.69 м2
Отделка:Shell & Core
1 054 708 в месяц
21 000 в год за м2
Позвонить Подробнее
Речной вокзал (32 мин. 🚗)
Москва, Химки, Ленинградская улица, 25
Бизнес-центр «KHIMKI ONE»
Тип: Офисы
Площадь: 1738.63 м2
Отделка:выполнена стандартная офисная отделка
2 970 160 в месяц
20 500 в год за м2
Позвонить Подробнее
Кунцевская (10 мин. 🚶)
Москва, улица Вересаева, 6
Жилое здание "улица Вересаева, 6"
Тип: Офисы
Площадь: 1600.00 м2
Отделка:требуется косметический ремонт
3 066 667 в месяц
23 000 в год за м2
Позвонить Подробнее
Верхние Котлы (15 мин. 🚶)
Москва, Новоданиловская набережная, 12
Бизнес-центр «DM Tower»
Тип: Офисы
Площадь: 241.30 м2
Отделка:качественная отделка
1 150 000 в месяц
57 190 в год за м2
Позвонить Подробнее
Верхние Котлы (7 мин. 🚶)
Москва, Варшавское шоссе, 33
Бизнес-центр «Дело»
Тип: Офисы
Площадь: 463.00 м2
Отделка:выполнена стандартная офисная отделка
830 000 в месяц
21 512 в год за м2
Позвонить Подробнее