Аренда торгового помещения ЖК "Прокшино" 7

Москва, Новомосковский административный округ, район Коммунарка, Прокшинский проспект, 7
Позвоните по телефону +7 495 230-28-26, либо оставьте заявку на просмотр прямо сейчас и узнайте условия специального предложения по объекту.
загрузка карты...
Аренда в год за м2 28 571 ₽
Аренда в месяц 450 000 ₽
Схема сделки прямая аренда
Общие
ID 59218
Тип сделки Аренда
Площадь 189.00
Тип объекта Жилой комплекс
Этаж 1
Всего этажей в здании 18
Метраж по этажам
Информация об объекте
Состояние объекта новое строительство
Состояние блока Shell and Core
Планировка Открытая
Перекрытия Железобетонные
Нюансы Отдельный вход,Новостройка
Торговая недвижимость
Линия домов 1 линия
Возможности Ресторанная вытяжка,Витрины,Место для рекламы
Электр. мощность (кВт) 58
Коммерческие условия
Аренда в год за м2 28 571 ₽
Аренда в месяц 450 000 ₽
Схема сделки прямая аренда

Описание объекта
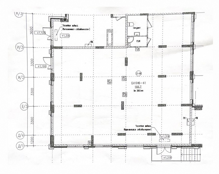
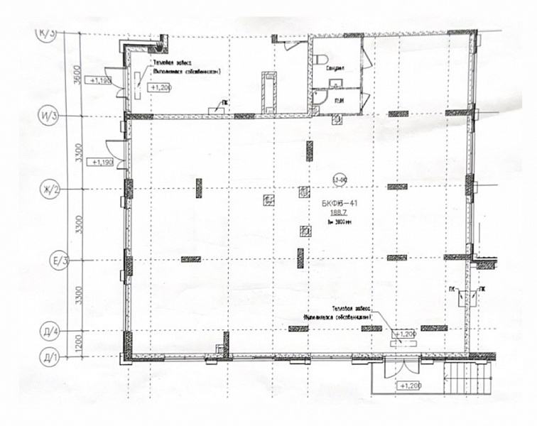
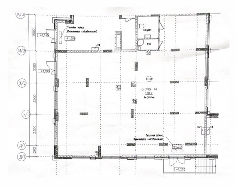
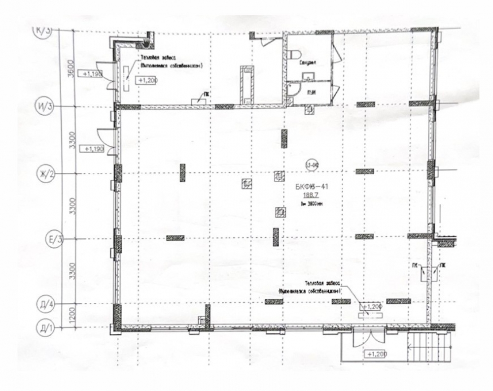
Предлагается в аренду торговое помещение в ЖК Прокшино. Помещение на 1 этаже общей площадью 188,70 м2, два входа, высота потолков 3,8 м., мощность 58 кВт, автономная вытяжка.
Угловое помещение с витринным остеклением с видом  на набережную под любой вид деятельности, но под кафе идеально!
Мост через реку Сосенка уже достроили, высадили деревья, проходимое место которое активно начинает набирать популярность среди жителей ЖК.
Рядом уже открыты булочные, салон красоты, барбер шоп, Пятерочка, Перекресток, аптеки.

Наша оценка
Локация
Цена
Техническое оснащение
Состояние
Общая оценка 5

Нужна консультация по подбору торговых площадей для аренды?

Наши специалисты подберут для вас самые выгодные варианты для долгосрочного инвестирования,
помогут в сопровождении и сделки, проверят все юридические вопросы касаемо приобретения недвижимости.

* Нажимая на кнопку «Отправить», Вы даете согласие на обработку персональных данных в соответствии с Политикой конфиденциальности

Похожие объекты

Ботанический сад (8 мин. 🚶)
Москва, Берёзовая аллея, 19к1
ЖК "Легендарный квартал"
Тип: Торговое помещение
Площадь: 182.00 м2
Мощность:36 кВт
473 200 в месяц
31 200 в год за м2
Позвонить Подробнее
Кожуховская (2 мин. 🚶)
Москва, улица Трофимова, 35/20
Жилое здание "Трофимова 35/20"
Тип: Торговое помещение
Площадь: 176.90 м2
Мощность:80 кВт
800 000 в месяц
54 268 в год за м2
Позвонить Подробнее
Сокол Сокольники Соколиная Гора (7 мин. 🚶)
Москва, Ленинградский проспект, 72к1
Бизнес-центр «Алкон»
Тип: Торговое помещение
Площадь: 204.00 м2
Мощность:80 кВт
725 900 в месяц
42 700 в год за м2
Позвонить Подробнее
Автозаводская (3 мин. 🚶)
Москва, Улица Мастеркова, 4
Торгово-офисный центр "Панорама"
Тип: Торговое помещение
Площадь: 200.00 м2
Мощность:110 кВт
1 000 000 в месяц
60 000 в год за м2
Позвонить Подробнее
Павелецкая (2 мин. 🚶)
Москва, Павелецкая площадь, 2с1
Бизнес-центр «Павелецкая Тауэр»
Тип: Торговое помещение
Площадь: 172.00 м2
Мощность:39 кВт
2 098 400 в месяц
146 400 в год за м2
Позвонить Подробнее
Коломенская (11 мин. 🚶)
Москва, Проспект Андропова, 48
Административное здание «проспект Андропова 48»
Тип: Торговое помещение
Площадь: 188.50 м2
Мощность:30 кВт
350 000 в месяц
22 281 в год за м2
Позвонить Подробнее
Савёловская (5 мин. 🚶)
Москва, Бумажный проезд, 19с4
БЦ STONE TOWERS
Тип: Торговое помещение
Площадь: 201.70 м2
Мощность:100 кВт
1 502 530 в месяц
89 392 в год за м2
Позвонить Подробнее
Трубная (4 мин. 🚶)
Москва, 1-й Колобовский переулок, 18
Жилое здание "1-й Колобовский переулок, 18"
Тип: Торговое помещение
Площадь: 189.00 м2
Мощность:15 кВт
1 870 000 в месяц
118 730 в год за м2
Позвонить Подробнее
Театральная (3 мин. 🚶)
Москва, Театральный проезд, 2
«Метрополь»
Тип: Торговое помещение
Площадь: 182.60 м2
Мощность:50 кВт
4 641 000 в месяц
304 995 в год за м2
Позвонить Подробнее
Пражская (1 мин. 🚶)
Москва, Кировоградская улица, 24А
ТРК Пражский град
Тип: Торговое помещение
Площадь: 195.70 м2
Мощность:60 кВт
425 648 в месяц
26 100 в год за м2
Позвонить Подробнее
Полежаевская (5 мин. 🚶)
Закрытая продажа #62339
Тип: Торговое помещение
Площадь: 200.00 м2
Мощность:40 кВт
700 000 в месяц
42 000 в год за м2
Позвонить Подробнее
Кузьминки (4 мин. 🚶)
Москва, Волгоградский проспект, 94к1
Многоквартирный дом
Тип: Торговое помещение
Площадь: 193.00 м2
Мощность:40 кВт
1 040 000 в месяц
64 663 в год за м2
Позвонить Подробнее
Ховрино (25 мин. 🚗)
Москва, Ленинградское шоссе, 228к6
ЖК «1-й Ленинградский», к. 1
Тип: Торговое помещение
Площадь: 138.10 м2
Мощность:25 кВт
345 250 в месяц
30 000 в год за м2
Позвонить Подробнее
Ховрино (25 мин. 🚗)
Москва, Ленинградское шоссе, 228к6
ЖК «1-й Ленинградский», к. 1
Тип: Торговое помещение
Площадь: 228.00 м2
Мощность:45 кВт
570 000 в месяц
30 000 в год за м2
Позвонить Подробнее
Ботанический сад (8 мин. 🚶)
Москва, Берёзовая аллея, 19к1
ЖК "Легендарный квартал"
Тип: Торговое помещение
Площадь: 182.00 м2
Мощность:36 кВт
473 200 в месяц
31 200 в год за м2
Позвонить Подробнее
Новокосино (16 мин. 🚶)
Московская область, Реутов, Носовихинское шоссе, 43
ЖК "Новокосино 2"
Тип: Торговое помещение
Площадь: 120.00 м2
Мощность:16 кВт
300 000 в месяц
30 000 в год за м2
Позвонить Подробнее
Некрасовка (10 мин. 🚶)
Москва, Рождественская улица, 27к1
Жилой дом "Рождественская 27"
Тип: Торговое помещение
Площадь: 363.40 м2
Мощность:25 кВт
830 000 в месяц
27 408 в год за м2
Позвонить Подробнее
Сухаревская (2 мин. 🚶)
Москва, Большая Сухаревская площадь, 1/2с1
Большая Сухаревская площадь, 1/2с1
Тип: Торговое помещение
Площадь: 315.00 м2
750 000 в месяц
28 571 в год за м2
Позвонить Подробнее
Маяковская (9 мин. 🚶)
Москва, улица Фадеева, 4Ас1
ЖК «Итальянский квартал»
Тип: Торговое помещение
Площадь: 444.50 м2
1 044 575 в месяц
28 200 в год за м2
Позвонить Подробнее
Крестьянская Застава (7 мин. 🚶)
Москва, Волгоградский проспект, 9с1
Жилое здание "Волгоградский проспект, 9с1"
Тип: Торговое помещение
Площадь: 281.00 м2
Мощность:68 кВт
690 000 в месяц
29 466 в год за м2
Позвонить Подробнее
Крестьянская Застава (7 мин. 🚶)
Москва, Волгоградский проспект, 9с1
Жилое здание "Волгоградский проспект, 9с1"
Тип: Торговое помещение
Площадь: 415.00 м2
Мощность:99 кВт
969 000 в месяц
28 019 в год за м2
Позвонить Подробнее
Перово (22 мин. 🚗)
Москва, Кусковская улица, 20А
Бизнес-центр «Кусково»
Тип: Торговое помещение
Площадь: 460.00 м2
Мощность:100 кВт
1 073 333 в месяц
28 000 в год за м2
Позвонить Подробнее
Коммунарка (15 мин. 🚗)
Москва, Новомосковский административный округ, район Коммунарка, Скандинавский бульвар, 14
ЖК "Скандинавия"
Тип: Торговое помещение
Площадь: 136.00 м2
Мощность:41 кВт
340 000 в месяц
30 000 в год за м2
Позвонить Подробнее
Тульская (10 мин. 🚶)
Москва, Варшавское шоссе, 2
Жилое здание "Варшавское шоссе, 2"
Тип: Торговое помещение
Площадь: 689.30 м2
Мощность:100 кВт
1 500 000 в месяц
26 113 в год за м2
Позвонить Подробнее