Продажа офиса Жилое здание «Розмарин»

Объект успешно реализован!
Продажа офиса Жилое здание «Розмарин» Продажа офиса Жилое здание «Розмарин»
Продажа офиса Жилое здание «Розмарин» - превью Продажа офиса Жилое здание «Розмарин» - превью
Москва, Улица Намёткина, 18
Объект успешно реализован, но у нас есть много других интересных предложений. Позвоните по телефону +7 495 230-28-26, либо оставьте заявку на подбор прямо сейчас и получите список подходящих для вас объектов.
загрузка карты...
Общие
ID 59366
Тип сделки Продажа
Площадь 146.10
Площадь всего 10000.00
Тип объекта Жилое здание
Класс здания B
Этаж 1
Всего этажей в здании 311
Метраж по этажам
Информация об объекте
Состояние объекта рабочее
Состояние блока Shell and Core
Планировка Смешанная
Коммуникации Система видеонаблюдения,Интернет,Телефония
Парковка подземная 30 000 ₽/месяц городская 40 ₽/час
КПП Гостевой пропуск
Нюансы Отдельный вход,ПСН
Торговая недвижимость
Линия домов 1 линия
Возможности Проходное место,Проездное место
Электр. мощность (кВт) 30
Коммерческие условия
За все 45 291 000 ₽
За м 2 310 000 ₽
Тип собственника Юридическое лицо

Описание объекта
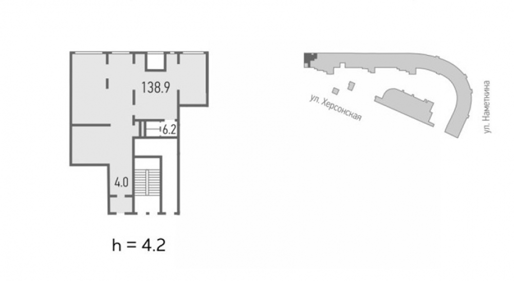
Предлагается в продажу помещение свободного назначения, по адресу: Улица Намёткина, 18. Секция 1. Возможное назначение - практически под любой вид деятельности. Разделено на: офис общей площадью 138,9 кв.м., тамбур - 4,0 кв.м., и санузел - 6,2 кв.м. Электрическая мощность 30 кВт. Высота потолков - 4,2 метра. Стоимость эксплуатационных расходов озвучивается клиенту лично.

Нужна консультация по покупке или продаже офиса?

Наши специалисты подберут для вас самые выгодные варианты для долгосрочного инвестирования,
помогут в сопровождении и сделки, проверят все юридические вопросы касаемо приобретения недвижимости.

* Нажимая на кнопку «Отправить», Вы даете согласие на обработку персональных данных в соответствии с Политикой конфиденциальности

Похожие объекты

Окружная (10 мин. 🚗)
Москва, Алтуфьевское шоссе, 35к1
МФК "HALO (ГАЛО)"
Тип: Офисы
Площадь: 148.50 м2
Отделка:Shell and Core
26 433 000 за все
178 000 за м2
Позвонить Подробнее
Деловой центр Деловой центр (МЦК) (2 мин. 🚶)
Москва, Пресненская набережная, 6с2
Москва-Сити "Башня Империя"
Тип: Офисы
Площадь: 153.00 м2
Отделка:выполнена высококачественная отделка
125 460 000 за все
820 000 за м2
Позвонить Подробнее
Бульвар Рокоссовского (5 мин. 🚶)
Москва, Тагильская улица, 4А
Бизнес-центр "AFI2B Тагильская"
Тип: Офисы
Площадь: 137.05 м2
Отделка:помещение без отделки
53 649 064 за все
391 456 за м2
Позвонить Подробнее
(8 мин. 🚶)
Москва, жилой комплекс Афи Парк Воронцовский
Бизнес-центр AFI Park (Афи Парк) на Воронцовской
Тип: Офисы
Площадь: 157.50 м2
Отделка:помещение без отделки
69 533 587 за все
441 483 за м2
Позвонить Подробнее
(8 мин. 🚶)
Москва, жилой комплекс Афи Парк Воронцовский
Бизнес-центр AFI Park (Афи Парк) на Воронцовской
Тип: Офисы
Площадь: 152.30 м2
Отделка:помещение без отделки
66 544 702 за все
436 932 за м2
Позвонить Подробнее
Марьина Роща (9 мин. 🚶)
Москва, 2-я Ямская улица, 9
UPSIDE (Апсайд) Ямская
Тип: Офисы
Площадь: 155.94 м2
Отделка:помещение без отделки
70 204 188 за все
450 200 за м2
Позвонить Подробнее
Нижегородская (10 мин. 🚶)
Москва, шоссе Фрезер, 19с2
Level work (Левел Ворк) Нижегородская
Тип: Офисы
Площадь: 147.60 м2
Отделка:Shell and Core
56 117 952 за все
380 203 за м2
Позвонить Подробнее
Боровское шоссе (17 мин. 🚗)
Москва, Инновационный центр Сколково, район Южный
Upside Tech в Сколково
Тип: Офисы
Площадь: 146.67 м2
Отделка:помещение без отделки
50 226 020 за все
342 442 за м2
Позвонить Подробнее
Озёрная (8 мин. 🚶)
Москва, Озёрная улица, 44Б
Бизнес-центр "ЛЭЙКС 2"
Тип: Офисы
Площадь: 152.60 м2
Отделка:выполнена стандартная офисная отделка
65 533 110 за все
429 444 за м2
Позвонить Подробнее
Селигерская (13 мин. 🚶)
Москва, Ильменский проезд, 13/8
Бизнес-центр ЛАВИН
Тип: Офисы
Площадь: 156.10 м2
Отделка:выполнена стандартная офисная отделка
54 229 140 за все
347 400 за м2
Позвонить Подробнее
Фонвизинская (6 мин. 🚶)
Москва, Огородный проезд, 20
Бизнес-центр UPSIDE (Апсайд) ОСТАНКИНО
Тип: Офисы
Площадь: 152.08 м2
Отделка:Shell and Core
59 128 704 за все
388 800 за м2
Позвонить Подробнее
ЦСКА (6 мин. 🚶)
Москва, Ходынский бульвар, 4/1
БЦ "AIR"
Тип: Офисы
Площадь: 139.20 м2
Отделка:Shell and Core
84 062 880 за все
603 900 за м2
Позвонить Подробнее
Боровское шоссе (17 мин. 🚗)
Москва, Инновационный центр Сколково, район Южный
Upside Tech в Сколково
Тип: Офисы
Площадь: 128.68 м2
Отделка:помещение без отделки
47 508 004 за все
369 195 за м2
Позвонить Подробнее
Озёрная (8 мин. 🚶)
Москва, Озёрная улица, 44Б
Бизнес-центр "ЛЭЙКС 2"
Тип: Офисы
Площадь: 99.00 м2
Отделка:выполнена стандартная офисная отделка
43 783 277 за все
442 255 за м2
Позвонить Подробнее
Селигерская (13 мин. 🚶)
Москва, Ильменский проезд, 13/8
Бизнес-центр ЛАВИН
Тип: Офисы
Площадь: 127.10 м2
Отделка:выполнена стандартная офисная отделка
44 688 360 за все
351 600 за м2
Позвонить Подробнее
Шелепиха (10 мин. 🚶)
Москва, Заречная улица, вл6/1
Бизнес - центр "Эйлер"
Тип: Офисы
Площадь: 83.80 м2
Отделка:Shell and Core
46 090 000 за все
550 000 за м2
Позвонить Подробнее
Шелепиха (10 мин. 🚶)
Москва, Заречная улица, вл6/1
Бизнес - центр "Эйлер"
Тип: Офисы
Площадь: 81.60 м2
Отделка:Shell and Core
40 800 000 за все
500 000 за м2
Позвонить Подробнее
Шелепиха (10 мин. 🚶)
Москва, Заречная улица, вл6/1
Бизнес - центр "Эйлер"
Тип: Офисы
Площадь: 90.90 м2
Отделка:Shell and Core
45 450 000 за все
500 000 за м2
Позвонить Подробнее
Планерная (23 мин. 🚗)
Московская область, Химки, Куркинское шоссе, с2
Бизнес-центр «Aero City (Аэро Сити)»
Тип: Офисы
Площадь: 265.60 м2
Отделка:Shell and Core
43 213 120 за все
162 700 за м2
Позвонить Подробнее
Фонвизинская (6 мин. 🚶)
Москва, Огородный проезд, 20
Бизнес-центр UPSIDE (Апсайд) ОСТАНКИНО
Тип: Офисы
Площадь: 116.23 м2
Отделка:Shell and Core
43 993 055 за все
378 500 за м2
Позвонить Подробнее
Марьина Роща (5 мин. 🚶)
Москва, улица Сущёвский Вал, 43
БЦ "Варст"
Тип: Офисы
Площадь: 114.00 м2
Отделка:выполнена стандартная офисная отделка
42 180 000 за все
370 000 за м2
Позвонить Подробнее
Строгино (14 мин. 🚗)
Москва, МКАД, 64-й километр, 1
Бизнес парк "«Rublevo Business Park (Рублево Бизнес Парк)»"
Тип: Офисы
Площадь: 144.64 м2
Отделка:Shell and Core
48 743 196 за все
336 997 за м2
Позвонить Подробнее
Строгино (14 мин. 🚗)
Москва, МКАД, 64-й километр, 1
Бизнес парк "«Rublevo Business Park (Рублево Бизнес Парк)»"
Тип: Офисы
Площадь: 136.00 м2
Отделка:Shell and Core
44 788 690 за все
329 329 за м2
Позвонить Подробнее
Строгино (14 мин. 🚗)
Москва, МКАД, 64-й километр, 1
Бизнес парк "«Rublevo Business Park (Рублево Бизнес Парк)»"
Тип: Офисы
Площадь: 166.29 м2
Отделка:Shell and Core
47 887 850 за все
287 978 за м2
Позвонить Подробнее
Новые Черёмушки (15 мин. 🚶)
Москва, Улица Намёткина, 18
Жилое здание «Розмарин»
Тип: Офисы
Площадь: 161.50 м2
Отделка:Shell and Core
40 375 000 за все
250 000 за м2
Позвонить Подробнее
Новые Черёмушки (15 мин. 🚶)
Москва, Улица Намёткина, 18
Жилое здание «Розмарин»
Тип: Офисы
Площадь: 1630.30 м2
Отделка:Shell and Core
423 878 000 за все
260 000 за м2
Позвонить Подробнее