Аренда офиса Бизнес-центр «Последний 6 к1»

Аренда офиса Бизнес-центр «Последний 6 к1»
Москва, Последний переулок, 6к1
Позвоните по телефону +7 495 230-28-26, либо оставьте заявку на просмотр прямо сейчас и узнайте условия специального предложения по объекту.
загрузка карты...
Аренда в год за м2 55 000 ₽
Аренда в месяц 4 436 667 ₽
Схема сделки прямая аренда
Первушина Марина Алексеевна

Объект ведет консультант:

Первушина Марина Алексеевна

Общие
ID 59505
Тип сделки Аренда
Площадь 968.00
Площадь всего 968.00
Тип объекта Бизнес-центр
Класс здания B
Этаж -1 - 5
Всего этажей в здании 6
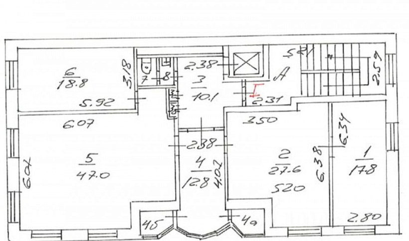
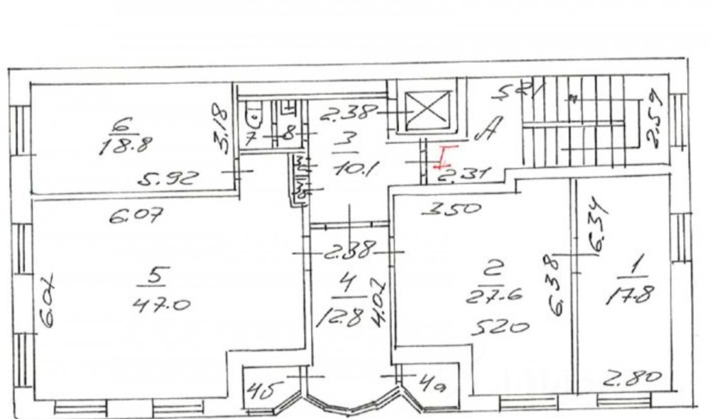
Метраж по этажам
Информация об объекте
Состояние объекта рабочее
Планировка Смешанная
Коммуникации Система видеонаблюдения,Интернет,Телефония
Перекрытия Железобетонные
КПП Гостевой пропуск
Нюансы Отдельный вход
Коммерческие условия
Аренда в год за м2 55 000 ₽
Аренда в месяц 4 436 667 ₽
Схема сделки прямая аренда
Тип собственника Юридическое лицо

Описание объекта
Предлагаем в аренду офисное здание в ЦАО. До м.Цветной бульвар/Сухаревская/Трубная 7 минут пешком.
Шесть этажей, много окон, потолки 3,2м, смешанная планировка, системы вентиляции и кондиционирования. Доступ 24/7.
Есть наземная парковка.
В ставку включена эксплуатация.
Здание освобождается по запросу.

Нужна консультация по подбору помещения под офис?

Наши специалисты подберут для вас самые выгодные варианты для долгосрочного инвестирования,
помогут в сопровождении и сделки, проверят все юридические вопросы касаемо приобретения недвижимости.

* Нажимая на кнопку «Отправить», Вы даете согласие на обработку персональных данных в соответствии с Политикой конфиденциальности

Похожие объекты

Краснопресненская (5 мин. 🚶)
Москва, Большая Грузинская улица, 12с2
Бизнес-центр «Николаевский»
Тип: Офисы
Площадь: 969.30 м2
Отделка:выполнена стандартная офисная отделка
2 600 000 в месяц
32 188 в год за м2
Позвонить Подробнее
Китай-город (7 мин. 🚶)
Москва, Подкопаевский переулок, 4
Бизнес-центр «Ивановская горка»
Тип: Офисы
Площадь: 996.80 м2
Отделка:качественная отделка
5 399 333 в месяц
65 000 в год за м2
Позвонить Подробнее
Международная (5 мин. 🚶)
Москва, Пресненская набережная, 10А
Бизнес-центр «Башня на набережной»
Тип: Офисы
Площадь: 1014.00 м2
Отделка:качественная отделка
10 309 000 в месяц
122 000 в год за м2
Позвонить Подробнее
Боровское шоссе (17 мин. 🚗)
Москва, Инновационный центр Сколково, улица Нобеля, 1
Бизнес-Центр ТЕХНОПАРК. "Квартал Менделеева"
Тип: Офисы
Площадь: 873.77 м2
Отделка:выполнена стандартная офисная отделка
2 002 390 в месяц
27 500 в год за м2
Позвонить Подробнее
Профсоюзная (5 мин. 🚶)
Москва, Улица Кржижановского, 14к3
Бизнес-центр «Ферро-Плаза»
Тип: Офисы
Площадь: 1000.00 м2
Отделка:выполнена стандартная офисная отделка
3 333 333 в месяц
40 000 в год за м2
Позвонить Подробнее
Румянцево (3 мин. 🚶)
Москва, Поселение Московский, деревня Румянцево, Киевское шоссе, 1
Бизнес-парк «Румянцево»
Тип: Офисы
Площадь: 911.40 м2
Отделка:выполнена стандартная офисная отделка
1 139 250 в месяц
15 000 в год за м2
Позвонить Подробнее
Медведково (16 мин. 🚗)
Московская область, Мытищи, улица Колпакова, 46А
Бизнес-центр "Мытищи, улица Колпакова, 46А"
Тип: Офисы
Площадь: 875.00 м2
Отделка:требуется косметический ремонт
1 181 250 в месяц
16 200 в год за м2
Позвонить Подробнее
Полянка (5 мин. 🚶)
Москва, улица Большая Якиманка, 17/2с1
Бизнес центр "улица Большая Якиманка, 17/2с1"
Тип: Офисы
Площадь: 1012.00 м2
Отделка:выполнена стандартная офисная отделка
4 486 450 в месяц
53 199 в год за м2
Позвонить Подробнее
Белорусская (5 мин. 🚶)
Москва, 1-я Тверская-Ямская улица, 21
Бизнес-центр «Четыре Ветра"
Тип: Офисы
Площадь: 886.00 м2
Отделка:качественная отделка
6 935 903 в месяц
93 940 в год за м2
Позвонить Подробнее
Планерная (23 мин. 🚗)
Московская область, Химки, Куркинское шоссе, с2
Бизнес-центр «Aero City (Аэро Сити)»
Тип: Офисы
Площадь: 995.30 м2
Отделка:Shell and Core
945 535 в месяц
11 400 в год за м2
Позвонить Подробнее
Фрунзенская (7 мин. 🚶)
Москва, Усачёва улица, 2с1
Бизнес-центр «Фьюжн Парк»
Тип: Офисы
Площадь: 1000.00 м2
Отделка:выполнена высококачественная отделка
8 333 333 в месяц
100 000 в год за м2
Позвонить Подробнее
Электрозаводская (14 мин. 🚶)
Москва, Бакунинская улица, 73с3
БЦ Бакунинский
Тип: Офисы
Площадь: 896.00 м2
Отделка:выполнена стандартная офисная отделка
1 642 667 в месяц
22 000 в год за м2
Позвонить Подробнее
Китай-город (8 мин. 🚶)
Москва, Малый Ивановский переулок, 7-9с1
Бизнес-центр "Ноев ковчег"
Тип: Офисы
Площадь: 158.26 м2
Отделка:выполнена стандартная офисная отделка
751 735 в месяц
57 000 в год за м2
Позвонить Подробнее
Менделеевская (3 мин. 🚶)
Москва, Сущёвская улица, 27с1
Бизнес-центр «Салют»
Тип: Офисы
Площадь: 6920.00 м2
Отделка:выполнена стандартная офисная отделка
28 833 333 в месяц
50 000 в год за м2
Позвонить Подробнее
Деловой центр Деловой центр (МЦК) (2 мин. 🚶)
Москва, Пресненская набережная, 6с2
Москва-Сити "Башня Империя"
Тип: Офисы
Площадь: 63.00 м2
Отделка:качественная отделка
300 000 в месяц
57 143 в год за м2
Позвонить Подробнее
Чеховская (10 мин. 🚶)
Москва, Столешников переулок, 14
Бизнес-центр «Столешников 14»
Тип: Офисы
Площадь: 191.00 м2
Отделка:качественная отделка
800 000 в месяц
50 262 в год за м2
Позвонить Подробнее
Калужская (10 мин. 🚶)
Москва, Улица Бутлерова, 17
Бизнес-центр «NEO GEO»
Тип: Офисы
Площадь: 1315.60 м2
Отделка:выполнена высококачественная отделка
5 430 000 в месяц
49 529 в год за м2
Позвонить Подробнее
Белорусская (11 мин. 🚶)
Москва, Лесная улица, 43
Бизнес-центр «Лесная 43»
Тип: Офисы
Площадь: 800.00 м2
Отделка:выполнена стандартная офисная отделка
3 993 334 в месяц
59 900 в год за м2
Позвонить Подробнее
Цветной бульвар (4 мин. 🚶)
Москва, Цветной бульвар, 22с1
Бизнес-центр «Цветной 22 с1»
Тип: Офисы
Площадь: 474.00 м2
Отделка:выполнена стандартная офисная отделка
1 975 000 в месяц
50 000 в год за м2
Позвонить Подробнее
Марьина Роща (14 мин. 🚶)
Москва, Улица Сущёвский Вал, 18
Бизнес-центр «NOVO» (ново)
Тип: Офисы
Площадь: 1312.00 м2
Отделка:выполнена высококачественная отделка
6 560 000 в месяц
60 000 в год за м2
Позвонить Подробнее
Марксистская (7 мин. 🚶)
Москва, Таганская улица, 17-23
Бизнес-центр «Мосэнка Парк Тауэрс 4»
Тип: Офисы
Площадь: 459.00 м2
Отделка:выполнена стандартная офисная отделка
1 913 265 в месяц
50 020 в год за м2
Позвонить Подробнее
Марксистская (7 мин. 🚶)
Москва, Таганская улица, 17-23
Бизнес-центр «Мосэнка Парк Тауэрс 4»
Тип: Офисы
Площадь: 616.00 м2
Отделка:выполнена стандартная офисная отделка
2 567 693 в месяц
50 020 в год за м2
Позвонить Подробнее
Римская (2 мин. 🚶)
Москва, Бульвар Энтузиастов, 2
Бизнес-центр «Golden Gate»
Тип: Офисы
Площадь: 1572.00 м2
Отделка:качественная отделка
7 205 000 в месяц
55 000 в год за м2
Позвонить Подробнее
Римская (2 мин. 🚶)
Москва, Бульвар Энтузиастов, 2
Бизнес-центр «Golden Gate»
Тип: Офисы
Площадь: 786.00 м2
Отделка:качественная отделка
3 602 500 в месяц
55 000 в год за м2
Позвонить Подробнее
Цветной бульвар (4 мин. 🚶)
Москва, Цветной бульвар, 22с1
Бизнес-центр «Цветной 22 с1»
Тип: Офисы
Площадь: 474.00 м2
Отделка:выполнена стандартная офисная отделка
1 975 000 в месяц
50 000 в год за м2
Позвонить Подробнее
Цветной бульвар (9 мин. 🚶)
Москва, Большой Каретный переулок, 20с3
ОСЗ «Большой Каретный 20 с3»
Тип: Офисы
Площадь: 1579.00 м2
Отделка:выполнена стандартная офисная отделка
5 921 250 в месяц
45 000 в год за м2
Позвонить Подробнее
Цветной бульвар (6 мин. 🚶)
Москва, 1-й Колобовский переулок, 17с1
Особняк «1-й Колобовский 17 с1»
Тип: Офисы
Площадь: 157.10 м2
Отделка:качественная отделка
785 500 в месяц
60 000 в год за м2
Позвонить Подробнее
Цветной бульвар (4 мин. 🚶)
Москва, Садовая-Самотёчная улица, 24/27
Бизнес-центр «Мосэнка Плаза 3»
Тип: Офисы
Площадь: 662.00 м2
Отделка:выполнена стандартная офисная отделка
3 508 600 в месяц
63 600 в год за м2
Позвонить Подробнее
Цветной бульвар (6 мин. 🚶)
Москва, 1-й Колобовский переулок, 19с2
Особняк «1-й Колобовский 19 с2»
Тип: Офисы
Площадь: 254.00 м2
Отделка:выполнена стандартная офисная отделка
1 375 833 в месяц
65 000 в год за м2
Позвонить Подробнее
Цветной бульвар (3 мин. 🚶)
Москва, 1-й Колобовский переулок, 19с1
Особняк на Цветном Бульваре
Тип: Офисы
Площадь: 413.10 м2
1 679 940 в месяц
48 800 в год за м2
Позвонить Подробнее
Цветной бульвар (4 мин. 🚶)
Москва, Садовая-Самотёчная улица, 24/27
Бизнес-центр «Мосэнка Плаза 3»
Тип: Офисы
Площадь: 321.00 м2
Отделка:выполнена стандартная офисная отделка
1 701 300 в месяц
63 600 в год за м2
Позвонить Подробнее
Цветной бульвар (6 мин. 🚶)
Москва, Троицкая улица, 5
Жилое здание «Троицкая 5»
Тип: Офисы
Площадь: 596.40 м2
Отделка:выполнена высококачественная отделка
5 000 000 в месяц
100 604 в год за м2
Позвонить Подробнее
Цветной бульвар (6 мин. 🚶)
Москва, Троицкая улица, 5
Жилое здание «Троицкая 5»
Тип: Офисы
Площадь: 331.70 м2
Отделка:выполнена высококачественная отделка
2 200 000 в месяц
79 590 в год за м2
Позвонить Подробнее