Аренда торгового помещения Бизнес-центр «Нижний Кисельный 4»

Аренда торгового помещения Бизнес-центр «Нижний Кисельный 4» Аренда торгового помещения Бизнес-центр «Нижний Кисельный 4» Аренда торгового помещения Бизнес-центр «Нижний Кисельный 4»
Аренда торгового помещения Бизнес-центр «Нижний Кисельный 4» - превью Аренда торгового помещения Бизнес-центр «Нижний Кисельный 4» - превью Аренда торгового помещения Бизнес-центр «Нижний Кисельный 4» - превью
Москва, Нижний Кисельный переулок, 4
Позвоните по телефону +7 495 230-28-26, либо оставьте заявку на просмотр прямо сейчас и узнайте условия специального предложения по объекту.
загрузка карты...
Аренда в год за м2 55 714 ₽
Аренда в месяц 650 000 ₽
Схема сделки прямая аренда
Первушина Марина Алексеевна

Объект ведет консультант:

Первушина Марина Алексеевна

Общие
ID 59659
Тип сделки Аренда
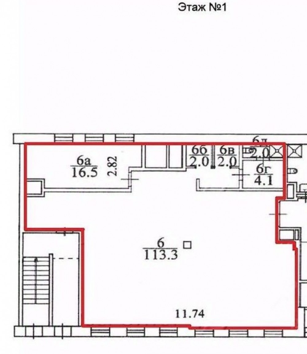
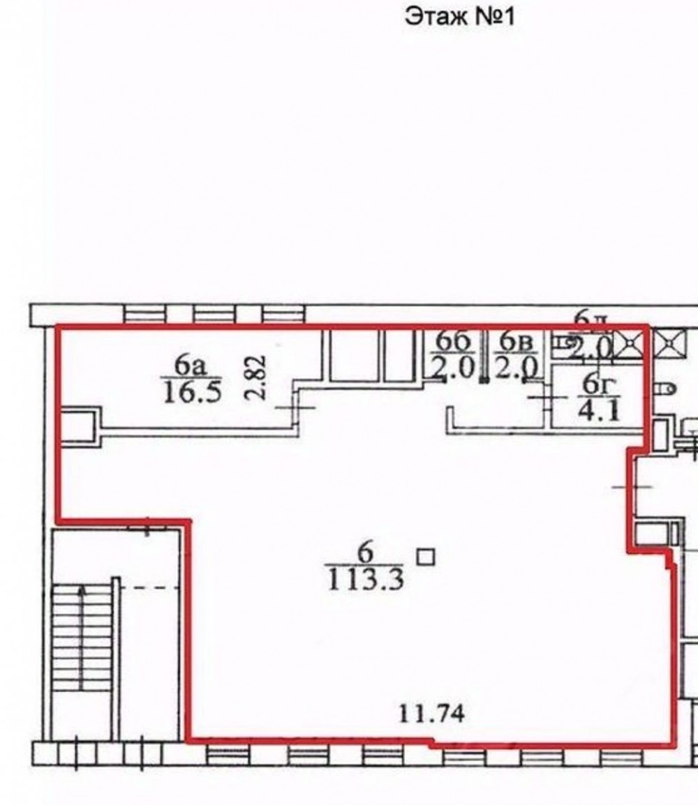
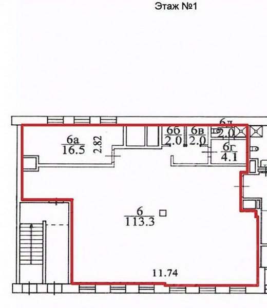
Площадь 140.00
Площадь всего 3690.00
Тип объекта Бизнес-центр
Класс здания A
Этаж 1
Всего этажей в здании 5
Метраж по этажам
Информация об объекте
Состояние блока отделка в стиле Loft
Планировка Открытая
Коммуникации Система видеонаблюдения,Интернет,Телефония
Парковка городская
КПП Гостевой пропуск
Нюансы Отдельный вход
Торговая недвижимость
Линия домов 1 линия
Возможности Витрины,Место для рекламы,Проходное место,Проездное место
Электр. мощность (кВт) 15
Коммерческие условия
Аренда в год за м2 55 714 ₽
Аренда в месяц 650 000 ₽
Схема сделки прямая аренда
Тип собственника Юридическое лицо

Описание объекта
Предлагаем к аренде торговое помещение в Мещанском районе. До м.Трубная/Кузнецкий мост 5 минут пешком.
Общая площадь помещения 140м2, первый этаж бизнес-центра, отдельный вход с фасада. Потолки 3м, много окон, свободная планировка, выделенная мощность 15квт, ремонт за выездом арендатора. Установлена система вентиляции, есть мини-кухня и с/у. Рассматриваются различные виды деятельности кроме общепита.
Помещение свободно к заеду.

Нужна консультация по подбору торговых площадей для аренды?

Наши специалисты подберут для вас самые выгодные варианты для долгосрочного инвестирования,
помогут в сопровождении и сделки, проверят все юридические вопросы касаемо приобретения недвижимости.

* Нажимая на кнопку «Отправить», Вы даете согласие на обработку персональных данных в соответствии с Политикой конфиденциальности

Похожие объекты

Ховрино (25 мин. 🚗)
Москва, Ленинградское шоссе, 228к6
ЖК «1-й Ленинградский», к. 1
Тип: Торговое помещение
Площадь: 138.10 м2
Мощность:25 кВт
345 250 в месяц
30 000 в год за м2
Позвонить Подробнее
Бульвар Рокоссовского (16 мин. 🚗)
Москва, 4-я Гражданская улица, 33А
ЖК "Вдохновение"
Тип: Торговое помещение
Площадь: 138.00 м2
Мощность:45 кВт
500 000 в месяц
43 478 в год за м2
Позвонить Подробнее
Проспект Мира (7 мин. 🚶)
Москва, Грохольский переулок, 28
Грохольский переулок, 28
Тип: Торговое помещение
Площадь: 130.00 м2
Мощность:20 кВт
365 000 в месяц
33 692 в год за м2
Позвонить Подробнее
Братиславская (9 мин. 🚶)
Москва, Люблинская улица, 153
ТЦ "Люблю Молл"
Тип: Торговое помещение
Площадь: 132.00 м2
660 000 в месяц
60 000 в год за м2
Позвонить Подробнее
Серпуховская (2 мин. 🚶)
Москва, Большая Серпуховская улица, 12/11с2
Офисное здание «Большая Серпуховская 12/11 с2»
Тип: Торговое помещение
Площадь: 127.00 м2
Мощность:80 кВт
680 000 в месяц
64 252 в год за м2
Позвонить Подробнее
Коммунарка (15 мин. 🚗)
Москва, Новомосковский административный округ, район Коммунарка, Скандинавский бульвар, 14
ЖК "Скандинавия"
Тип: Торговое помещение
Площадь: 136.00 м2
Мощность:41 кВт
340 000 в месяц
30 000 в год за м2
Позвонить Подробнее

Спец. предложение

Университет (15 мин. 🚶)
Москва, Ленинский проспект, 75/9
Жилое здание на Ленинском проспекте
Тип: Торговое помещение
Площадь: 127.00 м2
Мощность:40 кВт
850 000 в месяц
80 315 в год за м2
Позвонить Подробнее
Савёловская (5 мин. 🚶)
Москва, Бумажный проезд, 19с4
БЦ STONE TOWERS
Тип: Торговое помещение
Площадь: 131.40 м2
Мощность:50 кВт
1 066 879 в месяц
97 432 в год за м2
Позвонить Подробнее
Коломенская (1 мин. 🚶)
Москва, проспект Андропова, 23
ТЦ "Коломенский"
Тип: Торговое помещение
Площадь: 140.10 м2
Мощность:15 кВт
700 500 в месяц
60 000 в год за м2
Позвонить Подробнее
Филёвский парк (4 мин. 🚶)
Москва, Кастанаевская улица, 32
Жилое здание "Кастанаевская улица, 32"
Тип: Торговое помещение
Площадь: 132.80 м2
Мощность:26 кВт
680 000 в месяц
61 446 в год за м2
Позвонить Подробнее
Кунцевская (10 мин. 🚶)
Москва, Рублёвское шоссе, 21
Бизнес-центр "Upside Кунцево"
Тип: Торговое помещение
Площадь: 144.90 м2
Мощность:35 кВт
750 659 в месяц
62 166 в год за м2
Позвонить Подробнее
Октябрьское Поле (14 мин. 🚶)
Москва, улица Расплетина, 2
Жилое здание "Расплетина, 2"
Тип: Торговое помещение
Площадь: 134.00 м2
Мощность:50 кВт
299 000 в месяц
26 776 в год за м2
Позвонить Подробнее
Шаболовская (7 мин. 🚶)
Москва, улица Шаболовка, 14с2
ОСЗ "улица Шаболовка, 14с2"
Тип: Торговое помещение
Площадь: 442.10 м2
Мощность:150 кВт
1 900 000 в месяц
51 572 в год за м2
Позвонить Подробнее
Кожуховская (2 мин. 🚶)
Москва, улица Трофимова, 35/20
Жилое здание "Трофимова 35/20"
Тип: Торговое помещение
Площадь: 176.90 м2
Мощность:80 кВт
800 000 в месяц
54 268 в год за м2
Позвонить Подробнее
Братиславская (9 мин. 🚶)
Москва, Люблинская улица, 153
ТЦ "Люблю Молл"
Тип: Торговое помещение
Площадь: 132.00 м2
660 000 в месяц
60 000 в год за м2
Позвонить Подробнее
Цветной бульвар (5 мин. 🚶)
Москва, Садовая-Самотёчная улица, 15/1
ОСЗ "Садовая-Самотёчная, д 15/1"
Тип: Торговое помещение
Площадь: 110.00 м2
520 000 в месяц
56 727 в год за м2
Позвонить Подробнее
Калужская (15 мин. 🚶)
Москва, улица Академика Волгина, 2
ЖК "Архитектор"
Тип: Торговое помещение
Площадь: 120.90 м2
Мощность:30 кВт
590 000 в месяц
58 561 в год за м2
Позвонить Подробнее
Ленинский проспект (10 мин. 🚶)
Москва, Ленинский проспект, 38
Бизнес-центр «Lunar (Лунар)»
Тип: Торговое помещение
Площадь: 1463.60 м2
Мощность:450 кВт
7 318 000 в месяц
60 000 в год за м2
Позвонить Подробнее
Автозаводская (3 мин. 🚶)
Москва, Улица Мастеркова, 4
Торгово-офисный центр "Панорама"
Тип: Торговое помещение
Площадь: 200.00 м2
Мощность:110 кВт
1 000 000 в месяц
60 000 в год за м2
Позвонить Подробнее
Медведково (3 мин. 🚶)
Москва, улица Грекова, вл7
Административное здание "улица Грекова, вл7"
Тип: Торговое помещение
Площадь: 872.57 м2
4 362 850 в месяц
60 000 в год за м2
Позвонить Подробнее
Университет (20 мин. 🚶)
Москва, Ленинский проспект, 87
Жилое здание "Ленинский проспект, 87"
Тип: Торговое помещение
Площадь: 100.00 м2
Мощность:50 кВт
500 000 в месяц
60 000 в год за м2
Позвонить Подробнее
Молодёжная (30 мин. 🚗)
Московская область, Одинцовский городской округ, рабочий посёлок Новоивановское, бульвар Эйнштейна, 3
ЖК "Инновация"
Тип: Торговое помещение
Площадь: 30.50 м2
Мощность:10 кВт
135 000 в месяц
53 115 в год за м2
Позвонить Подробнее
Савёловская (19 мин. 🚶)
Москва, улица Двинцев, 3
БЦ "STONE Савёловская"
Тип: Торговое помещение
Площадь: 162.00 м2
810 000 в месяц
60 000 в год за м2
Позвонить Подробнее
Ленинский проспект (4 мин. 🚶)
Москва, улица Вавилова, вл11
БЦ STONE Ленинский
Тип: Торговое помещение
Площадь: 931.70 м2
Мощность:20 кВт
4 619 680 в месяц
59 500 в год за м2
Позвонить Подробнее
Трубная (4 мин. 🚶)
Москва, 1-й Колобовский переулок, 18
Жилое здание "1-й Колобовский переулок, 18"
Тип: Торговое помещение
Площадь: 189.00 м2
Мощность:15 кВт
1 870 000 в месяц
118 730 в год за м2
Позвонить Подробнее
Трубная (3 мин. 🚶)
Москва, Рождественский бульвар, 5/7с1
Жилое здание «Рождественский 5/7 с1»
Тип: Торговое помещение
Площадь: 45.00 м2
Мощность:15 кВт
390 000 в месяц
104 000 в год за м2
Позвонить Подробнее