Продажа офиса Особняк "Б. Саввинский пер. 12с3"

Продажа офиса Особняк Продажа офиса Особняк Продажа офиса Особняк
Продажа офиса Особняк Продажа офиса Особняк Продажа офиса Особняк
Москва, Большой Саввинский переулок, 12с3
Позвоните по телефону +7 495 230-28-26, либо оставьте заявку на просмотр прямо сейчас и узнайте условия специального предложения по объекту.
загрузка карты...
Первушина Марина Алексеевна

Объект ведет консультант:

Первушина Марина Алексеевна

Общие
ID 59840
Тип сделки Продажа
Площадь 379.00
Площадь всего 379.00
Тип объекта Особняк
Этаж 1 - 2
Всего этажей в здании 2
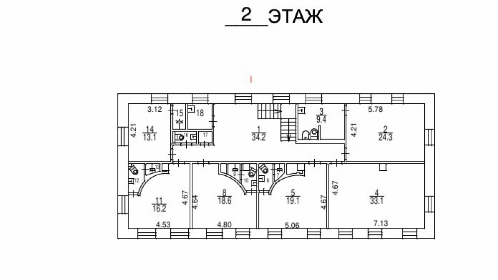
Метраж по этажам
Этаж: 1 - 189.45 м2
Этаж: 2 - 189.45 м2
Этаж: чердак - 185.1 м2
Информация об объекте
Состояние объекта рабочее
Планировка Смешанная
Перекрытия Железобетонные
Парковка городская
Нюансы Отдельный вход
Коммерческие условия
За все 290 000 000 ₽
За м 2 765 172 ₽
Тип собственника Юридическое лицо

Описание объекта
Хотите подчеркнуть стату вашей компании, тогда этот объект для вас!!!!!
Предлагаем к продаже двухэтажный особняк в элитном районе Хамовники. С земельным участком в собственности! Расположен в престижном районе с насыщенной инфраструктурой(кафе, рестораны, бары, новые ЖК, бизнес центры класса А).Удобная транспортная доступность. Состояние рабочее используется под офис компании.Вход с переулка Льва Выготского. Два этажа 378,90 м2 и неэксплуатируемый чердак на котором расположены все системы жизнеобеспечения здания. Высокие потолки 3,50 метра.
Максимально продуманная планировка и зонирование рабочих пространств.
ВРИ  участка - медицина. Парковка: городская.

Наша оценка
Локация
Цена
Техническое оснащение
Состояние
Метраж
Общая оценка 5

Нужна консультация по покупке или продаже офиса?

Наши специалисты подберут для вас самые выгодные варианты для долгосрочного инвестирования,
помогут в сопровождении и сделки, проверят все юридические вопросы касаемо приобретения недвижимости.

* Нажимая на кнопку «Отправить», Вы даете согласие на обработку персональных данных в соответствии с Политикой конфиденциальности

Похожие объекты

Нижегородская (10 мин. 🚶)
Москва, шоссе Фрезер, 19с2
Level work (Левел Ворк) Нижегородская
Тип: Офисы
Площадь: 390.60 м2
Отделка:Shell and Core
132 502 857 за все
339 229 за м2
Позвонить Подробнее
Марьина Роща (10 мин. 🚶)
Москва, 3-й проезд Марьиной Рощи, 40с1
Офисное здание «3-й Марьиной Рощи 40с1»
Тип: Офисы
Площадь: 370.50 м2
Отделка:отделка в стиле Loft
105 349 500 за все
284 344 за м2
Позвонить Подробнее
Шелепиха (10 мин. 🚶)
Москва, Заречная улица, вл6/1
Бизнес - центр "Эйлер"
Тип: Офисы
Площадь: 364.60 м2
Отделка:Shell and Core
114 780 000 за все
314 811 за м2
Позвонить Подробнее
Красносельская (5 мин. 🚶)
Москва, Верхняя Красносельская улица, 17Ас1Б
БЦ "Верхняя Красносельская улица, 17Ас1Б"
Тип: Офисы
Площадь: 388.00 м2
Отделка:выполнена стандартная офисная отделка
139 000 000 за все
358 247 за м2
Позвонить Подробнее
Планерная (23 мин. 🚗)
Московская область, Химки, Куркинское шоссе, с2
Бизнес-центр «Aero City (Аэро Сити)»
Тип: Офисы
Площадь: 408.10 м2
Отделка:Shell and Core
58 093 035 за все
142 350 за м2
Позвонить Подробнее
Автозаводская (8 мин. 🚶)
Москва, улица Ленинская Слобода, 19с6
Бизнес-центр «Омега Плаза 6»
Тип: Офисы
Площадь: 344.70 м2
Отделка:качественная отделка
102 927 420 за все
298 600 за м2
Позвонить Подробнее
Бауманская (14 мин. 🚶)
Москва, улица Фридриха Энгельса, 46с7
Лофт - квартал "LOFT46"
Тип: Офисы
Площадь: 416.00 м2
Отделка:отделка в стиле Loft
140 000 000 за все
336 538 за м2
Позвонить Подробнее
Технопарк (3 мин. 🚶)
Москва, Проектируемый проезд № 4062, 6с2
Бизнес-центр «Порт Плаза»
Тип: Офисы
Площадь: 373.20 м2
Отделка:отделка арендатора
128 194 200 за все
343 500 за м2
Позвонить Подробнее
Тульская (3 мин. 🚶)
Москва, Холодильный переулок, 3к1
БЦ "Башня Рябов"
Тип: Офисы
Площадь: 341.50 м2
Отделка:Shell and Core
170 750 000 за все
500 000 за м2
Позвонить Подробнее
Тульская (3 мин. 🚶)
Москва, Холодильный переулок, 3к1
БЦ "Башня Рябов"
Тип: Офисы
Площадь: 400.50 м2
Отделка:Shell and Core
200 250 000 за все
500 000 за м2
Позвонить Подробнее
Октябрьская (2 мин. 🚶)
Москва, Улица Крымский Вал, 3с2
Бизнес-центр «Крымский Вал»
Тип: Офисы
Площадь: 365.00 м2
Отделка:выполнена стандартная офисная отделка
150 000 000 за все
410 959 за м2
Позвонить Подробнее
Ленинский проспект (4 мин. 🚶)
Москва, улица Вавилова, вл11
БЦ STONE Ленинский
Тип: Офисы
Площадь: 389.10 м2
Отделка:Shell and Core
239 296 500 за все
615 000 за м2
Позвонить Подробнее
Воробьёвы горы (13 мин. 🚶)
Закрытая продажа #58582
Тип: Офисы
Площадь: 869.00 м2
305 000 000 за все
350 978 за м2
Позвонить Подробнее
Алексеевская (12 мин. 🚶)
Москва, Улица Бочкова, 11
ЖК "ILove" (Ай Лав)
Тип: Офисы
Площадь: 3557.50 м2
Отделка:Shell and Core
300 000 000 за все
84 329 за м2
Позвонить Подробнее
Площадь Ильича (13 мин. 🚶)
Москва, Николоямская улица, 51с2
Особняк «Николоямская 51 с2»
Тип: Офисы
Площадь: 452.00 м2
Отделка:требуется косметический ремонт
300 000 000 за все
663 717 за м2
Позвонить Подробнее
Люблино (12 мин. 🚶)
Москва, Армавирская улица, 12
Офисное здание "Армавирская 12"
Тип: Офисы
Площадь: 1331.00 м2
265 000 000 за все
199 098 за м2
Позвонить Подробнее
Китай-город (1 мин. 🚶)
Москва, Лубянский проезд, 21с1
ОСЗ "Лубянский пр., 21с1"
Тип: Офисы
Площадь: 720.40 м2
Отделка:выполнена стандартная офисная отделка
310 800 000 за все
431 427 за м2
Позвонить Подробнее
Владыкино (4 мин. 🚗)
Москва, Берёзовая аллея, 7Б
ОСЗ "Берёзовая аллея 7Б"
Тип: Офисы
Площадь: 1750.00 м2
305 000 000 за все
174 286 за м2
Позвонить Подробнее
Калужская (12 мин. 🚶)
Москва, Научный проезд, 19
Бизнес-центр «9 Акров»
Тип: Офисы
Площадь: 1080.00 м2
Отделка:выполнена стандартная офисная отделка
275 000 000 за все
254 630 за м2
Позвонить Подробнее
Павелецкая (12 мин. 🚶)
Москва, Летниковская улица, 10с2
Бизнес-центр «Святогор-2»
Тип: Офисы
Площадь: 827.60 м2
Отделка:выполнена стандартная офисная отделка
268 970 000 за все
325 000 за м2
Позвонить Подробнее
Павелецкая (12 мин. 🚶)
Москва, Летниковская улица, 10с2
Бизнес-центр «Святогор-2»
Тип: Офисы
Площадь: 830.10 м2
Отделка:выполнена стандартная офисная отделка
269 782 500 за все
325 000 за м2
Позвонить Подробнее
Павелецкая (12 мин. 🚶)
Москва, Летниковская улица, 10с2
Бизнес-центр «Святогор-2»
Тип: Офисы
Площадь: 852.30 м2
Отделка:выполнена стандартная офисная отделка
272 736 000 за все
320 000 за м2
Позвонить Подробнее
Павелецкая (15 мин. 🚶)
Москва, Жуков проезд, вл8
Бизнес-центр TALLER
Тип: Офисы
Площадь: 599.76 м2
Отделка:Shell and Core
293 893 868 за все
490 019 за м2
Позвонить Подробнее
Маяковская (5 мин. 🚶)
Москва, 2-я Брестская улица, 6
Бизнес-центр «Резиденция Тверская»
Тип: Офисы
Площадь: 161.70 м2
Отделка:выполнена высококачественная отделка
274 890 000 за все
1 700 000 за м2
Позвонить Подробнее