Аренда торгового помещения ЖК Дом Газпрома

Аренда торгового помещения ЖК Дом Газпрома Аренда торгового помещения ЖК Дом Газпрома Аренда торгового помещения ЖК Дом Газпрома Аренда торгового помещения ЖК Дом Газпрома Аренда торгового помещения ЖК Дом Газпрома
Аренда торгового помещения ЖК Дом Газпрома - превью Аренда торгового помещения ЖК Дом Газпрома - превью Аренда торгового помещения ЖК Дом Газпрома - превью Аренда торгового помещения ЖК Дом Газпрома - превью Аренда торгового помещения ЖК Дом Газпрома - превью
Москва, Новочерёмушкинская улица, 71/32
Позвоните по телефону +7 495 230-28-26, либо оставьте заявку на просмотр прямо сейчас и узнайте условия специального предложения по объекту.
загрузка карты...
Аренда в год за м2 24 000 ₽
Аренда в месяц 820 400 ₽
Схема сделки прямая аренда
Первушина Марина Алексеевна

Объект ведет консультант:

Первушина Марина Алексеевна

Общие
ID 59852
Тип сделки Аренда
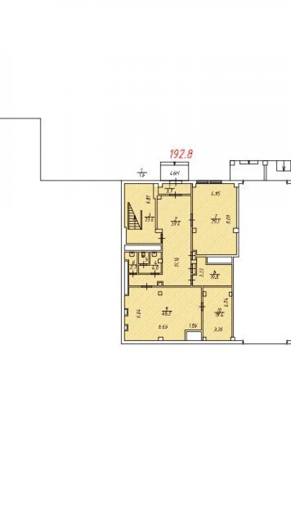
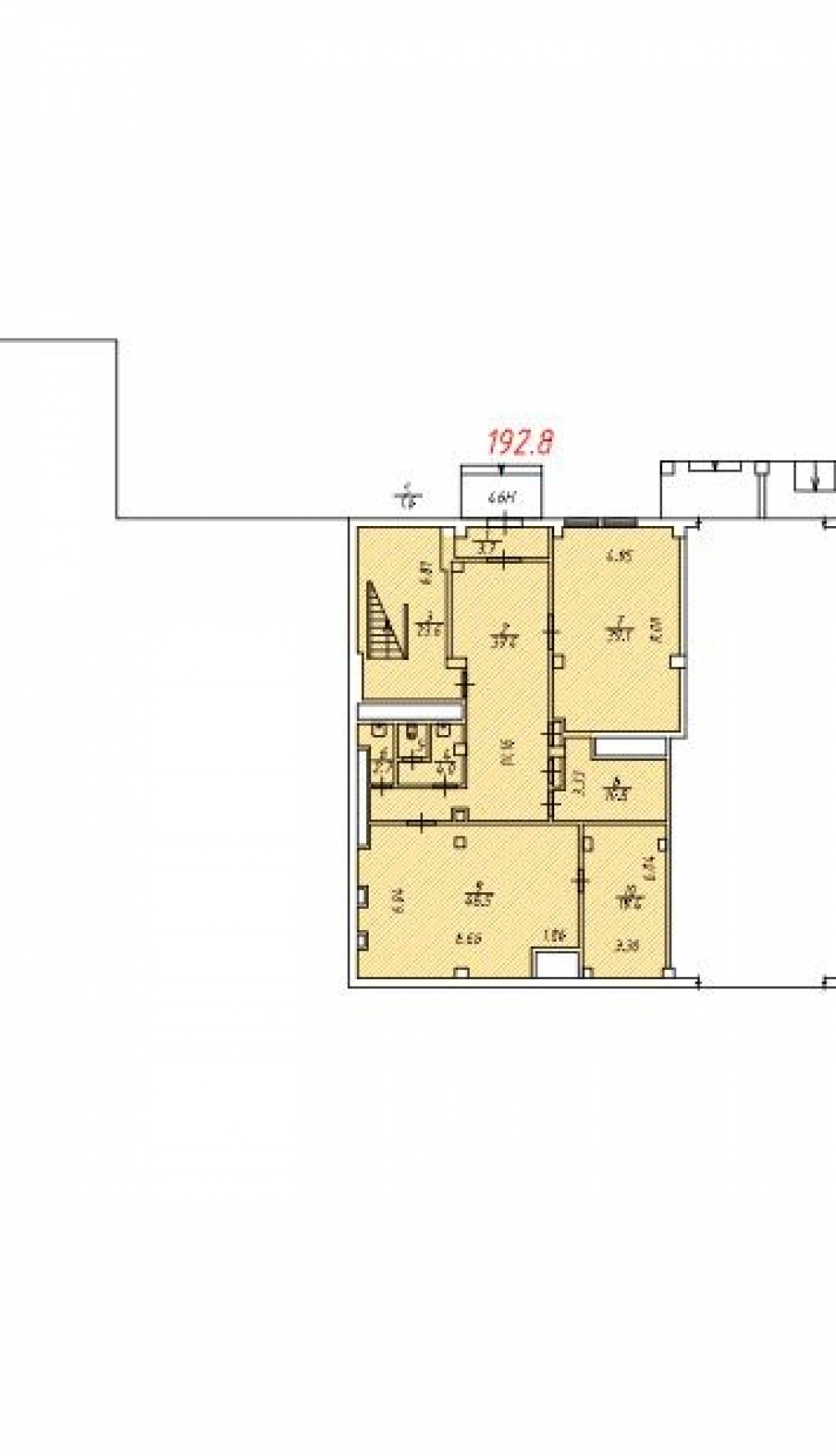
Площадь 410.20
Площадь всего 45992.00
Тип объекта Жилой комплекс
Этаж 1 - 2
Всего этажей в здании 21
Метраж по этажам
Этаж: 1 - 192.8 м2
Этаж: 2 - 217.4 м2
Информация об объекте
Состояние объекта рабочее
Состояние блока выполнена стандартная офисная отделка
Планировка Залы и кабинеты
Перекрытия Железобетонные
Нюансы Отдельный вход,ПСН
Торговая недвижимость
Линия домов 1 линия
Возможности Витрины,Место для рекламы,Проходное место,Проездное место
Электр. мощность (кВт) 60
Коммерческие условия
Аренда в год за м2 24 000 ₽
Аренда в месяц 820 400 ₽
Схема сделки прямая аренда
Тип собственника Юридическое лицо

Описание объекта
Предлагаем к аренде помещение под офис/медицину в ЮЗАО. Стилобат ЖК Дом Газпрома. До м. Новые Черемушки 15 минут пешком.
Двухуровневый блок с отдельным входом со двора, кабинетная планировка, много окон, ремонт необходимо освежить, выделенная мощность 60квт.
Помещение свободно к заезду.

Нужна консультация по подбору торговых площадей для аренды?

Наши специалисты подберут для вас самые выгодные варианты для долгосрочного инвестирования,
помогут в сопровождении и сделки, проверят все юридические вопросы касаемо приобретения недвижимости.

* Нажимая на кнопку «Отправить», Вы даете согласие на обработку персональных данных в соответствии с Политикой конфиденциальности

Похожие объекты

Тёплый стан (4 мин. 🚶)
Москва, Новоясеневский проспект, 1Вс1
МФК "Новоясеневский проспект, 1Вс1"
Тип: Торговое помещение
Площадь: 450.00 м2
Мощность:30 кВт
650 000 в месяц
17 333 в год за м2
Позвонить Подробнее
Улица 1905 года (12 мин. 🚶)
Москва, Рочдельская улица, 20
Бизнес-центр «РочДел центр»
Тип: Торговое помещение
Площадь: 400.70 м2
Мощность:90 кВт
2 170 458 в месяц
65 000 в год за м2
Позвонить Подробнее
Технопарк (5 мин. 🚶)
Москва, проспект Лихачёва, 8
Бизнес-Центр "Тесла"
Тип: Торговое помещение
Площадь: 391.00 м2
Мощность:50 кВт
2 150 500 в месяц
66 000 в год за м2
Позвонить Подробнее
Технопарк (10 мин. 🚶)
Москва, проспект Лихачёва, 20
ЖК "Нагатино Айленд"
Тип: Торговое помещение
Площадь: 410.00 м2
Мощность:100 кВт
1 230 000 в месяц
36 000 в год за м2
Позвонить Подробнее
Кузнецкий Мост (2 мин. 🚶)
Москва, улица Рождественка, 5/7с2
Торговая Галерея на Кузнецком
Тип: Торговое помещение
Площадь: 369.70 м2
Мощность:100 кВт
1 700 000 в месяц
55 180 в год за м2
Позвонить Подробнее
Ховрино (32 мин. 🚶)
Московская область, городской округ Солнечногорск, посёлок городского типа Менделеево, Институтская улица, 19
Жилой дом "Институтская 19"
Тип: Торговое помещение
Площадь: 440.00 м2
Мощность:60 кВт
550 000 в месяц
15 000 в год за м2
Позвонить Подробнее
Смоленская (Филевская) Смоленская (Арбатско-Покровская) (3 мин. 🚶)
Москва, Новинский бульвар, 1/2
Жилое здание "Новинский бульвар д. 1/2"
Тип: Торговое помещение
Площадь: 415.00 м2
Мощность:45 кВт
1 000 000 в месяц
28 916 в год за м2
Позвонить Подробнее
Третьяковская (13 мин. 🚶)
Москва, Болотная улица, 14с1
Административное здание " Болотная улица, 14с1"
Тип: Торговое помещение
Площадь: 421.00 м2
1 980 000 в месяц
56 437 в год за м2
Позвонить Подробнее
Бабушкинская (5 мин. 🚶)
Москва, Енисейская улица, 29
Жилое здание "Енисейская улица, 29"
Тип: Торговое помещение
Площадь: 381.00 м2
Мощность:73 кВт
1 714 500 в месяц
54 000 в год за м2
Позвонить Подробнее
Ховрино (22 мин. 🚗)
Московская область, Химки, улица Опанасенко, 2А
Здание "Химки, улица Опанасенко, 2А"
Тип: Торговое помещение
Площадь: 447.00 м2
Мощность:60 кВт
700 000 в месяц
18 792 в год за м2
Позвонить Подробнее
Алексеевская (5 мин. 🚶)
Москва, улица Бочкова, 3
Жилое здание "Бочкова 3"
Тип: Торговое помещение
Площадь: 388.00 м2
Мощность:150 кВт
2 700 000 в месяц
83 505 в год за м2
Позвонить Подробнее
Таганская (3 мин. 🚶)
Москва, Воронцовская улица, 9с1
ОСЗ "Воронцовская 9с1"
Тип: Торговое помещение
Площадь: 369.00 м2
Мощность:100 кВт
2 000 000 в месяц
65 041 в год за м2
Позвонить Подробнее
Семёновская (4 мин. 🚶)
Москва, Малая Семёновская улица, 30
Бизнес - центр «Малая Семеновская 30с1»
Тип: Торговое помещение
Площадь: 542.40 м2
Мощность:100 кВт
993 667 в месяц
21 984 в год за м2
Позвонить Подробнее
Бибирево (9 мин. 🚶)
Москва, Бибиревская улица, 4А
ЖК "БАРБАРИС"
Тип: Торговое помещение
Площадь: 104.00 м2
Мощность:22 кВт
220 000 в месяц
25 385 в год за м2
Позвонить Подробнее
Марьина Роща (13 мин. 🚶)
Москва, Улица Сущёвский Вал, 16с1
Бизнес-парк «Минаевский»
Тип: Торговое помещение
Площадь: 284.00 м2
Мощность:50 кВт
600 000 в месяц
25 352 в год за м2
Позвонить Подробнее
Выставочная (14 мин. 🚶)
Москва, Кутузовский проспект, 22
Жилое здание «Кутузовский 22»
Тип: Торговое помещение
Площадь: 479.00 м2
Мощность:100 кВт
1 000 000 в месяц
25 052 в год за м2
Позвонить Подробнее
Бибирево (13 мин. 🚶)
Москва, Улица Пришвина, 8
Бизнес-центр "РТС Алтуфьевский"
Тип: Торговое помещение
Площадь: 212.20 м2
Мощность:80 кВт
450 000 в месяц
25 448 в год за м2
Позвонить Подробнее
Алексеевская (12 мин. 🚶)
Москва, Новоалексеевская улица, 16к3
ЖК Серебряный фонтан
Тип: Торговое помещение
Площадь: 600.00 м2
Мощность:30 кВт
1 200 000 в месяц
24 000 в год за м2
Позвонить Подробнее
Минская (15 мин. 🚶)
Москва, улица Улофа Пальме, 1
ЖК «Депутатский Дом»
Тип: Торговое помещение
Площадь: 469.00 м2
Мощность:60 кВт
850 000 в месяц
21 748 в год за м2
Позвонить Подробнее
Технопарк (10 мин. 🚶)
Москва, проспект Андропова, 11к2
Деловой квартал "ЮПорт"
Тип: Торговое помещение
Площадь: 2906.00 м2
6 054 167 в месяц
25 000 в год за м2
Позвонить Подробнее
Коммунарка (13 мин. 🚗)
Москва, Новомосковский административный округ, район Коммунарка, проспект Куприна, 3к2
ЖК "Скандинавия"
Тип: Торговое помещение
Площадь: 99.30 м2
Мощность:36 кВт
198 600 в месяц
24 000 в год за м2
Позвонить Подробнее
Аннино (24 мин. 🚶)
Москва, Дорожная улица, 46к1
ЖК "Ютаново"
Тип: Торговое помещение
Площадь: 202.00 м2
Мощность:40 кВт
420 000 в месяц
24 950 в год за м2
Позвонить Подробнее
Маяковская (9 мин. 🚶)
Москва, улица Фадеева, 4Ас1
ЖК «Итальянский квартал»
Тип: Торговое помещение
Площадь: 168.00 м2
352 800 в месяц
25 200 в год за м2
Позвонить Подробнее
Новокосино (30 мин. 🚗)
Московская область, Балашиха, микрорайон Железнодорожный, Советская улица, 20А
ОСЗ "Советская 20А"
Тип: Торговое помещение
Площадь: 700.00 м2
Мощность:200 кВт
1 260 000 в месяц
21 600 в год за м2
Позвонить Подробнее
Калужская (15 мин. 🚶)
Москва, Новочерёмушкинская улица, 71/32
ЖК Дом Газпрома
Тип: Торговое помещение
Площадь: 1209.30 м2
Мощность:120 кВт
2 418 600 в месяц
24 000 в год за м2
Позвонить Подробнее
Калужская (15 мин. 🚶)
Москва, Новочерёмушкинская улица, 71/32
ЖК Дом Газпрома
Тип: Торговое помещение
Площадь: 799.10 м2
Мощность:60 кВт
1 598 200 в месяц
24 000 в год за м2
Позвонить Подробнее