Продажа офиса Особняк "Н. Басманная 20с5"

Продажа офиса Особняк Продажа офиса Особняк Продажа офиса Особняк Продажа офиса Особняк Продажа офиса Особняк Продажа офиса Особняк Продажа офиса Особняк Продажа офиса Особняк
Продажа офиса Особняк Продажа офиса Особняк Продажа офиса Особняк Продажа офиса Особняк Продажа офиса Особняк Продажа офиса Особняк Продажа офиса Особняк Продажа офиса Особняк
Москва, Новая Басманная улица, 20с5
Позвоните по телефону +7 495 230-28-26, либо оставьте заявку на просмотр прямо сейчас и узнайте условия специального предложения по объекту.
загрузка карты...
Общие
ID 60026
Тип сделки Продажа
Площадь 318.00
Площадь всего 410.00
Тип объекта Особняк
Этаж -1 - 1
Всего этажей в здании 1
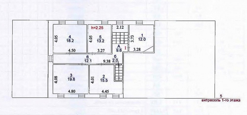
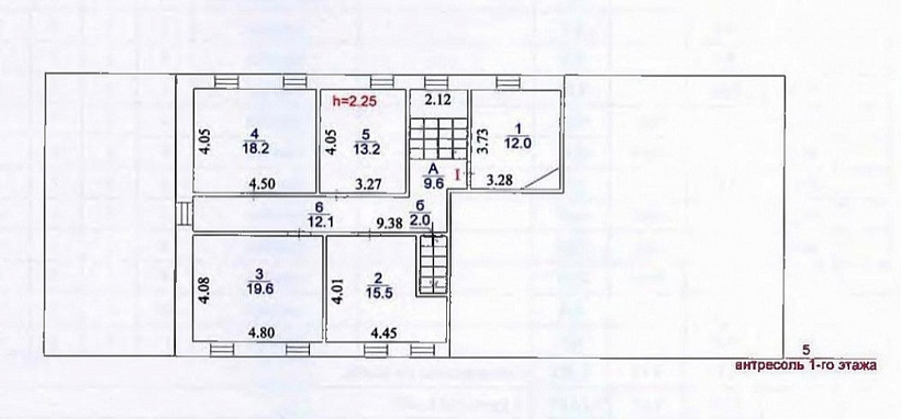
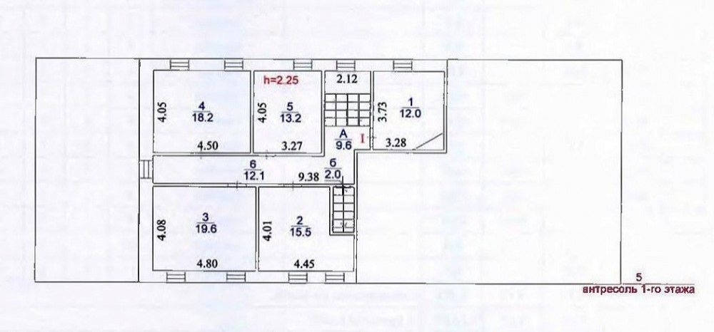
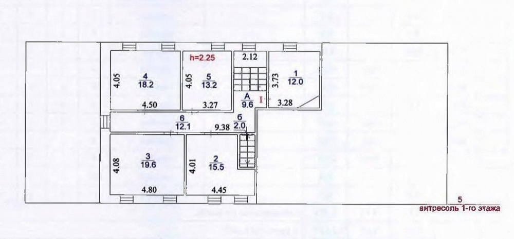
Метраж по этажам
Этаж: 1 - 128 м2
Этаж: -1 - 90 м2
Этаж: Антресоль - 100 м2
Информация об объекте
Состояние объекта рабочее
Состояние блока требуется косметический ремонт
Планировка Открытая
Перекрытия Неизвестно
Парковка 6 Огороженых
Нюансы Отдельный вход,ПСН
Торговая недвижимость
Линия домов 1 линия
Возможности Место для рекламы,Проходное место,Проездное место
Коммерческие условия
За все 70 000 000 ₽
За м 2 220 126 ₽

Описание объекта
Продается помещение 318 м2 (1 этаж, антресоль и подвал с отдельным входом с улицы) в историческом особняке общей площадью 410 м2, расположенном на перовой линии улицы Новая Басманная.
Около здания есть парковка за шлагбаумом на 5-6 м/м, есть возможность организации летней веранды.

Наша оценка
Локация
Цена
Техническое оснащение
Состояние
Метраж
Общая оценка 4.8

Нужна консультация по покупке или продаже офиса?

Наши специалисты подберут для вас самые выгодные варианты для долгосрочного инвестирования,
помогут в сопровождении и сделки, проверят все юридические вопросы касаемо приобретения недвижимости.

* Нажимая на кнопку «Отправить», Вы даете согласие на обработку персональных данных в соответствии с Политикой конфиденциальности

Похожие объекты

Марьина Роща (9 мин. 🚶)
Москва, 2-я Ямская улица, 9
UPSIDE (Апсайд) Ямская
Тип: Офисы
Площадь: 325.63 м2
Отделка:помещение без отделки
163 042 941 за все
500 700 за м2
Позвонить Подробнее
Марьина Роща (10 мин. 🚶)
Москва, 3-й проезд Марьиной Рощи, 40с1
Офисное здание «3-й Марьиной Рощи 40с1»
Тип: Офисы
Площадь: 302.50 м2
Отделка:отделка в стиле Loft
86 309 500 за все
285 321 за м2
Позвонить Подробнее
Красносельская (5 мин. 🚶)
Москва, Верхняя Красносельская улица, 17Ас1Б
БЦ "Верхняя Красносельская улица, 17Ас1Б"
Тип: Офисы
Площадь: 324.80 м2
Отделка:выполнена стандартная офисная отделка
117 000 000 за все
360 222 за м2
Позвонить Подробнее
Автозаводская (8 мин. 🚶)
Москва, улица Ленинская Слобода, 19с6
Бизнес-центр «Омега Плаза 6»
Тип: Офисы
Площадь: 344.70 м2
Отделка:качественная отделка
102 927 420 за все
298 600 за м2
Позвонить Подробнее
Говорово (8 мин. 🚶)
Москва, Боровское шоссе, вл2
БЦ "MOUNT (МАУНТ)"
Тип: Офисы
Площадь: 291.10 м2
Отделка:помещение без отделки
72 883 928 за все
250 374 за м2
Позвонить Подробнее
Говорово (8 мин. 🚶)
Москва, Боровское шоссе, вл2
БЦ "MOUNT (МАУНТ)"
Тип: Офисы
Площадь: 287.90 м2
Отделка:помещение без отделки
70 271 508 за все
244 083 за м2
Позвонить Подробнее
Говорово (8 мин. 🚶)
Москва, Боровское шоссе, вл2
БЦ "MOUNT (МАУНТ)"
Тип: Офисы
Площадь: 291.10 м2
Отделка:помещение без отделки
60 739 032 за все
208 653 за м2
Позвонить Подробнее
Тульская (3 мин. 🚶)
Москва, Холодильный переулок, 3к1
БЦ "Башня Рябов"
Тип: Офисы
Площадь: 341.50 м2
Отделка:Shell and Core
170 750 000 за все
500 000 за м2
Позвонить Подробнее
Тульская (3 мин. 🚶)
Москва, Холодильный переулок, 3к1
БЦ "Башня Рябов"
Тип: Офисы
Площадь: 317.30 м2
Отделка:Shell and Core
158 650 000 за все
500 000 за м2
Позвонить Подробнее
Пушкинская (7 мин. 🚶)
Москва, Большой Палашёвский переулок, 1с2
Жилое здание "Большой Палашёвский переулок, 1с2"
Тип: Офисы
Площадь: 304.00 м2
Отделка:качественная отделка
145 000 000 за все
476 974 за м2
Позвонить Подробнее
Дмитровская (3 мин. 🚶)
Москва, Дмитровский проезд, вл1Г
БЦ "STONE Дмитровская"
Тип: Офисы
Площадь: 336.10 м2
Отделка:Shell and Core
152 589 400 за все
454 000 за м2
Позвонить Подробнее
Авиамоторная (15 мин. 🚶)
Москва, улица Золоторожский Вал, 11
Бизнес-центр "STONE Римский"
Тип: Офисы
Площадь: 317.00 м2
Отделка:Shell and Core
125 502 660 за все
395 907 за м2
Позвонить Подробнее
Кунцевская (18 мин. 🚗)
Москва, улица Петра Алексеева, 12с1
КутузовGRAD II (КутузовГрад II) МАНУФАКТУРА XIX
Тип: Офисы
Площадь: 158.30 м2
Отделка:Shell and Core
64 580 000 за все
407 960 за м2
Позвонить Подробнее
Марьина Роща (9 мин. 🚶)
Москва, 2-я Ямская улица, 9
UPSIDE (Апсайд) Ямская
Тип: Офисы
Площадь: 155.24 м2
Отделка:помещение без отделки
67 808 832 за все
436 800 за м2
Позвонить Подробнее
Марьина Роща (10 мин. 🚶)
Москва, 3-й проезд Марьиной Рощи, 40с1
Офисное здание «3-й Марьиной Рощи 40с1»
Тип: Офисы
Площадь: 236.30 м2
Отделка:отделка в стиле Loft
67 773 500 за все
286 811 за м2
Позвонить Подробнее
Озёрная (8 мин. 🚶)
Москва, Озёрная улица, 44Б
Бизнес-центр "ЛЭЙКС 2"
Тип: Офисы
Площадь: 152.60 м2
Отделка:выполнена стандартная офисная отделка
65 533 110 за все
429 444 за м2
Позвонить Подробнее
Селигерская (13 мин. 🚶)
Москва, Ильменский проезд, 13/8
Бизнес-центр ЛАВИН
Тип: Офисы
Площадь: 212.80 м2
Отделка:выполнена стандартная офисная отделка
73 628 800 за все
346 000 за м2
Позвонить Подробнее
Планерная (23 мин. 🚗)
Московская область, Химки, Куркинское шоссе, с2
Бизнес-центр «Aero City (Аэро Сити)»
Тип: Офисы
Площадь: 492.30 м2
Отделка:Shell and Core
67 568 175 за все
137 250 за м2
Позвонить Подробнее
Говорово (8 мин. 🚶)
Москва, Боровское шоссе, вл2
БЦ "MOUNT (МАУНТ)"
Тип: Офисы
Площадь: 291.10 м2
Отделка:помещение без отделки
72 883 928 за все
250 374 за м2
Позвонить Подробнее
Говорово (8 мин. 🚶)
Москва, Боровское шоссе, вл2
БЦ "MOUNT (МАУНТ)"
Тип: Офисы
Площадь: 287.90 м2
Отделка:помещение без отделки
70 271 508 за все
244 083 за м2
Позвонить Подробнее
Марьина Роща (10 мин. 🚶)
Москва, Складочная улица, 6
БЦ "GUSTAV" (Густав)
Тип: Офисы
Площадь: 169.10 м2
Отделка:Shell and Core
66 049 170 за все
390 592 за м2
Позвонить Подробнее
Марьина Роща (10 мин. 🚶)
Москва, Складочная улица, 6
БЦ "GUSTAV" (Густав)
Тип: Офисы
Площадь: 174.30 м2
Отделка:Shell and Core
71 019 100 за все
407 453 за м2
Позвонить Подробнее
Шелепиха (10 мин. 🚶)
Москва, Заречная улица, вл6/1
Бизнес - центр "Эйлер"
Тип: Офисы
Площадь: 131.40 м2
Отделка:Shell and Core
72 270 000 за все
550 000 за м2
Позвонить Подробнее
Строгино (14 мин. 🚗)
Москва, МКАД, 64-й километр, 1
Бизнес парк "«Rublevo Business Park (Рублево Бизнес Парк)»"
Тип: Офисы
Площадь: 185.71 м2
Отделка:Shell and Core
66 149 008 за все
356 195 за м2
Позвонить Подробнее