Аренда офиса Бизнес-центр «2-я Ямская 4»

Объект успешно реализован!
Аренда офиса Бизнес-центр «2-я Ямская 4»
Москва, 2-я Ямская улица, 4
Объект успешно реализован, но у нас есть много других интересных предложений. Позвоните по телефону +7 495 230-28-26, либо оставьте заявку на подбор прямо сейчас и получите список подходящих для вас объектов.
загрузка карты...
Аренда в год за м2 30 000 ₽
Аренда в месяц 662 500 ₽
Схема сделки прямая аренда
Общие
ID 60388
Тип сделки Аренда
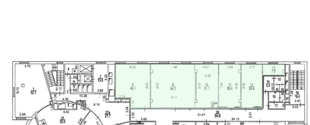
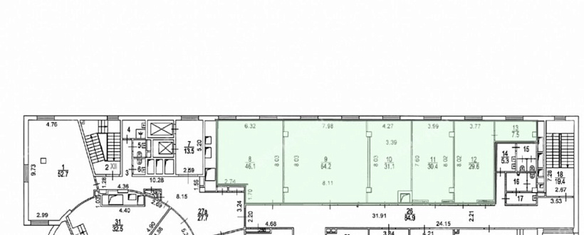
Площадь 265.00
Площадь всего 7666.90
Тип объекта Бизнес-центр
Класс здания B
Этаж 4
Всего этажей в здании 7
Метраж по этажам
Информация об объекте
Состояние блока выполнена стандартная офисная отделка
Планировка Залы и кабинеты
Коммуникации Система пожаротушения,Система видеонаблюдения,Интернет,Телефония
Парковка подземная 20000р/мес
КПП Гостевой пропуск
Коммерческие условия
Аренда в год за м2 30 000 ₽
Аренда в месяц 662 500 ₽
Схема сделки прямая аренда
Тип собственника Юридическое лицо

Описание объекта
Предлагаем в аренду офис в бизнес-центре класса В в Марьиной роще. До метро 7-8 минут пешком.
Блок из 5 кабинетов, расположен на 4 этаже, выполнен стандартный офисный ремонт. В здании установлена приторно-вытяжная вентиляция и центральное кондиционирование, есть подземная парковка.
Офис свободен к заезду

Нужна консультация по подбору помещения под офис?

Наши специалисты подберут для вас самые выгодные варианты для долгосрочного инвестирования,
помогут в сопровождении и сделки, проверят все юридические вопросы касаемо приобретения недвижимости.

* Нажимая на кнопку «Отправить», Вы даете согласие на обработку персональных данных в соответствии с Политикой конфиденциальности

Похожие объекты

Полянка (5 мин. 🚶)
Москва, улица Большая Якиманка, 17/2с1
Бизнес центр "улица Большая Якиманка, 17/2с1"
Тип: Офисы
Площадь: 253.00 м2
Отделка:выполнена стандартная офисная отделка
1 138 500 в месяц
54 000 в год за м2
Позвонить Подробнее
Красносельская (10 мин. 🚶)
Москва, Спартаковский переулок, 2с1
Лофт-квартал «Платформа»
Тип: Офисы
Площадь: 250.00 м2
Отделка:выполнена стандартная офисная отделка
710 000 в месяц
34 080 в год за м2
Позвонить Подробнее
Полянка (5 мин. 🚶)
Москва, улица Большая Якиманка, 17/2с1
Бизнес центр "улица Большая Якиманка, 17/2с1"
Тип: Офисы
Площадь: 272.10 м2
Отделка:выполнена стандартная офисная отделка
1 043 050 в месяц
46 000 в год за м2
Позвонить Подробнее
Маяковская (10 мин. 🚶)
Закрытая продажа #36702
Тип: Офисы
Площадь: 270.10 м2
Отделка:отделка в стиле Loft
1 043 486 в месяц
46 360 в год за м2
Позвонить Подробнее
Динамо (5 мин. 🚶)
Москва, Ленинградский проспект, 31Ас1
МФК "МонАрх"
Тип: Офисы
Площадь: 246.00 м2
Отделка:отделка арендатора
1 000 400 в месяц
48 800 в год за м2
Позвонить Подробнее
Сухаревская (1 мин. 🚶)
Москва, Малая Сухаревская площадь, 12
ТОЦ «Садовая Галерея»
Тип: Офисы
Площадь: 240.51 м2
Отделка:выполнена высококачественная отделка
1 833 889 в месяц
91 500 в год за м2
Позвонить Подробнее
Алексеевская (10 мин. 🚶)
Москва, улица Годовикова, 9с31
Бизнес-центр «Калибр» с31
Тип: Офисы
Площадь: 280.20 м2
Отделка:выполнена стандартная офисная отделка
521 312 в месяц
22 326 в год за м2
Позвонить Подробнее
Боровское шоссе (17 мин. 🚗)
Москва, Инновационный центр Сколково, улица Нобеля, 1
Бизнес-Центр ТЕХНОПАРК. "Квартал Менделеева"
Тип: Офисы
Площадь: 289.60 м2
Отделка:выполнена стандартная офисная отделка
663 667 в месяц
27 500 в год за м2
Позвонить Подробнее
Динамо (10 мин. 🚶)
Москва, Ленинградский проспект, 36с41
Бизнес-центр "MULTISPACE"
Тип: Офисы
Площадь: 251.00 м2
Отделка:выполнена высококачественная отделка
3 330 600 в месяц
159 232 в год за м2
Позвонить Подробнее
Тульская (17 мин. 🚗)
Москва, Новоданиловская набережная, 6к1
Бизнес-центр «Данилов Плаза»
Тип: Офисы
Площадь: 286.00 м2
Отделка:выполнена стандартная офисная отделка
858 000 в месяц
36 000 в год за м2
Позвонить Подробнее
Арбатская (Филевская) Арбатская (Арбатско-Покровская) (3 мин. 🚶)
Москва, Улица Арбат, 10
Торгово-офисный комплекс "Midland Plaza"
Тип: Офисы
Площадь: 254.00 м2
Отделка:выполнена стандартная офисная отделка
1 475 000 в месяц
69 685 в год за м2
Позвонить Подробнее
Первомайская (12 мин. 🚶)
Москва, 5-я Парковая улица, 42
Жилое здание "5-я Парковая улица, 42"
Тип: Офисы
Площадь: 286.50 м2
Отделка:выполнена стандартная офисная отделка
700 000 в месяц
29 319 в год за м2
Позвонить Подробнее
Бауманская (5 мин. 🚶)
Москва, Старокирочный переулок, 2
Административное здание "Старокирочный переулок, 2"
Тип: Офисы
Площадь: 705.00 м2
Отделка:отделка в стиле Loft
1 900 000 в месяц
32 340 в год за м2
Позвонить Подробнее
Краснопресненская (5 мин. 🚶)
Москва, Большая Грузинская улица, 12с2
Бизнес-центр «Николаевский»
Тип: Офисы
Площадь: 969.30 м2
Отделка:выполнена стандартная офисная отделка
2 600 000 в месяц
32 188 в год за м2
Позвонить Подробнее
Полежаевская (9 мин. 🚗)
Москва, 4-я Магистральная улица, 11с2
Бизнес-центр «Магистраль»
Тип: Офисы
Площадь: 320.00 м2
Отделка:выполнена стандартная офисная отделка
880 000 в месяц
33 000 в год за м2
Позвонить Подробнее
Марьина Роща (11 мин. 🚶)
Москва, Октябрьская улица, 80
Административное здание «Октябрьская 80»
Тип: Офисы
Площадь: 313.50 м2
Отделка:отделка арендатора
782 500 в месяц
29 952 в год за м2
Позвонить Подробнее
Марьина Роща (11 мин. 🚶)
Москва, Октябрьская улица, 80с1
Административное здание "Октябрьская улица, 80с1"
Тип: Офисы
Площадь: 566.00 м2
Отделка:отделка арендатора
1 415 000 в месяц
30 000 в год за м2
Позвонить Подробнее
Марьина Роща (11 мин. 🚶)
Москва, Октябрьская улица, 80с3
Административное здание "Октябрьская улица, 80с3"
Тип: Офисы
Площадь: 761.00 м2
Отделка:отделка арендатора
1 902 500 в месяц
30 000 в год за м2
Позвонить Подробнее
Белорусская (11 мин. 🚶)
Москва, Лесная улица, 43
Бизнес-центр «Лесная 43»
Тип: Офисы
Площадь: 128.10 м2
Отделка:качественная отделка
320 000 в месяц
29 977 в год за м2
Позвонить Подробнее
Боровское шоссе (17 мин. 🚗)
Москва, Инновационный центр Сколково, улица Нобеля, 5
Бизнес-Центр ТЕХНОПАРК. "Квартал Менделеева"
Тип: Офисы
Площадь: 682.55 м2
Отделка:выполнена стандартная офисная отделка
1 564 177 в месяц
27 500 в год за м2
Позвонить Подробнее
Боровское шоссе (17 мин. 🚗)
Москва, Инновационный центр Сколково, улица Нобеля, 5
Бизнес-Центр ТЕХНОПАРК. "Квартал Менделеева"
Тип: Офисы
Площадь: 404.59 м2
Отделка:выполнена стандартная офисная отделка
927 185 в месяц
27 500 в год за м2
Позвонить Подробнее
Боровское шоссе (17 мин. 🚗)
Москва, Инновационный центр Сколково, улица Нобеля, 1
Бизнес-Центр ТЕХНОПАРК. "Квартал Менделеева"
Тип: Офисы
Площадь: 873.77 м2
Отделка:выполнена стандартная офисная отделка
2 002 390 в месяц
27 500 в год за м2
Позвонить Подробнее
Боровское шоссе (17 мин. 🚗)
Москва, Инновационный центр Сколково, улица Нобеля, 1
Бизнес-Центр ТЕХНОПАРК. "Квартал Менделеева"
Тип: Офисы
Площадь: 1461.00 м2
Отделка:выполнена стандартная офисная отделка
3 348 125 в месяц
27 500 в год за м2
Позвонить Подробнее
Боровское шоссе (17 мин. 🚗)
Москва, Инновационный центр Сколково, улица Нобеля, 1
Бизнес-Центр ТЕХНОПАРК. "Квартал Менделеева"
Тип: Офисы
Площадь: 289.60 м2
Отделка:выполнена стандартная офисная отделка
663 667 в месяц
27 500 в год за м2
Позвонить Подробнее
Марьина Роща (11 мин. 🚶)
Москва, Октябрьская улица, 80
Административное здание «Октябрьская 80»
Тип: Офисы
Площадь: 313.50 м2
Отделка:отделка арендатора
782 500 в месяц
29 952 в год за м2
Позвонить Подробнее
Марьина Роща (11 мин. 🚶)
Москва, Октябрьская улица, 80с1
Административное здание "Октябрьская улица, 80с1"
Тип: Офисы
Площадь: 566.00 м2
Отделка:отделка арендатора
1 415 000 в месяц
30 000 в год за м2
Позвонить Подробнее
Марьина Роща (11 мин. 🚶)
Москва, Октябрьская улица, 80с3
Административное здание "Октябрьская улица, 80с3"
Тип: Офисы
Площадь: 761.00 м2
Отделка:отделка арендатора
1 902 500 в месяц
30 000 в год за м2
Позвонить Подробнее
Марьина Роща (12 мин. 🚶)
Москва, Полковая улица, 3
Бизнес-центр «Офис-парк Шереметьевский»
Тип: Офисы
Площадь: 830.00 м2
Отделка:выполнена стандартная офисная отделка
1 798 333 в месяц
26 000 в год за м2
Позвонить Подробнее
Марьина Роща (14 мин. 🚶)
Москва, Улица Сущёвский Вал, 18
Бизнес-центр «NOVO» (ново)
Тип: Офисы
Площадь: 1312.00 м2
Отделка:выполнена высококачественная отделка
6 560 000 в месяц
60 000 в год за м2
Позвонить Подробнее
Марьина Роща (12 мин. 🚶)
Москва, Полковая улица, 3
Бизнес-центр «Офис-парк Шереметьевский»
Тип: Офисы
Площадь: 600.00 м2
Отделка:выполнена стандартная офисная отделка
1 300 000 в месяц
26 000 в год за м2
Позвонить Подробнее
Марьина Роща (13 мин. 🚶)
Москва, улица Сущёвский Вал, 16с3
Бизнес-парк «Минаевский»
Тип: Офисы
Площадь: 264.00 м2
Отделка:выполнена стандартная офисная отделка
575 000 в месяц
26 136 в год за м2
Позвонить Подробнее
Марьина Роща (14 мин. 🚶)
Москва, Улица Сущёвский Вал, 18
Бизнес-центр «NOVO» (ново)
Тип: Офисы
Площадь: 1495.00 м2
Отделка:качественная отделка
6 852 084 в месяц
55 000 в год за м2
Позвонить Подробнее
Марьина Роща (14 мин. 🚶)
Москва, Улица Сущёвский Вал, 18
Бизнес-центр «NOVO» (ново)
Тип: Офисы
Площадь: 500.00 м2
Отделка:качественная отделка
2 375 000 в месяц
57 000 в год за м2
Позвонить Подробнее
Марьина Роща (14 мин. 🚶)
Москва, Улица Сущёвский Вал, 18
Бизнес-центр «NOVO» (ново)
Тип: Офисы
Площадь: 1497.00 м2
Отделка:выполнена стандартная офисная отделка
5 613 750 в месяц
45 000 в год за м2
Позвонить Подробнее
Марьина Роща (14 мин. 🚶)
Москва, Улица Сущёвский Вал, 18
Бизнес-центр «NOVO» (ново)
Тип: Офисы
Площадь: 1300.00 м2
Отделка:качественная отделка
5 958 334 в месяц
55 000 в год за м2
Позвонить Подробнее