Продажа офиса БЦ "STONE Дмитровская"

Продажа офиса БЦ Продажа офиса БЦ Продажа офиса БЦ
Продажа офиса БЦ Продажа офиса БЦ Продажа офиса БЦ
Москва, Дмитровский проезд, вл1Г
Позвоните по телефону +7 495 230-28-26, либо оставьте заявку на просмотр прямо сейчас и узнайте условия специального предложения по объекту.
загрузка карты...
Капина Владлена Викторовна

Объект ведет консультант:

Капина Владлена Викторовна

Общие
ID 60462
Тип сделки Продажа
Площадь 383.50
Площадь всего 50000.00
Тип объекта Бизнес-центр
Класс здания A
Этаж 16
Всего этажей в здании 23
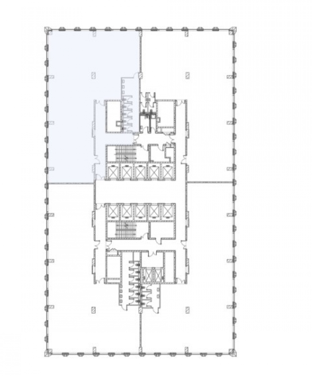
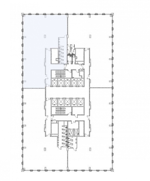
Метраж по этажам
Информация об объекте
Состояние объекта рабочее
Состояние блока Shell and Core
Планировка Смешанная
Перекрытия Железобетонные
Нюансы Новостройка
Торговая недвижимость
Линия домов 1 линия
Возможности Витрины,Место для рекламы,Проходное место,Проездное место
Коммерческие условия
За все 174 109 000 ₽
За м 2 454 000 ₽
Тип собственника Юридическое лицо

Описание объекта
Продается офисное помещение на 17 этаже, площадью 383.5 м2. в новом бизнес-центре класса А STONE Дмитровская: 3 мин. пешком от метро "Дмитровская" . Новый бизнес-центр класса А STONE Дмитровская реализуется совместно с Мэрией г. Москвы в рамках программы комплексного развития территорий и станет первым качественным офисным объектом в сложившемся районе у станции метро «Дмитровская». Объект представляет собой 23-этажную офисную башню, где в широкой линейке на продажу представлены уникальные для класса А небольшие офисные блоки от 42 кв. м и видовые этажи. Общая площадь бизнес-центра составит 49 тыс. кв. м.

В бизнес-центре предусмотрен расширенный инфраструктурный блок, в котором будут представлены: торговые помещения, кафе, рестораны, столовая для сотрудников, аптеки, банкоматы. Территория бизнес-центра будет благоустроена и открыта для жителей района. Для резидентов предусмотрен подземный паркинг.

Планировки офисных этажей соответствуют требованиям функционального офиса: глубина помещений — 8-10 м, высота потолков — 3,65 м. Окна в пол обеспечат оптимальный уровень инсоляции и предусматривают возможность естественного проветривания.

Готовность 2027

Нужна консультация по покупке или продаже офиса?

Наши специалисты подберут для вас самые выгодные варианты для долгосрочного инвестирования,
помогут в сопровождении и сделки, проверят все юридические вопросы касаемо приобретения недвижимости.

* Нажимая на кнопку «Отправить», Вы даете согласие на обработку персональных данных в соответствии с Политикой конфиденциальности

Похожие объекты

Зорге (9 мин. 🚶)
Москва, Северный административный округ, Хорошёвский район, жилой комплекс Зорге 9
ЖК "Зорге 9"
Тип: Офисы
Площадь: 354.70 м2
Отделка:качественная отделка
450 433 530 за все
1 269 900 за м2
Позвонить Подробнее
Бульвар Рокоссовского (5 мин. 🚶)
Москва, Тагильская улица, 4А
Бизнес-центр "AFI2B Тагильская"
Тип: Офисы
Площадь: 398.81 м2
Отделка:помещение без отделки
121 146 359 за все
303 770 за м2
Позвонить Подробнее
Братиславская (4 мин. 🚶)
Москва, улица Перерва, 54
Жилое здание "Перерва, 54"
Тип: Офисы
Площадь: 345.00 м2
Отделка:выполнена стандартная офисная отделка
85 000 000 за все
246 377 за м2
Позвонить Подробнее
Спортивная (12 мин. 🚶)
Москва, Большой Саввинский переулок, 12с3
Особняк "Б. Саввинский пер. 12с3"
Тип: Офисы
Площадь: 379.00 м2
290 000 000 за все
765 172 за м2
Позвонить Подробнее
Нижегородская (10 мин. 🚶)
Москва, шоссе Фрезер, 19с2
Level work (Левел Ворк) Нижегородская
Тип: Офисы
Площадь: 390.60 м2
Отделка:Shell and Core
132 502 857 за все
339 229 за м2
Позвонить Подробнее
Марьина Роща (10 мин. 🚶)
Москва, 3-й проезд Марьиной Рощи, 40с1
Офисное здание «3-й Марьиной Рощи 40с1»
Тип: Офисы
Площадь: 370.50 м2
Отделка:отделка в стиле Loft
105 349 500 за все
284 344 за м2
Позвонить Подробнее
Шелепиха (10 мин. 🚶)
Москва, Заречная улица, вл6/1
Бизнес - центр "Эйлер"
Тип: Офисы
Площадь: 364.60 м2
Отделка:Shell and Core
114 780 000 за все
314 811 за м2
Позвонить Подробнее
Красносельская (5 мин. 🚶)
Москва, Верхняя Красносельская улица, 17Ас1Б
БЦ "Верхняя Красносельская улица, 17Ас1Б"
Тип: Офисы
Площадь: 388.00 м2
Отделка:выполнена стандартная офисная отделка
139 000 000 за все
358 247 за м2
Позвонить Подробнее
Планерная (23 мин. 🚗)
Московская область, Химки, Куркинское шоссе, с2
Бизнес-центр «Aero City (Аэро Сити)»
Тип: Офисы
Площадь: 408.10 м2
Отделка:Shell and Core
58 093 035 за все
142 350 за м2
Позвонить Подробнее
Автозаводская (8 мин. 🚶)
Москва, улица Ленинская Слобода, 19с6
Бизнес-центр «Омега Плаза 6»
Тип: Офисы
Площадь: 344.70 м2
Отделка:качественная отделка
102 927 420 за все
298 600 за м2
Позвонить Подробнее
Бауманская (14 мин. 🚶)
Москва, улица Фридриха Энгельса, 46с7
Лофт - квартал "LOFT46"
Тип: Офисы
Площадь: 416.00 м2
Отделка:отделка в стиле Loft
140 000 000 за все
336 538 за м2
Позвонить Подробнее
Технопарк (3 мин. 🚶)
Москва, Проектируемый проезд № 4062, 6с2
Бизнес-центр «Порт Плаза»
Тип: Офисы
Площадь: 373.20 м2
Отделка:отделка арендатора
128 194 200 за все
343 500 за м2
Позвонить Подробнее
Деловой центр Деловой центр (МЦК) (2 мин. 🚶)
Москва, Пресненская набережная, 6с2
Москва-Сити "Башня Империя"
Тип: Офисы
Площадь: 196.00 м2
Отделка:качественная отделка
176 400 000 за все
900 000 за м2
Позвонить Подробнее
Деловой центр Деловой центр (МЦК) (2 мин. 🚶)
Москва, Пресненская набережная, 6с2
Москва-Сити "Башня Империя"
Тип: Офисы
Площадь: 217.00 м2
Отделка:выполнена высококачественная отделка
177 940 000 за все
820 000 за м2
Позвонить Подробнее
(8 мин. 🚶)
Москва, Камергерский переулок, 4с1
Комплекс "Камергер"
Тип: Офисы
Площадь: 111.30 м2
Отделка:помещение без отделки
189 210 000 за все
1 700 000 за м2
Позвонить Подробнее
Деловой центр Деловой центр (МЦК) (2 мин. 🚶)
Москва, Пресненская набережная, 6с2
Москва-Сити "Башня Империя"
Тип: Офисы
Площадь: 221.00 м2
Отделка:качественная отделка
181 220 000 за все
820 000 за м2
Позвонить Подробнее
Красные Ворота (5 мин. 🚶)
Москва, Хомутовский тупик, 5-7с13
Особняк "Хомутовский тупик, 5-7с13"
Тип: Офисы
Площадь: 1066.00 м2
Отделка:качественная отделка
189 000 000 за все
177 298 за м2
Позвонить Подробнее
Марьина Роща (9 мин. 🚶)
Москва, 2-я Ямская улица, 9
UPSIDE (Апсайд) Ямская
Тип: Офисы
Площадь: 332.80 м2
Отделка:помещение без отделки
166 599 680 за все
500 600 за м2
Позвонить Подробнее
Кунцевская (10 мин. 🚶)
Москва, Рублёвское шоссе, 21
Бизнес-центр "Upside Кунцево"
Тип: Офисы
Площадь: 226.70 м2
Отделка:Shell and Core
174 697 460 за все
770 611 за м2
Позвонить Подробнее
Тульская (3 мин. 🚶)
Москва, Холодильный переулок, 3к1
БЦ "Башня Рябов"
Тип: Офисы
Площадь: 341.50 м2
Отделка:Shell and Core
170 750 000 за все
500 000 за м2
Позвонить Подробнее
Тульская (3 мин. 🚶)
Москва, Холодильный переулок, 3к1
БЦ "Башня Рябов"
Тип: Офисы
Площадь: 317.30 м2
Отделка:Shell and Core
158 650 000 за все
500 000 за м2
Позвонить Подробнее
Китай-город (10 мин. 🚶)
Москва, Хохловский переулок, 13с1
БЦ "Нега"
Тип: Офисы
Площадь: 282.60 м2
Отделка:выполнена высококачественная отделка
183 690 000 за все
650 000 за м2
Позвонить Подробнее
Павелецкая (12 мин. 🚶)
Москва, Летниковская улица, 10с2
Бизнес-центр «Святогор-2»
Тип: Офисы
Площадь: 503.50 м2
Отделка:выполнена стандартная офисная отделка
163 637 500 за все
325 000 за м2
Позвонить Подробнее
Павелецкая (12 мин. 🚶)
Москва, Летниковская улица, 10с2
Бизнес-центр «Святогор-2»
Тип: Офисы
Площадь: 554.20 м2
Отделка:выполнена стандартная офисная отделка
180 115 000 за все
325 000 за м2
Позвонить Подробнее
Дмитровская (10 мин. 🚶)
Москва, Большая Новодмитровская улица, 23с2
Бизнес-центр «Большая Новодмитровская 23 С2»
Тип: Офисы
Площадь: 28.70 м2
Отделка:выполнена стандартная офисная отделка
14 039 663 за все
489 187 за м2
Позвонить Подробнее
Дмитровская (13 мин. 🚶)
Москва, Складочная улица, 1с5
БЦ "Гульден"
Тип: Офисы
Площадь: 16.50 м2
Отделка:требуется косметический ремонт
6 270 000 за все
380 000 за м2
Позвонить Подробнее
Дмитровская (7 мин. 🚗)
Москва, 4-я улица 8 Марта, 6А
Бизнес-центр «Аэропорт»
Тип: Офисы
Площадь: 890.00 м2
Отделка:выполнена стандартная офисная отделка
231 400 000 за все
260 000 за м2
Позвонить Подробнее
Дмитровская (3 мин. 🚶)
Москва, Дмитровский проезд, вл1Г
БЦ "STONE Дмитровская"
Тип: Офисы
Площадь: 136.00 м2
Отделка:Shell and Core
61 608 000 за все
453 000 за м2
Позвонить Подробнее
Дмитровская (3 мин. 🚶)
Москва, Дмитровский проезд, вл1Г
БЦ "STONE Дмитровская"
Тип: Офисы
Площадь: 191.90 м2
Отделка:Shell and Core
86 930 700 за все
453 000 за м2
Позвонить Подробнее
Дмитровская (3 мин. 🚶)
Москва, Дмитровский проезд, вл1Г
БЦ "STONE Дмитровская"
Тип: Офисы
Площадь: 790.30 м2
Отделка:Shell and Core
364 328 300 за все
461 000 за м2
Позвонить Подробнее
Дмитровская (3 мин. 🚶)
Москва, Дмитровский проезд, вл1Г
БЦ "STONE Дмитровская"
Тип: Офисы
Площадь: 1611.10 м2
Отделка:Shell and Core
745 939 300 за все
463 000 за м2
Позвонить Подробнее
Дмитровская (3 мин. 🚶)
Москва, Дмитровский проезд, вл1Г
БЦ "STONE Дмитровская"
Тип: Офисы
Площадь: 336.10 м2
Отделка:Shell and Core
152 589 400 за все
454 000 за м2
Позвонить Подробнее
Дмитровская (8 мин. 🚶)
Москва, Новодмитровская улица, 2к1
Бизнес-центр «Савеловский Сити»
Тип: Офисы
Площадь: 713.75 м2
Отделка:качественная отделка
228 400 000 за все
320 000 за м2
Позвонить Подробнее
Дмитровская (4 мин. 🚶)
Москва, Новодмитровская улица, 1с1
БЦ Хлебозавод №9
Тип: Офисы
Площадь: 235.30 м2
Отделка:выполнена стандартная офисная отделка
129 415 000 за все
550 000 за м2
Позвонить Подробнее
Дмитровская (4 мин. 🚶)
Москва, Новодмитровская улица, 1с1
БЦ Хлебозавод №9
Тип: Офисы
Площадь: 259.90 м2
Отделка:выполнена стандартная офисная отделка
142 945 000 за все
550 000 за м2
Позвонить Подробнее
Дмитровская (4 мин. 🚶)
Москва, Новодмитровская улица, 1с1
БЦ Хлебозавод №9
Тип: Офисы
Площадь: 322.40 м2
Отделка:выполнена стандартная офисная отделка
177 320 000 за все
550 000 за м2
Позвонить Подробнее