Аренда торгового помещения Жилой дом "Ленинградский пр-т 71кГ"

Аренда торгового помещения Жилой дом Аренда торгового помещения Жилой дом Аренда торгового помещения Жилой дом
Аренда торгового помещения Жилой дом Аренда торгового помещения Жилой дом Аренда торгового помещения Жилой дом
Москва, Ленинградский проспект, 71кГ
Позвоните по телефону +7 495 230-28-26, либо оставьте заявку на просмотр прямо сейчас и узнайте условия специального предложения по объекту.
загрузка карты...
Аренда в год за м2 92 061 ₽
Аренда в месяц 1 150 000 ₽
Схема сделки прямая аренда
Капина Владлена Викторовна

Объект ведет консультант:

Капина Владлена Викторовна

Общие
ID 60528
Тип сделки Аренда
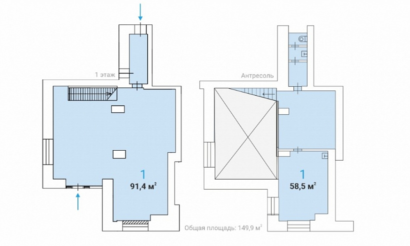
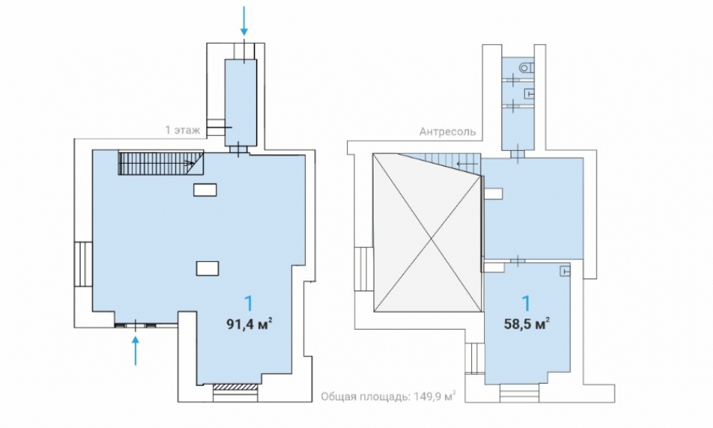
Площадь 149.90
Площадь всего 9785.00
Тип объекта Жилое здание
Этаж 1
Всего этажей в здании 9
Метраж по этажам
Этаж: 1 - 91.4 м2
Этаж: антресоль - 58.5 м2
Информация об объекте
Состояние объекта рабочее
Состояние блока отделка арендатора
Планировка Открытая
Перекрытия Железобетонные
Нюансы Отдельный вход
Торговая недвижимость
Линия домов 1 линия
Возможности Витрины,Место для рекламы,Проходное место,Проездное место
Коммерческие условия
Аренда в год за м2 92 061 ₽
Аренда в месяц 1 150 000 ₽
Схема сделки прямая аренда
Тип собственника Юридическое лицо

Описание объекта
Предлагается в аренду помещение на Ленинградском проспекте, САО, г. Москва. Шаговая доступность от ст. метро «Сокол» — менее 1 минуты пешком. Отличная пешеходная и транспортная доступность.  В окружении находятся жилой комплекс «Соколиное гнездо», бизнес-центр «Алкон», торговый центр «Метромаркет», ВУЗ «Университет Синергия».

Арендная плата в месяц: коммунальные платежи и электричество оплачиваются арендатором отдельно
Срок аренды: долгосрочный договор
Размер ежегодной индексации, арендных каникул и страхового депозита — обсуждаются

Отлично подойдёт под любой вид деятельности: торговое помещение, магазин, оптика, студия красоты, магазин косметики, офис продаж, кофейня и др.

Нужна консультация по подбору торговых площадей для аренды?

Наши специалисты подберут для вас самые выгодные варианты для долгосрочного инвестирования,
помогут в сопровождении и сделки, проверят все юридические вопросы касаемо приобретения недвижимости.

* Нажимая на кнопку «Отправить», Вы даете согласие на обработку персональных данных в соответствии с Политикой конфиденциальности

Похожие объекты

Крестьянская Застава (1 мин. 🚶)
Москва, Динамовская улица, 1А
Деловой центр у метро
Тип: Торговое помещение
Площадь: 136.10 м2
Мощность:15 кВт
500 000 в месяц
44 085 в год за м2
Позвонить Подробнее
Павелецкая (2 мин. 🚶)
Москва, Новокузнецкая улица, 39
Административное здание «Новокузнецкая 39»
Тип: Торговое помещение
Площадь: 144.20 м2
Мощность:95 кВт
1 500 000 в месяц
124 827 в год за м2
Позвонить Подробнее
Коломенская (1 мин. 🚶)
Москва, проспект Андропова, 23
ТЦ "Коломенский"
Тип: Торговое помещение
Площадь: 140.10 м2
Мощность:15 кВт
700 500 в месяц
60 000 в год за м2
Позвонить Подробнее
Ховрино (25 мин. 🚗)
Москва, Ленинградское шоссе, 228к6
ЖК «1-й Ленинградский», к. 1
Тип: Торговое помещение
Площадь: 138.10 м2
Мощность:25 кВт
345 250 в месяц
30 000 в год за м2
Позвонить Подробнее
Щёлковская (16 мин. 🚗)
Москва, Хабаровская улица, 8
Жилое здание "Хабаровская улица, 8"
Тип: Торговое помещение
Площадь: 161.10 м2
Мощность:30 кВт
600 000 в месяц
44 693 в год за м2
Позвонить Подробнее
Курская (2 мин. 🚶)
Москва, улица Земляной Вал, 23с1
Жилое здание " Земляной Вал, 23с1"
Тип: Торговое помещение
Площадь: 138.90 м2
892 500 в месяц
77 106 в год за м2
Позвонить Подробнее
Полянка (7 мин. 🚶)
Москва, Улица Большая Полянка, 44
ЖК «Большая Полянка 44»
Тип: Торговое помещение
Площадь: 136.40 м2
Мощность:67 кВт
950 000 в месяц
83 578 в год за м2
Позвонить Подробнее
Динамо (7 мин. 🚶)
Москва, Ленинградский проспект, 29
Жилой комплекс: Царская площадь
Тип: Торговое помещение
Площадь: 140.90 м2
1 000 000 в месяц
85 167 в год за м2
Позвонить Подробнее
Профсоюзная (17 мин. 🚶)
Москва, Новочерёмушкинская улица, 27
Жилой дом "Новочерёмушкинская 27"
Тип: Торговое помещение
Площадь: 145.80 м2
Мощность:29 кВт
510 000 в месяц
41 975 в год за м2
Позвонить Подробнее
Тургеневская (4 мин. 🚶)
Москва, Мясницкая улица, 13с20
Административное здание "Мясницкая улица, 13с20"
Тип: Торговое помещение
Площадь: 162.50 м2
1 500 000 в месяц
110 769 в год за м2
Позвонить Подробнее
Чистые пруды (10 мин. 🚶)
Москва, Улица Покровка, 21-23/25с1
Административное здание «Покровка 21-23/25 с1»
Тип: Торговое помещение
Площадь: 155.60 м2
Мощность:75 кВт
1 670 000 в месяц
128 792 в год за м2
Позвонить Подробнее
Добрынинская (9 мин. 🚶)
Москва, Большой Строченовский переулок, 9
ЖК "Резиденция Замоскворечье"
Тип: Торговое помещение
Площадь: 148.90 м2
Мощность:25 кВт
410 000 в месяц
33 042 в год за м2
Позвонить Подробнее
Перово (1 мин. 🚶)
Москва, Зелёный проспект, 19
Административное здание Зеленый проспект, 19
Тип: Торговое помещение
Площадь: 108.00 м2
Мощность:40 кВт
750 000 в месяц
83 333 в год за м2
Позвонить Подробнее
Деловой центр Деловой центр (МЦК) (7 мин. 🚶)
Москва, Пресненская набережная, 12
Москва-Сити «Башня Федерация»
Тип: Торговое помещение
Площадь: 24.70 м2
Мощность:70 кВт
195 871 в месяц
95 160 в год за м2
Позвонить Подробнее
Братиславская (9 мин. 🚶)
Москва, Люблинская улица, 153
ТЦ "Люблю Молл"
Тип: Торговое помещение
Площадь: 54.00 м2
378 000 в месяц
84 000 в год за м2
Позвонить Подробнее
Электрозаводская (9 мин. 🚶)
Москва, Большая Почтовая улица, 30с1к10
ЖК "Резиденции Архитекторов"
Тип: Торговое помещение
Площадь: 82.00 м2
656 000 в месяц
96 000 в год за м2
Позвонить Подробнее
Деловой центр Деловой центр (МЦК) (7 мин. 🚶)
Москва, Пресненская набережная, 12
Москва-Сити «Башня Федерация»
Тип: Торговое помещение
Площадь: 52.00 м2
Мощность:40 кВт
414 739 в месяц
95 709 в год за м2
Позвонить Подробнее
Деловой центр Деловой центр (МЦК) (7 мин. 🚶)
Москва, Пресненская набережная, 12
Москва-Сити «Башня Федерация»
Тип: Торговое помещение
Площадь: 44.50 м2
Мощность:50 кВт
325 740 в месяц
87 840 в год за м2
Позвонить Подробнее
Деловой центр Деловой центр (МЦК) (7 мин. 🚶)
Москва, Пресненская набережная, 12
Москва-Сити «Башня Федерация»
Тип: Торговое помещение
Площадь: 92.00 м2
Мощность:70 кВт
673 440 в месяц
87 840 в год за м2
Позвонить Подробнее
Ломоносовский проспект (7 мин. 🚶)
Москва, Мичуринский проспект, 7к1
ЖК Шуваловский
Тип: Торговое помещение
Площадь: 94.00 м2
Мощность:78 кВт
750 000 в месяц
95 745 в год за м2
Позвонить Подробнее
Полянка (7 мин. 🚶)
Москва, Улица Большая Полянка, 44
ЖК «Большая Полянка 44»
Тип: Торговое помещение
Площадь: 136.40 м2
Мощность:67 кВт
950 000 в месяц
83 578 в год за м2
Позвонить Подробнее
Динамо (7 мин. 🚶)
Москва, Ленинградский проспект, 29
Жилой комплекс: Царская площадь
Тип: Торговое помещение
Площадь: 140.90 м2
1 000 000 в месяц
85 167 в год за м2
Позвонить Подробнее
Фрунзенская (10 мин. 🚶)
Москва, улица Ефремова, 10с1
ЖК "САДОВЫЕ КВАРТАЛЫ"
Тип: Торговое помещение
Площадь: 430.00 м2
Мощность:200 кВт
3 000 000 в месяц
83 721 в год за м2
Позвонить Подробнее
Китай-город (1 мин. 🚶)
Москва, улица Солянка, 2/6с1
Административное здание "Солянка, 2/6с1"
Тип: Торговое помещение
Площадь: 209.00 м2
1 450 000 в месяц
83 254 в год за м2
Позвонить Подробнее
Сокол Сокольники Соколиная Гора (3 мин. 🚶)
Москва, Ленинградский проспект, 69с1
Жилое здание "Ленинградский пр-т 69"
Тип: Торговое помещение
Площадь: 300.00 м2
Мощность:100 кВт
700 000 в месяц
28 000 в год за м2
Позвонить Подробнее
Сокол Сокольники Соколиная Гора (3 мин. 🚶)
Москва, Ленинградский проспект, 69с1
Жилое здание "Ленинградский пр-т 69"
Тип: Торговое помещение
Площадь: 250.00 м2
Мощность:100 кВт
550 000 в месяц
26 400 в год за м2
Позвонить Подробнее
Сокол Сокольники Соколиная Гора (3 мин. 🚶)
Москва, Ленинградский проспект, 69с1
Жилое здание "Ленинградский пр-т 69"
Тип: Торговое помещение
Площадь: 50.00 м2
Мощность:100 кВт
150 000 в месяц
36 000 в год за м2
Позвонить Подробнее
Сокол Сокольники Соколиная Гора (17 мин. 🚶)
Москва, Волоколамское шоссе, 13
Жилое здание "Волоколамское шоссе, 13"
Тип: Торговое помещение
Площадь: 72.40 м2
Мощность:30 кВт
300 000 в месяц
49 724 в год за м2
Позвонить Подробнее
Сокольники (10 мин. 🚶)
Москва, улица Матросская Тишина, 12
Здание в ЖК "Ренессанс"
Тип: Торговое помещение
Площадь: 3127.00 м2
2 489 092 в месяц
9 552 в год за м2
Позвонить Подробнее
Сокол Сокольники Соколиная Гора (7 мин. 🚶)
Москва, Ленинградский проспект, 77к4
Жилое здание "Ленинградский проспект, 77к4"
Тип: Торговое помещение
Площадь: 350.00 м2
1 500 000 в месяц
51 429 в год за м2
Позвонить Подробнее
Сокольники (13 мин. 🚶)
Москва, Рубцовско-Дворцовая улица, 4
Здание в ЖВ "Ренессанс"
Тип: Торговое помещение
Площадь: 1071.87 м2
2 679 675 в месяц
30 000 в год за м2
Позвонить Подробнее
Сокол Сокольники Соколиная Гора (15 мин. 🚶)
Закрытая продажа #40521
Тип: Торговое помещение
Площадь: 242.50 м2
807 000 в месяц
39 934 в год за м2
Позвонить Подробнее
Сокол Сокольники Соколиная Гора (8 мин. 🚶)
Москва, Ленинградский проспект, 80к17
Бизнес-центр «Социум Сокол»
Тип: Торговое помещение
Площадь: 516.90 м2
796 888 в месяц
18 500 в год за м2
Позвонить Подробнее