Продажа офиса Эмоушен

Продажа офиса Эмоушен Продажа офиса Эмоушен
Продажа офиса Эмоушен - превью Продажа офиса Эмоушен - превью
Москва, 2-й Силикатный проезд, вл8
Позвоните по телефону +7 495 230-28-26, либо оставьте заявку на просмотр прямо сейчас и узнайте условия специального предложения по объекту.
загрузка карты...
Кириченко Константин Юрьевич

Объект ведет консультант:

Кириченко Константин Юрьевич

Общие
ID 60855
Тип сделки Продажа
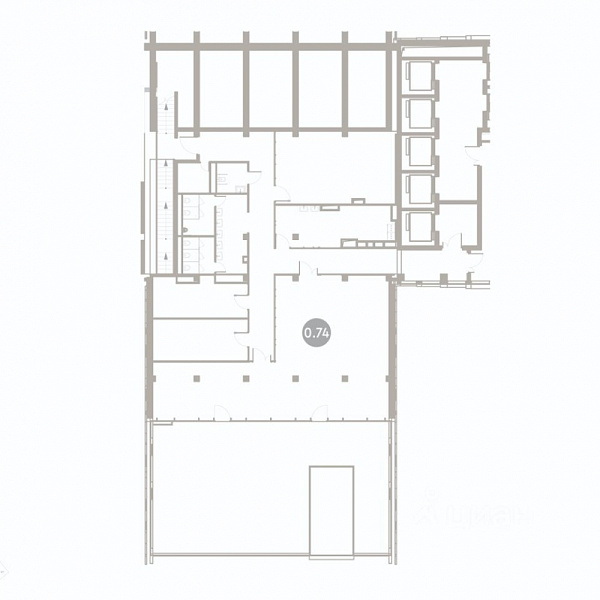
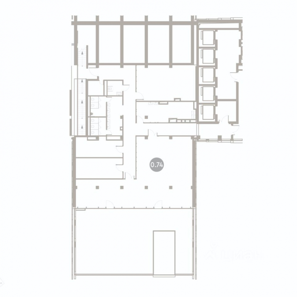
Площадь 145.90
Тип объекта Многофункциональный комплекс
Этаж 8
Всего этажей в здании 30
Метраж по этажам
Информация об объекте
Состояние объекта рабочее
Состояние блока Shell and Core
Планировка Смешанная
Перекрытия Железобетонные
Коммерческие условия
За все 67 843 500 ₽
За м 2 465 000 ₽

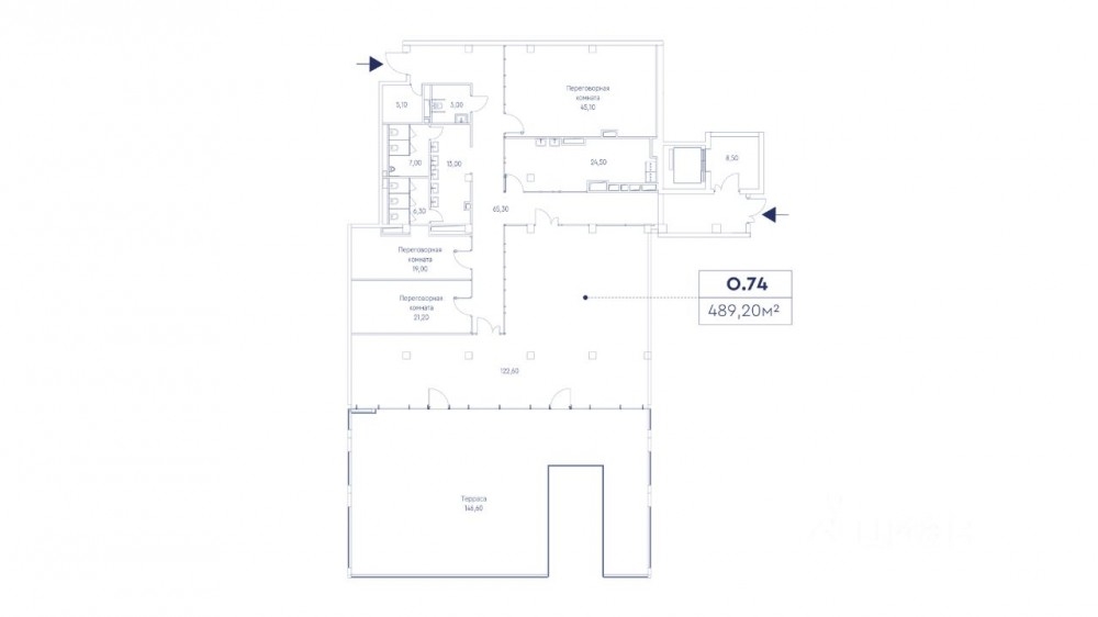
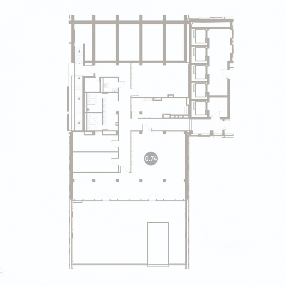
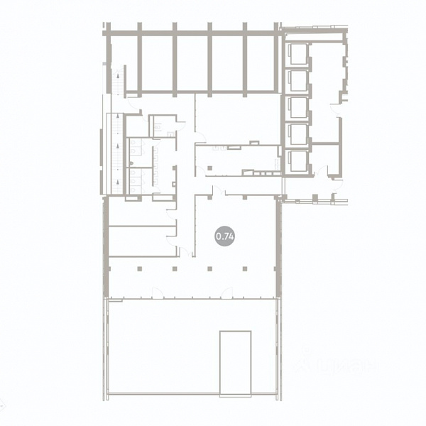
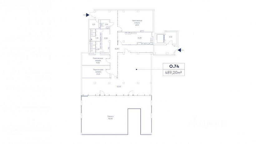
Описание объекта
Продается коммерческое помещение площадью 145,9 м² в ультрасовременном комплексе бизнес-класса  EMOTION от ГК ОСНОВА, расположенном в престижном районе Хорошёво-Мнёвники. Помещение находится на 8 этаже 2 корпуса, полностью отведенного под инфраструктуру комплекса. предлагает уникальную планировку.
Планировка позволяет выделить:
1. Отдельный кабинет руководства с персональным доступом.
2. Три просторные переговорные комнаты — для встреч с партнёрами, презентаций и стратегических совещаний
3. Зону приёма пищи — пространство для неформального общения и перерывов,
4. Зону раздевалки или архива — решение для хранения документов или личных вещей сотрудников.
5. Три санузла, включая персональный для руководителя — привилегия в современных офисах.
6. Одним из главных достоинств является приватная терраса, с обзором на захватывающий вид деловой активности Москвы.  Это пространство для вдохновения и проведения неформальных и корпоративных мероприятий.

ХАРАКТЕРИСТИКИ ПОМЕЩЕНИЯ:
- высота потолков  3,55 м
- собственная терраса
- 2 входа
- зона для прием пищи
- зона для раздевалки или хранения вещей (архив)
- 3 переговорные комнаты
- 2 санузла для сотрудников
- 1 санузел для индивидуального использования
- современные системы вентиляции, кондиционирования, пожаротушения, дымоудаления, отвечающие всем нормам действующего законодательства.
- 5 лифтов на этаже
- отделка Shell&Core

О ПРОЕКТЕ:
- уникальная современная архитектура от бюро KAMEN
- функциональный подземный паркинг и скоростные лифты
- современные материалы и инженерные системы
- панорамное остекление и высокие потолки
- авторское благоустройство, амфитеатр, прогулочные зоны
- панорамные виды на город и Москва-Сити
- собственный SPA-комплекс с бассейном
- рестораны, кафе и магазины

Нужна консультация по покупке или продаже офиса?

Наши специалисты подберут для вас самые выгодные варианты для долгосрочного инвестирования,
помогут в сопровождении и сделки, проверят все юридические вопросы касаемо приобретения недвижимости.

* Нажимая на кнопку «Отправить», Вы даете согласие на обработку персональных данных в соответствии с Политикой конфиденциальности

Похожие объекты

Нижегородская (10 мин. 🚶)
Москва, шоссе Фрезер, 19с2
Level work (Левел Ворк) Нижегородская
Тип: Офисы
Площадь: 147.60 м2
Отделка:Shell and Core
56 117 952 за все
380 203 за м2
Позвонить Подробнее
Озёрная (3 мин. 🚶)
Москва, Озёрная улица, 42с1
ЖК "Страна Озёрная"
Тип: Офисы
Площадь: 149.90 м2
Отделка:помещение без отделки
84 200 000 за все
561 708 за м2
Позвонить Подробнее
Деловой центр Деловой центр (МЦК) (2 мин. 🚶)
Москва, Пресненская набережная, 6с2
Москва-Сити "Башня Империя"
Тип: Офисы
Площадь: 153.00 м2
Отделка:выполнена высококачественная отделка
125 460 000 за все
820 000 за м2
Позвонить Подробнее
Кунцевская (18 мин. 🚗)
Москва, улица Петра Алексеева, 12с1
КутузовGRAD II (КутузовГрад II) МАНУФАКТУРА XIX
Тип: Офисы
Площадь: 142.70 м2
Отделка:Shell and Core
59 710 000 за все
418 430 за м2
Позвонить Подробнее
Кунцевская (18 мин. 🚗)
Москва, улица Петра Алексеева, 12с1
КутузовGRAD II (КутузовГрад II) МАНУФАКТУРА XIX
Тип: Офисы
Площадь: 158.30 м2
Отделка:Shell and Core
64 580 000 за все
407 960 за м2
Позвонить Подробнее
Боровское шоссе (17 мин. 🚗)
Москва, Инновационный центр Сколково, район Южный
Upside Tech в Сколково
Тип: Офисы
Площадь: 146.67 м2
Отделка:помещение без отделки
50 226 020 за все
342 442 за м2
Позвонить Подробнее
Марьина Роща (9 мин. 🚶)
Москва, 2-я Ямская улица, 9
UPSIDE (Апсайд) Ямская
Тип: Офисы
Площадь: 149.05 м2
Отделка:помещение без отделки
80 665 860 за все
541 200 за м2
Позвонить Подробнее
Марьина Роща (9 мин. 🚶)
Москва, 2-я Ямская улица, 9
UPSIDE (Апсайд) Ямская
Тип: Офисы
Площадь: 155.24 м2
Отделка:помещение без отделки
67 808 832 за все
436 800 за м2
Позвонить Подробнее
Озёрная (8 мин. 🚶)
Москва, Озёрная улица, 44Б
Бизнес-центр "ЛЭЙКС 2"
Тип: Офисы
Площадь: 152.60 м2
Отделка:выполнена стандартная офисная отделка
65 533 110 за все
429 444 за м2
Позвонить Подробнее
Селигерская (13 мин. 🚶)
Москва, Ильменский проезд, 13/8
Бизнес-центр ЛАВИН
Тип: Офисы
Площадь: 156.10 м2
Отделка:выполнена стандартная офисная отделка
54 229 140 за все
347 400 за м2
Позвонить Подробнее
Фонвизинская (6 мин. 🚶)
Москва, Огородный проезд, 20
Бизнес-центр UPSIDE (Апсайд) ОСТАНКИНО
Тип: Офисы
Площадь: 152.08 м2
Отделка:Shell and Core
59 128 704 за все
388 800 за м2
Позвонить Подробнее
ЦСКА (6 мин. 🚶)
Москва, Ходынский бульвар, 4/1
БЦ "AIR"
Тип: Офисы
Площадь: 139.20 м2
Отделка:Shell and Core
84 062 880 за все
603 900 за м2
Позвонить Подробнее
Нижегородская (10 мин. 🚶)
Москва, шоссе Фрезер, 19с2
Level work (Левел Ворк) Нижегородская
Тип: Офисы
Площадь: 165.70 м2
Отделка:Shell and Core
67 968 938 за все
410 193 за м2
Позвонить Подробнее
Кунцевская (18 мин. 🚗)
Москва, улица Петра Алексеева, 12с1
КутузовGRAD II (КутузовГрад II) МАНУФАКТУРА XIX
Тип: Офисы
Площадь: 158.30 м2
Отделка:Shell and Core
64 580 000 за все
407 960 за м2
Позвонить Подробнее
Марьина Роща (9 мин. 🚶)
Москва, 2-я Ямская улица, 9
UPSIDE (Апсайд) Ямская
Тип: Офисы
Площадь: 155.24 м2
Отделка:помещение без отделки
67 808 832 за все
436 800 за м2
Позвонить Подробнее
Марьина Роща (10 мин. 🚶)
Москва, 3-й проезд Марьиной Рощи, 40с1
Офисное здание «3-й Марьиной Рощи 40с1»
Тип: Офисы
Площадь: 236.30 м2
Отделка:отделка в стиле Loft
67 773 500 за все
286 811 за м2
Позвонить Подробнее
Озёрная (8 мин. 🚶)
Москва, Озёрная улица, 44Б
Бизнес-центр "ЛЭЙКС 2"
Тип: Офисы
Площадь: 152.60 м2
Отделка:выполнена стандартная офисная отделка
65 533 110 за все
429 444 за м2
Позвонить Подробнее
Селигерская (13 мин. 🚶)
Москва, Ильменский проезд, 13/8
Бизнес-центр ЛАВИН
Тип: Офисы
Площадь: 212.80 м2
Отделка:выполнена стандартная офисная отделка
73 628 800 за все
346 000 за м2
Позвонить Подробнее
Планерная (23 мин. 🚗)
Московская область, Химки, Куркинское шоссе, с2
Бизнес-центр «Aero City (Аэро Сити)»
Тип: Офисы
Площадь: 492.30 м2
Отделка:Shell and Core
67 568 175 за все
137 250 за м2
Позвонить Подробнее
Говорово (8 мин. 🚶)
Москва, Боровское шоссе, вл2
БЦ "MOUNT (МАУНТ)"
Тип: Офисы
Площадь: 291.10 м2
Отделка:помещение без отделки
72 883 928 за все
250 374 за м2
Позвонить Подробнее
Говорово (8 мин. 🚶)
Москва, Боровское шоссе, вл2
БЦ "MOUNT (МАУНТ)"
Тип: Офисы
Площадь: 287.90 м2
Отделка:помещение без отделки
70 271 508 за все
244 083 за м2
Позвонить Подробнее
Говорово (8 мин. 🚶)
Москва, Боровское шоссе, вл2
БЦ "MOUNT (МАУНТ)"
Тип: Офисы
Площадь: 245.10 м2
Отделка:помещение без отделки
61 132 928 за все
249 420 за м2
Позвонить Подробнее
Марьина Роща (10 мин. 🚶)
Москва, Складочная улица, 6
БЦ "GUSTAV" (Густав)
Тип: Офисы
Площадь: 169.10 м2
Отделка:Shell and Core
66 049 170 за все
390 592 за м2
Позвонить Подробнее
Марьина Роща (10 мин. 🚶)
Москва, Складочная улица, 6
БЦ "GUSTAV" (Густав)
Тип: Офисы
Площадь: 174.30 м2
Отделка:Shell and Core
71 019 100 за все
407 453 за м2
Позвонить Подробнее