Аренда торгового помещения Жилое здание "Садовая-Триумфальная улица, 12/14с1"

Аренда торгового помещения Жилое здание Аренда торгового помещения Жилое здание Аренда торгового помещения Жилое здание
Аренда торгового помещения Жилое здание Аренда торгового помещения Жилое здание Аренда торгового помещения Жилое здание
Москва, Садовая-Триумфальная улица, 12/14с1
Позвоните по телефону +7 495 230-28-26, либо оставьте заявку на просмотр прямо сейчас и узнайте условия специального предложения по объекту.
загрузка карты...
Аренда в год за м2 45 000 ₽
Аренда в месяц 1 398 750 ₽
Схема сделки прямая аренда
Первушина Марина Алексеевна

Объект ведет консультант:

Первушина Марина Алексеевна

Общие
ID 61137
Тип сделки Аренда
Площадь 373.00
Площадь всего 2598.00
Тип объекта Жилое здание
Этаж 1 - 2
Всего этажей в здании 17
Метраж по этажам
Информация об объекте
Состояние объекта рабочее
Состояние блока качественная отделка
Планировка Смешанная
Перекрытия Железобетонные
Парковка парковка отсутсвует
Нюансы Отдельный вход
Торговая недвижимость
Линия домов 1 линия
Возможности Витрины,Место для рекламы,Проходное место,Проездное место
Электр. мощность (кВт) 115
Коммерческие условия
Аренда в год за м2 45 000 ₽
Аренда в месяц 1 398 750 ₽
Схема сделки прямая аренда
Тип собственника Юридическое лицо

Описание объекта
Предлагаем к аренде помещение свободного назначения на Садовом кольце. До метро Маяковская пара минут пешком. Интенсивный пешеходный и автомобильный трафик.
Первая линия, витринные окна по фасаду.
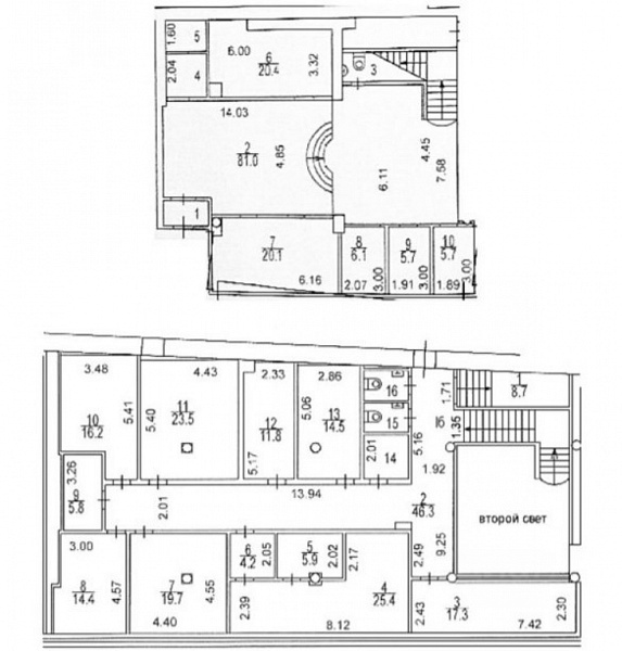
Двухуровневое помещение общей площадью 373м2 с потолками до 5,5м. На первом этаже входная зона и ресепшн, в общей сложности 11 кабинетов с мокрыми точками и 3 отдельных с/у. Качественный ремонт за выездом арендатора. Выделенная мощность 115квт.
Подойдет под медицинскую лицензию или офис.
Помещение свободно к заезду с конца октября.

Нужна консультация по подбору торговых площадей для аренды?

Наши специалисты подберут для вас самые выгодные варианты для долгосрочного инвестирования,
помогут в сопровождении и сделки, проверят все юридические вопросы касаемо приобретения недвижимости.

* Нажимая на кнопку «Отправить», Вы даете согласие на обработку персональных данных в соответствии с Политикой конфиденциальности

Похожие объекты

Улица 1905 года (12 мин. 🚶)
Москва, Рочдельская улица, 20
Бизнес-центр «РочДел центр»
Тип: Торговое помещение
Площадь: 400.70 м2
Мощность:90 кВт
1 669 584 в месяц
50 000 в год за м2
Позвонить Подробнее
Проспект Мира (13 мин. 🚶)
Москва, Олимпийский проспект, 16с5
Бизнес-центр «Олимпик Холл»
Тип: Торговое помещение
Площадь: 337.00 м2
Мощность:80 кВт
1 880 888 в месяц
66 975 в год за м2
Позвонить Подробнее
Таганская (3 мин. 🚶)
Москва, Воронцовская улица, 9с1
ОСЗ "Воронцовская 9с1"
Тип: Торговое помещение
Площадь: 369.00 м2
Мощность:100 кВт
2 000 000 в месяц
65 041 в год за м2
Позвонить Подробнее
(11 мин. 🚗)
Москва, Коровинское шоссе, 29
ЖК "Коровинское шоссе, 29"
Тип: Торговое помещение
Площадь: 362.00 м2
1 448 000 в месяц
48 000 в год за м2
Позвонить Подробнее
Бабушкинская (5 мин. 🚶)
Москва, Енисейская улица, 29
Жилое здание "Енисейская улица, 29"
Тип: Торговое помещение
Площадь: 381.00 м2
Мощность:73 кВт
1 950 000 в месяц
61 417 в год за м2
Позвонить Подробнее
Строгино (6 мин. 🚶)
Москва, Строгинский бульвар, 1к2
ТЦ "Лукоморье"
Тип: Торговое помещение
Площадь: 361.30 м2
800 000 в месяц
26 571 в год за м2
Позвонить Подробнее
Марксистская (10 мин. 🚶)
Москва, Таганская улица, 31/22
Жилое здание «Таганская 31/22»
Тип: Торговое помещение
Площадь: 336.00 м2
1 200 000 в месяц
42 857 в год за м2
Позвонить Подробнее
Волоколамская (7 мин. 🚶)
Москва, Пятницкое шоссе, 3
Офисное здание «Пятницкое 3»
Тип: Торговое помещение
Площадь: 350.00 м2
Мощность:20 кВт
612 500 в месяц
21 000 в год за м2
Позвонить Подробнее
(4 мин. 🚶)
Москва, 2-я Институтская улица, 7с2
ОСЗ "2-я Институтская улица, 7с2"
Тип: Торговое помещение
Площадь: 350.00 м2
Мощность:150 кВт
1 050 000 в месяц
36 000 в год за м2
Позвонить Подробнее
Технопарк (5 мин. 🚶)
Москва, проспект Лихачёва, 8
Бизнес-Центр "Тесла"
Тип: Торговое помещение
Площадь: 391.00 м2
Мощность:50 кВт
2 111 400 в месяц
64 800 в год за м2
Позвонить Подробнее
Технопарк (10 мин. 🚶)
Москва, проспект Лихачёва, 20
ЖК "Нагатино Айленд"
Тип: Торговое помещение
Площадь: 410.00 м2
Мощность:100 кВт
1 107 000 в месяц
32 400 в год за м2
Позвонить Подробнее
Печатники (13 мин. 🚗)
Москва, Улица Гурьянова, 30
Бизнес-центр «Сёрф Плаза»
Тип: Торговое помещение
Площадь: 347.00 м2
728 000 в месяц
25 176 в год за м2
Позвонить Подробнее
Перово (10 мин. 🚶)
Москва, Утренняя улица, 20А
Жилое здание "Утренняя улица, 20А"
Тип: Торговое помещение
Площадь: 162.50 м2
560 000 в месяц
41 354 в год за м2
Позвонить Подробнее
(2 мин. 🚶)
Москва, Солдатская улица, 10к1
Жилой дом "Солдатская 10к1"
Тип: Торговое помещение
Площадь: 136.00 м2
Мощность:20 кВт
500 000 в месяц
44 118 в год за м2
Позвонить Подробнее
Ул. Скобелевская (15 мин. 🚗)
Москва, Варшавское шоссе, 280к3
ЖК "Никольские луга"
Тип: Торговое помещение
Площадь: 101.20 м2
350 000 в месяц
41 502 в год за м2
Позвонить Подробнее
Октябрьское Поле (14 мин. 🚶)
Москва, улица Расплетина, 2
Жилое здание "Расплетина, 2"
Тип: Торговое помещение
Площадь: 197.00 м2
Мощность:45 кВт
669 800 в месяц
40 800 в год за м2
Позвонить Подробнее
Верхние Лихоборы Лихоборы (28 мин. 🚗)
Москва, Лобненская улица, 13к2
ЖК «Дмитровский парк»
Тип: Торговое помещение
Площадь: 91.00 м2
330 000 в месяц
43 516 в год за м2
Позвонить Подробнее
Люблино (2 мин. 🚶)
Закрытая продажа #61122
Тип: Торговое помещение
Площадь: 70.00 м2
270 000 в месяц
46 286 в год за м2
Позвонить Подробнее
Бунинская аллея (28 мин. 🚗)
Москва, поселение Рязановское, улица Уточкина, 5к2
ЖК "Алхимово"
Тип: Торговое помещение
Площадь: 205.00 м2
Мощность:37 кВт
748 250 в месяц
43 800 в год за м2
Позвонить Подробнее

Московская область, Люберцы, улица 8 Марта, 32
ЖК Влюберцы
Тип: Торговое помещение
Площадь: 207.00 м2
Мощность:120 кВт
829 200 в месяц
48 070 в год за м2
Позвонить Подробнее
Новослободская (8 мин. 🚶)
Москва, улица Чаянова, 10с1
Жилое здание "Чаянова, 10с1"
Тип: Торговое помещение
Площадь: 37.00 м2
Мощность:15 кВт
140 000 в месяц
45 405 в год за м2
Позвонить Подробнее
Кунцевская (23 мин. 🚗)
Московская область, Одинцово, улица Маршала Неделина, 6
ТЦ "O`Парк"
Тип: Торговое помещение
Площадь: 140.00 м2
Мощность:25 кВт
506 160 в месяц
43 385 в год за м2
Позвонить Подробнее
Университет (19 мин. 🚶)
Москва, Ленинский проспект, 82/2
Жилое здание "Ленинский проспект, 82/2"
Тип: Торговое помещение
Площадь: 124.30 м2
Мощность:20 кВт
420 000 в месяц
40 547 в год за м2
Позвонить Подробнее
Спартак (9 мин. 🚶)
Москва, Лётная улица, 95Бк2
ЖК "Алия"
Тип: Торговое помещение
Площадь: 239.70 м2
Мощность:24 кВт
968 388 в месяц
48 480 в год за м2
Позвонить Подробнее
Маяковская (3 мин. 🚶)
Москва, Большая Садовая улица, 6с2
Административное здание "Большая Садовая улица, 6с2"
Тип: Торговое помещение
Площадь: 27.20 м2
580 000 в месяц
255 882 в год за м2
Позвонить Подробнее
Маяковская (5 мин. 🚶)
Москва, Оружейный переулок, 15А
Бизнес - центр «Маяковская Плаза»
Тип: Торговое помещение
Площадь: 1750.00 м2
Мощность:150 кВт
4 156 250 в месяц
28 500 в год за м2
Позвонить Подробнее
Маяковская (9 мин. 🚶)
Москва, улица Фадеева, 4Ас1
ЖК «Итальянский квартал»
Тип: Торговое помещение
Площадь: 168.00 м2
352 800 в месяц
25 200 в год за м2
Позвонить Подробнее
Маяковская (3 мин. 🚶)
Москва, Большая Садовая улица, 6с2
Административное здание "Большая Садовая улица, 6с2"
Тип: Торговое помещение
Площадь: 243.00 м2
1 700 000 в месяц
83 951 в год за м2
Позвонить Подробнее
Маяковская (6 мин. 🚶)
Закрытая продажа #59441
Тип: Торговое помещение
Площадь: 400.00 м2
Мощность:63 кВт
800 000 в месяц
24 000 в год за м2
Позвонить Подробнее
Маяковская (2 мин. 🚶)
Москва, 2-я Тверская-Ямская улица, 2
Офисное здание «2-я Тверская-Ямская 2»
Тип: Торговое помещение
Площадь: 220.00 м2
Мощность:100 кВт
1 850 000 в месяц
100 909 в год за м2
Позвонить Подробнее