Аренда торгового помещения ЖК "Нагатино Айленд"

Аренда торгового помещения ЖК
Москва, проспект Лихачёва, 20
Позвоните по телефону +7 495 230-28-26, либо оставьте заявку на просмотр прямо сейчас и узнайте условия специального предложения по объекту.
загрузка карты...
Аренда в год за м2 36 000 ₽
Аренда в месяц 1 230 000 ₽
Схема сделки прямая аренда
Кириченко Константин Юрьевич

Объект ведет консультант:

Кириченко Константин Юрьевич

Общие
ID 61723
Тип сделки Аренда
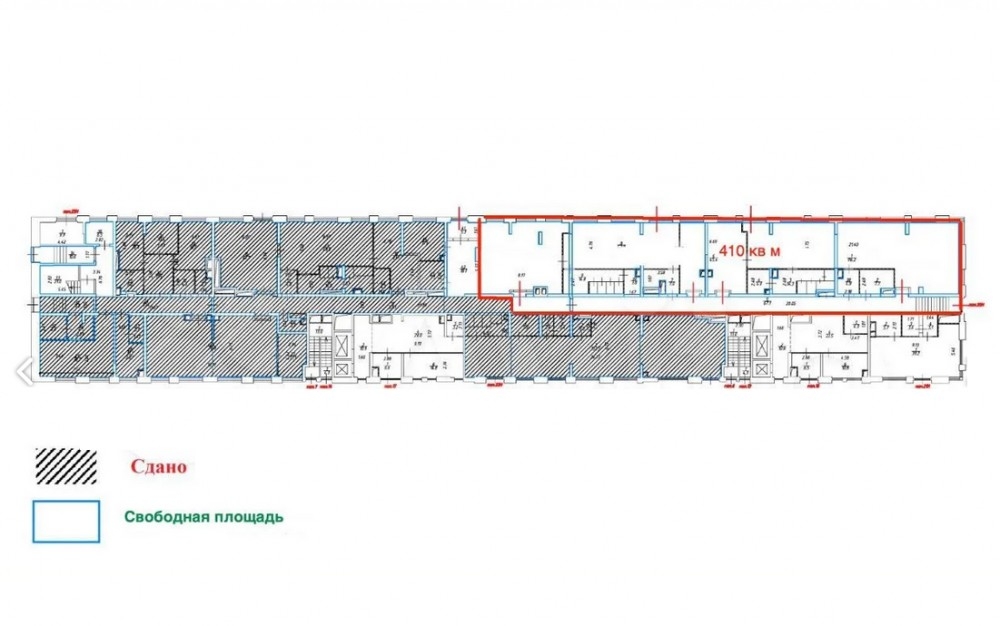
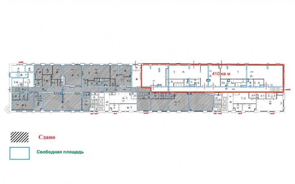
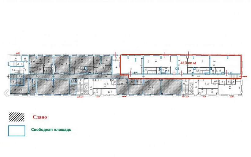
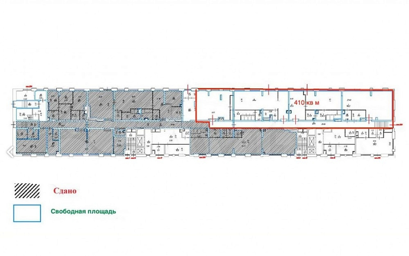
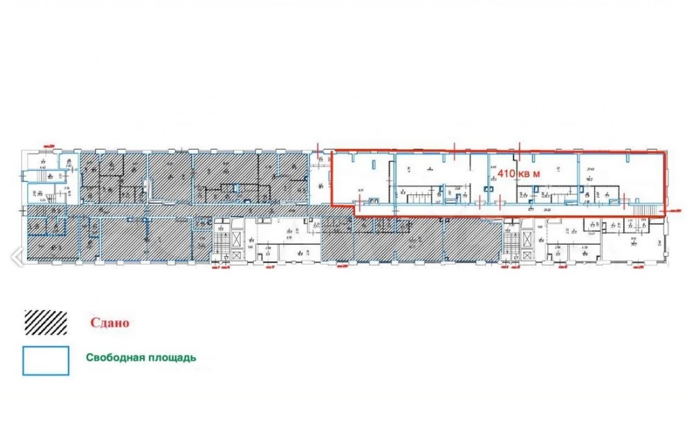
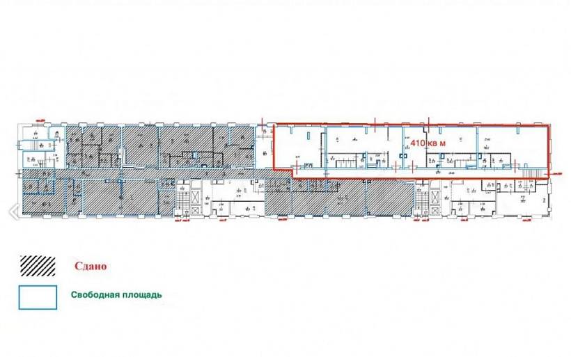
Площадь 410.00
Тип объекта Жилой комплекс
Этаж 1
Всего этажей в здании 35
Метраж по этажам
Информация об объекте
Состояние объекта рабочее
Состояние блока Shell and Core
Планировка Открытая
Перекрытия Железобетонные
Нюансы Отдельный вход
Торговая недвижимость
Линия домов 1 линия
Возможности Ресторанная вытяжка,Витрины,Место для рекламы,Проходное место,Проездное место
Электр. мощность (кВт) 100
Коммерческие условия
Аренда в год за м2 36 000 ₽
Аренда в месяц 1 230 000 ₽
Схема сделки прямая аренда
Тип собственника Физическое лицо

Описание объекта
Сдаётся в аренду коммерческое помещение в активной бизнес-локации в центре Москвы в шаговой доступности от метро Технопарк
ЖК Нагатино Айленд, 6350 квартир в окружении, с уникальной технологией!
ЖК Нагатино i-land, проспект Лихачёва 20, центральный корпус ЖК, расположен  в зоне активного пешеходного и автомобильного трафика
Площадь правильной прямоугольной формы, центральный вход со стороны
Лихачева, свободна на сегодня общая площадь 410 кв м, с отдельным входом с
проспекта Лихачёва и 3-мя дополнительными входными группами, возможно
деление площади от 220 кв м
Помещение расположено на 1-ой линии, в прямой видимости от станции метро
Технопарк,пешком 7 минут, на пересечении прогулочного бульвара к  набережной и проспекта Лихачёва
Помещение функциональное, без лишних перегородок
Напротив помещения расположена гостевая парковка
Помещение имеет витражное остекление
Помещение идеально подходит под стоматологию, косметологию, танцы, фитнес, растяжку, йогу, пекарню, салон красоты и другие виды коммерческой
деятельности
Электрическая мощность 100 кВт, 3 отдельных технологических вытяжки помещений с такой технологией в локации нет

Нужна консультация по подбору торговых площадей для аренды?

Наши специалисты подберут для вас самые выгодные варианты для долгосрочного инвестирования,
помогут в сопровождении и сделки, проверят все юридические вопросы касаемо приобретения недвижимости.

* Нажимая на кнопку «Отправить», Вы даете согласие на обработку персональных данных в соответствии с Политикой конфиденциальности

Похожие объекты

Алексеевская (7 мин. 🚶)
Москва, проспект Мира, 108
Жилое здание "проспект Мира д. 108"
Тип: Торговое помещение
Площадь: 430.00 м2
Мощность:65 кВт
600 000 в месяц
16 744 в год за м2
Позвонить Подробнее
Шаболовская (7 мин. 🚶)
Москва, улица Шаболовка, 14с2
ОСЗ "улица Шаболовка, 14с2"
Тип: Торговое помещение
Площадь: 442.10 м2
Мощность:150 кВт
2 100 000 в месяц
57 001 в год за м2
Позвонить Подробнее
Крестьянская Застава (7 мин. 🚶)
Москва, Волгоградский проспект, 9с1
Жилое здание "Волгоградский проспект, 9с1"
Тип: Торговое помещение
Площадь: 415.00 м2
Мощность:99 кВт
969 000 в месяц
28 019 в год за м2
Позвонить Подробнее
Коломенская (11 мин. 🚶)
Москва, Проспект Андропова, 48
Административное здание «проспект Андропова 48»
Тип: Торговое помещение
Площадь: 408.50 м2
Мощность:90 кВт
1 099 900 в месяц
32 310 в год за м2
Позвонить Подробнее
(10 мин. 🚗)
Москва, Долгопрудная аллея, 15к5
ЖК "Мой Адрес в Северном"
Тип: Торговое помещение
Площадь: 408.00 м2
Мощность:80 кВт
900 000 в месяц
26 471 в год за м2
Позвонить Подробнее
Авиамоторная (13 мин. 🚶)
Москва, Проезд Завода Серп и Молот, 10
Бизнес-центр «Интеграл»
Тип: Торговое помещение
Площадь: 407.90 м2
1 244 095 в месяц
36 600 в год за м2
Позвонить Подробнее
Шаболовская (11 мин. 🚶)
Москва, Ленинский проспект, 15А
Бизнес-центр «Central Park Tower»
Тип: Торговое помещение
Площадь: 397.00 м2
Мощность:100 кВт
2 219 892 в месяц
67 100 в год за м2
Позвонить Подробнее
Новокузнецкая (10 мин. 🚶)
Москва, Большая Татарская улица, 35с3
Офисный центр "Замоскворечье"
Тип: Торговое помещение
Площадь: 388.00 м2
Мощность:100 кВт
1 200 000 в месяц
37 113 в год за м2
Позвонить Подробнее
Маяковская (6 мин. 🚶)
Москва, Большая Садовая улица, 5
Гостинично-офисный комплекс «Пекин»
Тип: Торговое помещение
Площадь: 380.20 м2
Мощность:100 кВт
800 000 в месяц
25 250 в год за м2
Позвонить Подробнее
Третьяковская (13 мин. 🚶)
Москва, Болотная улица, 14с1
Административное здание " Болотная улица, 14с1"
Тип: Торговое помещение
Площадь: 421.00 м2
2 000 000 в месяц
57 007 в год за м2
Позвонить Подробнее
Китай-город (3 мин. 🚶)
Москва, улица Маросейка, 6-8с1
Административное здание «Маросейка 6/8с1»
Тип: Торговое помещение
Площадь: 436.40 м2
Мощность:90 кВт
2 415 000 в месяц
66 407 в год за м2
Позвонить Подробнее
Фрунзенская (10 мин. 🚶)
Москва, улица Ефремова, 10с1
ЖК "САДОВЫЕ КВАРТАЛЫ"
Тип: Торговое помещение
Площадь: 430.00 м2
Мощность:200 кВт
3 000 000 в месяц
83 721 в год за м2
Позвонить Подробнее
Войковская (10 мин. 🚗)
Москва, улица Зои и Александра Космодемьянских, 35/1
Жилое здание "ул. Зои и Александра Космодемьянских, 35/1"
Тип: Торговое помещение
Площадь: 122.00 м2
Мощность:25 кВт
370 006 в месяц
36 394 в год за м2
Позвонить Подробнее
Каширская (14 мин. 🚗)
Москва, Каширское шоссе, 57к2
Жилое здание "Каширское шоссе, 57к2"
Тип: Торговое помещение
Площадь: 350.00 м2
Мощность:100 кВт
1 000 000 в месяц
34 286 в год за м2
Позвонить Подробнее
Медведково (3 мин. 🚶)
Москва, улица Грекова, вл7
Административное здание "улица Грекова, вл7"
Тип: Торговое помещение
Площадь: 891.90 м2
2 675 700 в месяц
36 000 в год за м2
Позвонить Подробнее
Новослободская (13 мин. 🚶)
Москва, Краснопролетарская улица, 2/4с13
Бизнес-центр «Эрмитаж Плаза»
Тип: Торговое помещение
Площадь: 272.30 м2
Мощность:105 кВт
750 000 в месяц
33 052 в год за м2
Позвонить Подробнее
Коломенская (11 мин. 🚶)
Москва, Проспект Андропова, 48
Административное здание «проспект Андропова 48»
Тип: Торговое помещение
Площадь: 220.00 м2
Мощность:60 кВт
700 000 в месяц
38 182 в год за м2
Позвонить Подробнее
Царицыно (10 мин. 🚗)
Москва, 6-я Радиальная улица, 7/1к2
Жилое здание "6-я Радиальная 7/1к2"
Тип: Торговое помещение
Площадь: 72.00 м2
Мощность:30 кВт
220 000 в месяц
36 667 в год за м2
Позвонить Подробнее
Авиамоторная (13 мин. 🚶)
Москва, Проезд Завода Серп и Молот, 10
Бизнес-центр «Интеграл»
Тип: Торговое помещение
Площадь: 407.90 м2
1 244 095 в месяц
36 600 в год за м2
Позвонить Подробнее
Молодёжная (11 мин. 🚶)
Москва, Молодогвардейская улица, 25к1
Жилое здание "Молодогвардейская улица, 25к1"
Тип: Торговое помещение
Площадь: 256.00 м2
Мощность:105 кВт
700 000 в месяц
32 813 в год за м2
Позвонить Подробнее
Китай-город (7 мин. 🚶)
Москва, Подкопаевский переулок, 4с3
Бизнес-центр "Ивановская горка" с3
Тип: Торговое помещение
Площадь: 110.50 м2
Мощность:15 кВт
363 729 в месяц
39 500 в год за м2
Позвонить Подробнее
Тушинская (4 мин. 🚶)
Москва, Тушинская улица, 16с4
ОСЗ "Тушинская улица, 16с4"
Тип: Торговое помещение
Площадь: 232.00 м2
Мощность:100 кВт
750 000 в месяц
38 793 в год за м2
Позвонить Подробнее
Рассказовка (40 мин. 🚗)
Московская область, Одинцово, Берёзовая улица, 6к2
ЖК "Одинцово 1"
Тип: Торговое помещение
Площадь: 119.70 м2
359 100 в месяц
36 000 в год за м2
Позвонить Подробнее
Алексеевская (12 мин. 🚶)
Москва, проспект Мира, 102с12
БЦ "Парк Мира"
Тип: Торговое помещение
Площадь: 170.00 м2
Мощность:150 кВт
550 000 в месяц
38 824 в год за м2
Позвонить Подробнее
Технопарк (10 мин. 🚶)
Москва, проспект Андропова, 11к2
Деловой квартал "ЮПорт"
Тип: Торговое помещение
Площадь: 1137.00 м2
Мощность:200 кВт
3 316 250 в месяц
35 000 в год за м2
Позвонить Подробнее
Технопарк (10 мин. 🚶)
Москва, проспект Андропова, 11к2
Деловой квартал "ЮПорт"
Тип: Торговое помещение
Площадь: 2906.00 м2
6 054 167 в месяц
25 000 в год за м2
Позвонить Подробнее
Технопарк (10 мин. 🚶)
Москва, проспект Андропова, 11к2
Деловой квартал "ЮПорт"
Тип: Торговое помещение
Площадь: 190.00 м2
554 167 в месяц
35 000 в год за м2
Позвонить Подробнее
Технопарк (10 мин. 🚶)
Москва, проспект Андропова, 11к2
Деловой квартал "ЮПорт"
Тип: Торговое помещение
Площадь: 710.00 м2
2 070 833 в месяц
35 000 в год за м2
Позвонить Подробнее
Технопарк (10 мин. 🚶)
Москва, проспект Андропова, 11к2
Деловой квартал "ЮПорт"
Тип: Торговое помещение
Площадь: 130.00 м2
379 167 в месяц
35 000 в год за м2
Позвонить Подробнее
Технопарк (10 мин. 🚶)
Москва, проспект Андропова, 11к2
Деловой квартал "ЮПорт"
Тип: Торговое помещение
Площадь: 75.00 м2
218 750 в месяц
35 000 в год за м2
Позвонить Подробнее
Технопарк (10 мин. 🚶)
Москва, проспект Андропова, 11к2
Деловой квартал "ЮПорт"
Тип: Торговое помещение
Площадь: 90.00 м2
262 500 в месяц
35 000 в год за м2
Позвонить Подробнее
Технопарк (10 мин. 🚶)
Москва, проспект Андропова, 11к2
Деловой квартал "ЮПорт"
Тип: Торговое помещение
Площадь: 125.00 м2
364 583 в месяц
35 000 в год за м2
Позвонить Подробнее
Технопарк (10 мин. 🚶)
Москва, проспект Андропова, 11к2
Деловой квартал "ЮПорт"
Тип: Торговое помещение
Площадь: 215.00 м2
627 083 в месяц
35 000 в год за м2
Позвонить Подробнее
Технопарк (10 мин. 🚶)
Москва, проспект Андропова, 11к2
Деловой квартал "ЮПорт"
Тип: Торговое помещение
Площадь: 300.00 м2
875 000 в месяц
35 000 в год за м2
Позвонить Подробнее
Технопарк (10 мин. 🚶)
Москва, проспект Андропова, 11к2
Деловой квартал "ЮПорт"
Тип: Торговое помещение
Площадь: 250.00 м2
729 167 в месяц
35 000 в год за м2
Позвонить Подробнее
Технопарк (5 мин. 🚶)
Москва, проспект Лихачёва, 8
Бизнес-Центр "Тесла"
Тип: Торговое помещение
Площадь: 2432.00 м2
Мощность:80 кВт
13 132 800 в месяц
64 800 в год за м2
Позвонить Подробнее