Аренда офиса Бизнес-центр "Авион"

Аренда офиса Бизнес-центр
Москва, Ленинградский проспект, 47с2
Позвоните по телефону +7 495 230-28-26, либо оставьте заявку на просмотр прямо сейчас и узнайте условия специального предложения по объекту.
загрузка карты...
Аренда в год за м2 45 000 ₽
Аренда в месяц 1 950 000 ₽
Схема сделки прямая аренда
Кириченко Константин Юрьевич

Объект ведет консультант:

Кириченко Константин Юрьевич

Общие
ID 61234
Тип сделки Аренда
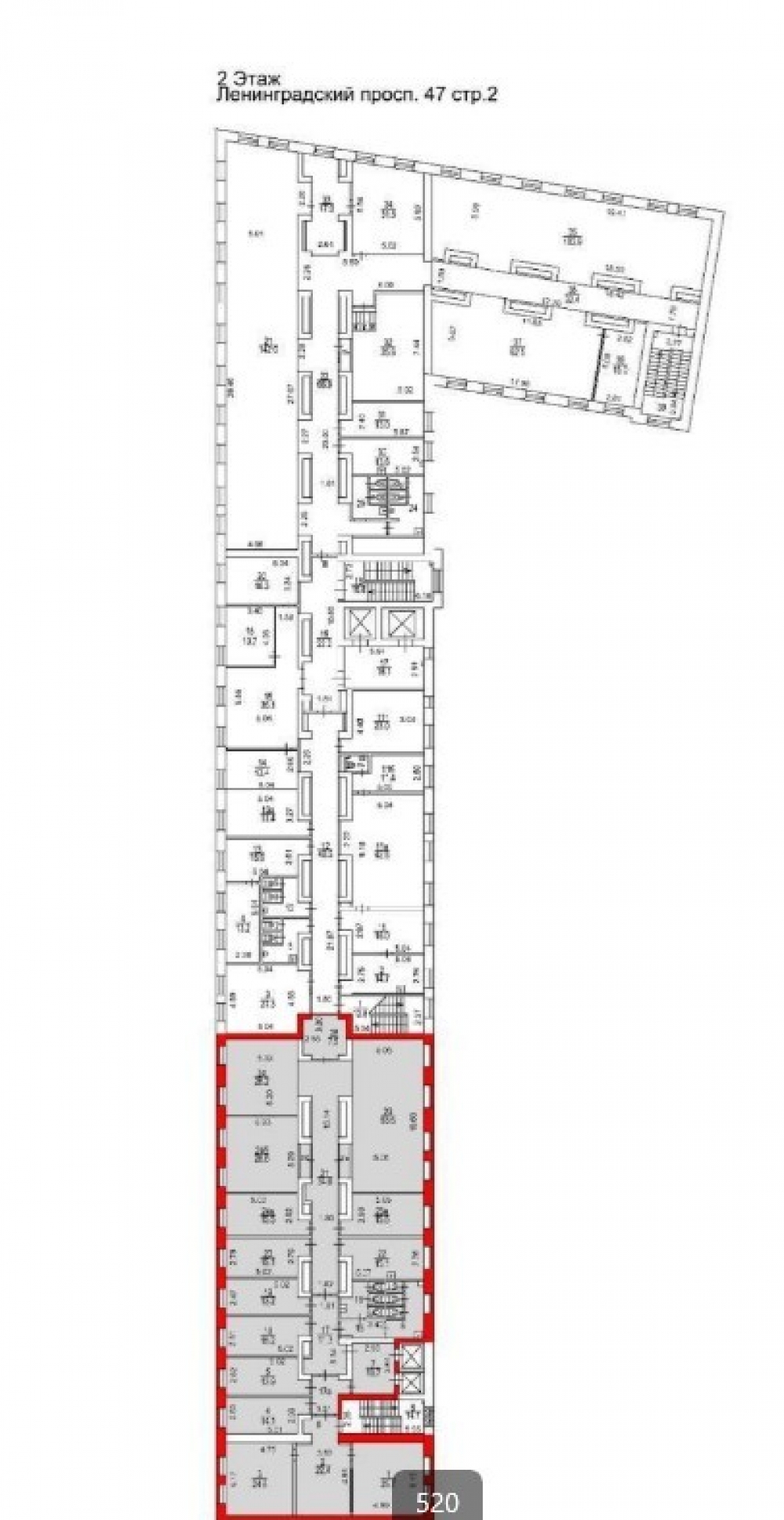
Площадь 520.00
Площадь всего 19147.00
Тип объекта Бизнес-центр
Этаж 2
Всего этажей в здании 6
Метраж по этажам
Информация об объекте
Состояние объекта рабочее
Парковка 23 000 за м/м в мес.
Коммерческие условия
Аренда в год за м2 45 000 ₽
Аренда в месяц 1 950 000 ₽
Схема сделки прямая аренда
Тип собственника Юридическое лицо

Описание объекта
Предлагается в аренду офисное помещение на 2 этаже в БЦ «Авион» (стр. 2). Общая площадь 520 кв.м., смешанная планировка.  На объекте работает приточно-вытяжная вентиляция, кондиционирование воздуха, а также центральное отопление. В пешей доступности от бизнес-центра находится станция метро "Аэропорт" - 2 минуты ходьбы.

Нужна консультация по подбору помещения под офис?

Наши специалисты подберут для вас самые выгодные варианты для долгосрочного инвестирования,
помогут в сопровождении и сделки, проверят все юридические вопросы касаемо приобретения недвижимости.

* Нажимая на кнопку «Отправить», Вы даете согласие на обработку персональных данных в соответствии с Политикой конфиденциальности

Похожие объекты

Павелецкая (10 мин. 🚶)
Москва, Летниковская улица, 10с4
Бизнес-центр «Святогор-4»
Тип: Офисы
Площадь: 569.30 м2
Отделка:качественная отделка
3 600 000 в месяц
75 883 в год за м2
Позвонить Подробнее
Курская (5 мин. 🚶)
Москва, Нижний Сусальный переулок, 5с4
Бизнес Квартал «Арма»
Тип: Офисы
Площадь: 500.00 м2
Отделка:отделка в стиле Loft
5 500 000 в месяц
132 000 в год за м2
Позвонить Подробнее
Китай-город (7 мин. 🚶)
Москва, Подкопаевский переулок, 4
Бизнес-центр «Ивановская горка»
Тип: Офисы
Площадь: 543.00 м2
Отделка:выполнена высококачественная отделка
3 235 375 в месяц
71 500 в год за м2
Позвонить Подробнее
Площадь Ильича (20 мин. 🚶)
Москва, Самокатная улица, 1с1
Офисное здание «Самокатная 1 с1»
Тип: Офисы
Площадь: 505.00 м2
Отделка:выполнена стандартная офисная отделка
1 000 000 в месяц
23 762 в год за м2
Позвонить Подробнее
Белорусская (10 мин. 🚶)
Москва, 3-я улица Ямского Поля, 32
Бизнес-центр на ул. 3-я Ямского Поля, 32
Тип: Офисы
Площадь: 483.70 м2
Отделка:выполнена стандартная офисная отделка
1 354 360 в месяц
33 600 в год за м2
Позвонить Подробнее
Тульская (15 мин. 🚶)
Москва, Варшавское шоссе, 9
Бизнес-парк «Даниловская Мануфактура»
Тип: Офисы
Площадь: 541.10 м2
Отделка:отделка в стиле Loft
2 254 583 в месяц
50 000 в год за м2
Позвонить Подробнее
Тульская (15 мин. 🚶)
Москва, Варшавское шоссе, 9
Бизнес-парк «Даниловская Мануфактура»
Тип: Офисы
Площадь: 545.00 м2
Отделка:отделка арендатора
1 589 583 в месяц
35 000 в год за м2
Позвонить Подробнее
Строгино (9 мин. 🚶)
Москва, Улица Кулакова, 20с1А
Бизнес-центр «Технопарк Орбита»
Тип: Офисы
Площадь: 539.80 м2
Отделка:выполнена стандартная офисная отделка
944 650 в месяц
21 000 в год за м2
Позвонить Подробнее
Сухаревская (5 мин. 🚶)
Москва, проспект Мира, 12с1
Особняк "пр-т Мира 12с1"
Тип: Офисы
Площадь: 550.00 м2
Отделка:отделка в стиле Loft
2 000 000 в месяц
43 636 в год за м2
Позвонить Подробнее
Белорусская (10 мин. 🚶)
Москва, 3-я улица Ямского Поля, 22с3
Особняк «3-я Ямского Поля 22 с3»
Тип: Офисы
Площадь: 485.00 м2
1 350 000 в месяц
33 402 в год за м2
Позвонить Подробнее
Марксистская (7 мин. 🚶)
Москва, Таганская улица, 17-23
Бизнес-центр «Мосэнка Парк Тауэрс 4»
Тип: Офисы
Площадь: 568.00 м2
Отделка:выполнена стандартная офисная отделка
2 130 000 в месяц
45 000 в год за м2
Позвонить Подробнее
Полянка (6 мин. 🚶)
Москва, 1-й Спасоналивковский переулок, 6
Офисное здание «1-й Спасоналивковский 6»
Тип: Офисы
Площадь: 499.90 м2
Отделка:выполнена стандартная офисная отделка
1 749 650 в месяц
42 000 в год за м2
Позвонить Подробнее
Курская (5 мин. 🚶)
Москва, Мельницкий переулок, 8/1с1
Особняк "Мельницкий переулок, 8/1с1"
Тип: Офисы
Площадь: 463.00 м2
1 736 250 в месяц
45 000 в год за м2
Позвонить Подробнее
Калужская (3 мин. 🚶)
Москва, Профсоюзная улица, 65к1
Бизнес-центр «Лотте»
Тип: Офисы
Площадь: 3488.40 м2
Отделка:качественная отделка
12 209 400 в месяц
42 000 в год за м2
Позвонить Подробнее
Калужская (3 мин. 🚶)
Москва, Профсоюзная улица, 65к1
Бизнес-центр «Лотте»
Тип: Офисы
Площадь: 1733.00 м2
Отделка:качественная отделка
6 065 500 в месяц
42 000 в год за м2
Позвонить Подробнее
Калужская (3 мин. 🚶)
Москва, Профсоюзная улица, 65к1
Бизнес-центр «Лотте»
Тип: Офисы
Площадь: 346.90 м2
Отделка:качественная отделка
1 179 460 в месяц
40 800 в год за м2
Позвонить Подробнее
Калужская (3 мин. 🚶)
Москва, Профсоюзная улица, 65к1
Бизнес-центр «Лотте»
Тип: Офисы
Площадь: 281.70 м2
Отделка:выполнена стандартная офисная отделка
957 780 в месяц
40 800 в год за м2
Позвонить Подробнее
Петровский парк (10 мин. 🚶)
Москва, Улица 8 Марта, 1с12
Бизнес-центр «Трио»
Тип: Офисы
Площадь: 321.80 м2
Отделка:качественная отделка
1 206 750 в месяц
45 000 в год за м2
Позвонить Подробнее
Тульская (15 мин. 🚶)
Москва, Варшавское шоссе, 9
Бизнес-парк «Даниловская Мануфактура»
Тип: Офисы
Площадь: 929.40 м2
Отделка:отделка арендатора
3 485 250 в месяц
45 000 в год за м2
Позвонить Подробнее
Цветной бульвар (5 мин. 🚶)
Москва, Цветной бульвар, 30с1
Офисное здание «Цветной 30»
Тип: Офисы
Площадь: 237.00 м2
Отделка:выполнена стандартная офисная отделка
888 750 в месяц
45 000 в год за м2
Позвонить Подробнее
Проспект Мира (3 мин. 🚶)
Москва, Проспект Мира, 40
Бизнес-центр «Garden Mir»
Тип: Офисы
Площадь: 319.00 м2
Отделка:выполнена стандартная офисная отделка
1 300 000 в месяц
48 903 в год за м2
Позвонить Подробнее
Цветной бульвар (5 мин. 🚶)
Москва, Цветной бульвар, 30с1
Офисное здание «Цветной 30»
Тип: Офисы
Площадь: 460.00 м2
Отделка:выполнена стандартная офисная отделка
1 725 000 в месяц
45 000 в год за м2
Позвонить Подробнее
Сухаревская (5 мин. 🚶)
Москва, проспект Мира, 12с1
Особняк "пр-т Мира 12с1"
Тип: Офисы
Площадь: 550.00 м2
Отделка:отделка в стиле Loft
2 000 000 в месяц
43 636 в год за м2
Позвонить Подробнее
Маяковская (4 мин. 🚶)
Москва, Оружейный переулок, 13с1
Административное здание "Оружейный переулок, 13с1"
Тип: Офисы
Площадь: 668.00 м2
Отделка:помещение без отделки
2 500 000 в месяц
44 910 в год за м2
Позвонить Подробнее
Аэропорт (9 мин. 🚶)
Москва, Ленинградский проспект, 39А
БЦ "Мерседес-бенц Плаза"
Тип: Офисы
Площадь: 7367.00 м2
Отделка:качественная отделка
41 770 890 в месяц
68 040 в год за м2
Позвонить Подробнее
Аэропорт (15 мин. 🚶)
Москва, Кочновский проезд, 4к1
ЖК «Аэробус»
Тип: Офисы
Площадь: 15.00 м2
Отделка:качественная отделка
70 000 в месяц
56 000 в год за м2
Позвонить Подробнее
Аэропорт (15 мин. 🚶)
Москва, Кочновский проезд, 4к1
ЖК «Аэробус»
Тип: Офисы
Площадь: 240.00 м2
Отделка:качественная отделка
780 000 в месяц
39 000 в год за м2
Позвонить Подробнее
Аэропорт (2 мин. 🚶)
Москва, Ленинградский проспект, 47с2
Бизнес-центр "Авион"
Тип: Офисы
Площадь: 1450.00 м2
Отделка:выполнена стандартная офисная отделка
6 041 667 в месяц
50 000 в год за м2
Позвонить Подробнее
Аэропорт (2 мин. 🚶)
Москва, Ленинградский проспект, 47с2
Бизнес-центр "Авион"
Тип: Офисы
Площадь: 905.00 м2
Отделка:выполнена стандартная офисная отделка
3 770 833 в месяц
50 000 в год за м2
Позвонить Подробнее
Аэропорт (2 мин. 🚶)
Москва, Ленинградский проспект, 47с2
Бизнес-центр "Авион"
Тип: Офисы
Площадь: 540.00 м2
Отделка:выполнена стандартная офисная отделка
2 250 000 в месяц
50 000 в год за м2
Позвонить Подробнее
Аэропорт (2 мин. 🚶)
Москва, Ленинградский проспект, 47с2
Бизнес-центр "Авион"
Тип: Офисы
Площадь: 295.00 м2
Отделка:выполнена стандартная офисная отделка
1 229 167 в месяц
50 000 в год за м2
Позвонить Подробнее
Аэропорт (2 мин. 🚶)
Москва, Ленинградский проспект, 47с2
Бизнес-центр "Авион"
Тип: Офисы
Площадь: 1485.00 м2
Отделка:выполнена стандартная офисная отделка
6 187 500 в месяц
50 000 в год за м2
Позвонить Подробнее
Аэропорт (2 мин. 🚶)
Москва, Ленинградский проспект, 47с2
Бизнес-центр "Авион"
Тип: Офисы
Площадь: 490.00 м2
Отделка:выполнена стандартная офисная отделка
1 837 500 в месяц
45 000 в год за м2
Позвонить Подробнее
Аэропорт (21 мин. 🚗)
Москва, Ленинградский проспект, 37А
Бизнес-парк «Аркус 2»
Тип: Офисы
Площадь: 953.00 м2
Отделка:выполнена стандартная офисная отделка
3 573 750 в месяц
45 000 в год за м2
Позвонить Подробнее
Аэропорт (8 мин. 🚶)
Москва, Улица 8 Марта, 14
Бизнес-центр «Кулон»
Тип: Офисы
Площадь: 872.30 м2
Отделка:качественная отделка
2 791 360 в месяц
38 400 в год за м2
Позвонить Подробнее
Аэропорт (8 мин. 🚶)
Москва, Улица 8 Марта, 14
Бизнес-центр «Кулон»
Тип: Офисы
Площадь: 2343.00 м2
Отделка:качественная отделка
7 497 600 в месяц
38 400 в год за м2
Позвонить Подробнее