Аренда офиса Закрытая продажа #61509

Аренда офиса Закрытая продажа #61509
Позвоните по телефону +7 495 230-28-26, либо оставьте заявку на просмотр прямо сейчас и узнайте условия специального предложения по объекту.
загрузка карты...
Аренда в год за м2 36 000 ₽
Аренда в месяц 1 425 000 ₽
Схема сделки прямая аренда
Кириченко Константин Юрьевич

Объект ведет консультант:

Кириченко Константин Юрьевич

Общие
ID 61509
Тип сделки Аренда
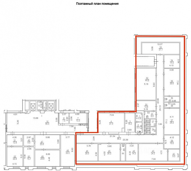
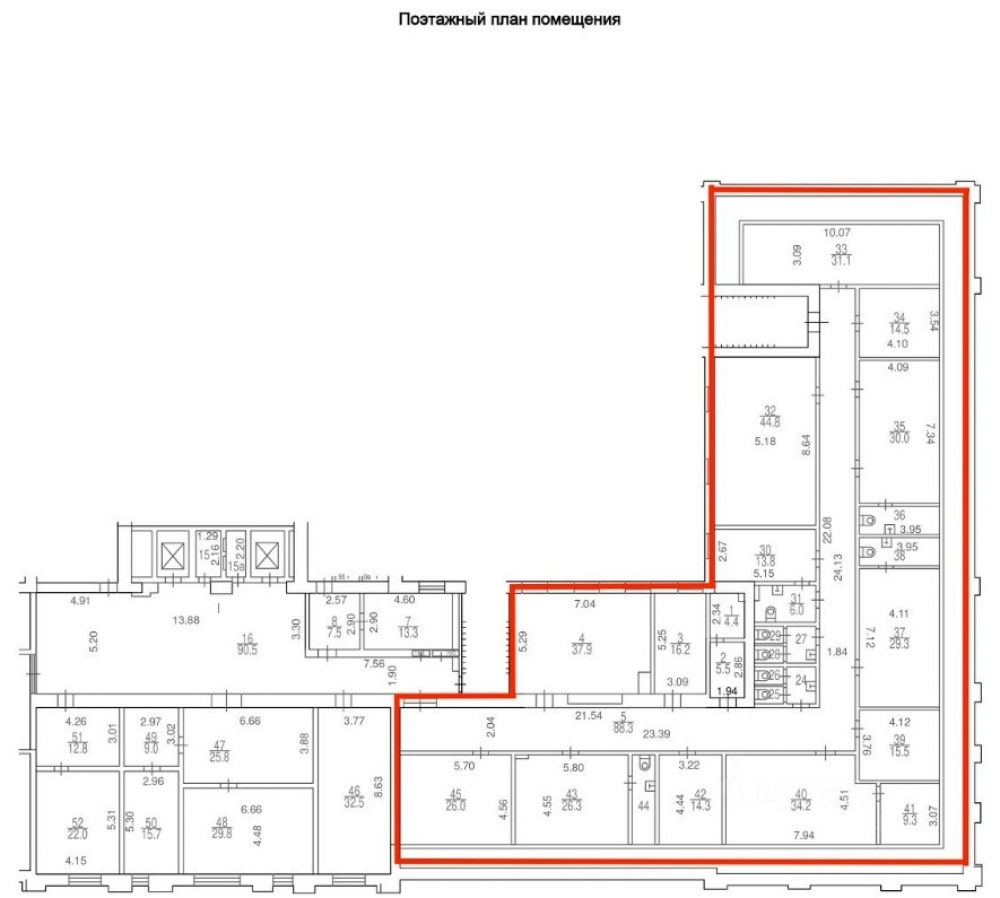
Площадь 475.00
Площадь всего 9757.00
Тип объекта Административное здание
Этаж 6
Всего этажей в здании 5
Метраж по этажам
Информация об объекте
Состояние объекта рабочее
Состояние блока выполнена стандартная офисная отделка
Планировка Залы и кабинеты
Перекрытия Железобетонные
Коммерческие условия
Аренда в год за м2 36 000 ₽
Аренда в месяц 1 425 000 ₽
Схема сделки прямая аренда
Тип собственника Юридическое лицо

Описание объекта
Офис расположен в одном из самых престижных и узнаваемых деловых центров Москвы — в историческом здании Российский союз промышленников и предпринимателей (РСПП) на Котельнической набережной. Это место символизирует высочайший статус его резидентов и обеспечивает безупречную репутацию. Здание находится в непосредственной близости от Кремля, набережной Москвы-реки и имеет прекрасную транспортную доступность.

Помещение на 6-м этаже:
Просторный офис на 6-м этаже предлагает комфортную и эффективную рабочую среду. Ключевые особенности планировки:

Кабинетная система: Пространство организовано по принципу отдельных изолированных кабинетов. Это идеальное решение для компаний, ценящих конфиденциальность, концентрацию и комфорт своих сотрудников. Каждый сотрудник или руководитель может работать в тишине, не отвлекаясь на шум в общем пространстве.
Мансардный этаж: 6-й этаж является мансардным, что придает помещению особый шарм и преимущества. Характерные черты — наклонные окна и высокие потолки, которые создают неповторимую атмосферу и наполняют пространство большим количеством естественного света. Это делает рабочую среду более светлой, креативной и нестандартной.

Инфраструктура и безопасность:
Здание предлагает полный спектр услуг для комфортной и безопасной работы:
Два парковочных места.
Собственная столовая
Банкомат
Круглосуточная охрана.

Нужна консультация по подбору помещения под офис?

Наши специалисты подберут для вас самые выгодные варианты для долгосрочного инвестирования,
помогут в сопровождении и сделки, проверят все юридические вопросы касаемо приобретения недвижимости.

* Нажимая на кнопку «Отправить», Вы даете согласие на обработку персональных данных в соответствии с Политикой конфиденциальности

Похожие объекты

Кропоткинская (8 мин. 🚶)
Москва, Барыковский переулок, 2
Бизнес-центр «Ост Хаус»
Тип: Офисы
Площадь: 486.70 м2
Отделка:качественная отделка
3 000 000 в месяц
73 968 в год за м2
Позвонить Подробнее
Павелецкая (16 мин. 🚗)
Москва, 1-й Дербеневский переулок, 5
Бизнес-центр «Дербеневская Плаза»
Тип: Офисы
Площадь: 442.50 м2
Отделка:выполнена стандартная офисная отделка
1 235 313 в месяц
33 500 в год за м2
Позвонить Подробнее
Цветной бульвар (4 мин. 🚶)
Москва, Цветной бульвар, 22с1
Бизнес-центр «Цветной 22 с1»
Тип: Офисы
Площадь: 474.00 м2
Отделка:выполнена стандартная офисная отделка
1 975 000 в месяц
50 000 в год за м2
Позвонить Подробнее
Бауманская (7 мин. 🚶)
Москва, Бауманская улица, 11с8
Торгово-офисный комлекс"Бауманская улица, 11с8"
Тип: Офисы
Площадь: 522.00 м2
Отделка:отделка в стиле Loft
1 696 500 в месяц
39 000 в год за м2
Позвонить Подробнее
Марксистская (7 мин. 🚶)
Москва, Таганская улица, 17-23
Бизнес-центр «Мосэнка Парк Тауэрс 4»
Тип: Офисы
Площадь: 459.00 м2
Отделка:выполнена стандартная офисная отделка
1 913 265 в месяц
50 020 в год за м2
Позвонить Подробнее
Пушкинская (1 мин. 🚶)
Закрытая продажа #63680
Тип: Офисы
Площадь: 455.00 м2
Отделка:выполнена высококачественная отделка
2 800 000 в месяц
73 846 в год за м2
Позвонить Подробнее
Румянцево (3 мин. 🚶)
Москва, Поселение Московский, деревня Румянцево, Киевское шоссе, 1
Бизнес-парк «Румянцево»
Тип: Офисы
Площадь: 471.00 м2
Отделка:выполнена стандартная офисная отделка
667 250 в месяц
17 000 в год за м2
Позвонить Подробнее
Серпуховская (6 мин. 🚶)
Москва, Большой Строченовский переулок, 7
Бизнес-центр «Велка»
Тип: Офисы
Площадь: 454.00 м2
Отделка:качественная отделка
1 600 000 в месяц
42 291 в год за м2
Позвонить Подробнее
Планерная (23 мин. 🚗)
Московская область, Химки, Куркинское шоссе, с2
Бизнес-центр «Aero City (Аэро Сити)»
Тип: Офисы
Площадь: 431.60 м2
Отделка:Shell and Core
410 020 в месяц
11 400 в год за м2
Позвонить Подробнее
Полянка (5 мин. 🚶)
Москва, улица Большая Якиманка, 17/2с1
Бизнес центр "улица Большая Якиманка, 17/2с1"
Тип: Офисы
Площадь: 467.00 м2
Отделка:выполнена стандартная офисная отделка
2 101 500 в месяц
54 000 в год за м2
Позвонить Подробнее
Кожуховская (17 мин. 🚶)
Москва, 2-й Южнопортовый проезд, 20Ас4
Офисно-складской комплекс "Южнопортовый"
Тип: Офисы
Площадь: 440.00 м2
Отделка:выполнена стандартная офисная отделка
990 000 в месяц
27 000 в год за м2
Позвонить Подробнее
Шелепиха (20 мин. 🚶)
Москва, 1-й Магистральный проезд, 11с1
Бизнес-центр «Интерьер»
Тип: Офисы
Площадь: 447.20 м2
Отделка:выполнена стандартная офисная отделка
894 400 в месяц
24 000 в год за м2
Позвонить Подробнее
Таганская (5 мин. 🚶)
Москва, улица Земляной Вал, 68/18с5
Офисное здание «Земляной 68/18 с5"
Тип: Офисы
Площадь: 145.00 м2
Отделка:выполнена стандартная офисная отделка
422 917 в месяц
35 000 в год за м2
Позвонить Подробнее
Павелецкая (16 мин. 🚗)
Москва, 1-й Дербеневский переулок, 5
Бизнес-центр «Дербеневская Плаза»
Тип: Офисы
Площадь: 442.50 м2
Отделка:выполнена стандартная офисная отделка
1 235 313 в месяц
33 500 в год за м2
Позвонить Подробнее
Сокольники (8 мин. 🚗)
Москва, 3-я Рыбинская улица, 18с22
Бизнес-центр «Буревестник» с22
Тип: Офисы
Площадь: 861.00 м2
Отделка:качественная отделка
2 801 120 в месяц
39 040 в год за м2
Позвонить Подробнее
Сокольники (8 мин. 🚗)
Москва, 3-я Рыбинская улица, 18с2
Бизнес-центр «Буревестник»
Тип: Офисы
Площадь: 528.13 м2
Отделка:выполнена стандартная офисная отделка
1 718 183 в месяц
39 040 в год за м2
Позвонить Подробнее
Спортивная (10 мин. 🚶)
Москва, Малая Пироговская улица, 18с1
Малая Пироговская улица, 18с1
Тип: Офисы
Площадь: 186.00 м2
Отделка:выполнена стандартная офисная отделка
542 500 в месяц
35 000 в год за м2
Позвонить Подробнее
Бауманская (7 мин. 🚶)
Москва, Бауманская улица, 11с8
Торгово-офисный комлекс"Бауманская улица, 11с8"
Тип: Офисы
Площадь: 522.00 м2
Отделка:отделка в стиле Loft
1 696 500 в месяц
39 000 в год за м2
Позвонить Подробнее
Спортивная (5 мин. 🚶)
Москва, Большой Саввинский переулок, 12с6
Деловой квартал «Московский шелк» c6
Тип: Офисы
Площадь: 231.90 м2
Отделка:выполнена высококачественная отделка
734 350 в месяц
38 000 в год за м2
Позвонить Подробнее
Речной вокзал (14 мин. 🚶)
Москва, Смольная улица, 24Д
Бизнес-центр «Меридиан»
Тип: Офисы
Площадь: 1100.00 м2
Отделка:выполнена стандартная офисная отделка
3 116 667 в месяц
34 000 в год за м2
Позвонить Подробнее
Тульская (17 мин. 🚗)
Москва, Новоданиловская набережная, 6к1
Бизнес-центр «Данилов Плаза»
Тип: Офисы
Площадь: 286.00 м2
Отделка:выполнена стандартная офисная отделка
858 000 в месяц
36 000 в год за м2
Позвонить Подробнее
Таганская (19 мин. 🚶)
Москва, Космодамианская набережная, 32-34
Жилое здание "Космодамианская набережная, 32-34"
Тип: Офисы
Площадь: 574.00 м2
Отделка:выполнена стандартная офисная отделка
1 578 500 в месяц
33 000 в год за м2
Позвонить Подробнее
ЦСКА (5 мин. 🚶)
Москва, Улица Авиаконструктора Микояна, 12
Бизнес-центр «Линкор»
Тип: Офисы
Площадь: 373.00 м2
Отделка:выполнена стандартная офисная отделка
1 175 572 в месяц
37 820 в год за м2
Позвонить Подробнее
ЦСКА (5 мин. 🚶)
Москва, Улица Авиаконструктора Микояна, 12
Бизнес-центр «Линкор»
Тип: Офисы
Площадь: 1377.00 м2
Отделка:выполнена стандартная офисная отделка
4 339 845 в месяц
37 820 в год за м2
Позвонить Подробнее
Таганская (5 мин. 🚶)
Москва, улица Земляной Вал, 68/18с5
Офисное здание «Земляной 68/18 с5"
Тип: Офисы
Площадь: 145.00 м2
Отделка:выполнена стандартная офисная отделка
422 917 в месяц
35 000 в год за м2
Позвонить Подробнее
Таганская (19 мин. 🚶)
Москва, Космодамианская набережная, 32-34
Жилое здание "Космодамианская набережная, 32-34"
Тип: Офисы
Площадь: 574.00 м2
Отделка:выполнена стандартная офисная отделка
1 578 500 в месяц
33 000 в год за м2
Позвонить Подробнее
Таганская (10 мин. 🚶)
Москва, Улица Станиславского, 21с1
Бизнес-центр «Фабрика Станиславского»
Тип: Офисы
Площадь: 865.00 м2
Отделка:выполнена стандартная офисная отделка
4 045 317 в месяц
56 120 в год за м2
Позвонить Подробнее
Таганская (10 мин. 🚶)
Москва, Пестовский переулок, 16с1
Офисное здание «Пестовский 16 с1»
Тип: Офисы
Площадь: 838.70 м2
Отделка:выполнена стандартная офисная отделка
2 486 978 в месяц
35 583 в год за м2
Позвонить Подробнее
Таганская (10 мин. 🚶)
Москва, Улица Станиславского, 21с1
Бизнес-центр «Фабрика Станиславского»
Тип: Офисы
Площадь: 1015.00 м2
Отделка:выполнена стандартная офисная отделка
9 760 000 в месяц
115 389 в год за м2
Позвонить Подробнее
Таганская (5 мин. 🚶)
Москва, улица Земляной Вал, 68/18с5
Офисное здание «Земляной 68/18 с5"
Тип: Офисы
Площадь: 2650.00 м2
11 041 667 в месяц
50 000 в год за м2
Позвонить Подробнее
Таганская (5 мин. 🚶)
Москва, Улица Земляной Вал, 68/18с3
Офисное здание «Земляной 68/18 с3»
Тип: Офисы
Площадь: 692.10 м2
2 750 000 в месяц
47 681 в год за м2
Позвонить Подробнее
Таганская (3 мин. 🚶)
Москва, Верхняя Радищевская улица, 14
Особняк "Верхняя Радищевская улица, 14"
Тип: Офисы
Площадь: 717.50 м2
Отделка:выполнена стандартная офисная отделка
2 391 667 в месяц
40 000 в год за м2
Позвонить Подробнее