Аренда торгового помещения Жилое здание "Академика Королёва, 3"

Объект успешно реализован!
Аренда торгового помещения Жилое здание
Москва, улица Академика Королёва, 3
Объект успешно реализован, но у нас есть много других интересных предложений. Позвоните по телефону +7 495 230-28-26, либо оставьте заявку на подбор прямо сейчас и получите список подходящих для вас объектов.
загрузка карты...
Аренда в год за м2 36 000 ₽
Аренда в месяц 360 000 ₽
Схема сделки прямая аренда
Чалова Ярославна Игоревна

Объект ведет консультант:

Чалова Ярославна Игоревна

Общие
ID 61518
Тип сделки Аренда
Площадь 120.00
Площадь всего 23725.00
Тип объекта Жилое здание
Этаж 1
Всего этажей в здании 8
Метраж по этажам
Информация об объекте
Состояние объекта рабочее
Состояние блока отделка арендатора
Планировка Смешанная
Перекрытия Железобетонные
Парковка Парковка возле дома, рядом остановка общественного транспорта.
Нюансы Отдельный вход
Торговая недвижимость
Линия домов 1 линия
Возможности Место для рекламы,Проходное место,Проездное место
Коммерческие условия
Аренда в год за м2 36 000 ₽
Аренда в месяц 360 000 ₽
Схема сделки прямая аренда
Тип собственника Физическое лицо

Описание объекта
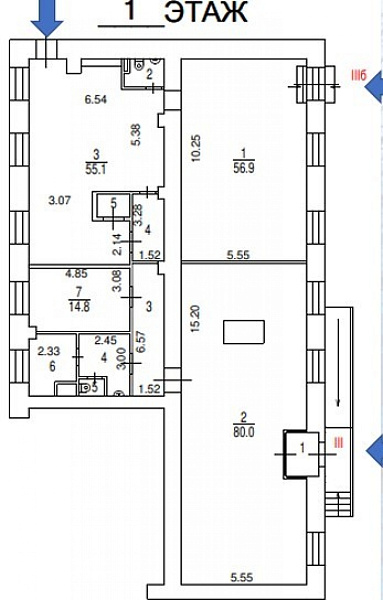
К аренде торговое помещение 120.4 м2, 1 этаж по адресу: улица Академика Королёва, 3

Год постройки: 1958 г.
Назначение: нежилое помещение
Помещение расположено на 1 этаже  жилого дома.
Отдельный вход с  торца здания. Открытая планировка.
Центральные коммуникации. Интенсивный автомобильный и пешеходный трафик!
Местоположение:
Станция метро ВДНХ– 490 м,
Станция метро Улица Академика Королёва – 400 м,
ТТК –3,8 км,
Садовое Кольцо – 6 км

Помещение по БТИ разделено на две равные части с отдельными входными группам
Правая часть: 120,8 кв.м.
Возможна аренда части помещения

Нужна консультация по подбору торговых площадей для аренды?

Наши специалисты подберут для вас самые выгодные варианты для долгосрочного инвестирования,
помогут в сопровождении и сделки, проверят все юридические вопросы касаемо приобретения недвижимости.

* Нажимая на кнопку «Отправить», Вы даете согласие на обработку персональных данных в соответствии с Политикой конфиденциальности

Похожие объекты

(2 мин. 🚶)
Москва, Рязанский проспект, 10с2
Бизнес-центр «Джоуль»
Тип: Торговое помещение
Площадь: 109.00 м2
Мощность:15 кВт
350 000 в месяц
38 532 в год за м2
Позвонить Подробнее
Медведково (30 мин. 🚗)
Московская область, Мытищи, 1-й Стрелковый переулок, 5
ЖК "Мытищи Парк"5
Тип: Торговое помещение
Площадь: 127.40 м2
407 680 в месяц
38 400 в год за м2
Позвонить Подробнее
Смоленская (Филевская) Смоленская (Арбатско-Покровская) (6 мин. 🚶)
Москва, Новинский бульвар, 8
Бизнес-центр «Лотте Плаза»
Тип: Торговое помещение
Площадь: 110.00 м2
469 700 в месяц
51 240 в год за м2
Позвонить Подробнее
Перово (1 мин. 🚶)
Москва, Зелёный проспект, 19
Административное здание Зеленый проспект, 19
Тип: Торговое помещение
Площадь: 108.00 м2
Мощность:40 кВт
750 000 в месяц
83 333 в год за м2
Позвонить Подробнее
Бульвар Рокоссовского (8 мин. 🚶)
Москва, Тагильская улица, вл4
ЖК "Сиреневый парк"
Тип: Торговое помещение
Площадь: 127.50 м2
Мощность:25 кВт
570 000 в месяц
53 647 в год за м2
Позвонить Подробнее
Братиславская (9 мин. 🚶)
Москва, Люблинская улица, 153
ТЦ "Люблю Молл"
Тип: Торговое помещение
Площадь: 132.00 м2
660 000 в месяц
60 000 в год за м2
Позвонить Подробнее
Братиславская (9 мин. 🚶)
Москва, Люблинская улица, 153
ТЦ "Люблю Молл"
Тип: Торговое помещение
Площадь: 119.20 м2
596 000 в месяц
60 000 в год за м2
Позвонить Подробнее
Черкизовская (5 мин. 🚶)
Москва, Амурская улица, 1/2/3
ЖК: "Амурский парк" 1/2/3
Тип: Торговое помещение
Площадь: 108.70 м2
Мощность:50 кВт
300 000 в месяц
33 119 в год за м2
Позвонить Подробнее
Алексеевская (12 мин. 🚶)
Москва, проспект Мира, 102с12
БЦ "Парк Мира"
Тип: Торговое помещение
Площадь: 110.10 м2
293 600 в месяц
32 000 в год за м2
Позвонить Подробнее
Ломоносовский проспект (7 мин. 🚶)
Москва, Мичуринский проспект, 7к1
ЖК Шуваловский
Тип: Торговое помещение
Площадь: 128.00 м2
Мощность:78 кВт
620 000 в месяц
58 125 в год за м2
Позвонить Подробнее
Новокосино (3 мин. 🚶)
Московская область, Реутов, Носовихинское шоссе, 27
Жилое здание "Реутов, Носовихинское шоссе, 27"
Тип: Торговое помещение
Площадь: 118.00 м2
188 800 в месяц
19 200 в год за м2
Позвонить Подробнее
Добрынинская (7 мин. 🚶)
Москва, улица Малая Ордынка, 37с2
Здание "Малая Ордынка, 37с2"
Тип: Торговое помещение
Площадь: 110.00 м2
550 000 в месяц
60 000 в год за м2
Позвонить Подробнее
(4 мин. 🚶)
Москва, Рязанский проспект, 32к1
ОСЗ "Рязанский проспект, 32к1"
Тип: Торговое помещение
Площадь: 226.80 м2
Мощность:60 кВт
700 000 в месяц
37 037 в год за м2
Позвонить Подробнее
Алексеевская (12 мин. 🚶)
Москва, проспект Мира, 102с12
БЦ "Парк Мира"
Тип: Торговое помещение
Площадь: 170.00 м2
549 993 в месяц
38 823 в год за м2
Позвонить Подробнее
Маяковская (4 мин. 🚶)
Москва, Оружейный переулок, 13с1
Административное здание "Оружейный переулок, 13с1"
Тип: Торговое помещение
Площадь: 668.00 м2
Мощность:30 кВт
2 097 000 в месяц
37 671 в год за м2
Позвонить Подробнее
Добрынинская (5 мин. 🚶)
Москва, Улица Большая Полянка, 51А/9
Административное здание «Большая Полянка 51а/9»
Тип: Торговое помещение
Площадь: 345.00 м2
Мощность:70 кВт
1 100 000 в месяц
38 261 в год за м2
Позвонить Подробнее
(2 мин. 🚶)
Москва, Рязанский проспект, 10с2
Бизнес-центр «Джоуль»
Тип: Торговое помещение
Площадь: 109.00 м2
Мощность:15 кВт
350 000 в месяц
38 532 в год за м2
Позвонить Подробнее
Медведково (30 мин. 🚗)
Московская область, Мытищи, 1-й Стрелковый переулок, 5
ЖК "Мытищи Парк"5
Тип: Торговое помещение
Площадь: 127.40 м2
407 680 в месяц
38 400 в год за м2
Позвонить Подробнее
Сокол Сокольники Соколиная Гора (3 мин. 🚶)
Москва, Ленинградский проспект, 69с1
Жилое здание "Ленинградский пр-т 69"
Тип: Торговое помещение
Площадь: 50.00 м2
Мощность:100 кВт
150 000 в месяц
36 000 в год за м2
Позвонить Подробнее
Бульвар Рокоссовского (16 мин. 🚗)
Москва, 4-я Гражданская улица, 33А
ЖК "Вдохновение"
Тип: Торговое помещение
Площадь: 138.00 м2
430 000 в месяц
37 391 в год за м2
Позвонить Подробнее
Проспект Вернадского (9 мин. 🚶)
Москва, улица Удальцова, 79
Жилое здание "улица Удальцова, 79"
Тип: Торговое помещение
Площадь: 500.00 м2
Мощность:65 кВт
1 500 000 в месяц
36 000 в год за м2
Позвонить Подробнее
Щёлковская (25 мин. 🚶)
Москва, Уссурийская улица, 9
Жилое здание "Уссурийская, 9"
Тип: Торговое помещение
Площадь: 219.60 м2
600 000 в месяц
32 787 в год за м2
Позвонить Подробнее
Котельники (14 мин. 🚗)
Московская область, городской округ Люберцы, посёлок городского типа Мирный, улица Военкора Максима Фомина, 6
ЖК "Томилино Парк"
Тип: Торговое помещение
Площадь: 88.40 м2
Мощность:15 кВт
265 200 в месяц
36 000 в год за м2
Позвонить Подробнее
Партизанская (10 мин. 🚗)
Москва, Измайловский проезд, 5/1к1
Жилое здание "Измайловский пр-д 5/1к1"
Тип: Торговое помещение
Площадь: 82.50 м2
Мощность:30 кВт
260 000 в месяц
37 818 в год за м2
Позвонить Подробнее
ВДНХ (14 мин. 🚗)
Москва, проспект Мира, 135А
Жилое здание "проспект Мира, 135А"
Тип: Торговое помещение
Площадь: 167.10 м2
Мощность:33 кВт
490 000 в месяц
35 189 в год за м2
Позвонить Подробнее